Großartiges Reihenendhaus in Dallgow
Übersicht
Innen
Aussen
Extras zum Objekt
Energie
Preise
Objektbeschreibung
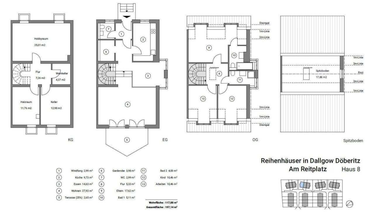
Das moderne, komfortabel ausgestattete Reihenhaus besticht mit lichtdurchfluteten Räumen und einer Wohnfläche von knapp 118m² bzw. einer Wohn-/ Nutzfläche von etwa 179m².
.
Der wohldurchdachte Grundriss auf drei Etagen bietet viel Platz zur Entfaltung für die ganze Familie.
.
Der geräumige Wohnbereich im Erdgeschoss ist durch zwei Stufen vom Essbereich getrennt, von welchem man in die Küche gelangt aber auch zum Garten, der zum Entspannen, Genießen und Grillen einlädt. In der separaten Küche wird Komfort großgeschrieben: Mit der planvollen Anordnung und kurzen Wegen wird das Kochen hier zum Vergnügen.
.
Im Obergeschoss sorgen 3 Zimmer sowie 2 Bäder mit WC und Wanne bzw. Dusche für Privatsphäre. Hier kann neben dem Schlafzimmer mit einem En-Suite-Bad und einem Kinderzimmer, das Arbeitszimmer vom Rest der Wohnung separiert und konzentriert gearbeitet werden.
.
Das Kellergeschoss ist komfortabel ausgebaut sodass hier beispielsweise ein Hobbyraum, ein Stauraum und ein Weinkeller, neben dem Heizungsraum für die Gasetagenheizung genutzt werden können.
.
Darüber hinaus kann das Dachgeschoss als großzügiger Abstellraum dienen.
Direkt am Haus besteht die Möglichkeit den Pkw abzustellen.
.
Das Reihenhaus gehört zu einer 1997 gebauten kleinen Reihenhaussiedlung am östlichen Ortsrand von Dallgow-Döberitz. Die Siedlung grenzt an zwei Seiten an die Pferdekoppeln des Reitsportparks Dallgow, nur getrennt durch schmale Pfade. Gegenüber der Anlage gibt es eine Kita und daneben einen öffentlichen Spielplatz. Ein ruhiges und wenig befahrenes Umfeld, in welchem man entspannt seine freie Zeit mit Familie und Freunden genießen, seinen Hobbys nachgehen und Energie auftanken kann. Die Nachbarschaft zeichnet sich durch kleine, stilvolle Gutshöfe und Einfamilienhäuser sowie Stallungen, Reiterhöfe und gemütliche Hotels aus. Wald, Wiesen und Pferdekoppeln rahmen dieses beschauliche Areal ein. Sehr idyllisch und ideal für Familien und Pferdeliebhaber. Aber auch private Kapitalanleger finden hier ein interessantes Objekt für die Altersvorsorge und als Investment.
Ausstattung
- großes Platzangebot mit einer Wohn-/ Nutzfläche von 170,48 m²
- Erdgeschoss mit geräumigem Wohn- und Essbereich
- Terrasse mit eigenem Garten
- Einbauküche
- Gäste-WC, Garderobe und Windfang im Erdgeschoss.
- hohes Untergeschoss mit Platz für einen Weinkeller, Abstellraum, einem Hobbyraum und dem Heizungsraum
- Gasfeuerungsanlage von Vaillant mit Warmwasseraufbereitung
- Obergeschoss mit 3 Zimmern und zwei Bädern (1 Dusch- und 1-Wannenbad je mit WC und Waschbecken)
- Dachgeschoss als Speicher ausgebaut
- Stellplatz
Lage
Wer aus der Großstadt raus, aber deren Vorzüge trotzdem nutzen will, findet in Dallgow-Döberitz den idealen Wohnort: direkt im Umland, nur 8 km nordwestlich von Berlin. Neben seiner idyllischen Lage umgeben von Natur, der direkten und kurzen Anbindung an Berlin und den hervorragenden Einkaufsmöglichkeiten hat der Ort ein absolutes Alleinstellungsmerkmal: Dallgow-Döberitz ist in der Reiterszene als Turnierstandort bekannt. Dort gibt es etwa 400 Pferde, 250 weitere in den beiden Nachbardörfern. Am östlichen Ortsrand, unmittelbar am Naturschutzgebiet Döberitzer Heide, liegt die Reihenhaussiedlung in einer ruhigen Gegend. Mit der Buslinie 670, nur 200 Meter entfernt, gelangt man zum Bahnhof Dallgow-Döberitz. Von dort erreicht man mit der Regionalbahn in nur 20 Minuten die Berliner City-West. Die nächstgelegene Autobahnanschlussstelle ist Berlin-Spandau an der A10 (westlicher Berliner Ring), nur wenige Fahrminuten entfernt. Jedoch geht oder fährt man aber auch gern in den Nachbarort, um im Hofladen leckere Lebensmittel und Spezialitäten frisch einzukaufen. Die Infrastruktur in Dallgow-Döberitz ist modern und umfassend: Einkaufsmöglichkeiten, Supermarkt und Discounter, Ärzte, Restaurants, alle Schultypen, Kitas, Seniorenresidenz, Bibliothek und vieles mehr – wie Spielplätze, Tanzschulen und Fitnessstudios. Der Havelpark mit seinem vielseitigen Shopping- und Gastronomieangebot auf ca. 59.200 m² ist nur 3 Autominuten entfernt. Im Gewerbepark „Döberitzer Heide“ haben sich zahlreiche Firmen, Büros und Lager aus Handel, Produktion und Dienstleistungen, darunter ein Supermarkt und eine Tankstelle, angesiedelt. Aber auch ein Erdbeer-Erlebnishof, das Olympische Dorf und eine groß angelegte Outlet-Shopping- Anlage in Form eines Dorfes ist auf kurzen Wegen zu erreichen.
Sonstiges
Provisionsfrei für den Käufer.
Alle gemachten Angaben zu Objekten sind ohne Gewähr und basieren ausschließlich auf Informationen, die Immosiv - Exklusive Immobilien von meinem Auftraggeber oder von Dritten übermittelt wurden. Ich übernehme keine Gewähr für die Richtigkeit, die Vollständigkeit, sowie die Aktualität dieser Angaben, insbesondere die Angaben zur Wohnfläche, zur Nutzfläche und zur Aufteilung der Wohn-/Nutzfläche sind von mir nicht durch ein eigenes Aufmaß oder eine eigene Wohnflächenberechnung kontrolliert und die Angaben zum Baujahr sind nicht durch eine Einsicht in die Bauakte überprüft worden. Maßgeblich für den Vertragsgegenstand ist immer der notarielle Kaufvertrag,
Vermögensschaden-Haftpflichtversicherung abgeschlossen bei Hans John GmbH Versicherungsmakler in Hamburg.
Am Reitplatz 8, 14624 Dallgow-Döberitz, Brandenburg, Germany
Meta
Weitere Objekte des Maklers Alle Objekte des Anbieters anzeigen →
Grundstück in Falkensee Falkenhöh
Wohngrundstück zu Verkauf € 249 000
14612 Falkensee, Germany
550 m²
€ 49 000Duplexgarage in Friedrichshain
Various zu Verkauf € 49 000
Pintschstraße 2, 10249 Berlin, Germany
13 m²
€ 1 200Altbaucharme trifft modernes Wohngefühl – Ihr neues Zuhause in Steglitz
Wohnung zur Miete € 1 200
12163 Berlin, Germany
37 m² 1
€ 1 200Altbaucharme trifft modernes Wohngefühl – Ihr neues Zuhause in Steglitz
Wohnung zur Miete € 1 200
12163 Berlin, Germany
37 m² 1
€ 1 255Altbaucharme trifft modernes Wohngefühl – Ihr neues Zuhause in Steglitz
Erdgeschosswohnung zur Miete € 1 255
12163 Berlin, Germany
38 m² 1
€ 1 249 000Wohntraum in Pankow
Maisonette zu Verkauf € 1 249 000
13187 Berlin, Germany
148 m² 4 2
€ 880 000Preissturz! Luxuriöses Einfamilienhaus mit Garten und Wellnessbereich
Einfamilienhaus zu Verkauf € 880 000
14621 Schönwalde-Glien, Germany
163 m² 6 3 3
Ähnliche Objekte Ähnliche Angebote zu dieser Immobilie →
Renovierungsfähiges Einfamilienhaus mit viel Potenzial
Einfamilienhaus zu Verkauf € 720 000
12355 Berlin, Germany
120 m² 6 2 1
€ 495 000Einfamilienhaus Bohnsdorf – 6 Zimmer für Ihr Traumhaus
Einfamilienhaus zu Verkauf € 495 000
12526 Berlin / Bohnsdorf, Germany
145 m² 6 2
€ 666 666TREBBIN-GROSSBEUTHEN: Einige Seen, traumhafte - ländliche Lage und ein tolles Haus!
Einfamilienhaus zu Verkauf € 666 666
14959 Trebbin-Großbeuthen, Germany
119 m² 5 2 1
€ 390 000Berlin/Mahlsdorf-Süd: Zweigenerationenhaus oder möchten Sie gerne gleichzeitig wohnen und arbeiten?
Einfamilienhaus zu Verkauf € 390 000
12623 Berlin, Germany
146 m² 5 2
€ 666 666TREBBIN-GROSSBEUTHEN: Einige Seen, traumhafte - ländliche Lage und ein tolles Haus!
Einfamilienhaus zu Verkauf € 666 666
14959 Trebbin-Großbeuthen, Germany
119 m² 5 2 1
€ 400 000Hoppegarten OT Hönow - Familienfreundliches 5-Zimmer-EFH in attraktiver Wohnlage
Einfamilienhaus zu Verkauf € 400 000
15366 Hoppegarten OT Hönow, Germany
122 m² 5 2
