Renovierungsfähiges Einfamilienhaus mit viel Potenzial
Übersicht
Innen
Energie
Preise
Objektbeschreibung
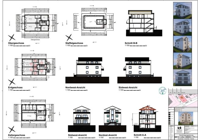
Zum Verkauf steht ein renovierungsbedürftiges Einfamilienhaus auf einem großzügigen Grundstück von ca. 716 m². Das Haus bietet auf zwei Etagen insgesamt 6 Zimmer, darunter 2 Schlafzimmer, ein Badezimmer und ein separates WC. Im Obergeschoss befinden sich 3 Zimmer, eine Einbauküche, ein WC und eine Dusche. Das Untergeschoss umfasst weitere 3 Zimmer sowie ein WC und ist über einen separaten Außeneingang zugänglich. Das Haus erfordert eine Renovierung . Ein Stellplatz am Haus rundet das Angebot ab.
Ausstattung
Obergeschoss: 3 Zimmer, Einbauküche, WC und Dusche.
Untergeschoss: 3 Zimmer, separates WC, mit separatem Außeneingang.
Sanitäreinrichtungen: 1 Badezimmer mit Dusche, 2 separate WCs.
Keller: Bietet zusätzlichen Raum und Flexibilität.
Außenbereich: Stellplatz direkt am Haus.
Das Haus ist seit etwa einem Jahr unbewohnt und bietet eine hervorragende Grundlage für individuelle Anpassungen oder einen kompletten Neubau.
Lage
Das Einfamilienhaus befindet sich in einer ruhigen Wohngegend im Berliner Stadtteil Rudow. Die Umgebung zeichnet sich durch eine familienfreundliche Infrastruktur aus und bietet eine hervorragende Anbindung an das Berliner Stadtzentrum sowie an den Flughafen BER.
Verkehrsanbindung: Die U-Bahn-Station Rudow (Linie U7) ist schnell erreichbar und bietet eine direkte Verbindung in die Innenstadt. Zudem ist die Autobahn nur 0,4 km entfernt, was eine schnelle Anbindung an das Berliner Straßennetz ermöglicht.
Bildungseinrichtungen: Ein Kindergarten befindet sich 0,8 km entfernt, eine Grundschule 0,9 km, eine Realschule 1,2 km und ein Gymnasium 1,6 km.
Freizeit und Einkauf: Einkaufsmöglichkeiten, Restaurants und andere infrastrukturelle Einrichtungen liegen in unmittelbarer Umgebung. Die Lage eignet sich ideal für Familien, da zahlreiche Freizeitmöglichkeiten wie Spielplätze und grüne Erholungsflächen in der Nähe vorhanden sind.
Diese Kombination aus ruhigem Wohnen, urbaner Infrastruktur und guter Verkehrsanbindung macht die Immobilie besonders attraktiv für Familien, Investoren und Berufspendler.
Sonstiges
Die Immobilie ist sofort verfügbar. Für weitere Informationen oder zur Vereinbarung eines Besichtigungstermins bitten wir Sie, uns Ihre E-Mail-Adresse und Telefonnummer mitzuteilen.
-
Der Makler erhebt eine Provision in Höhe von 3,57 % inklusive gesetzlicher Mehrwertsteuer jeweils vom Käufer und Verkäufer.
-
Besuchen Sie unsere Website, um mehr über uns und unsere Immobilienangebote zu erfahren:
www.duzimmobilien.com
www.duzimmobilien.de
-
Wir freuen uns auf Ihre Anfrage!
12355 Berlin, Germany
Meta
Weitere Objekte des Maklers Alle Objekte des Anbieters anzeigen →
Lichtdurchflutetes Wohnambiente 5 Zimmer in Neukölln steht zum Verkauf
Wohnung zu Verkauf € 780 000
12049 Berlin / Neukölln, Germany
132 m² 5 2
€ 55 000Gartenanlage , Pachtgarten Tempelhofer Feld nahe in Neukölln
Bungalow zu Verkauf € 55 000
12051 Berlin, Germany
45 m² 2 1 1
€ 70 000Wunderschöner Bungalow mit garten im berliner ortsteil neukölln Mit amtliche Wohnanmeldung
Bungalow zu Verkauf € 70 000
12051 Berlin, Germany
40 m² 2
€ 2 950 000Zeitlos schön - Mehrfamilienhaus mit historischem Charakter und Liebe zum Detail
Mehrfamilienhaus zu Verkauf € 2 950 000
12459 Berlin, Germany
1 134 m² 16
€ 160 0002.Zimmer wohnung in Spandu
Wohnung zu Verkauf € 160 000
13595 Berlin, Germany
53 m² 2 1 1
€ 120 000MFH Sanierungsbedürftig
Mehrfamilienhaus zu Verkauf € 120 000
06905 Pretzsch, Germany
300 m² 14
€ 180 000Spandau 2 Zimmer Wohnung
Wohnung zu Verkauf € 180 000
13595 Berlin, Germany
56 m² 2 1 1
€ 97 000wunderschöner Bungalow mit garten im berliner ortsteil neukölln Mit amtliche Anmeldung
Bungalow zu Verkauf € 97 000
12051 Berlin, Germany
32 m² 2 1 1
€ 6 700 000Historisches Mehrfamilienhaus mit Gewerbeeinheit aus dem 19. Jahrhundert in Neukölln 12051 Neukölln, Wohn-/Geschäftshaus
Mehrfamilienhaus zu Verkauf € 6 700 000
12051 Berlin, Germany
1 868 m²
Ähnliche Objekte Ähnliche Angebote zu dieser Immobilie →
Ein Paradies im Grünen mit verschiedensten Nutzungsmöglichkeiten auf atemberaubendem Grundstück
Zweifamilienhaus zu Verkauf
15746 Groß Köris, Germany
180 m² 7 3 3
€ 825 000Großzügiges Einfamilienhaus im Karolinenhof
Einfamilienhaus zu Verkauf € 825 000
12527 Berlin, Deutschland
188 m² 7 4 2
€ 800 000BERLIN, SPANDAU: HAUS mit 320 m² Wohnnutzfläche! Modernisierte Stadtvilla in Berlin Spandau
Einfamilienhaus zu Verkauf € 800 000
Ballersdorfer Str. 36, 13583 Berlin, Deutschland
212 m² 7 6 3
