WRS Immobilien - Karben - direkt im Zentrum - barrierefreie Bürofläche / Praxisfläche mit Aufzug
Площ
Inside
Outside
Изисквания и ограничения
Енергия
Цени
Описание на недвижимата собственост
Gebäude mit 12 Wohneinheiten und 1 Gewerbeeinheit. Das Haus verfügt über einen Aufzug, daher sind die Räumlichkeiten im 1. OG barrierefrei zu erreichen.
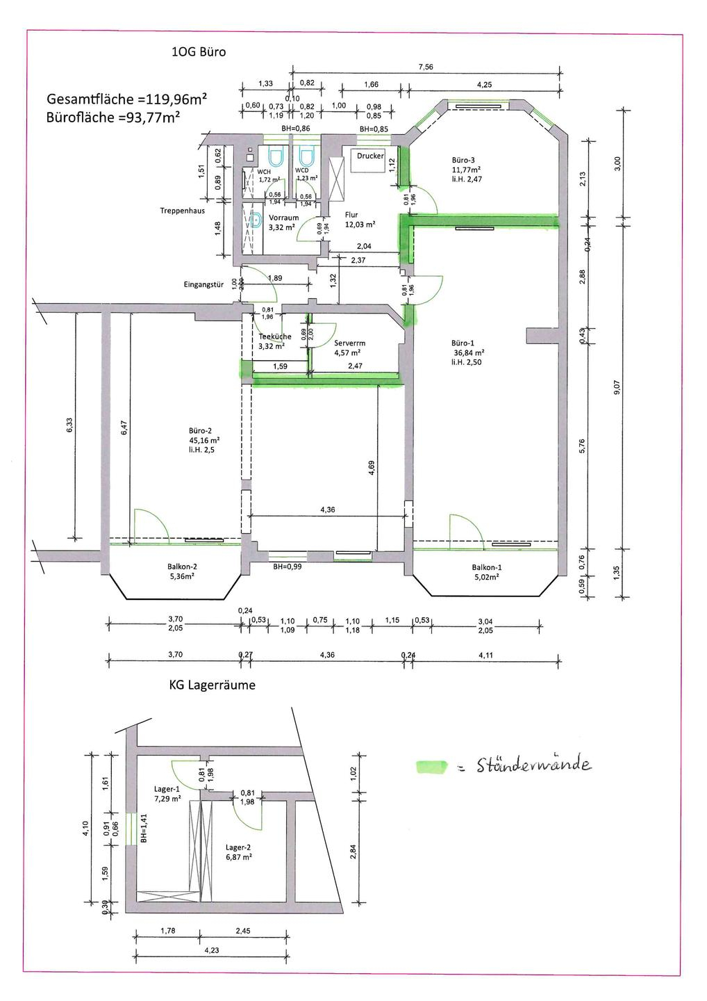
Die Gesamtfläche beläuft sich auf ca. 120 m², aufgeteilt auf 2 große Räume mit 4 großzügig ausgestatteten Arbeitsplätzen.
Die Fläche kann in 2 Einheiten mit je ca. 60 m² geteilt werden
Nutzbar als Büro oder auch Praxis.
Zu der Einheit gehören 2 Außen-Stellplätze.
Оборудване
• Fläche: ca. 120 m², flexibel nutzbar
• Bürofläche komplett klimatisiert
• Baujahr: 1986
• Aufteilung: 2 große Büroräume mit jeweils 4 großzügig ausgestatten Arbeitsplätzen, Besprechungsraum,
Diele, getrennte WC’s für Damen und Herren mit Vorraum, Teeküche, 2 Kellerräume
• Sanitär: gepflegte getrennte WC-Anlagen
• Teeküche: voll ausgestattete Teeküche mit Mikrowelle, Kühlschrank, Hängeschränken Spüle und Geschirrspüler
• Fenster: Holz, sehr guter Zustand, groß, doppelt verglast
• Netzwerk: Strukturierte Verkabelung
• Aufzug: direkter Zugang vom EG
• Stellplätze: 2 PKW-Stellplätze im Hof
• Zustand: Sehr gepflegt
• Teilbarkeit: Nach geringem Umbau in zwei separate Einheiten möglich
Местоположение
Die Büro-/Praxisfläche befindet sich in direkter Zentrumslage von Karben. Öffentliche Verkehrsmittel sind in unmittelbarer Nähe.
Bushaltestelle ist direkt vor dem Gebäude, die S-Bahn-Station ist in ca. 5 Minuten zu Fuß zu erreichen.
Alle Einrichtungen, Einkaufsmöglichkeiten und gastronomische Angebote sind in unmittelbarer Nähe:
Einkaufsmöglichkeiten: Aldi, REWE, tegut, KIK, Tedi, Netto, Fristo Getränke, Bäcker, Apotheke usw.
Vor dem Gebäude befindet sich ein öffentlicher Parkplatz, direkt vor dem Karbener Rathaus.
Други
Die Bürofläche ist mit hochwertigen Büromöbeln von König & Neurath ausgestattet. Diese können gerne bei Bedarf gegen Abstand übernommen werden.
61184 Karben, Germany
Facebook comments
Last broker properties View all broker properties →
WRS Immobilien - käuferprovisionsfrei - Offenbach - 3 Zimmer ETW in zentraler Lage + am Main
Wohnung продава се € 349 000
63065 Offenbach, Germany
100 m² 3 2 1
Attraktive Ausstellungs- & Lagerfläche inkl. Büro, ca. 260 m² Lager und 140 m² Büro zu vermieten
Хале под наем
63546 Büdingen, Germany
400 m²
€ 2 300WRS Immobilien - Friseurgeschäft in der Altstadt von Mainz - komplett ausgestattet
Магазин под наем € 2 300
55116 Mainz, Germany
210 m² 4
€ 5 600 000WRS Immobilien - Rendite 6,22 % - Mehrfamilienhaus mit Kindergarten als Investmentobjekt
Многофамилна къща продава се € 5 600 000
65933 Frankfurt am Main, Germany
897 m² 39 41
€ 198 000WRS Immobilien - Rendite 5,2 % - käuferprovisionsfrei - Maintal - Kapitalanlage - 3 Zimmer ETW
Многофамилна къща продава се € 198 000
63477 Maintal, Germany
63 m² 3 2 1
€ 1 750 000WRS Immobilien - 3 Mehrfamilienhäuser auf einem Grundstück - Generationenhaus / Kapitalanlage 7 WE
Жилищна и търговска сграда продава се € 1 750 000
61231 Bad Nauheim, Germany
555 m² 18
€ 749 000WRS Immobilien - Babenhausen - Großer Garten mit Zweifamilienhaus + Doppelgarage - ruhige Lage
Двуфамилна къща продава се € 749 000
64832 Babenhausen, Germany
317 m² 7 5 2
€ 499 000WRS Immobilien - Neuberg - Architekten-Villa mit Einliegerwohnung + großem Garten mit Baumbestand
Еднофамилна къща продава се € 499 000
63543 Neuberg, Germany
198 m² 8 5 2
€ 207 000WRS Immobilien - In ruhiger Lage von Jossgrund - 3 Grundstücke für Einfamilienhaus / Doppelhäuser
Жилищен парцел продава се € 207 000
63637 Jossgrund, Germany
2 781 m²
€ 69 000WRS Immobilien - In ruhiger Lage von Jossgrund - Grundstück für Einfamilienhaus / Doppelhäuser
Жилищен парцел продава се € 69 000
63637 Jossgrund, Germany
927 m²
€ 258 000WRS Immobilien - Freudenberg - direkt im Zentrum + am Main - saniertes EFH mit Einzelgarage
Еднофамилна къща продава се € 258 000
97896 Freudenberg, Germany
136 m² 6 4 2
€ 600WRS Immobilien - 1 Zimmer Wohnung in Bornheim mit Balkon und Kochnische
Floor apartment под наем € 600
60316 Frankfurt, Germany
26 m² 1 1 1
Similar properties View all properties similar to this property →
Attraktive, zentrale Einzelhandelsfläche, auch als Büro oder Praxis - 747,44 m² Gesamtfläche
Бюро/ офис помещение продава се € 395 000
63150 Heusenstamm, Germany
478 m² 9
€ 395 000Attraktive, zentrale Einzelhandelsfläche, auch als Büro oder Praxis - 747,44 m² Gesamtfläche
Various продава се € 395 000
63150 Heusenstamm, Germany
747 m² 9
