Neustadt-Süd - Citywohnung am Volksgarten - modernisiert -
Overview
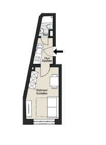
Inside
Limitations & Requirements
Energy
Prices
Property description
Vis-à-vis zu einem der schönsten Parks von Köln – dem Volksgarten -
erwartet Sie eine auf hohem Niveau modernisierte Drei-Zimmer-Wohnung
Gepflegte Eigentumswohnungen in Kölner Lage sind attraktiv und wertbeständig
– für den Eigenbedarf oder zur soliden Kapitalanlage.
Die Immobilie Eifelstraße 74–76, Baujahr circa 1956,
Neuausbau Wohnungen im fünften Obergeschoss und Dachgeschoss 2023, liegt im Stadtteil Neustadt-Nord zwischen dem Kölner Süden und der Innenstadt.
Das Mehrfamilienhaus umfasst mit seinen zwei Hauseingängen insgesamt 28 Ein- bis Dreizimmerwohnungen mit Wohnungsgrößen zwischen rund 17 m2 und 67 m2..
Equipment
Die meisten Einheiten verfügen über Terrasse, Balkon, Loggia oder einen kleinen Austritt.
Das fünfte Obergeschoss und das Dachgeschoss werden mit acht Wohnungen aufgestockt und neu ausgebaut.
Zur Ausstattung gehören Parkett, Laminat oder Fliesen.
Die Wohnungen profitieren von der massiven Bauweise des Gebäudes und der neuen wärmegedämmten Außenfassade, nachhaltig und energiesparend.
Die Fenster sind isolierverglast. Es befinden sich Fahrradstellplätze und drei Garagen im Hof.
Location
Die Eifelstraße 74–76 liegt zwischen den Vierteln Zollstock, Sülz, Südstadt und der Innenstadt.
Sport- und Erholungszone erreichen Sie sozusagen direkt vor der Haustür
Im Sommer lädt der lauschige Biergarten unter Bäumen direkt am Wasser zu gemütlichen Abenden ein.
Der Kölner Süden zum Chlodwigplatz und Barbarossaplatz sind gut erreichbar- ob zu Fuß oder mit der Stadtbahn.
Die Verkehrsanbindung ist optimal. Die Haltestelle der Stadtbahn-Linie 12 befindet sich bequem in 100 Meter Entfernung.
Zur Innenstadt sind es mit der Bahn rund 15 Minuten.
Rund um den Eifelplatz gibt es tolle Restaurants. In der nahen Südstadt befinden sich viele Shopping- und Einkaufsmöglichkeiten, legendäre Clubs, Bars und Kneipen. Hier ist immer was los. Eben alles, was das Herz begehrt.
Die ersten Gebäude der Universität zu Köln, das Szeneviertel Kwartier Latäng oder das Rheinufer sind in ein bis
zwei Kilometer erreichbar. Die Ausgangslage für Fahrrad- oder Rollerfahrten könnte nicht besser sein.
Herzlich willkommen - VIVA COLONIA..
50677 Köln, Germany
Facebook comments
Last broker properties View all broker properties →
Vision gestern - Planung heute - Realität morgen
Wohngrundstück for sale € 4 470 000
14532 Kleinmachnow, Germany
7 819 m²
€ 2 140 000ein Domizil im Kölner Süden - anspruchsvolle Denkmal-Immobilie
Semi-detached house for sale € 2 140 000
50968 Köln, Germany
211 m² 6
€ 3 850 000Boarding-House in der City von Bad Honnef
House - and Commercial building for sale € 3 850 000
53604 Bad Honnef, Germany
639 m²
€ 169 000urbanes Refugium - ideal zum Studium - für Singles und Kapitalanleger
Apartment for sale € 169 000
50823 Köln, Germany
26 m² 1 1 1
€ 199 000MITTEN IN DER CITY - APPARTEMENT - BELGISCHES VIERTEL
Apartment for sale € 199 000
50674 Köln, Germany
27 m² 1 1
€ 625 000Wohnen am Park - die "grüne Lunge" von Krefeld
One family house for sale € 625 000
47829 Krefeld, Germany
187 m² 5 2 2
€ 975 000VIVA COLONIA - am Puls der Südstadt - renditestarke Gewerbeeinheit
Work shop for sale € 975 000
50678 Köln, Germany
0 m²
€ 700 000VIVA COLONIA - wohnen und leben in der City
Attic apartment for sale € 700 000
50672 Köln, Germany
101 m² 2 1 1
€ 466 088mit Förderprogramm - Eigentum billiger als Miete - Neubauwohnung mit Balkon
Apartment for sale € 466 088
50969 Köln, Germany
59 m² 3 1 1
€ 359 000Neustadt-Süd - Citywohnung am Volksgarten - modernisiert -
Ground floor apartment for sale € 359 000
50677 Köln, Germany
59 m² 3 1 1
€ 299 000URBAN LIVING IM KWARTIER LATÄNG - ZWEI -ZIMMER - WOHNUNG MIT BALKON - MODERNISIERT!
Apartment for sale € 299 000
50674 Köln, Germany
44 m² 2 1 1
€ 299 000URBAN LIVING IM KWARTIER LATÄNG - ZWEI -ZIMMER - WOHNUNG MIT BALKON - MODERNISIERT!
Apartment for sale € 299 000
50674 Köln, Germany
44 m² 2 1 1
Similar properties View all properties similar to this property →
Charmantes Einfamilienhaus mit Einliegeroption, Garage und sonniger Terrasse in Sankt Augustin
One family house for sale € 529 000
53757 Sankt Augustin, Germany
153 m² 6 4 2
€ 259 000Sankt Augustin: Freundliche Etagenwohnung – Blick ins Grüne inklusive
Wohnung for sale € 259 000
53757 Sankt Augustin, Germany
88 m² 5 2 1
€ 389 000Behagliches Einfamilienhaus mit Anbaupotential in Frechen-Königsdorf
Semi-detached house for sale € 389 000
50226 Frechen, Germany
105 m² 5 2
€ 498 000Geräumiges Reihenmittelhaus mit Dachaufstockung, Garten und Garage in Frechen-Bachem
End unit house for sale € 498 000
50226 Frechen, Germany
140 m² 5 2
€ 465 000Neuwertiges EFH in Massivbauweise mit großem Garten, Terrasse & Traumküche - Energieklasse A+
One family house for sale € 465 000
52391 Vettweiß, Germany
142 m² 5 4 2
€ 279 000Sankt Augustin-Mülldorf: Helles Stadthaus mit Stellplatz – provisionsfrei und zentral gelegen!
Row house for sale € 279 000
53757 Sankt Augustin, Germany
82 m² 3 2 1
€ 485 000*Niederkassel-Rheidt: Charmantes Einfamilienhaus mit gemütlicher Hofanlage und großer Doppelgarage*
One family house for sale € 485 000
53859 Niederkassel, Germany
100 m² 5 3 1
€ 499 000NEUBAU: Luxuriöse EG-Wohnung! Bezugsfertig & mit 2 TG-Stellplätzen in zentraler Bestlage von Lennep
Ground floor apartment for sale € 499 000
Spielberggasse 17, 42897 Remscheid, Nordrhein-Westfalen, Germany
120 m² 3 2 1
€ 259 000**Schönes Wohnen: Liebevoll kernsanierte 3 Zimmer-ETW bietet höchsten Wohnkomfort & Panoramablick**
Wohnung for sale € 259 000
42897 Remscheid, Germany
98 m² 3 2 1
€ 309 9504 Zimmer für Familien - geringe NK - Bilderstöckchen - BUS, BAHN, SCHULE!
Wohnung for sale € 309 950
50739 Köln / Bilderstöckchen, Germany
79 m² 4 3 1
€ 385 000Hennef-Eulenberg: Viel Platz auf zwei Etagen – mit eigenem XXL-Garten
One family house for sale € 385 000
53773 Hennef / Eulenberg, Germany
156 m² 6 4 2
€ 445 000Much Markelsbach: Drei Häuser, kleine Wohnanlage mit Garagenhof - verwirklichen Sie sich!
Semi-detached house for sale € 445 000
53804 Much, Germany
260 m² 9 5 3
