Ca. 21 m² Einzelbüro - sehr gepflegt, günstig, nur ca. 1,2 km bis zur Autobahn (Hennef-Stoßdorf, nahe Möbel XXXLutz)
Overview
Inside
Limitations & Requirements
Energy
Prices
Property description
Hennef Stoßdorf, nahe Möbel XXXLutz
Einzelbüros ca. 21 Quadratmeter im 1. OG rechts
Hinweis - weitere Flächen verfügbar. Schreiben Sie uns eine Mail an info ad inprex-immo punkt de und wir rufen Sie gerne zurück.
Maklerprovision: 2,38 Nettokaltmieten (inkl. Mehrwertsteuer) für Mietverträge bis 2 Jahre,
Staffel: 4,98 Nettokaltmieten (inkl. Mehrwertsteuer) für Mietverträge ab 2 Jahre
Wir freuen uns über Ihre Anfragen.
Equipment
Zentral-Gas-Heizung
Teppich in blau
Möbel in hellgrau
Wände weiss
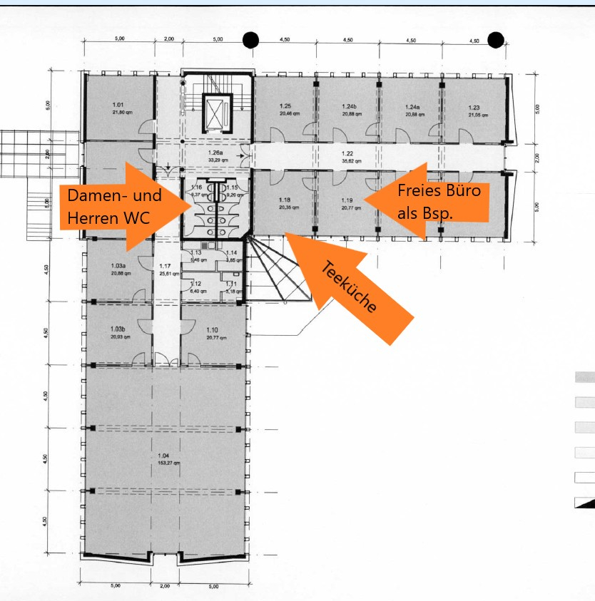
Toiletten in jedem Geschoss (Damen und Herren getrennt - weiss gefliesst - sehr gepflegt.
Gemeinsame Teeküche.
Bezogen auf das Gebäude:
- AB JETZT GLASFASERANSCHLUSS FÜR SCHNELLES INTERNET im Haus (gegen Zusatzkosten bei der Telekom buchbar)
- Sehr schöne und gepflegte Zufahrt
- Repräsentativer Eingangsbereich
- Raumaufteilung änderbar (Innenwände alles Trockenbau)
- Getrennte Damen- und Herren-WC-Anlagen im Flurbereich
- Gipskartonständerwerk, Raufaser weiß
- Abgehängte Akkustikdecke
- natürliche Be- und Entlüftung durch zu öffnende Dreh- und Kippfenster
- Aluminiumfenster- Alarmanlage und Brandmeldeanlage
- manueller außenliegender Sonnenschutz
- EDV-Verkabelung im Fensterbankbrüstungskanal
Falls Sie Wünsche haben sollten - bitte anrufen und wir sprechen darüber.
Location
Dieses schöne Objekt liegt im Gewerbegebiet Hennef-West (Ortsteil Hennef-Stoßdorf). In den vergangengen Jahren haben sich viele namhafte Unternehmen angesiedelt. Daneben befindet sich das bekannte Möbelhaus XXXLutz (bis 2011 Hennefer Messe), wobei sie hier in der öffentlich zugänglichen Kantine essen können. Wir tun dies auch. ;-)
Über den Autobahnanschluss "Hennef-West" (ca. 500m entfernt) gelangen Sie über die Autobahn A560, mit Anbindung an die Autobahnen A3, A59 und A565, binnen ca. 18 Minuten nach Bonn, ca. 20 Minuten nach Köln und ca. 19 Minuten zum Flughafen KölnBonn. Direkt vor dem Objekt (Stoßdorfer Straße) befinden sich die Bushaltestellen der Buslinie 527 Richtung Siegburg Hauptbahnhof (ICE-Haltestelle ca. 8 Minuten) und Richtung Hennef Bahnhof (ca. 5 Minuten).
Various
Kosten von einem Einzelbüro:
349 Euro Miete inkl. Heizungspauschale
17,50 Euro Teeküchenbenutzung pro Person
27,50 Euro Toilettenreinigung/Toilettenpapier/Handtücher pro Person
53,50 Euro Strom/Wasser (Flur/Teeküche/Toilette) pro Person
22 Euro je Autostellplatz
OHNE Telefon/Internet (Hinweis: Glasfaserkabel liegt im Haus, verursacht aber höhere Kosten)
Energieausweis liegt zur Besichtigung vor (Hauseingangsbereich).
Maklerprovision: 2,38 Nettokaltmieten (inkl. Mehrwertsteuer) für Mietverträge bis 2 Jahre,
Staffel: 4,98 Nettokaltmieten (inkl. Mehrwertsteuer) für Mietverträge ab 2 Jahre
Josef-Dietzgen-Strasse 3, 53773 Hennef Sieg, Nordrhein-Westfalen, Germany
Facebook comments
Last broker properties View all broker properties →
Zentral, nur 500m zum Bahnhof, 50m zum Kurgarten, Besichtigung am 19.11. möglich
Wohnung for sale € 125 000
83435 Bad Reichenhall, Germany
26 m² 1 1
€ 309 9504 Zimmer für Familien - geringe NK - Bilderstöckchen - BUS, BAHN, SCHULE!
Wohnung for sale € 309 950
50739 Köln / Bilderstöckchen, Germany
79 m² 4 3 1
€ 819 000Von 2005: Helles 4-Zi. Penthouse in Koeln-Weiden
Penthouse for sale € 819 000
50858 Köln, Germany
154 m² 4 3 2
€ 2 195 000Baugrundstück im Dichterviertel mit 1109 qm (Bayenthal) - Hebbelstraße
Wohngrundstück for sale € 2 195 000
50968 Köln, Germany
380 m² 6
€ 2 195 000Baugrundstück im Dichterviertel mit 1109 qm (Bayenthal) - Hebbelstraße
One family house for sale € 2 195 000
50968 Köln, Germany
380 m² 6
€ 3 342Klimaanlage ???, ca. 557 oder 343 qm Fläche , ca. 1 km bis A560/A3 (Hennef-Stoßdorf, Möbel XXXLutz)
Various for rent € 3 342
Josef-Dietzgen-Strasse 3, 53773 Hennef Sieg, Nordrhein-Westfalen, Germany
557 m²
