Baugrundstück mit in 08/2019 erteilter Baugenehmigung für MFH mit 6 WE in Krostitz
Overview
Prices
Property description
Baugrundstück mit in 08/2019 erteilter Baugenehmigung in Krostitz.
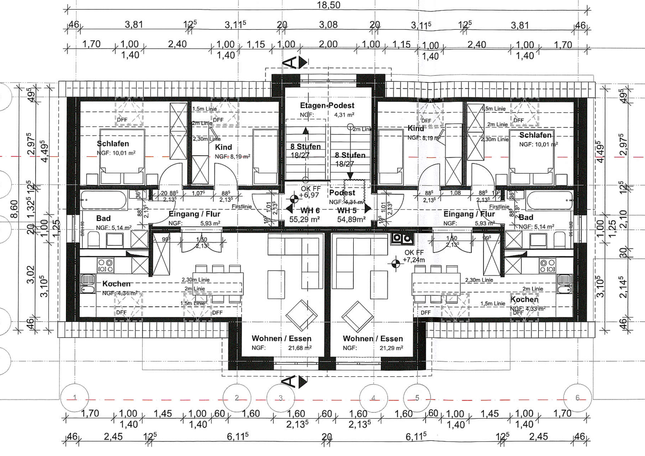
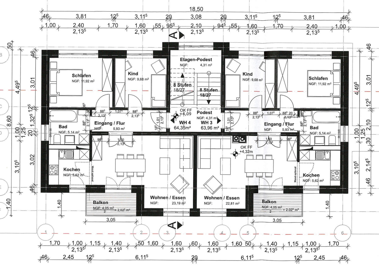
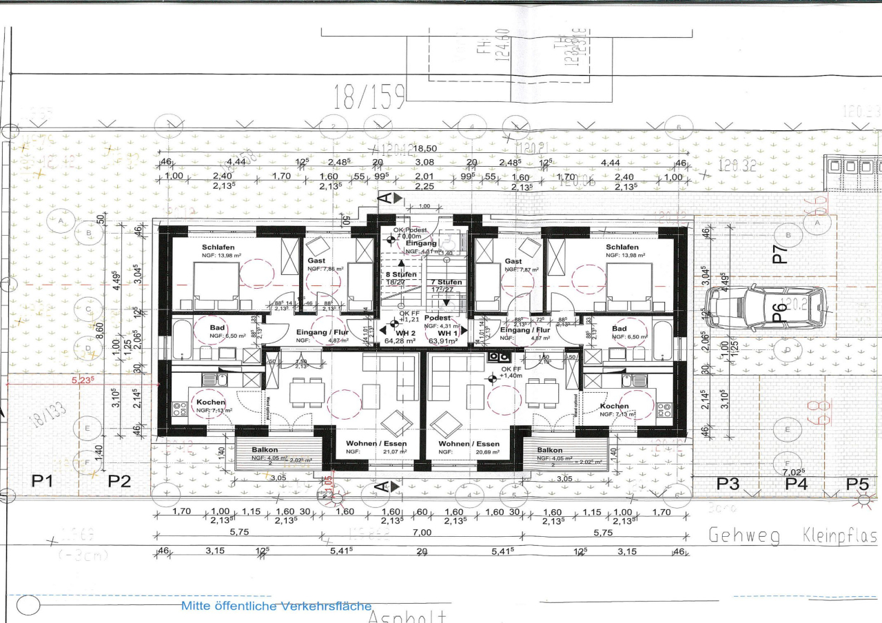
Die Baugenehmigung umfasste ein Mehrfamilienhaus mit vier Geschossflächen, für 6 Wohneinheiten und Kellergeschoss. Die Wohnfläche beträgt ca. 363,29 m².
Für jede Wohneinheit waren PKW-Stellplätze und Fahrrad-Stellplätze (im Keller) genehmigt.
Alle Unterlagen zur Baugenehmigung von 2019 liegen uns vor und können separat angefordert werden.
Alle Medien liegen am Grundstück an.
Sollte an der abgelaufenen Baugenehmigung nichts geändert werden, kann diese mit wenig Aufwand neu beantragt werden. Die neue Baugenehmigung wird innerhalb von 3 Monaten erteilt, wenn alle Unterlagen vollständig eingereicht worden sind.
Equipment
- ca. 463 m² großes Baugrundstück
- Wohnfläche/Vermietbare Fläche: 363,29 m²
- Baugenehmigung liegt vor (bis 2023)
- MFH mit 6 Wohneinheiten
- 7 Stellplätze
- das Baugrundstück liegt in einer gewachsener Einfamilienhaussiedlung
- grüne Umgebung
- alle Medien liegen an der Straße an (Strom/Wasser/Abwasser)
- zum Teil eingezäunt
Location
Der Ort Krostitz befindet sich nördlich der Leipziger Innenstadt. Die Nähe zur City, zur A14
und zum Flughafen zeichnet die Attraktivität dieser Lage aus.
Hier befinden sich ein sehr schöner Kindergarten, die Grund- und die Mittelschule. Gute Einkaufmöglichkeiten, eine Apotheke und Ärzte sind fußläufig zu erreichen.
Das Lebenswerte in Krostitz und seinen Ortsteilen ist der Mix aus ländlicher Idylle, der Nähe zur Großstadt, eine optimale Verkehrsanbindung und nicht zuletzt die hervorragend ausgebaute Infrastruktur mit Erziehung, Handel und Gewerbe, Nahverkehr und sozialen Einrichtungen.
Der Ort befindet sich ca. 5 Fahrminuten von BMW-Gelände und 10 Fahrminuten von Taucha entfernt.
Die Nächste Einkaufsmöglichkeit befindet sich 100 Meter entfernt. In ca. 20 Fahrminuten erreichen Sie den Schladitzer See und das Leipziger Zentrum.
In ca. 500 Meter befindet sich die überregional bekannte "Krostitzer Brauerei".
Various
Die von uns gemachten Angaben haben wir nach bestem Wissen und Gewissen nach
Informationen des Vermieters/Verkäufers und den uns übergebenen Informationen
zusammengestellt. Eine Gewähr für diese Angaben können wir nicht übernehmen.
Wichtige Zahlen und Informationen sind am Objekt zu überprüfen.
Zwischenvermietung/Verkauf bleibt vorbehalten.
04509 Krostitz, Germany
Facebook comments
Last broker properties View all broker properties →
EFH mit gr. GS und rundum grünen Blick! Garage, Terrasse, Balkon, Keller, DG-Reserve u.v.m.
One family house for sale € 535 000
04746 Hartha, Germany
140 m² 5
€ 975 000Freistehendes MFH in grüner Lage, 12 WE, Dachreserve, gr. Grundstück
Multi-family house for sale € 975 000
04838 Jesewitz, Germany
708 m²
€ 750 000Alles in Einem! Halle für Produktion/Lager + gr. GS + Freifläche + Wohn - oder Bürogebäude
Various for sale € 750 000
04683 Belgershain, Germany
1 600 m²
€ 5 200 000Ca. 67.800 m² unerschlossenes Baugrundstück für Wohnen, B-Plan vorhanden
Wohngrundstück for sale € 5 200 000
06132 Halle (Saale), Germany
67 800 m²
€ 9 000Große Ladenfläche direkt auf der beliebten "Karli" + Büro & Sozialräume, inkl. 41 m² Lager, TG-SP mgl.
Shop for rent € 9 000
04107 Leipzig, Germany
532 m² 5
€ 2 590 000Saniertes & gepflegtes Wohn- und Geschäftshaus in Möckern mit 11 WE, 5 GE, Balkone u.v.m.
House - and Commercial building for sale € 2 590 000
04159 Leipzig, Germany
1 327 m²
€ 5 000Profi-Gastronom gesucht! Renovierte Kantine/Catering im ca. 54.000 m² Gewerbe-Ensemble neben "Sachsen-Park"
Other lodging establishments for rent € 5 000
04356 Leipzig, Germany
556 m²
€ 5 115Moderne und offen gestaltete Bürofläche in Zentrum-Süd in TOP-Lage
Office space for rent € 5 115
04107 Leipzig, Germany
330 m² 4
€ 5 610Moderne und offen gestaltete Bürofläche in Zentrum-Süd in TOP-Lage
Office space for rent € 5 610
04107 Leipzig, Germany
330 m² 7
€ 2 300Pfeilerfreie Halle mit Rolltor, Lager, Büro, Teeküche, Umkleide, WC, Dusche & Freifläche, Nähe A38
Various for rent € 2 300
04683 Belgershain, Germany
390 m²
€ 3 980 000Ca. 10.384 m² großes Gewerbe Baugrundstück in Wiederitzsch, nahe der "Neuen Messe" und A14
Industry plot for sale € 3 980 000
04158 Leipzig, Germany
10 384 m²
€ 2 738Büro-/ Produktions-/ Lagerfläche im Gewerbepark Wiedemar, Dachterrasse, Lastenaufzug mögl.
Office space for rent € 2 738
04509 Wiedemar, Germany
622 m²
Similar properties View all properties similar to this property →
Schönes Baugrundstück in Leipzig-Dölzig mit positiver Bauvoranfrage zu verkaufen
Wohngrundstück for sale € 199 000
04435 Schkeuditz, Germany
996 m²
€ 131 750Bauträgerfreie Grundstücke am "Freizeitbad Riff" direkt vom Eigentümer
Wohngrundstück for sale € 131 750
04651 Bad Lausick, Germany
775 m²
€ 210 000bauträgerfreies Grundstück in Güldengossa zwischen Markkleeberger und Störmthaler See zu verkaufen
Wohngrundstück for sale € 210 000
04463 Großpösna, Germany
682 m²
€ 177 990Bauträgerfreie Grundstücke am "Freizeitbad Riff" direkt vom Eigentümer
Wohngrundstück for sale € 177 990
04651 Bad Lausick, Germany
1 047 m²
