Tolle Kombi - 1 Industriehalle mit Kranbahn + 2 gr. Rolltore + 2 Warmlager + 3 Büro's + Freifläche
Overview
Inside
Limitations & Requirements
Energy
Prices
Property description
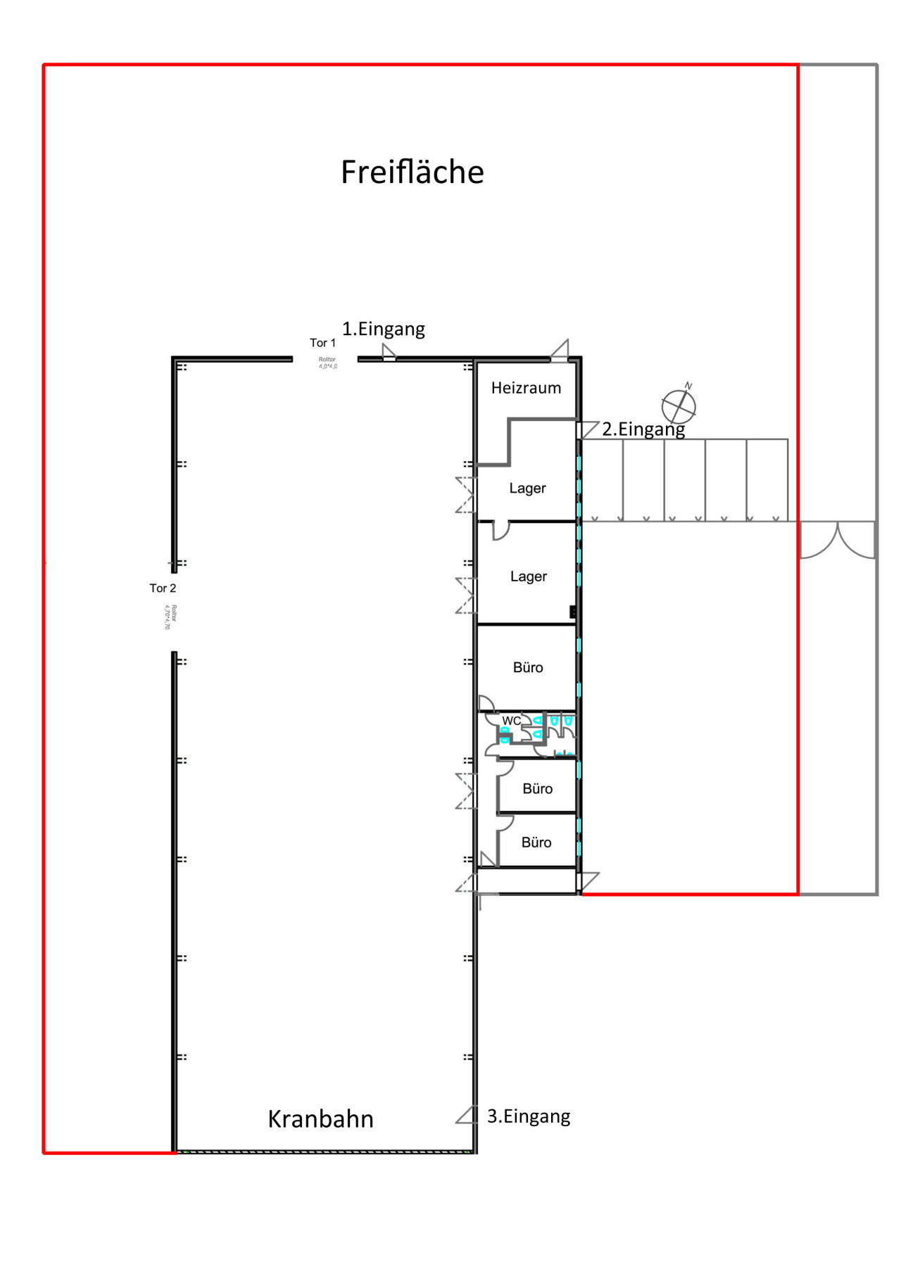
Bei der zur Miete stehenden Immobilie handelt es sich um eine geräumige Industriehalle mit 2 großen Rolltoren, Warmlager, Büroräumen und Freifläche.
Die Freifläche bietet bis 1.500 m² Fläche (eingezeichnet im Lageplan). Benötigte Fläche können für einen Mietpreis von 1€/m² angemietet werden.
Die Halle selbst beeindruckt durch ihre solide Bauweise und bietet vielfältige Nutzungsmöglichkeiten für Unternehmen verschiedenster Branchen.
Die Räumlichkeiten der Industriehalle sind äußerst vielseitig gestaltet. Eine großzügige Hauptfläche (ca. 867 m²) eignet sich ideal für Produktions- oder Lagerzwecke. Des Weiteren sind separate Büroräume vorhanden, die als Verwaltungszentrale oder Besprechungsräume genutzt werden können.
Eine zusätzliche Freifläche (ab ca. 500 - 1.500 m²) bietet die Möglichkeit zur Lagerung von Materialien, zur Anlieferung von Waren, oder abstellen von PKW`s/LKW`s.
Die Immobilie befindet sich in einem Gewerbegebiet, die eine sehr gute Anbindung an die Autobahn A38 und öffentliche Verkehrsmittel gewährleistet.
Diese Industriehalle mit Freifläche bietet ideale Voraussetzungen für Unternehmen auf der Suche nach einem modernen und flexiblen Standort für ihre geschäftlichen Aktivitäten.
Equipment
- 1 pfeilerfreie Industriehalle
- 3 Büroräume
- 2 Warmlagerräume
- bis ca. 1.500 m² Freifläche (à 1,00 €/m²) anmietbar für z.B. Stellplätze
- 2 gr. neue elektr. Rolltore (07/2025)
- Starkstrom liegt an
- Erdgas liegt an
Industriehalle:
- ca. 867 m²
- pfeilerfrei
- ca. 9 m hoch
- Betonboden
- alte Gasheizstrahler sind derzeit deaktiviert
- 2 Rolltore (4,70 x 4,70 m + 4 x 4 m)
- neue LED-Deckenlampen (2025)
- neue elektr. Rolltore (2025)
- Deckenkranbahn mit 5t Traglast (2025)
- Rangierfläche vor Halle
- Zugang von Halle aus in die Büro- & Warmlagerräume
- Starkstromdosen vorhanden
Warmlager:
- ca. 62 m²
- 2 Räume
- ca. 2,90 m Raumhöhe
- Betonboden
- Zugang von Straße und Halle mögl.
- Fenster und Heizkörper vorhanden
Büro:
- ca. 68 m²
- 3 Räume
- 2019 neue Fenster
- 2019 Renovierung
- bis ca. 2,85 m Raumhöhe
- Laminatboden
- LED-Deckenlampen
- insges. 4 WCs + 2 Urinale
- Zugang über die Halle und von der Straße aus mögl.
Location
Die Immobilie befindet sich in einem Gewerbegebiet in Hartmannsdorf-Knautnaundorf und ist ein Stadtteil im Stadtbezirk Südwest von Leipzig.
Hartmannsdorf-Knautnaundorf liegt im äußersten Südwesten des Leipziger Stadtgebiets, etwa 10 Km vom Stadtkern entfernt.
Die "Erikenbrücke", eine Fuß- und Radwegbrücke, verbindet Hartmannsdorf und Knauthain mit der Region am Nordwestufer des Zwenkauer Sees.
Südwestlich von Hartmannsdorf, in ca. 1,5 km Entfernung, führt direkt die Autobahn A38, von der aus man den Ort über die Anschlussstelle Leipzig-Südwest erreichen kann.
Anschluss an das Leipziger Nahverkehrsnetz besteht über die Buslinie Nr. 63 der LVB.
Die nächste Bahnhof-Station ist in Knauthain.
Various
Die von uns gemachten Angaben haben wir nach bestem Wissen und Gewissen nach Informationen des Vermieters/Verkäufers und den uns übergebenen Informationen zusammengestellt. Eine Gewähr für diese Angaben können wir nicht übernehmen. Wichtige Zahlen und Informationen sind am Objekt zu überprüfen. Zwischenvermietung/Verkauf bleibt vorbehalten.
04249 Leipzig, Germany
Facebook comments
Last broker properties View all broker properties →
EFH mit gr. GS und rundum grünen Blick! Garage, Terrasse, Balkon, Keller, DG-Reserve u.v.m.
One family house for sale € 535 000
04746 Hartha, Germany
140 m² 5
€ 975 000Freistehendes MFH in grüner Lage, 12 WE, Dachreserve, gr. Grundstück
Multi-family house for sale € 975 000
04838 Jesewitz, Germany
708 m²
€ 750 000Alles in Einem! Halle für Produktion/Lager + gr. GS + Freifläche + Wohn - oder Bürogebäude
Various for sale € 750 000
04683 Belgershain, Germany
1 600 m²
€ 5 200 000Ca. 67.800 m² unerschlossenes Baugrundstück für Wohnen, B-Plan vorhanden
Wohngrundstück for sale € 5 200 000
06132 Halle (Saale), Germany
67 800 m²
€ 9 000Große Ladenfläche direkt auf der beliebten "Karli" + Büro & Sozialräume, inkl. 41 m² Lager, TG-SP mgl.
Shop for rent € 9 000
04107 Leipzig, Germany
532 m² 5
€ 2 590 000Saniertes & gepflegtes Wohn- und Geschäftshaus in Möckern mit 11 WE, 5 GE, Balkone u.v.m.
House - and Commercial building for sale € 2 590 000
04159 Leipzig, Germany
1 327 m²
€ 5 000Profi-Gastronom gesucht! Renovierte Kantine/Catering im ca. 54.000 m² Gewerbe-Ensemble neben "Sachsen-Park"
Other lodging establishments for rent € 5 000
04356 Leipzig, Germany
556 m²
€ 5 115Moderne und offen gestaltete Bürofläche in Zentrum-Süd in TOP-Lage
Office space for rent € 5 115
04107 Leipzig, Germany
330 m² 4
€ 5 610Moderne und offen gestaltete Bürofläche in Zentrum-Süd in TOP-Lage
Office space for rent € 5 610
04107 Leipzig, Germany
330 m² 7
€ 2 300Pfeilerfreie Halle mit Rolltor, Lager, Büro, Teeküche, Umkleide, WC, Dusche & Freifläche, Nähe A38
Various for rent € 2 300
04683 Belgershain, Germany
390 m²
€ 3 980 000Ca. 10.384 m² großes Gewerbe Baugrundstück in Wiederitzsch, nahe der "Neuen Messe" und A14
Industry plot for sale € 3 980 000
04158 Leipzig, Germany
10 384 m²
€ 2 738Büro-/ Produktions-/ Lagerfläche im Gewerbepark Wiedemar, Dachterrasse, Lastenaufzug mögl.
Office space for rent € 2 738
04509 Wiedemar, Germany
622 m²
Similar properties View all properties similar to this property →
Warmhalle im Gewerbegebiet Wachau, Büro, Lager, Produktion u.a., Rolltore, 12 SP mgl.
Various for rent € 6 435
04416 Markkleeberg, Germany
1 170 m²
Gewerbefläche in Leipzigs Top-Gewerbelage! Neubau-Lagerhalle ab 1.000 - 20.000 m² mgl., Freifl. mgl.
Various for rent
04319 Leipzig, Germany
20 000 m²
Frei- und Lagerflächen im Gewerbepark Pegau zu vermieten
Industry plot for rent
Carsdorfer Straße 24, 04523 Pegau, Sachsen, Germany
15 000 m²
