2 freist., pfeilerfreie Hallen in ruhiger Lage mit Büro-& Lagerebenen + ca. 2.500 m² Freifläche mgl.
Overview
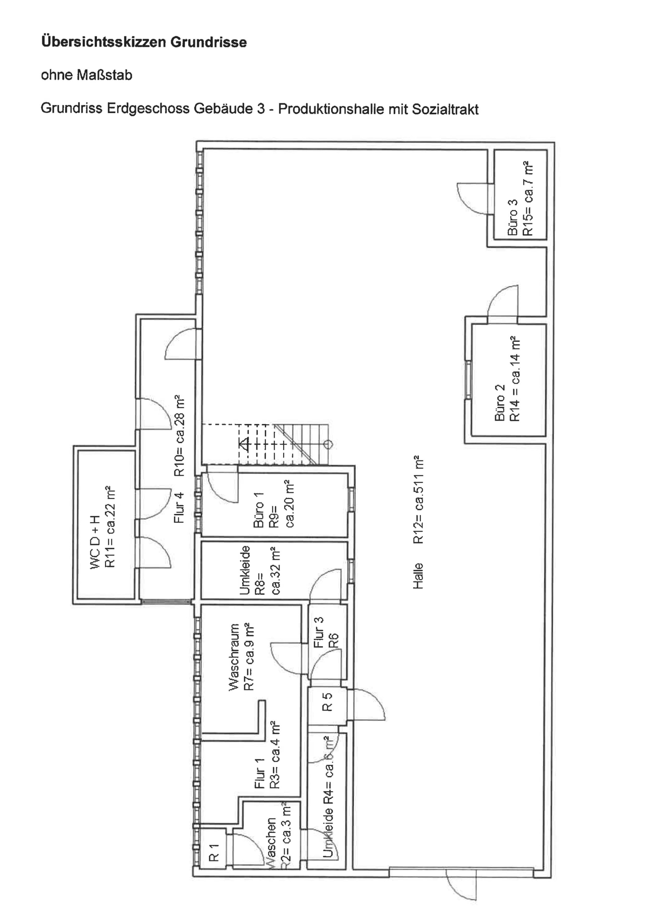
Inside
Limitations & Requirements
Energy
Prices
Property description
Bei dieser Immobilie handelt es sich um 2 pfeilerfreie, nebeneinander stehende Hallen mit Sanitäranlagen im EG und Büro-/Lagerflächen im OG in ruhiger Lage.
Die offene Gestaltung ermöglicht eine flexible Nutzung der Fläche und lässt Raum für kreative Konzepte.
Helle, gut beleuchtete Räume schaffen eine angenehme Arbeitsatmosphäre und bieten viel Platz für Lagerung/Produktion/Ausstellungen.
Ideal geeignet für:
- Produktion
- Kfz-Werkstatt
- Lagerhalle
- Onlinehandel
- Fitness
- Funsport
- Großhandel
Eine Grundriss- als auch Renovierungsänderung ist hier möglich und kann mit dem Vermieter abgestimmt werden. Anfallende Mehrkosten werden dann mit einem Mietaufschlag, abhängig von der Mietlaufzeit und den Kosten, berechnet.
Der angegebene Mietpreis bezieht sich auf den IST-ZUSTAND.
In den Nebenkosten sind lediglich die Grundsteuer und die Gebäudeversicherung enthalten. Alle anderen NK übernimmt der Mieter selbst!
Equipment
- eingezäuntes Grundstück
- 2 freistehende, nebeneinander liegende Hallen
- große Einfahrtstore
- Einbau von elektrischen Rolltor mgl.
- zum Teil renovierungsbedürftig
- deaktivierte Heizkörper vorhanden
- Gesamtfläche: ca. 1.634 m²
- ca. 7,50 bis 9 m Hallenhöhe
- in beiden Hallen jeweils eine 2. Ebene vorhanden
- Sozial-Büro-Lager-Sanitärtrakt jeweils im EG vorhanden
- ca. 31 m² Einzelgarage an Halle 3
- Fernwärmeanschluss in Halle 3 vorhanden, in Halle 4 mögl..
- ca. 2.500 m² Freifläche zum anmieten mgl.
Location
Die freistehenden Hallen befinden sich in Leipzig, im Stadtteil Dölitz.
Dölitz ist ein Stadtteil von Leipzig, der 1910 durch die Eingemeindung des Dorfes Dölitz entstand. Seit der kommunalen Neugliederung von Leipzig im Jahre 1992 bildet Dölitz mit Dösen den Ortsteil Dölitz-Dösen und liegt knapp 6 km südlich des Leipziger Stadtzentrums am östlichen Rand der Pleißenaue.
Die Anbindung an öffentliche Nahverkehrsmittel (Straßenbahn + Bus) befindet sich in ca. 500 m.
Zur B2 und A38 sind es 5 Autominuten.
In ca. 350 m befindet sich fußläufig der nä. Einkaufsmarkt.
In ca.150 m befindet sich der Erholungspark Lößnig-Dölitz mit dem beliebten kleinen und großen Silbersee.
In ca. 2 km befindet sich das Agra-Gelände.
Various
Die von uns gemachten Angaben haben wir nach bestem Wissen und Gewissen nach Informationen des Vermieters/Verkäufers und den uns übergebenen Informationen zusammengestellt. Eine Gewähr für diese Angaben können wir nicht übernehmen. Wichtige Zahlen und Informationen sind am Objekt zu überprüfen. Zwischenvermietung/Verkauf bleibt vorbehalten.
04279 Leipzig, Germany
Facebook comments
Last broker properties View all broker properties →
EFH mit gr. GS und rundum grünen Blick! Garage, Terrasse, Balkon, Keller, DG-Reserve u.v.m.
One family house for sale € 535 000
04746 Hartha, Germany
140 m² 5
€ 975 000Freistehendes MFH in grüner Lage, 12 WE, Dachreserve, gr. Grundstück
Multi-family house for sale € 975 000
04838 Jesewitz, Germany
708 m²
€ 750 000Alles in Einem! Halle für Produktion/Lager + gr. GS + Freifläche + Wohn - oder Bürogebäude
Various for sale € 750 000
04683 Belgershain, Germany
1 600 m²
€ 5 200 000Ca. 67.800 m² unerschlossenes Baugrundstück für Wohnen, B-Plan vorhanden
Wohngrundstück for sale € 5 200 000
06132 Halle (Saale), Germany
67 800 m²
€ 9 000Große Ladenfläche direkt auf der beliebten "Karli" + Büro & Sozialräume, inkl. 41 m² Lager, TG-SP mgl.
Shop for rent € 9 000
04107 Leipzig, Germany
532 m² 5
€ 2 590 000Saniertes & gepflegtes Wohn- und Geschäftshaus in Möckern mit 11 WE, 5 GE, Balkone u.v.m.
House - and Commercial building for sale € 2 590 000
04159 Leipzig, Germany
1 327 m²
€ 5 000Profi-Gastronom gesucht! Renovierte Kantine/Catering im ca. 54.000 m² Gewerbe-Ensemble neben "Sachsen-Park"
Other lodging establishments for rent € 5 000
04356 Leipzig, Germany
556 m²
€ 5 115Moderne und offen gestaltete Bürofläche in Zentrum-Süd in TOP-Lage
Office space for rent € 5 115
04107 Leipzig, Germany
330 m² 4
€ 5 610Moderne und offen gestaltete Bürofläche in Zentrum-Süd in TOP-Lage
Office space for rent € 5 610
04107 Leipzig, Germany
330 m² 7
€ 2 300Pfeilerfreie Halle mit Rolltor, Lager, Büro, Teeküche, Umkleide, WC, Dusche & Freifläche, Nähe A38
Various for rent € 2 300
04683 Belgershain, Germany
390 m²
€ 3 980 000Ca. 10.384 m² großes Gewerbe Baugrundstück in Wiederitzsch, nahe der "Neuen Messe" und A14
Industry plot for sale € 3 980 000
04158 Leipzig, Germany
10 384 m²
€ 2 738Büro-/ Produktions-/ Lagerfläche im Gewerbepark Wiedemar, Dachterrasse, Lastenaufzug mögl.
Office space for rent € 2 738
04509 Wiedemar, Germany
622 m²
