Einfamilienhaus in zentraler ruhiger Lage von Zwenkau mit Doppelgarage zu verkaufen
Overview
Inside
Outside
Energy
Prices
Property description
Dieses Einfamilienhaus befindet sich in einer sehr ruhigen Sackgasse von Zwenkau und eignet sich ideal für Eigennutzer, die eine entspannte Wohnumgebung schätzen und ein Haus mit Gestaltungspotenzial suchen.
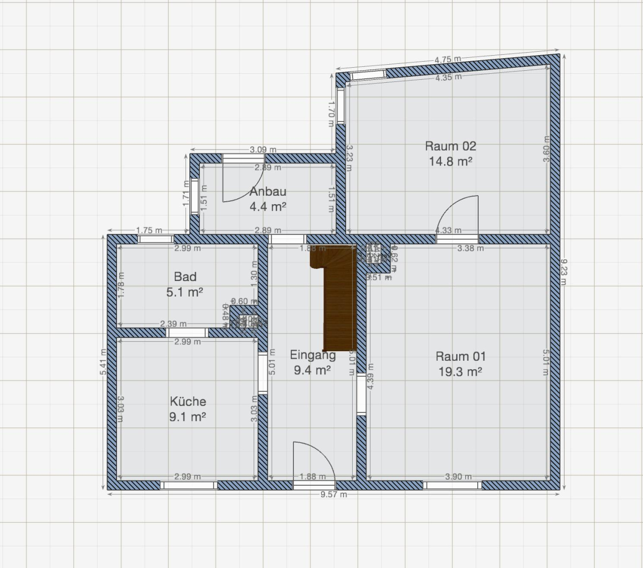
Auf ca. 100 m² Wohnfläche verteilen sich 5,5 Zimmer, die dank der zwei Vollgeschosse gut nutzbar sind. Ein Dachboden bietet zusätzlichen Stauraum.
Das Eckgrundstück mit 304 m² ist überschaubar und pflegeleicht. Aktuell befinden sich mehrere kleine Gartenhäuser auf dem Grundstück – ideal als Stauraum oder für Hobby und Garten. Zwei Garagen runden das Angebot ab und bieten Platz für Fahrzeuge, Fahrräder oder eine kleine Werkstatt.
Innen verfügt das Haus über ein Badezimmer sowie ein separates WC. Die Erdgeschossfenster sind mit Rollläden ausgestattet. Das Ziegeldach sowie Fenster und Fassade wurden in den 80er/90er Jahren erneuert.
Da es keine zentrale Heizungsanlage gibt, wurde bisher über zwei Öfen geheizt. Die zwei Schornsteine wurden regelmäßig vom Schornsteinfeger abgenommen.
Bitte beachten Sie: Das Haus ist sanierungsbedürftig und erfordert Modernisierungsmaßnahmen, insbesondere in den Bereichen Haustechnik, Elektrik und Heizsystem. Dies eröffnet Käufern jedoch die Möglichkeit, ein individuelles, modernes Heiz- und Wohnkonzept umzusetzen und das Haus nach eigenen Vorstellungen zu gestalten.
Equipment
- 2 Garagen
- 2 Öfen
- Fenster unten mit Rollläden
Location
Zwenkau liegt im Süden von Leipzig und ist eine aufstrebende Kleinstadt mit hervorragender Infrastruktur und vielseitigen Freizeitmöglichkeiten.
Die Stadt bietet eine gut ausgebaute Infrastruktur mit zahlreichen Einkaufsmöglichkeiten, Supermärkten, Apotheken und Dienstleistungsangeboten. Für den täglichen Bedarf stehen sowohl größere Handelsketten als auch kleinere Fachgeschäfte zur Verfügung. Die Nähe zur B2 und die schnelle Erreichbarkeit der A38 machen Zwenkau besonders attraktiv für Pendler nach Leipzig und in die umliegenden Städte. Zwenkau ist durch Buslinien an den öffentlichen Nahverkehr angebunden und bietet eine gute Verbindung nach Leipzig sowie in die umliegenden Orte. Mit dem Auto erreichen Sie Leipzig in nur etwa 20 Minuten.
Die Stadt verfügt über ein umfassendes Bildungsangebot:
Kindertagesstätten: Mehrere moderne Kitas bieten Betreuung für die Kleinsten.
Schulen: Die Stadt beherbergt Grundschulen, eine Oberschule und ist gut an weiterführende Schulen in der Region angebunden.
Freizeit und Vereine
Zwenkau ist bekannt für sein aktives Vereinsleben. Ob Sport, Kultur oder soziale Engagements – hier findet jeder eine passende Freizeitgestaltung. Der nahegelegene Zwenkauer See bietet zusätzlich vielfältige Möglichkeiten für Wassersport, Erholung und Naturerlebnisse.
Die Kombination aus idyllischer Lage, urbaner Nähe und attraktiven Freizeitmöglichkeiten macht Zwenkau zu einem beliebten Wohnort für Familien, Berufstätige und Ruhesuchende gleichermaßen.
Various
Dieses Objekt wurde durch unseren hauseigenen Baufinanzierungspartner Prometheus Capital GmbH geprüft. Sichern Sie sich günstige Konditionen und eine umfassende Begleitung Ihrer Finanzierung.
Gern unterbreiten wir in einem kostenfreien Gespräch einen individuellen Finanzierungsvorschlag.
Hohe Zinsen müssen nicht sein ! Aktuell gibt es verschiedene Fördermöglichkeiten über die Kreditanstalt für Wiederaufbau (KfW) oder der Sächsischen Aufbaubank (SAB). Gern können wir Sie dazu beraten.
HAFTUNG:
Die von uns gemachten Angaben haben wir nach bestem Wissen und Gewissen nach Informationen des Verkäufers und den uns übergebenen Unterlagen zusammengestellt. Eine Gewähr für diese Angaben können wir nicht übernehmen. Wichtige Zahlen und Informationen sind am Objekt zu überprüfen. Ein Zwischenverkauf bleibt vorbehalten.
UNSER SERVICE:
Planen Sie den Verkauf Ihrer Immobilie, so ist es wichtig deren Marktwert zu kennen. Lassen Sie kostenfrei und unverbindlich den aktuellen Wert Ihrer Immobilie durch einen unserer Immobilienspezialisten einschätzen. Sprechen Sie uns an und wir stehen Ihnen beratend zur Seite.
04442 Zwenkau, Germany
Facebook comments
Last broker properties View all broker properties →
Top Mietrendite und Steuervorteil für Kapitalanleger oder Eigennutzer mit Denkmal-Afa in Grimma
Wohnung for sale € 299 630
04668 Grimma, Germany
117 m² 3 2 1
€ 996Erstbezug 3-Raum-Wohnung mit großem Balkon und Stellplatz in Grimma zu vermieten.
Attic apartment for rent € 996
04668 Grimma, Germany
83 m² 3 2 1
€ 480Erstbezug 2-Raum-Wohnung mit Balkon und Stellplatz in Grimma zu vermieten
Attic apartment for rent € 480
04668 Grimma, Germany
40 m² 2 1 1
€ 83 000Schöne 2-Raum Eigentumswohnung Hochparterre + Stellplatz in Zwenkau Nähe See zu verkaufen.
Various for sale € 83 000
04442 Zwenkau, Germany
45 m² 2 1 1
€ 158 000Schicke große 3-Raum Ferienwohnung mit Balkon möbliert in Zwenkau nähe See zu verkaufen.
Wohnung for sale € 158 000
04442 Zwenkau, Germany
59 m² 3 2 1
€ 122 000Etablierte möblierte Ferienwohnung 2-Raum in Zwenkau nähe See zu verkaufen.
Wohnung for sale € 122 000
04442 Zwenkau, Germany
46 m² 2 1 1
€ 395 000Tolles Einfamilienhaus mit Garage, Klima und neuer Heizung in Leipzig - Rückmarsdorf zu verkaufen
One family house for sale € 395 000
04178 Leipzig, Germany
140 m² 6 4 2
€ 199 000Schönes Baugrundstück in Leipzig-Dölzig mit positiver Bauvoranfrage zu verkaufen
Wohngrundstück for sale € 199 000
04435 Schkeuditz, Germany
996 m²
Gewerbegrundstück im Süden von Leipzig direkt vom Eigentümer zu verkaufen
Industry plot for sale
Carsdorfer Straße 24, 04523 Pegau, Sachsen, Germany
15 000 m²
€ 280 000Zwei attraktive möblierte Ferienwohnungen mit Genehmigung in Seenähe in Zwenkau zu verkaufen
Wohnung for sale € 280 000
04442 Zwenkau, Germany
105 m² 5 4 2
€ 390 000Einfamilienhaus + Nebenhaus perfekt zum Generationswohnen in Zwenkau in Seenähe zu verkaufen
One family house for sale € 390 000
04442 Zwenkau, Germany
265 m² 6 5 2
Baugrundstück für Wohnungsgeschossbau mit Baurecht in Brandis bei Leipzig direkt vom Eigentümer
Wohngrundstück for sale
04821 Brandis, Germany
12 500 m²
Similar properties View all properties similar to this property →
Reihenmittelhaus mit Potential direkt am Park in Mutzschen
Row middle house for sale € 155 000
04688 Grimma, Germany
180 m² 9 3
€ 150 000Tolles Stadthaus mit Garage und Zufahrt - auch Generationswohnen möglich - in Groitzsch zu verkaufen
Row middle house for sale € 150 000
04539 Groitzsch, Germany
182 m² 9 8 4
