Großzügige Ladenfläche in TOP Lage im beliebten Waldstraßenviertel!
Overview
Inside
Limitations & Requirements
Energy
Prices
Property description
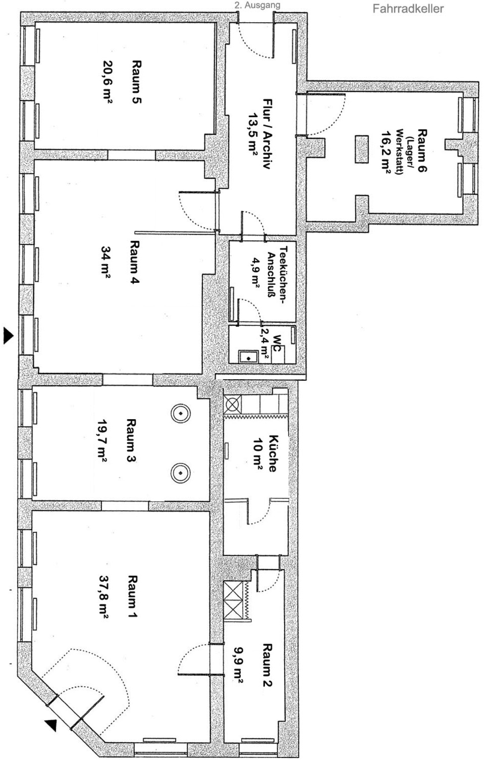
Diese tolle Gewerbeeinheit beinhaltet 6 Räume und befindet sich in sehr beliebter Lage - im Waldstraßenviertel von Leipzig.
Hier haben Sie freie Hand:
Für Ihre Ladenfläche oder auch für eine Praxis, ein Büro, etc...
Es gibt neben den Verkaufsflächen auch Büroräume, ein Lager, eine EBK, 1 extra Teeküchenanschluss, 1 WC u.v.a.m..
Ein 2. WC oder Dusche wäre mit einem Umbau möglich.
Eine Grundriss- als auch Ausstattungsänderung ist hier möglich und kann mit dem Vermieter abgestimmt werden. Anfallende Mehrkosten oder Mietaufschlag sind dadurch möglich und abhängig von der Mietlaufzeit und den Kosten.
Ideal für:
- Ladengeschäft
- kleiner Einzelhandel
- Büro
- IT
- Praxis
- Produktion
- Personal Training
Equipment
- kernsanierter Altbau
- Sanierung: 1999
- ca. 169 m²
- 6 Räume
- Boden: Fliesen und Laminat
- inkl. 1 Einbauküche
- 1 Teeküchenanschluss
- 1 WC (2. WC + Dusche möglich)
- schmiedeeisern vergitterte Fenster (zusätzlicher Einbruchschutz)
- Gewölbedecke
- ca. 2,60 m Raumhöhe
- Gaszentralheizung
- sep. Müllraum
- 2. Ausgang zum Fahrradkeller
- Innenhofnutzung möglich
Location
Die angebotene Gewerbeeinheit befindet sich im beliebten Leipziger Waldstraßenviertel.
Das Waldstraßenviertel ist ein Wohngebiet der Stadt Leipzig nordwestlich der Innenstadt. Diese Viertel ist eine sehr bevorzugte Wohngegend. Imposante Villen zieren dieses Stadtgebiet und kennzeichnen die gehobene Wohnlage. Es gilt als eines der größten geschlossen erhaltenen Gründerzeitviertel und genießt als Flächenarchitekturdenkmal besonderen Schutz.
In unmittelbarer Nähe befinden sich die Quarterbeck Arena, das Red-Bull-Stadion, das Schreberbad, diverse Einkaufsmöglichkeiten, Banken, Ärzte, Schulen und Restaurants.
Zur Naherholung oder zur sportlichen Betätigung liegt das Rosental in unmittelbarer Nähe (ca. 300 m) und auch den Leipziger Zoo erreichen Sie in nur wenigen Minuten. Weiterhin bietet die Wohngegend durch Ihre Citynähe eine Vielzahl von Einkaufsmöglichkeiten, Restaurants, Imbissen etc..
Die Leipziger Innenstadt und der Hauptbahnhof sind in nur wenigen Minuten zu Fuß oder mit den öffentlichen Nahverkehrsmitteln erreichbar. Auch zur Universität Leipzig brauchen sie nur ca. 10 Minuten mit der Straßenbahn.
Die Verkehrsanbindung über die Waldstraße und die Jahnallee ist hervorragend.
Various
Die von uns gemachten Angaben haben wir nach bestem Wissen und Gewissen nach Informationen des Vermieters/Verkäufers und den uns übergebenen Informationen zusammengestellt. Eine Gewähr für diese Angaben können wir nicht übernehmen. Wichtige Zahlen und Informationen sind am Objekt zu überprüfen.
Zwischenvermietung/Verkauf bleibt vorbehalten.
04105 Leipzig, Germany
Facebook comments
Last broker properties View all broker properties →
EFH mit gr. GS und rundum grünen Blick! Garage, Terrasse, Balkon, Keller, DG-Reserve u.v.m.
One family house for sale € 535 000
04746 Hartha, Germany
140 m² 5
€ 975 000Freistehendes MFH in grüner Lage, 12 WE, Dachreserve, gr. Grundstück
Multi-family house for sale € 975 000
04838 Jesewitz, Germany
708 m²
€ 750 000Alles in Einem! Halle für Produktion/Lager + gr. GS + Freifläche + Wohn - oder Bürogebäude
Various for sale € 750 000
04683 Belgershain, Germany
1 600 m²
€ 5 200 000Ca. 67.800 m² unerschlossenes Baugrundstück für Wohnen, B-Plan vorhanden
Wohngrundstück for sale € 5 200 000
06132 Halle (Saale), Germany
67 800 m²
€ 9 000Große Ladenfläche direkt auf der beliebten "Karli" + Büro & Sozialräume, inkl. 41 m² Lager, TG-SP mgl.
Shop for rent € 9 000
04107 Leipzig, Germany
532 m² 5
€ 2 590 000Saniertes & gepflegtes Wohn- und Geschäftshaus in Möckern mit 11 WE, 5 GE, Balkone u.v.m.
House - and Commercial building for sale € 2 590 000
04159 Leipzig, Germany
1 327 m²
€ 5 000Profi-Gastronom gesucht! Renovierte Kantine/Catering im ca. 54.000 m² Gewerbe-Ensemble neben "Sachsen-Park"
Other lodging establishments for rent € 5 000
04356 Leipzig, Germany
556 m²
€ 5 115Moderne und offen gestaltete Bürofläche in Zentrum-Süd in TOP-Lage
Office space for rent € 5 115
04107 Leipzig, Germany
330 m² 4
€ 5 610Moderne und offen gestaltete Bürofläche in Zentrum-Süd in TOP-Lage
Office space for rent € 5 610
04107 Leipzig, Germany
330 m² 7
€ 2 300Pfeilerfreie Halle mit Rolltor, Lager, Büro, Teeküche, Umkleide, WC, Dusche & Freifläche, Nähe A38
Various for rent € 2 300
04683 Belgershain, Germany
390 m²
€ 3 980 000Ca. 10.384 m² großes Gewerbe Baugrundstück in Wiederitzsch, nahe der "Neuen Messe" und A14
Industry plot for sale € 3 980 000
04158 Leipzig, Germany
10 384 m²
€ 2 738Büro-/ Produktions-/ Lagerfläche im Gewerbepark Wiedemar, Dachterrasse, Lastenaufzug mögl.
Office space for rent € 2 738
04509 Wiedemar, Germany
622 m²
Similar properties View all properties similar to this property →
Große, helle Büro-, Schulungs-, Ausstellungs- & Lagerfläche in Wiedemar, TG mgl.
Office space for rent € 3 350
04509 Wiedemar, Germany
613 m² 6
€ 2 495Großzügige Büro-/Praxis- oder Ladenfläche in TOP Lage im Waldstraßenviertel
Office space for rent € 2 495
04105 Leipzig, Germany
169 m² 6
€ 2 7102025 frisch saniert! Freist. Haus mit 8 Räumen, Keller, Blk., Terrasse, Garage, Carport, und gr. GS
Office building for rent € 2 710
04463 Großpösna, Germany
218 m² 8
€ 1 900Repräsentative Büro-/Praxisfläche in einer sanierten Villa, 7 Räume, EBK + gr. Balkon
Office space for rent € 1 900
04668 Grimma, Germany
216 m² 7
€ 3 578Büro-/Produktions- & Werkstattfläche im EG einer freist. GE, Rolltor, Freilagerfläche mgl.
Office space for rent € 3 578
06130 Halle (Saale), Germany
303 m² 7
€ 1 8503 Büroeinheiten oder Monteurwohnungen im Mischgebiet, SP mögl.
Office building for rent € 1 850
04129 Leipzig, Germany
315 m² 11
€ 3 490Lichtdurchflutete Büro-/Praxisfläche mit DT & Blick auf die Leipziger Innenstadt, Dusche, Lift, SP mgl.
Office space for rent € 3 490
04109 Leipzig, Germany
324 m² 10
