Schöne 1 – Raum mit Balkon in Glauchau-Niederlungwitz
Übersicht
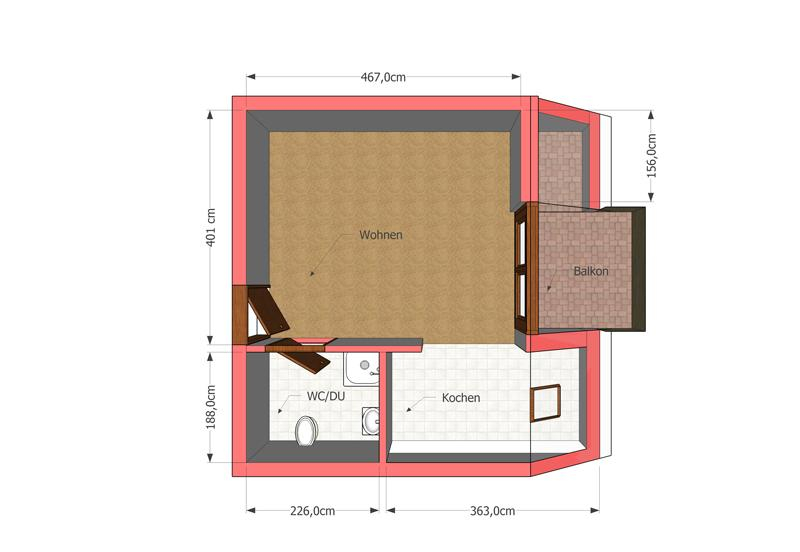
Innen
Aussen
Extras zum Objekt
Energie
Preise
Ausstattung
Laminat, renoviert, Bad mit Fenster, Balkon, Keller, Waschmaschinenraum.
Lage
Die Wohnung befindet sich in ländlicher ruhiger Umgebung im Wohngebiet Glauchau "Niederlungwitz", nur 5 Autominuten vom Stadtzentrum Glauchau entfernt. Durch die gute Verkehrsanbindung ist man in ca. 15 Min. in Zwickau und in 5 Min. auf der A4 nach Chemnitz, Dresden und Erfurt.
Niederlungwitz ist das letzte Dorf im Lungwitztal, ehe der Bach in die Zwickauer Mulde mündet. Das kleine Reihendorf ist in Glauchau eingemeindet. Zwischen den Orten liegt der Erzgebirgsausläufer "Rümpfwald", der sich bis nach Chemnitz hinzieht.
Niederlungwitz besitzt ein Gewerbegebiet, eine Grundschule und einen dazugehörigen Kindergarten. Des weiteren befindet sich im Ort ein Allgemeinmediziner, eine Zahnarztpraxis sowie einige Einkaufsmöglichkeiten.
Sonstiges
Weitere Informationen sowie Besichtigungstermine erhalten Sie bei Frau Kunz unter der Telefonnummer 0179-7075512.
Weitere Objekte finden Sie auf unserer Hompage: www.dh-immobilien-service.de
Alle Angaben in diesem Exposé wurden sorgfältig und so vollständig wie möglich erstellt. Die Angaben sind ohne Gewähr und basieren ausschließlich auf Informationen, die von unserem Auftraggeber zur Verfügung gestellt wurden. Wir übernehmen keine Gewähr für die Vollständigkeit, Richtigkeit und Aktualität dieser Angaben. Maßgeblich sind die im Mietvertrag geschlossenen Vereinbarungen. Soweit die Grundrissgrafiken Maßangaben und Einrichtungen enthalten, wird auch für diese jegliche Haftung ausgeschlossen. Mietpreisänderungen bleiben vorbehalten.
Louis-Lejeuné-Straße 2a, 08371 Glauchau, Germany
Meta
Weitere Objekte des Maklers Alle Objekte des Anbieters anzeigen →
Helle 2-Raum-Wohnung mit Tageslichtbad in zentraler Lage von Meerane!
Various zur Miete € 300
Amtsstraße 1, 08393 Meerane, Germany
52 m² 2 1 1
€ 33 000Helle 1-Raumwohnung mit Balkon und Einbauküche – ideal als Kapitalanlage oder Eigenheim
Various zu Verkauf € 33 000
Am Dorfanger 15, 08371 Glauchau, Germany
37 m² 1 1
€ 340Schöne 2 Raumwohnung in Meerane
Various zur Miete € 340
Amtsstraße 1, 08393 Meerane, Germany
58 m² 2 1 1
€ 55 000Helle, vermietete 2-Raum-Wohnung mit stilvollem Erker in Zwickau-Pölbitz
Various zu Verkauf € 55 000
Leipziger Straße 104, 08058 Zwickau, Germany
54 m² 2 1 1
€ 450Ihr neues Zuhause in Meerane – stilvolle 3-Raum-Wohnung mit Charme und moderner Ausstattung
Various zur Miete € 450
08393 Meerane, Germany
73 m² 3 1 1
€ 835Luxuriöse 4-Raum-Wohnung mit ca. 154 m², Whirl-Poolwanne & einem gepflegten Garten in zentraler Lage von Meerane
Various zur Miete € 835
Leipziger Straße 28, 08393 Meerane, Germany
155 m² 4 3 1
€ 75 000Langfristig vermietete 3-Raum-Wohnung in Glauchau als Kapitalanlage
Various zu Verkauf € 75 000
Louis-Lejeuné-Straße 1, 08371 Glauchau, Germany
79 m² 3 1 1
€ 68 000Vermietete 2 Raum Wohnung in ländlicher Umgebung
Dachgeschosswohnung zu Verkauf € 68 000
Akazienweg 7, 08371 Glauchau, Germany
57 m² 2 2 1
€ 25 000Für Eigennutzer oder Kapitalanleger - günstige 1 Raumwohnung mit EBK im EG
Various zu Verkauf € 25 000
Am Dorfanger 17, 08371 Glauchau, Germany
32 m² 1 1
€ 85 000Schöne 3-Raum-Dachgeschosswohnung zur Eigennutzung in Zentrumsnähe
Various zu Verkauf € 85 000
08056 Zwickau, Germany
77 m² 3 2 1
€ 60 000Süßes kleines Häuschen mit sehr viel Potenzial, sucht nach neuen Eigentümern
Reihenmittelhaus zu Verkauf € 60 000
Obersteig 18 Array, 08371 Glauchau, Germany
65 m² 5 2 1
€ 425Schöne Ladeneinheit in der Fußgängerzone in Glauchau
Ladenlokal zur Miete € 425
Leipziger Straße 76, 08371 Glauchau, Germany
84 m²
Ähnliche Objekte Ähnliche Angebote zu dieser Immobilie →
Gemütliche 1 Raumwohnung mit EBK im schönen Wohngebiet Niederlungwitz
Various zur Miete € 190
Louis-Lejeuné-Straße 2, 08371 Glauchau, Germany
32 m² 1 1
€ 260Helle 2,5-Raum-Wohnung mit ca. 68 m² im 2. Obergeschoss in Glauchau
Various zur Miete € 260
Dietrich-Bonhoeffer-Straße 3, 08371 Glauchau, Germany
68 m² 2 1 1
€ 230Helle 1 Raumwohnung im 1. OG mit Balkon und EKB
Various zur Miete € 230
Am Dorfanger 17, 08371 Glauchau, Germany
37 m² 1 1
€ 200Schöne kleine 1-Raum-Wohnung im DG in Zwickau-Pölbitz
Various zur Miete € 200
Leipziger Straße 104, 08058 Zwickau, Germany
34 m² 1 1
€ 230Nette kleine Wohnung für Singles oder junge Paare
Dachgeschosswohnung zur Miete € 230
07973 Greiz, Germany
40 m² 2
€ 230Preiswert Wohnen in Richtung Irchwitz
Dachgeschosswohnung zur Miete € 230
Beethovenstraße 9, 07973 Greiz, Thüringen, Germany
42 m² 2
€ 230Zweiraumwohnung mit Balkon in Richtung Pohlitz
Erdgeschosswohnung zur Miete € 230
Wettengelstraße 8, 07973 Greiz, Thüringen, Germany
41 m² 2
€ 230Singlewohnung mit Einbauküche und Parkblick
Erdgeschosswohnung zur Miete € 230
Leonhardtstraße 2, 07973 Greiz, Thüringen, Germany
45 m² 2
€ 230Singlewohnung in Mohlsdorf
Dachgeschosswohnung zur Miete € 230
Goethestraße 2C, 07987 Mohlsdorf-Teichwolframsdorf, Thüringen, Germany
33 m² 1
€ 280Wohnen zwischen zwei Einkaufsmärkten
Dachgeschosswohnung zur Miete € 280
August-Bebel-Straße 25, 07973 Greiz, Thüringen, Germany
49 m² 2
