Familienbungalow Ramerberg – Neubau mit KfW 55 Standard
Übersicht
Innen
Aussen
Extras zum Objekt
Preise
Objektbeschreibung
Willkommen in Ramerberg – einer Gemeinde, die für ihre naturnahe Umgebung und ein lebendiges Miteinander bekannt ist. Auf einem sonnigen Grundstück von ca. 421 m² entsteht hier Ihr neues Zuhause: ein projektiertes Einfamilienhaus, das modernes Wohnen, durchdachte Architektur und energieeffizientes Bauen vereint.
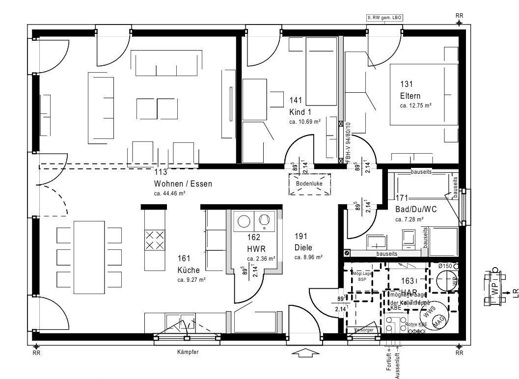
Der kompakte Bungalow-Stil bietet auf rund 103 m² Wohnfläche alles, was Familien oder Paare zum Wohlfühlen benötigen. Der großzügige Wohn- und Essbereich mit direktem Zugang in den Garten, ein Elternschlafzimmer, ein Kinderzimmer sowie Küche, Bad und zwei praktische Nebenräume schaffen ein kompaktes, funktionales Raumkonzept auf einer Ebene. Dank der Holzständerbauweise durch einen renommierten Fertighaushersteller profitieren Sie von Qualität „Made in Germany“ und hoher Flexibilität bei der Gestaltung.
Das Haus wird im Standard bereits als KfW-Effizienzhaus 55 ausgeführt und ist mit einer Luft-Wasser-Wärmepumpe, Fußbodenheizung im Erdgeschoss, dreifach verglasten Fenstern und einer kontrollierten Be- und Entlüftung mit Wärmerückgewinnung ausgestattet. So wohnen Sie nicht nur zukunftssicher, sondern auch besonders energieeffizient und kostensparend.
Entgegen der Bilder ist das Grundstück schon freigelegt worden.
Neben den Wohnflächen besteht auch die Möglichkeit ein komplettes Kellergeschoss mit ca. 111 m² Nutzfläche zusätzlich zu erwerben.
Die Baukosten für das Haus belaufen sich auf rund 304.000 €, hinzu kommen 239.000 € für das Grundstück. Die 3,57 % Maklerprovision gelten nur auf den Grundstücksanteil. Weitere Ausgaben wie Baunebenkosten, Erdarbeiten oder Hausanschlüsse sind separat zu berücksichtigen.
***Sie kaufen den Grundstücksanteil für 239.000 Euro. Außerdem wird ein Werkvertrag mit unserem renommierten Partner „Massa“ geschlossen, der das Haus zum Festpreis in der Ausbaustufe „fast schlüsselfertig plus“ anbietet. Lediglich Parkett, Innentüren und Malerarbeiten sind nicht im Angebot enthalten und können hinzugebucht werden. Übliche Baunebenkosten wie Anschlusskosten und Beiträge für die Gemeinde kommen zum angezeigten Preis noch hinzu. Lassen Sie sich gerne von uns beraten. Es ist außerdem möglich, das Grundstück ohne die Bauleistung von Massa zu erwerben, eine andere Ausbaustufe zu wählen oder alternativ einen anderen Hausbauer zu beauftragen.
Ausstattung
IHRE AUSSTATTUNG IM ÜBERBLICK:
- Projektiertes Einfamilienhaus in Holzständerbauweise (renommierter Fertighaushersteller)
- KfW-55-Effizienzhaus-Standard
- Errichtung auf Bodenplatte
- Luft-Wasser-Wärmepumpe mit Fußbodenheizung im Erdgeschoss
- Kontrollierte Be- und Entlüftung mit Wärmerückgewinnung
- Dreifach verglaste Markenfenster
- Massa-Klima-Plus-Wand mit hoher Wärme- und Schalldämmung
- Großzügiger Wohn-/Essbereich mit bodentiefen Fenstern und Gartenzugang
- Serienmäßig erhöhte Wände für großzügiges Raumgefühl
- Modernes Bad mit Dusche/WC + separates Gäste-WC
- Separater Hauswirtschaftsraum im Erdgeschoss
- Flexible Grundrissgestaltung möglich
- TÜV-geprüfte Markenqualität, 5 Jahre Gewährleistung
- Bauzeit mit Festpreisgarantie (ca. 15–21 Monate)
- Persönliche Bauleitung und individuelle Kundenbetreuung
- uvm.
Lage
RAMERBERG – DER GRÜNE ORT
Das wunderschön gelegene Ramerberg befindet sich im malerischen Atteltal, einem Zufluss des Inn. Die Gemeinde liegt zwischen Rott am Inn und Wasserburg am Inn und ist Mitglied der Verwaltungsgemeinschaft Rott am Inn.
Ramerberg ist nicht nur ein ausnehmend schöner, sondern auch ein geschichtsträchtiger Ort. Unweit der Kirche mit ihrem auffallend massiven und weithin sichtbaren Kirchturm liegen in einem Waldstück rund zehn Hügelgräber aus der Hallsteinzeit.
Zum Erholen laden in Ramerberg die Wege durch die Innauen und das dortige Naturschutzgebiet ein. Ebenso beliebt sind bei den Sportbegeisterten die Langlaufloipen des Wintersportvereines Zellerreit.
Mit der Eröffnung der Bahnstrecke Rosenheim–Mühldorf ist Ramerberg an das Bahnnetz durch die Buslinie 9416 an den Regionalverkehr Oberbayern angeschlossen. Die Buslinie verbindet den Ort mit Rosenheim, Rott am Inn, Pfaffing, Edling und Wasserburg am Inn.
Durch den vermehrten Zuzug aus der Metropolregion München wird auch die restliche Infrastruktur ständig weiterentwickelt. Dies betrifft die Betreuung für Kinder, Freizeit- und Sportangebote sowie Einkaufsmöglichkeiten.
Fußläufig ist ein sehr beliebter Gasthof zu erreichen und auch weitere Einrichtungen der Gastronomie sind mit dem Fahrrad erreichbar. Alle Geschäfte des täglichen Bedarfs sowie Schulen, Ärzte sind in der nur fünf Minuten entfernten Stadt Edling verfügbar.
Sonstiges
Wir freuen uns, Ihnen dieses Objekt bei einem Besichtigungstermin ausführlich vorzustellen. Aus rechtlichen Gründen bitten wir Sie, für Ihre erste Kontaktaufnahme mit uns das Kontaktformular des Portals zu nutzen, auf dem Sie diese Immobilie gefunden haben. Finestep bietet dieses Objekt provisionspflichtig zum Kauf an. Für die vom Eigentümer übernommenen Objektdaten übernimmt Finestep keine Gewähr in Bezug auf die Vollständigkeit, Richtigkeit und Aktualität dieser Informationen. Irrtum und Zwischenverkauf ist vorbehalten. Ist Ihnen das von Finestep nachgewiesene Objekt bereits bekannt, ist dies Finestep schriftlich spätestens innerhalb von fünf Werktagen unter Nennung der Quelle und des Nachweisdatums mitzuteilen. Sämtliche Unterschriften und Mitteilungen haben auch bei Übermittlung per Telefax und E-Mail Ihre Rechtsgültigkeit. Als Gerichtsstand wird München vereinbart sowie die Anwendung Deutschen Rechts. Alle Angaben nach bestem Wissen und nach Angabe des Verkäufers. Irrtum und Zwischenverkauf vorbehalten. Dieses Exposé ist eine Vorabinformation, als Rechtsgrundlage gilt allein der notariell abgeschlossene Kaufvertrag Finestep Immobilien GmbH Humboldtstr. 8 81543 München www.finestep.de
83561 Ramerberg, Germany
Meta
Weitere Objekte des Maklers Alle Objekte des Anbieters anzeigen →
Sanierungsbedürftige 4-Zimmer-Wohnung mit 2 Balkonen, TG-Stellplatz und großem Keller
Wohnung zu Verkauf € 1 066 000
81545 München / Harlaching, Germany
105 m² 5 3 1
€ 469 0003-Zimmer Panorama-Eckwohnung im 10. OG mit Alpenblick, Südbalkon & Tiefgarage am Ostpark
Wohnung zu Verkauf € 469 000
81735 München, Germany
87 m² 3 2 1
€ 420 000Sehr gut geschnittene 3-Zimmer-Wohnung mit Südbalkon & Tiefgarage
Wohnung zu Verkauf € 420 000
80935 München, Germany
71 m² 3 2 1
€ 320 000Renovierte 2-Zimmer Altbauwohnung - derzeit gut vermietet
Wohnung zu Verkauf € 320 000
80686 München, Germany
41 m² 2 1 1
€ 630 000Neubau im Zentrum von Grafing: ruhig, hochwertig, sofort bezugsbereit
Erdgeschosswohnung zu Verkauf € 630 000
Marktplatz 11d, 85567 Grafing bei München, Germany
74 m² 3 2 2
€ 495 000Bezugsfrei: Attraktive 4-Zimmerwohnung mit Blick ins Grüne - sehr guter Grundriss
Wohnung zu Verkauf € 495 000
Willibaldstraße 142, 80689 München, Germany
73 m² 4 3 1
€ 694 000Planen Sie jetzt Ihr neues Nest in den Bergen mit guter München Anbindung
Doppelhaushälfte zu Verkauf € 694 000
83098 Brannenburg / Degerndorf am Inn, Germany
132 m² 5
€ 694 000Planen Sie jetzt Ihr neues Nest in den Bergen mit guter München Anbindung
Doppelhaushälfte zu Verkauf € 694 000
83098 Brannenburg / Degerndorf am Inn, Germany
132 m² 5
€ 150 000Attraktives Ausbauobjekt: Stadl mit genehmigter Wohnraumschaffung
Reihenendhaus zu Verkauf € 150 000
83550 Emmering, Germany
181 m² 7
€ 199 100Exklusives Eckgrundstück: Baureifes Grundstück mit genehmigtem Hausprojekt
Wohngrundstück zu Verkauf € 199 100
83119 Obing, Germany
365 m²
€ 118 500Top-Lage im 3er-Ensemble: Baureifes Grundstück mit genehmigtem Hausprojekt
Wohngrundstück zu Verkauf € 118 500
83119 Obing, Germany
165 m²
€ 129 800Baureifes Grundstück mit genehmigtem Hausprojekt
Wohngrundstück zu Verkauf € 129 800
83119 Obing, Germany
172 m²
Ähnliche Objekte Ähnliche Angebote zu dieser Immobilie →
Planen Sie jetzt Ihr neues Nest in den Bergen mit guter München Anbindung
Doppelhaushälfte zu Verkauf € 694 000
83098 Brannenburg / Degerndorf am Inn, Germany
132 m² 5
€ 694 000Planen Sie jetzt Ihr neues Nest in den Bergen mit guter München Anbindung
Doppelhaushälfte zu Verkauf € 694 000
83098 Brannenburg / Degerndorf am Inn, Germany
132 m² 5
€ 150 000Attraktives Ausbauobjekt: Stadl mit genehmigter Wohnraumschaffung
Reihenendhaus zu Verkauf € 150 000
83550 Emmering, Germany
181 m² 7
€ 674 109Familientraum in Obing: Exklusive Neubau-DHH mit 179 m² Wohn-/ Nutzfläche
Doppelhaushälfte zu Verkauf € 674 109
83119 Obing, Germany
153 m² 5 3 1
€ 633 778Idyllisch & Modern: Neubau-Doppelhaushälfte am Tor zur Chiemgauer Seenplatte
Doppelhaushälfte zu Verkauf € 633 778
83119 Obing, Germany
153 m² 5 3 1
€ 599 225Top-Lage im 3er-Ensemble: Familienfreundliches Reihenendhaus in Obing/Frabertsham
Reihenendhaus zu Verkauf € 599 225
83119 Obing, Germany
165 m² 5 3 1
€ 582 436Qualität zum attraktiven Preis: Geräumiges Neubau-Reihenmittelhaus in Obing/Frabertsham
Reihenmittelhaus zu Verkauf € 582 436
83119 Obing, Germany
172 m² 5 3 1
€ 649 813Exklusives Eckgrundstück: Lichtdurchflutetes Neubau-Reihenendhaus in Obing
Various zu Verkauf € 649 813
83119 Obing, Germany
166 m² 5 3 1
€ 650 000Große und ruhig gelegene 4-Zimmer-Wohnung mit 2 Balkonen in Aschheim
Wohnung zu Verkauf € 650 000
85609 Aschheim, Germany
103 m² 4 2
€ 750 000Attraktives Wohn- und Geschäftshaus in Wasserburg
Reihenendhaus zu Verkauf € 750 000
83512 Wasserburg am Inn, Germany
225 m² 4
€ 469 000Ramerberg - KfW 40+ Neubau-Doppelhaushälfte
Reihenendhaus zu Verkauf € 469 000
83561 Ramerberg, Germany
110 m² 4 3 2
€ 500 239Modernes Effizienzhaus 55 – Bungalow mit ca. 1.090 m² Grundstück
Bungalow zu Verkauf € 500 239
84555 Jettenbach, Germany
105 m² 3 2 1
