Perfekte Wohnung in der Südstadt - für Anleger.
Übersicht
Aussen
Extras zum Objekt
Energie
Preise
Objektbeschreibung
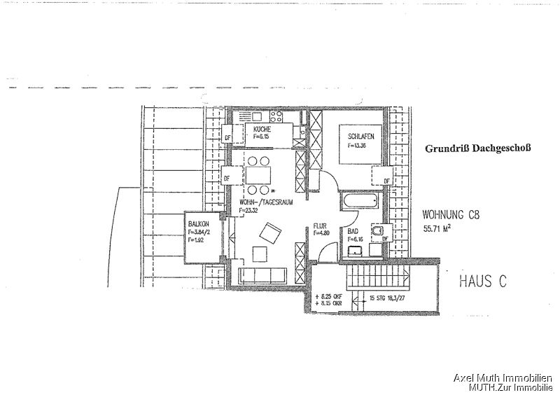
Diese gepflegte 2‑ Zimmer‑Eigentumswohnung mit Balkon in Eppingen ist genau das Richtige für dich, wenn du investieren und durch starten willst.
Das Haus wurde 2001 gebaut, umfasst vier Etagen.
Wichtig zu wissen ist, die Wohnung hat eine zuverlässige Mieterin.
In der Wohnung erwartet dich ein praktischer Grundriss - perfekt für Anleger!
Eine Wohnung, die nicht nur gepflegt ist, sondern auch langfristig Sinn ergibt – als solide Kapitalanlage.
Ausstattung
- schöner Grundriss
- Balkon
- Tiefgaragenstellplatz
- Gasheizung
Lage
Die angebotene Eigentumswohnung befindet sich in einer äußerst attraktiven Lage in Eppingen. Eppingen bietet eine harmonische Kombination aus historischem Baustil und modernem Leben. Die Wohnung liegt in einer beliebten Gegend, nur etwa einen Kilometer vom lebendigen Stadtzentrum entfernt, wo Sie eine Vielzahl an Einkaufsmöglichkeiten, Restaurants und kulturellen Einrichtungen finden.
Für Pendler und Reisende ist die Anbindung optimal: Die Autobahn ist in etwa 16 Kilometern erreichbar und ermöglicht eine schnelle Verbindung zu den umliegenden Städten und Regionen. Der öffentliche Nahverkehr ist ebenfalls hervorragend erschlossen. Eine Bushaltestelle befindet sich in unmittelbarer Nähe und bietet einfachen Zugang zum gesamten städtischen Verkehrsnetz.
Diese Wohnlage vereint die Vorzüge einer städtischen Infrastruktur mit der einer gewachsenen Wohngegend, ideal für alle, die eine zentrale und doch entspannte Umgebung suchen.
- Kindergarten
- Schulen
- Sportanlagen
- Hallenbad
- Natur
- Einkaufsmöglichkeiten ca. 500m
- Bahn ca. 500m
Hellbergstrasse 2, 75031 Eppingen, Germany
Meta
Weitere Objekte des Maklers Alle Objekte des Anbieters anzeigen →
Baulücke! Das passende Baugrundstück für Ihr Traumhaus
Wohngrundstück zu Verkauf € 165 000
Hebelstraße 13/1, 75050 Gemmingen / Stebbach, Germany
446 m²
€ 299 500Großzügige Doppelhaushälfte/Einzelhauscharakter
Doppelhaushälfte zu Verkauf € 299 500
Neue Bahnhofstrasse 13, 75056 Sulzfeld, Germany
152 m² 5 4 2
€ 129 000Supergünstige 3-Zimmer-Wohnung! Guter Zuschnitt, ruhige Lage, Stellplatz.
Wohnung zu Verkauf € 129 000
Adalbert-Stifter-Strasse 23, 75056 Sulzfeld, Baden-Württemberg, Germany
64 m² 3 1 1
€ 189 500Kapital anlegen oder Kaufen statt mieten?
Wohnung zu Verkauf € 189 500
Kaiser-Friedrich-Str. 94, 75172 Pforzheim, Germany
71 m² 3 1 1
€ 598 000Besichtigung Samstag, 14.03. 12.30 - 13.45 Uhr!!! NEU!!! Modern Wohnen: Einziehen & wohlfühlen
Einfamilienhaus zu Verkauf € 598 000
Neue Bahnhofstrasse 1, 75056 Sulzfeld, Germany
152 m² 5 2 1
€ 589 500Open House am Samstag, 14.03., 13.30h! Traum für die kleine Familie - Wohnen beim Zaberfelder See
Einfamilienhaus zu Verkauf € 589 500
Am Gottesacker 3, 74374 Zaberfeld, Baden-Württemberg, Germany
145 m² 7 4 1
€ 133 000Bauplatz - Ideal für die Bebauung mit einen Ein-Zweifamilienhaus.
Wohngrundstück zu Verkauf € 133 000
Unter der Steig, 75031 Eppingen / Mühlbach, Germany
424 m²
€ 469 000Gesucht, begehrt - ein bezauberndes Zuhause.
Zweifamilienhaus zu Verkauf € 469 000
Finkenweg 2, 75031 Eppingen, Germany
198 m² 8 6 2
€ 298 500Open House: Samstag,14.03. 10.00-10.30 Uhr Familienfreundlich wohnen mit eigenem Garten in Sinsheim
Wohnung zu Verkauf € 298 500
Steinsbergstrasse 9 e, 74889 Sinsheim, Germany
97 m² 5 3 1
€ 219 000Sonniges Baugrundstück in ruhigster Lage – ideale Basis für Ihr Wohntraum mit Garten.
Wohngrundstück zu Verkauf € 219 000
Fasanenweg 2, 75056 Sulzfeld, Germany
500 m²
€ 294 000Das Familiengrundstück für Ihr Traumhaus ohne Bauverpflichtung!
Wohngrundstück zu Verkauf € 294 000
Herrenäcker 6, 75031 Eppingen, Germany
963 m²
€ 155 000Familienfreundliche Baulücke ohne Bauverpflichtung
Wohngrundstück zu Verkauf € 155 000
Herrenäcker 6, 75031 Eppingen, Germany
500 m²
Ähnliche Objekte Ähnliche Angebote zu dieser Immobilie →
GLOBAL INVEST SINSHEIM | Freistehendes Einfamilienhaus in Rittersbach zum Schnäppchenpreis
Einfamilienhaus zu Verkauf € 199 000
74834 Elztal / Rittersbach, Germany
110 m² 7 5 1
€ 249 000GLOBAL INVEST SINSHEIM | Schöne Doppelhaushälfte mit Schuppen und zwei Stellplätzen in Dühren
Doppelhaushälfte zu Verkauf € 249 000
74889 Sinsheim / Dühren, Germany
139 m² 6 4 2
€ 129 000Supergünstige 3-Zimmer-Wohnung! Guter Zuschnitt, ruhige Lage, Stellplatz.
Wohnung zu Verkauf € 129 000
Adalbert-Stifter-Strasse 23, 75056 Sulzfeld, Baden-Württemberg, Germany
64 m² 3 1 1
€ 189 500Kapital anlegen oder Kaufen statt mieten?
Wohnung zu Verkauf € 189 500
Kaiser-Friedrich-Str. 94, 75172 Pforzheim, Germany
71 m² 3 1 1
€ 242 000Walldorf: 3 ZKB mit Balkon u. StPl, renovierungsbedürftig, 3-fach-Fenster, FREI, keine K-Prov
Dachgeschosswohnung zu Verkauf € 242 000
69190 Walldorf,
80 m² 3 2 1
€ 259 000Hier heißt es: ankommen, wohlfühlen – und gleichzeitig gestalten können
Dachgeschosswohnung zu Verkauf € 259 000
76297 Stutensee / Blankenloch, Germany
70 m² 3 1
€ 179 000Nutzungsänderung zur WOHNUNG möglich -TOP Chance Zentrum Sternenfels Rufen Sie an!
Erdgeschosswohnung zu Verkauf € 179 000
75447 Sternenfels, Germany
84 m² 6
€ 248 000Vielseitiges Sandsteinhaus von 1897 mit Hof & Scheune + Grundstück Ideal für Hand- u. Heimwerker
Einfamilienhaus zu Verkauf € 248 000
Hauptstrasse 79, 75031 Eppingen / Mühlbach, Germany
150 m² 7 4 1
€ 150 000Historisches Gebäude mit Baugenehmigung - im Sanierungsgebiet!
Reihenendhaus zu Verkauf € 150 000
Hauptstrasse 33, 75056 Sulzfeld, Baden-Württemberg, Germany
539 m² 8
€ 259 000GLOBAL INVEST SINSHEIM | Erstbezug nach umfassender Sanierung - 2,5-Zimmer-Wohnung in Ziegelhausen
Wohnung zu Verkauf € 259 000
69118 Heidelberg / Ziegelhausen, Germany
75 m² 3 1 1
VERKAUFT - Das DUETT mit großem Balkon
Wohnung zu Verkauf
75056 Sulzfeld, Germany
69 m² 3 1 1
VERKAUFT - STERNENZAUBER - ganz oben das Leben genießen
Penthouse zu Verkauf
75056 Sulzfeld, Germany
162 m² 5 3 1
