Vermietungssichere 2-Zimmer Altbauwohnung mit langfristigem Entwicklungspotenzial
Übersicht
Innen
Energie
Preise
Objektbeschreibung
Diese hochwertig sanierte 2-Zimmer-Altbauwohnung stellt eine äußerst substanzstarke und nachhaltig vermietete Kapitalanlage im Münchner Wohnungsmarkt dar. Die Einheit ist derzeit zuverlässig vermietet und erzielt monatliche Mieteinnahmen von 1.100 € bzw. 13.200 € p. a. bei einem Kaufpreis von 349.000 €, was einer Bruttoanfangsrendite auf den Kaufpreis gerechnet von rund 3,8 % entspricht. Damit bietet die Wohnung eine überzeugende Kombination aus laufendem Ertrag, kalkulierbarer Investitionssicherheit und langfristigem Wertsteigerungspotenzial.
Das Objekt befindet sich in einem gepflegten Altbau mit außergewöhnlich massivem Mauerwerk und einem klassischen, altbautypischen Deckenaufbau mit Stroh- und Kiesfüllung, der zu einer sehr guten Wärme- und Schalldämmung beiträgt. Besonders hervorzuheben ist die hervorragende akustische Abschirmung innerhalb des Hauses, insbesondere nach oben. Durch eine eingezogene Zwischendecke ergibt sich eine angenehme Deckenhöhe von ca. 2,40 m, die ein modernes Raumgefühl mit einer effizienten Beheizung verbindet. Die Wohnung wurde im Jahr 2015 vollständig generalsaniert und befindet sich technisch auf einem zeitgemäßen Stand. In diesem Zuge wurden die komplette Elektrik inklusive Sicherungskasten, sämtliche Wasserleitungen, die Heizkörper sowie das Badezimmer erneuert. Ergänzend erfolgte im Jahr 2023 eine zusätzliche Innenisolierung aller Außenwände, die zu einem konstant angenehmen Raumklima und einem im Vergleich zum übrigen Haus deutlich reduzierten Heizbedarf beiträgt.
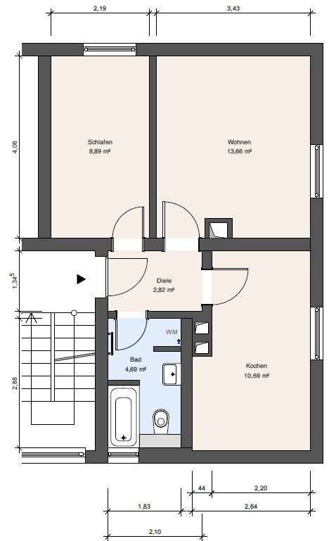
Die Ausstattung ist hochwertig, funktional und auf langfristige Vermietbarkeit ausgelegt. In den Wohnräumen ist Parkett verlegt, das professionell aufbereitet wurde, während Küche und Bad mit pflegeleichten Fliesen ausgestattet sind. Die rund zehn Jahre alte, maßgefertigte Schreinerküche überzeugt durch ihre hochwertige Ausführung mit Stein-Arbeitsplatte, Glasrückwand und integrierter Beleuchtung und befindet sich in einem sehr gepflegten Zustand. Die Raumaufteilung ist durchdacht und effizient, mit klar getrennten Bereichen für Wohnen, Schlafen, Kochen mit Essbereich und Bad, wodurch eine breite Zielgruppe angesprochen wird. Ausreichend Platz für Essbereich und Wohnmöblierung erhöht die Wohnqualität und unterstützt eine nachhaltige Vermietung.
Zur Wohnung gehört ein großes Kellerabteil. Sämtliche Kellerräume, einschließlich der Allgemeinflächen und des Waschkellers, präsentieren sich in einem trockenen und gepflegten Zustand. Ein allgemeiner Trockenraum steht ebenfalls zur Verfügung. Das Haus verfügt über einen Glasfaseranschluss, eine vor wenigen Jahren erneuerte Klingel- und Sprechanlage sowie eine zentrale Schließanlage für Wohnung, Haus und Keller.
Die Wohnanlage selbst ist ruhig gelegen, ordentlich verwaltet und insgesamt sehr gepflegt. Es besteht keine relevante Lärmbelastung aus dem Haus oder der Umgebung. Ein Hausmeister wohnt in unmittelbarer Nähe, was zu einer kontinuierlichen Betreuung und einem ordentlichen Erscheinungsbild beiträgt. Ein eigener Stellplatz ist nicht vorhanden, die Parksituation im direkten Umfeld ist jedoch gut.
Ausstattung
IHRE AUSSTATTUNG IM ÜBERBLICK
- Stabile Mieteinnahmen von 1.100 € pro Monat (13.200 € p. a.).
- Attraktiver Kaufpreis von 349.000 € mit ca. 3,8 % Bruttoanfangsrendite.
- Zuverlässig vermietete 2-Zimmer-Altbauwohnung in ruhiger Münchner Wohnlage.
- Vollständige Generalsanierung 2015 (Elektrik, Leitungen, Bad, Heizkörper).
- Zusätzliche Innenisolierung der Außenwände (2023) für effizientes Raumklima.
- Sehr gute Wärme- und überdurchschnittliche Schalldämmung dank massivem Altbau.
- Angenehme Deckenhöhe ca. 2,40 m durch eingezogene Zwischendecke.
- Hochwertige maßgefertigte Schreinerküche mit Stein-Arbeitsplatte und Glasrückwand.
- Durchdachter, vermietungsstarker Grundriss mit klarer Raumtrennung.
- Parkettböden in den Wohnräumen, Fliesen in Küche und Bad.
- Größtes Kellerabteil der Anlage, Keller insgesamt trocken und gepflegt.
- Glasfaseranschluss im Haus vorhanden.
- Gepflegte Wohnanlage mit Hausmeister in unmittelbarer Nähe.
- Gute Parksituation im Umfeld trotz fehlendem Stellplatz.
Lage
Die Immobilie befindet sich im Münchner Stadtbezirk Laim, einem etablierten und bei Mietern stark nachgefragten Wohnviertel im Westen der Landeshauptstadt. Laim zeichnet sich durch eine ausgewogene Mischung aus ruhigen Wohnstraßen, gewachsener Infrastruktur und sehr guter Verkehrsanbindung aus und zählt seit Jahren zu den stabilen Wohnlagen Münchens mit konstant hoher Nachfrage nach Mietwohnungen.
Die Mikrolage profitiert insbesondere von der Nähe zum Bereich Laimer Platz, der als zentraler Infrastruktur- und Verkehrsknotenpunkt des Stadtteils gilt. Der gleichnamige U-Bahnhof Laimer Platz (U5) ist fußläufig erreichbar; die Distanz liegt bei rund 700–750 Metern, was einem Fußweg von etwa 5 Minuten entspricht. Von hier aus besteht eine direkte und schnelle Anbindung an die Münchner Innenstadt, insbesondere in Richtung Hauptbahnhof und City-West. Ergänzend sorgen mehrere Tram- und Bushaltestellen im nahen Umfeld – unter anderem entlang der Agnes-Bernauer-Straße – für eine sehr gute Feinerschließung des Quartiers. Die fußläufigen Entfernungen zu den nächstgelegenen Tramhaltestellen liegen im Bereich von ca. 250–350 Metern, was die Lage auch ohne Pkw äußerst attraktiv macht.
Für Pendler und Kapitalanleger gleichermaßen relevant ist zudem die Nähe zum Bahnhof München-Laim, einem wichtigen S-Bahn-Knotenpunkt im Westen der Stadt. Dieser ist je nach Wegführung in etwa 1,2–1,4 km erreichbar und bietet Anschluss an mehrere S-Bahn-Linien mit direkter Verbindung zur Münchner Stammstrecke sowie in Richtung Pasing, Innenstadt und Umland.
Die Nahversorgung ist im gesamten Quartier sehr gut ausgebaut. Entlang der angrenzenden Hauptstraßen sowie rund um den Laimer Platz finden sich Supermärkte, Bäckereien, Apotheken, Ärzte, Banken und Gastronomieangebote für den täglichen Bedarf. Diese Dichte an Versorgungsangeboten wirkt sich positiv auf die Vermietbarkeit aus, da kurze Wege im Alltag ein wesentliches Entscheidungskriterium für Mieter darstellen. Schulen, Kindertagesstätten und weitere soziale Einrichtungen sind ebenfalls im Stadtteil vorhanden und fußläufig bzw. schnell mit dem Fahrrad erreichbar.
Ergänzt wird die Wohnqualität durch die Nähe zu mehreren Grün- und Erholungsflächen im Münchner Westen sowie durch die gute Anbindung in Richtung Pasing und zur A96, wodurch sowohl Freizeit- als auch Pendlerverkehr effizient abgedeckt werden. Trotz der sehr guten infrastrukturellen Anbindung bleibt das unmittelbare Wohnumfeld überwiegend ruhig und wohnlich geprägt, ohne relevante Lärmbelastung durch Durchgangsverkehr.
Sonstiges
Wir freuen uns, Ihnen dieses Objekt bei einem Besichtigungstermin ausführlich vorzustellen. Aus rechtlichen Gründen bitten wir Sie, für Ihre erste Kontaktaufnahme mit uns das Kontaktformular des Portals zu nutzen, auf dem Sie diese Immobilie gefunden haben. Finestep bietet dieses Objekt provisionspflichtig zum Kauf an. Für die vom Eigentümer übernommenen Objektdaten übernimmt Finestep keine Gewähr in Bezug auf die Vollständigkeit, Richtigkeit und Aktualität dieser Informationen. Irrtum und Zwischenverkauf ist vorbehalten. Die Käuferprovision in Höhe von 3,57% inkl. 19% USt. ist verdient und fällig mit Beurkundung des notariellen Kaufvertrages. Ist Ihnen das von Finestep nachgewiesene Objekt bereits bekannt, ist dies Finestep schriftlich spätestens innerhalb von fünf Werktagen unter Nennung der Quelle und des Nachweisdatums mitzuteilen. Sämtliche Unterschriften und Mitteilungen haben auch bei Übermittlung per Telefax und E-Mail Ihre Rechtsgültigkeit. Als Gerichtsstand wird München vereinbart sowie die Anwendung Deutschen Rechts. Alle Angaben nach bestem Wissen und nach Angabe des Verkäufers. Irrtum und Zwischenverkauf vorbehalten. Dieses Exposé ist eine Vorabinformation, als Rechtsgrundlage gilt allein der notariell abgeschlossene Kaufvertrag Finestep Immobilien GmbH Humboldtstr. 8 81543 München www.finestep.de
80686 München, Germany
Meta
Weitere Objekte des Maklers Alle Objekte des Anbieters anzeigen →
Sehr gut geschnittene 3-Zimmer-Wohnung mit Südbalkon & Tiefgarage
Wohnung zu Verkauf € 420 000
80935 München, Germany
71 m² 3 2 1
€ 630 000Neubau im Zentrum von Grafing: ruhig, hochwertig, sofort bezugsbereit
Erdgeschosswohnung zu Verkauf € 630 000
Marktplatz 11d, 85567 Grafing bei München, Germany
74 m² 3 2 2
€ 495 000Bezugsfrei: Attraktive 4-Zimmerwohnung mit Blick ins Grüne - sehr guter Grundriss
Wohnung zu Verkauf € 495 000
Willibaldstraße 142, 80689 München, Germany
73 m² 4 3 1
€ 694 000Planen Sie jetzt Ihr neues Nest in den Bergen mit guter München Anbindung
Doppelhaushälfte zu Verkauf € 694 000
83098 Brannenburg / Degerndorf am Inn, Germany
132 m² 5
€ 694 000Planen Sie jetzt Ihr neues Nest in den Bergen mit guter München Anbindung
Doppelhaushälfte zu Verkauf € 694 000
83098 Brannenburg / Degerndorf am Inn, Germany
132 m² 5
€ 150 000Attraktives Ausbauobjekt: Stadl mit genehmigter Wohnraumschaffung
Reihenendhaus zu Verkauf € 150 000
83550 Emmering, Germany
181 m² 7
€ 199 100Exklusives Eckgrundstück: Baureifes Grundstück mit genehmigtem Hausprojekt
Wohngrundstück zu Verkauf € 199 100
83119 Obing, Germany
365 m²
€ 118 500Top-Lage im 3er-Ensemble: Baureifes Grundstück mit genehmigtem Hausprojekt
Wohngrundstück zu Verkauf € 118 500
83119 Obing, Germany
165 m²
€ 129 800Baureifes Grundstück mit genehmigtem Hausprojekt
Wohngrundstück zu Verkauf € 129 800
83119 Obing, Germany
172 m²
€ 158 900Idyllisch: Baureifes Grundstück mit genehmigtem Hausprojekt
Wohngrundstück zu Verkauf € 158 900
83119 Obing, Germany
153 m²
€ 674 109Familientraum in Obing: Exklusive Neubau-DHH mit 179 m² Wohn-/ Nutzfläche
Doppelhaushälfte zu Verkauf € 674 109
83119 Obing, Germany
153 m² 5 3 1
€ 633 778Idyllisch & Modern: Neubau-Doppelhaushälfte am Tor zur Chiemgauer Seenplatte
Doppelhaushälfte zu Verkauf € 633 778
83119 Obing, Germany
153 m² 5 3 1
Ähnliche Objekte Ähnliche Angebote zu dieser Immobilie →
Sehr gut geschnittene 3-Zimmer-Wohnung mit Südbalkon & Tiefgarage
Wohnung zu Verkauf € 420 000
80935 München, Germany
71 m² 3 2 1
€ 410 0002,5-Zimmer Daterrassenwohnung in ruhhiger Lage
Dachgeschosswohnung zu Verkauf € 410 000
82008 Unterhaching, Germany
61 m² 3 2 1
€ 444 000Grünblick & Privatsphäre – helle 2,5-Zimmer-Wohnung mit sonnigem Südbalkon
Wohnung zu Verkauf € 444 000
81737 München, Germany
70 m² 3 1 1
€ 478 076Zeitgemäß wohnen: 2-Zimmer-Stadtwohnung mit QNG-Zertifizierung (11)
Wohnung zu Verkauf € 478 076
82008 Unterhaching, Germany
51 m² 2 1 1
€ 478 076Moderne 2-Zimmer-Wohnung - Zentral & nachhaltig im KfW-40 QNG Standard (8)
Wohnung zu Verkauf € 478 076
82008 Unterhaching, Germany
51 m² 2 1 1
€ 449 000Wunderschöne 3,5 Zimmer Eigentums-Wohnung im LK München Unterschleißheim Toplage! Großes Grundstück!
Wohnung zu Verkauf € 449 000
85716 Unterschleißheim, Germany
71 m² 3 2 1
