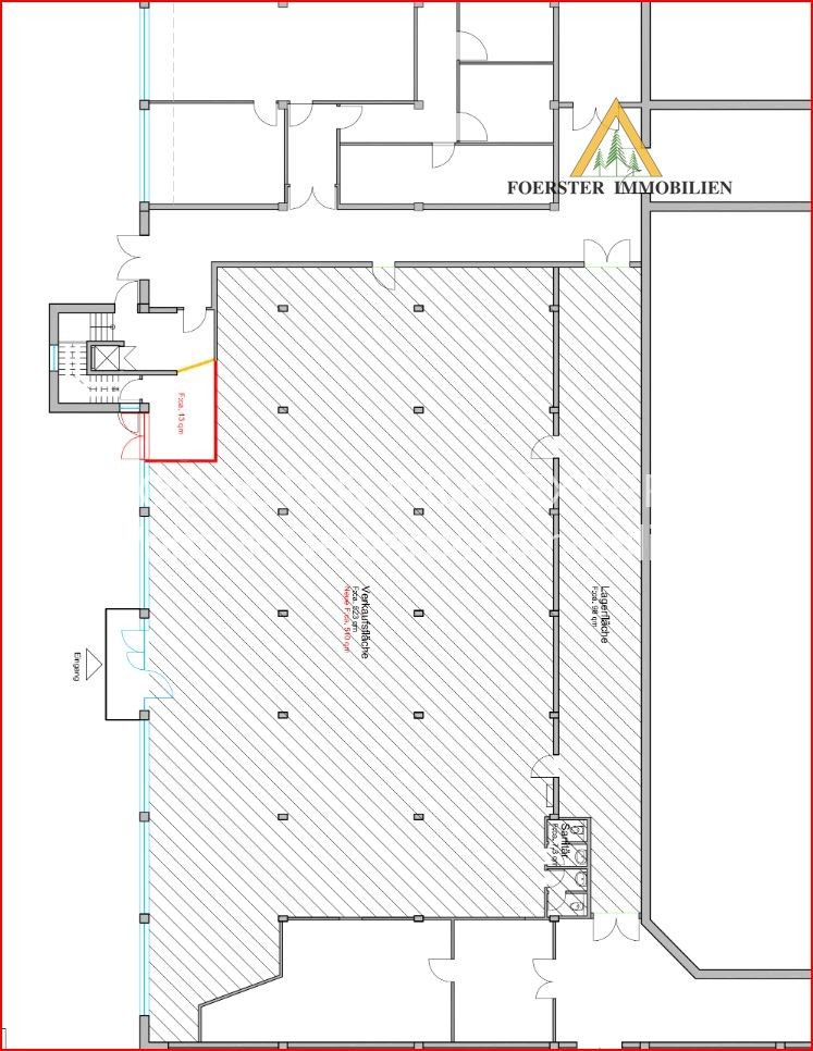
Büro - Gewerbegebäude, Montage, Lager, Flächen ab 300 m² bis 650 m² zu mieten in Pforzheim-Nord
Площ
Inside
Изисквания и ограничения
Енергия
Цени
Описание на недвижимата собственост
Willkommen in Ihrer zukünftigen Adresse im Herzen von Pforzheim. Diese gepflegte Immobilie, erbaut im Jahr 1956, bietet eine ideale Gelegenheit für Unternehmen, die nach einem repräsentativen Standort suchen. Das massiv gebaute Objekt umfasst drei bis mehrere geräumige Zimmer, die flexible Nutzungsmöglichkeiten bieten, um Ihren geschäftlichen Anforderungen gerecht zu werden.
Das Büro-Geschäftshaus wurde zuletzt im Jahr 2009 modernisiert und verfügt über eine normale Ausstattungsqualität, die den Bedürfnissen von Unternehmen jeder Größe gerecht wird.
Verschiedene Flächen stehen zur Anmietung. Der Estrichboden oder Betonboden sorgt für eine langlebige und pflegeleichte Oberfläche, die jedem Raum ein professionelles Ambiente verleiht.
Die Bodenbeläge können auch verändert werden durch den Mieter.
Die Verfügbarkeit der Immobilie erfolgt nach Vereinbarung, sodass Sie und Ihr Unternehmen den Einzugstermin flexibel gestalten können. Nutzen Sie diese Gelegenheit, um Ihre Geschäftsräume in einem etablierten und gut erreichbaren Standort von Pforzheim zu etablieren.
Kontaktieren Sie uns, um weitere Informationen zu erhalten oder einen Besichtigungstermin zu vereinbaren. Wir freuen uns darauf, mit Ihnen zusammenzuarbeiten und Ihnen bei der Verwirklichung Ihrer beruflichen Ziele zu helfen.
Оборудване
Ein Lift befördert Sie barierrefrei in Ihre Etage, auch von der Parkplatz Ebene gelangen Sie ohne Stufen ins Büro.
Damen und Herren WC Anlagen sind je Etage vorhanden, ebenso ein Putzraum.
Ein Abstellraum in der Etage, helle und große Metall Iso Fenster, Deckenbeleuchtung, Einbauschränke, die Bürotrennwände können verändert werden.
Auf den Bodenbelag kann noch Einfluss genommen werden.
Die Räume werden renoviert übergeben.
Ein Lastenlift kann benutz werden.
Diese Leistungen sind Mietpreis abhängig und von einer adäquaten Mietvertragsdauer.
Am besten senden Sie uns eine email und vereinbaren danach mit Herrn Foerster
einen Termin Tel. 07231-34545
Wir sind gerne für Sie tätig.
Местоположение
Pforzheim Nord hat Flächenmäßig die meisten Einwohner ca. 22.000.
Zum Bus und S - Bahn und Bahnhof sind es ca. 400 m.
Pforzheim liegt im Zentrum der Wirtschaftsregionen Mittlerer Neckar Stuttgart und der Rheinschiene
Technologie Standort Karlsruhe mit guten Verbindungen durch die A8, B10, B35, B294 und die S-Bahn Verbindung in beide Bereiche; Der Flughafen Stuttgart liegt auf dem Weg.
Pforzheim gilt als der führende Wirtschaftsstandort in Baden-Württemberg wo unter anderem
Weltmarktführer auf verschiedenen Gebieten tätig sind.
Die Kernkompetenzen sind:
- Versandhandel
- Schmuck und Uhren Industrie
- Oberflächenveredelung
- Edel Metallverarbeitung
- Feinwerktechnik
- Hochschule für Kfz. Design, Technologie Werkstoffe
- Goldschmiedeschule und Modedesign
- Groß Klinikum mit Anschluss Uni
- Drucktechnik
- IT - Technologie
- Maschinenbau
- Präzisionstechnik
- Medizintechnik
- Spezialkliniken
- Stanztechnik
- Einzelhandel
- Großhandel
Hier sind ca. 127.000 Einwohner und im
Kaufkraft Gebiet 1 sind es ca. 250 000 und im
Gebiet 2 sind es ca. 500 000 Personen.
Start Up Unternehmen, Gewerbe und Industrieverlagerungen sowie Filial-Unternehmungen haben am Standort Pforzheim gute Marktbedingungen.
Други
Es liegt ein Energieverbrauchsausweis vor.
Dieser ist gültig bis 11.1.2025.
Endenergieverbrauch beträgt 35.20 kwh/(m²*a).
Wesentlicher Energieträger der Heizung ist Fernwärme.
Das Baujahr des Objekts lt. Energieausweis ist 2009.
Die Energieeffizienzklasse ist C.
Danke für Ihre Anfrage,
wenn Sie mehr zu diesem Objekt erfahren möchten, senden Sie bitte Ihre Adressdaten, Telefonnummer sowie Mobil Nr.
und Ihre Email Adresse per Mail an uns info@immobilien-foerster.com.
Wir werden uns gerne umgehend mit Ihnen in Verbindung setzen.
Wir bitten um Verständnis, dass nur Anfragen mit VOLLSTÄNDIGER Angabe Ihrer Postadresse, Tel. + Mobil Nr. + Email Adresse wegen der rechtlichen Nachweisdokumentation, bearbeite werden können. (Mehr als nur das Kontaktformular).
Ihre Daten werden von uns nicht an Dritte weitergegeben, ausgenommen beim Zustandekommen eines Miet- oder Kauf-
vertrages.
Ihr Ansprechpartner ist André Foerster
Telefon: 07231-34545
Mobil: 0171-6244462
E-Mail: info@immobilien-foerster.com
Sollte eine Käufer- oder Mieterprovision verlangt werden, gilt nachstehendes;
Der Käufer/Mieter verpflichtet sich, die Provision an Foerster-Immobilien zu bezahlen, wenn ein Kaufvertrag/Miet-
vertrag über dieses Objekt zustande kommt.
Die Nachweise sind vertraulich und nur für den Auftraggeber bestimmt. Gibt der Auftraggeber die Nachweise ohne
Zustimmung von Foerster Immobilien an einen Dritten weiter, so hat er auch dann die Provision zu bezahlen, wenn
der Dritte einen Kaufvertrag/Mietvertrag abschließt. Foerster Immobilien darf auch für den Verkäufer/Vermieter
entgeltlich tätig sein. Alle Daten und Angaben in diesem Exposé, sowie Darstellungen beziehen sich auf Pläne der
Architekten, Aussagen der Eigentümer, des Verwalters oder der Erbengemeinschaft.
Für die Richtigkeit und Vollständigkeit wird keine Haftung übernommen.
75177 Pforzheim, Germany
Facebook comments
Last broker properties View all broker properties →
Für WG 4 Zi.- Wohnung/Loft,NUR WG o. Firmenmitarbeiter/Pflegekräfte,ca.93m²,hell, PF-N provisionsfrei
Апартамент на последен етаж под наем € 895
75177 Pforzheim, Germany
93 m² 5 4 1
€ 125 000Gemütliche 2-Zimmer-Wohnung in Pforzheim-Nord im Hochparterre mit Loggia, Keller und Gartenbenutzung
Апартамент на последен етаж продава се € 125 000
75177 Pforzheim, Germany
52 m² 2 1 1
Gutsherrenart Kanzlei-Büroräume, provisionsfrei, nähe Bahnhof in Lambrecht / Neustadt a. d. Weinstr.
Бюро/ офис помещение под наем
67466 Lambrecht, Germany
250 m² 12
€ 4 025PF-W, EG 700m² Ausstellung, Handel, Lager, Fabrik (OG 400m²Büro/Kanzlei/Werken), Parkpl. vorhanden teilbar
Хале под наем € 4 025
75179 Pforzheim, Germany
700 m² 4
€ 1 500Gastronomie1-2-Bistro Sportsbar PF-Nähe Bahnhof verschiedene Lokale
Various под наем € 1 500
75177 Pforzheim, Germany
87 m² 2
€ 595 000F.Großfamilie,3Wohnmöglichkeiten,1-2FH m.Aussicht, Wfl.ca.230m²,730m²Grd,inkl.Baugrundstück,Garage,Stellpl.
Двуфамилна къща продава се € 595 000
76351 Linkenheim-Hochstetten, Germany
229 m² 8 4 3
€ 7 500731 m² Verkaufsfläche EG mit Lager + Kundenparkplätzen, LKW-Anlieferung mitten im Herzen von Pforzheim Nord. Fordern Sie das Exposé von FOERSTER IMMOBILIEN mit dem WOW Effekt an!
Various под наем € 7 500
75177 Pforzheim, Germany
0 m²
€ 1 250Laden Lokal mit großen Schaufenstern und Lagerraum UG, Nähe PF-Bahnhof
Магазин под наем € 1 250
75177 Pforzheim, Germany
100 m² 1
€ 2 995Laden-Büro Lokal vormals AOK, Großraumbüro EG
Магазин под наем € 2 995
75177 Pforzheim, Germany
279 m² 2
Produktions-/Lagerräume ca. 870 m² mit kleiner Büroeinheit und Parkplätzen, in PF nähe A8
Хале под наем
75179 Pforzheim, Germany
869 m²
€ 1 549Panorama Büro/Praxis Etage frei einteilbar mit Schaufenster im 1.OG, am Marktplatz PF- City.
Офис сграда под наем € 1 549
75175 Pforzheim, Germany
172 m² 3
€ 4 500START_UP! Ihr eigenes m.Geräten eingerichtetes ,keine Ablöse,Sportstudio/Fitnessstudio BESTLAGE a.Bahnhof barrierefrei PF
Изложбена площ под наем € 4 500
75177 Pforzheim, Germany
279 m² 2
