3 Zimmer Neubau-Wohnung KfW 55 im 1. OG Provisionsfrei
Übersicht
Innen
Aussen
Energie
Preise
Objektbeschreibung
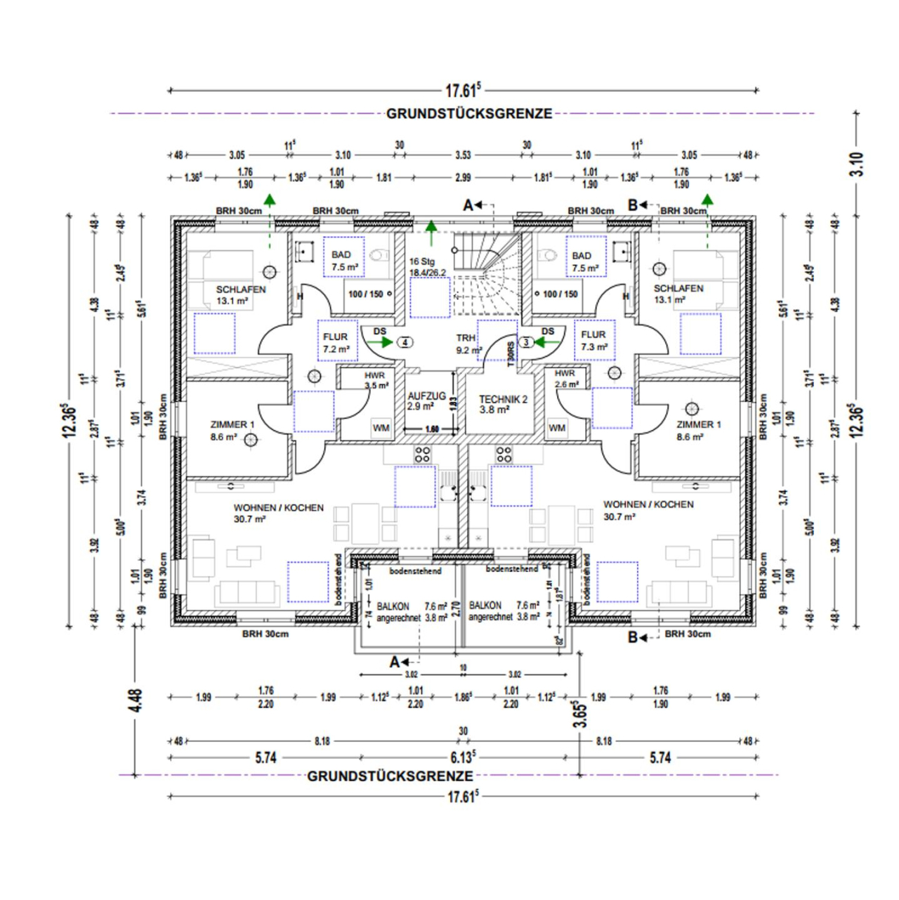
In diesem eleganten 5-Familienhaus im KfW-55-Standard erwartet Sie eine attraktive Wohnung im 1. OG, die mit ihrer durchdachten Raumaufteilung und zeitlosen Ausstattung überzeugt und ein modernes und komfortables Zuhause, das direkt bezogen werden kann.
Ihre Vorteile im Überblick:
KfW-55-Effizienzhaus: Nachhaltige Bauweise mit Wärmepumpe, Fußbodenheizung und dezentraler Lüftungsanlage.
Zeitlose Ausstattung: Moderne Architektur, Fußbodenheizung und hochwertige Materialien.
Ein Balkon zum Entspannen und Wohlfühlen, sowie ein Stellplatz mit Wallboxanschluss und ein gemeinschaftlicher Fahrradschuppen.
Details zur Wohnung
Wohnfläche: 73,9 m² – 3 Zimmer
Die Wohnung bietet eine ideale Raumaufteilung, die modernes Wohnen und Funktionalität perfekt kombiniert:
Geräumiger Wohn-Essbereich mit zwei Zugängen zum Balkon
Ein Schlafzimmer
Ein weiteres Zimmer, das als Büro oder Kinderzimmer genutzt werden kann
Zeitloses Badezimmer mit moderner Ausstattung und eleganten Details
Hauswirtschaftsraum (HWR) für zusätzlichen Stauraum
Balkon mit 7,6 m², der sich ideal zum Entspannen oder für gesellige Stunden eignet
Sofort bezugsbereit: Kein Aufwand, einfach einziehen und wohlfühlen.
Energieeffizienz und Komfort: Die moderne Bauweise sorgt für ein angenehmes Wohnklima.
Zeitloses Design: Hochwertige Materialien und klare Linien schaffen ein stilvolles Wohnambiente.
Bequemer Zugang: Über Treppe oder Aufzug erreichbar – ideal für alle, die kurze Wege bevorzugen.
Fazit
Diese Wohnung ist die perfekte Wahl für alle, die ein modernes, energieeffizientes und sofort bezugsfertiges Zuhause suchen. Die Kombination aus durchdachter Raumaufteilung, zeitloser Ausstattung und nachhaltiger Bauweise macht dieses Objekt zu einer zukunftssicheren Investition.
Kontaktieren Sie uns für weitere Informationen oder eine Besichtigung. Wir freuen uns darauf, Ihnen Ihr neues Zuhause zu präsentieren!
Lage
Mikrolage:
Das Objekt befindet sich am Ruschenweg, in einer ruhigen und attraktiven Wohngegend von Bad Zwischenahn. Die Nachbarschaft zeichnet sich durch eine angenehme Atmosphäre aus, die ideal für Familien und Paare ist. In der unmittelbaren Umgebung finden Sie zahlreiche Freizeitmöglichkeiten, darunter Parks, Rad- und Wanderwege sowie Sporteinrichtungen. Einkaufsmöglichkeiten für den täglichen Bedarf, Ärzte, und Schulen sind ebenfalls schnell erreichbar.
Makrolage:
Bad Zwischenahn ist eine beliebte Gemeinde im Ammerland, die für ihre hohe Lebensqualität bekannt ist. Die Lage am Zwischenahner Meer bietet zahlreiche Freizeitaktivitäten, von Wassersport bis hin zu schönen Spaziergängen entlang der Uferpromenade. Die gute Anbindung an die A28 ermöglicht eine schnelle Erreichbarkeit von größeren Städten wie Oldenburg, was die Region besonders attraktiv für Pendler macht. Darüber hinaus gibt es regelmäßige Busverbindungen, die die Anbindung an den öffentlichen Nahverkehr gewährleisten.
Sonstiges
Alle Objektinformationen stammen vom Verkäufer, daher übernehmen wir keine Haftung für deren Richtigkeit. Änderungen, Zwischenverkauf oder -vermietung bleiben vorbehalten.
26160 Bad Zwischenahn, Germany
Meta
Weitere Objekte des Maklers Alle Objekte des Anbieters anzeigen →
8 Fam. Haus in Herne mit Top Renditeaussicht
Mehrfamilienhaus zu Verkauf € 559 000
44652 Herne, Germany
612 m²
€ 346 000Neubau Wohnung 3 Zimmer EG mit Terrasse Provisionsfrei
Erdgeschosswohnung zu Verkauf € 346 000
26160 Bad Zwischenahn, Germany
74 m² 3 2 1
€ 525 200Exklusives Penthouse in hochwertigem Neubau – Gestalten Sie mit!! Keine Provision
Penthouse zu Verkauf € 525 200
26160 Bad Zwischenahn, Germany
112 m² 3 2 1
€ 1 915 000Neubau 5-Familienhaus als attraktive Kapitalanlage Provisionsfrei
Mehrfamilienhaus zu Verkauf € 1 915 000
26160 Bad Zwischenahn, Germany
409 m²
Ähnliche Objekte Ähnliche Angebote zu dieser Immobilie →
Modernisiertes Einfamilienhaus mit PV-Anlage, Wärmepumpe & modernem Komfort in Papenburg Obenende
Einfamilienhaus zu Verkauf € 339 000
26871 Papenburg, Germany
165 m² 8 5 1
€ 249 000Top gepflegter Bungalow mit Doppelgarage – ruhiges Wohnen trotz zentraler Lage in Hesel
Bungalow zu Verkauf € 249 000
26835 Hesel , Ostfriesl, Germany
120 m² 5 4 1
€ 339 000Großzügiges Wohnen in Varel - Platz genug für Hobbies, Heimkino, viele Gäste oder die große Familie
Einfamilienhaus zu Verkauf € 339 000
26316 Varel, Germany
212 m² 7 3
€ 339 000Großzügiges Wohnen in Varel - Platz genug für Hobbies, Heimkino, viele Gäste oder die große Familie
Einfamilienhaus zu Verkauf € 339 000
26316 Varel, Germany
212 m² 7 3
€ 199 000*** WOHNEN MIT BLICK AUF DEN HISTORISCHEN HAFEN ***
Apartment zu Verkauf € 199 000
26826 Weener, Deutschland
109 m² 3 2 2
€ 239 000**Großes Einfamilienhaus & Einliegerwohnung mit Bauoption auf zentralem Grundstück**
Einfamilienhaus zu Verkauf € 239 000
26826 Weener, Deutschland
150 m² 5 3 2
