wunderschöne Eigentumswohnung in ruhiger, zentraler Lage von Schloss Neuhaus
Übersicht
Innen
Aussen
Extras zum Objekt
Energie
Preise
Objektbeschreibung
Diese exklusiv von uns angebotene 2 ZKBB überzeugt durch ihre hervorragende Aufteilung mit sehr hellen freundlichen Räumen, sowie der Lage in einer ruhigen Straße von Schloss Neuhaus mit sehr guter Verkehrsanbindung.
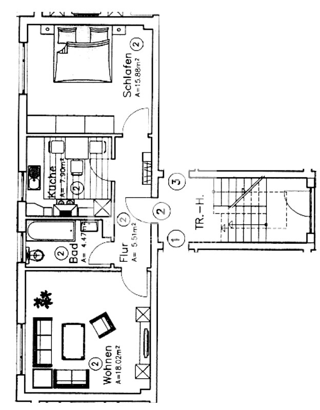
Sie befindet sich im Erdgeschoss eines 8-Parteienhauses, einer Gemeinschaft von Wohnungseigentümern. Die Wohnfläche von 51,78 m² verteilt sich auf eine Küche, Wohnzimmer, Badezimmer und ein Schlafzimmer.
Das Haus wurde 1961 in solider bauweise erbaut und über die Jahre mehrfach renoviert und modernisiert.
Die Wohnung kann frei übergeben werden, durch aktuelle Vermietung für 572,00€ pro Monat könnte es auch für Kapitalanleger interessant werden.
Das Hausgeld liegt monatlich bei 94,00€ inkl. Rücklagen und Verwaltungskosten.
Ausstattung
Ausstattung im Überblick
Wohnfläche: ca. 52 m²
Etage: Erdgeschoss
Raumaufteilung:
Wohnzimmer – ca. 18,02 m²
Schlafzimmer – ca. 15,88 m²
Küche – ca. 7,90 m²
Badezimmer – ca. 4,47 m²
Flur – ca. 5,51 m²
Ausstattung & Merkmale:
- Moderner Vinylboden in Wohnräumen
- Gefliestes Badezimmer mit Wanne
- Barrierearmer Zugang (Erdgeschosslage)
- Kellerraum mit zusätzlicher Abstellfläche
- Kfz-Stellplatz direkt vor dem Haus
- Kunststofffenster mit Isolierverglasung
Helle, freundliche Raumgestaltung
Ideal als Kapitalanlage oder Eigennutzung
Lage
In wenigen Gehminuten sind Sie im Grünen, erreichen aber dank der hervorragenden Verkehrsanbindung unter anderem auch zur B1 auch in kürzester Zeit den Ortskern von Schloß Neuhaus (PKW oder Fahrrad: 5 Minuten) oder die Innenstadt von Paderborn (PKW: ca. 10 Minuten; Fahrrad oder Bus: ca. 20 Minuten).
Der Tallesee ist in wenigen Fahrradminuten zu erreichen.
Die Joseph-Grundschule und der Kindergarten "Spielwiese" befinden sich wenige Meter von der hier angebotenen Eigentumswohnung entfernt.
Sonstiges
Weiterführende Schulen (Gymnasium und Realschule) und weitere Einrichtungen des täglichen Bedarfs sind im Ortskern von Schloss Neuhaus vorhanden.
Supermärkte wie Lidl und Rewe, Restaurants und diverse Imbisse sind fussläufig zu erreichen. Zudem befinden sich mehrere Ärzte und eine Apotheke in unmittelbarer Nähe.
Ziethenweg 19, 33104 Paderborn / Schloss Neuhaus, Germany
Meta
Weitere Objekte des Maklers Alle Objekte des Anbieters anzeigen →
Wohnen am Sennebahnhof Quartier Modernes Leben zwischen Stadt und Natur
Erdgeschosswohnung zu Verkauf € 341 500
Sennebahnhof 2, 33104 Paderborn, Germany
76 m² 3 2 1
€ 1 350Wohnen auf Zeit - 3er-WG-Wohnung in Uninähe – Ideal für Studenten
Erdgeschosswohnung zur Miete € 1 350
An der Schönen Aussicht 4, 33098 Paderborn, Germany
83 m² 3 3 1
€ 1 650Moderne 3er-WG-Wohnung in Uninähe – Ideal für Studenten
Erdgeschosswohnung zur Miete € 1 650
An der Schönen Aussicht 4, 33098 Paderborn, Germany
83 m² 3
€ 115 0002-Zimmer frisch Renoviert
Wohnung zu Verkauf € 115 000
32791 Lage, Germany
63 m² 2 1 1
€ 119 000Schöne Wohnung - Kapitalanlage
Wohnung zu Verkauf € 119 000
32791 Lage, Germany
75 m² 3 2 1
€ 360 000Wohnen, Arbeiten, Wohlfühlen – Altbaujuwel mit Dachterrasse in Schloss Neuhaus
Reihenendhaus zu Verkauf € 360 000
33104 Paderborn, Germany
132 m² 7 2 1
€ 132 000Kapitalanlage 3 - Zimmer Wohnung - Mittendrin in Bremerhaven
Wohnung zu Verkauf € 132 000
27576 Bremerhaven, Germany
87 m² 3 2 1
€ 99 000Hier beginnt Ihr Neubau-Traum: Grundstück mit genehmigtem Doppelhausprojekt in naturnaher Lage von Vlotho
Wohngrundstück zu Verkauf € 99 000
Horstweg 7, 32602 Vlotho, Germany
385 m²
€ 109 000Zentrale gemütliche 3-Zimmer ETWohnung im EG - Zietenstraße - nahe der Fachhochschule
Erdgeschosswohnung zu Verkauf € 109 000
58097 Hagen, Germany
64 m² 3 2 1
€ 399 000„Modernes Wohnen in Vlotho: Stilvoll, Nachhaltig, Zukunftsorientiert“
Reihenmittelhaus zu Verkauf € 399 000
32602 Vlotho, Germany
148 m² 4 3 2
€ 109 000- Exklusive, schöne und modernisierte Wohnung im Kurort nahe Stadtpark, Bahnhof, Gräflichem Park -
Wohnung zu Verkauf € 109 000
33014 Bad Driburg, Germany
73 m² 3 2 1
€ 1 780PADERBORN: Zur Miete: WG-Wohnung mit Balkon in unmittelbarer Uni-Nähe!
Floor apartment zur Miete € 1 780
An d. Schönen Aussicht 5, 33098 Paderborn, Deutschland
85 m² 3 3 1
Ähnliche Objekte Ähnliche Angebote zu dieser Immobilie →
2-Zimmer frisch Renoviert
Wohnung zu Verkauf € 115 000
32791 Lage, Germany
63 m² 2 1 1
€ 119 000Schöne Wohnung - Kapitalanlage
Wohnung zu Verkauf € 119 000
32791 Lage, Germany
75 m² 3 2 1
€ 109 000- Exklusive, schöne und modernisierte Wohnung im Kurort nahe Stadtpark, Bahnhof, Gräflichem Park -
Wohnung zu Verkauf € 109 000
33014 Bad Driburg, Germany
73 m² 3 2 1
