Altbaucharme trifft modernes Wohngefühl – Ihr neues Zuhause in Steglitz
Overview
Inside
Outside
Limitations & Requirements
Energy
Prices
Property description
Sie lieben das Besondere? Dann wird Sie diese stilvolle Altbauwohnung begeistern. In unmittelbarer Nähe zur beliebten Schlossstraße in Berlin-Steglitz erwartet Sie ein Zuhause mit Charakter, das historischen Charme und zeitgemäßen Komfort harmonisch vereint.
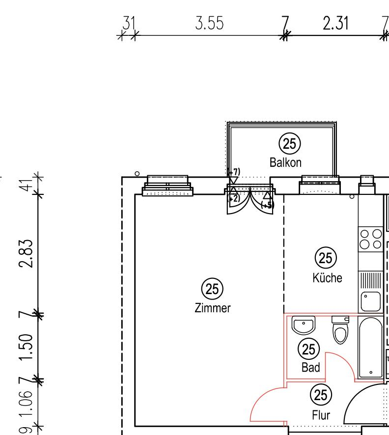
Die ca. 36,61 m² große Wohnung wurde mit viel Liebe zum Detail saniert und überzeugt durch hochwertige Ausstattungsmerkmale: Helles Fischgrätparkett aus Eiche verleiht den Räumen eine warme, elegante Atmosphäre. Im Badezimmer sorgen edle Natursteinfliesen für ein Hauch von Luxus. Bis zu 3,2 Meter hohe Decken unterstreichen das großzügige Raumgefühl und machen das Wohnen hier zu etwas ganz Besonderem.
Ein weiteres Highlight ist der Balkon – ein ruhiger Rückzugsort im Freien, perfekt für die erste Tasse Kaffee am Morgen oder den Ausklang des Tages bei Abendsonne.
Diese Wohnung richtet sich an Mieterinnen und Mieter, die Wert auf Stil, Qualität und eine zentrale Lage legen. Willkommen in Ihrem neuen Zuhause in Berlin-Steglitz.
Equipment
Staffelmietvertrag mit 10% Erhöhung alle 3 Jahre.
Location
Die Lage dieser Immobilie in der Schönebergerstraße 12163, Berlin, bietet eine ideale Mischung aus urbanem Flair und gemütlicher Wohnatmosphäre. Hier genießen Sie die Vorteile einer zentralen Lage mit hervorragender Anbindung an das öffentliche Verkehrsnetz.
In unmittelbarer Nähe finden Sie eine Vielzahl an Einkaufsmöglichkeiten, Restaurants und Cafés, die für jeden Geschmack etwas bieten. Die beliebten Parks und Grünflächen, wie der Viktoriapark, laden zu entspannenden Spaziergängen und Freizeitaktivitäten ein.
Die Anbindung an den öffentlichen Nahverkehr ist hervorragend. Mehrere U-Bahn- und Buslinien sind fußläufig erreichbar, sodass Sie schnell und bequem in alle Teile der Stadt gelangen. Auch die Autobahnanbindung ist optimal, was die Erreichbarkeit des Umlands erleichtert.
Darüber hinaus profitieren Sie von einer ausgezeichneten Infrastruktur mit Schulen, Kindergärten und medizinischen Einrichtungen in der Nähe. Die lebendige Nachbarschaft und die kulturellen Angebote machen diese Lage zu einem besonders attraktiven Wohnort in Berlin.
Various
Provisionsfrei für den Mieter.
Alle gemachten Angaben zu Objekten sind ohne Gewähr und basieren ausschließlich auf Informationen, die Immosiv - Exklusive Immobilien von meinem Auftraggeber oder von Dritten übermittelt wurden. Ich übernehme keine Gewähr für die Richtigkeit, die Vollständigkeit, sowie die Aktualität dieser Angaben, insbesondere die Angaben zur Wohnfläche, zur Nutzfläche und zur Aufteilung der Wohn-/Nutzfläche sind von mir nicht durch ein eigenes Aufmaß oder eine eigene Wohnflächenberechnung kontrolliert und die Angaben zum Baujahr sind nicht durch eine Einsicht in die Bauakte überprüft worden. Provisionsfrei für den Mieter.
12163 Berlin, Germany
Facebook comments
Last broker properties View all broker properties →
Grundstück in Falkensee Falkenhöh
Wohngrundstück for sale € 249 000
14612 Falkensee, Germany
550 m²
€ 49 000Duplexgarage in Friedrichshain
Various for sale € 49 000
Pintschstraße 2, 10249 Berlin, Germany
13 m²
€ 1 200Altbaucharme trifft modernes Wohngefühl – Ihr neues Zuhause in Steglitz
Wohnung for rent € 1 200
12163 Berlin, Germany
37 m² 1
€ 1 255Altbaucharme trifft modernes Wohngefühl – Ihr neues Zuhause in Steglitz
Ground floor apartment for rent € 1 255
12163 Berlin, Germany
38 m² 1
€ 1 249 000Wohntraum in Pankow
Maisonette for sale € 1 249 000
13187 Berlin, Germany
148 m² 4 2
€ 880 000Preissturz! Luxuriöses Einfamilienhaus mit Garten und Wellnessbereich
One family house for sale € 880 000
14621 Schönwalde-Glien, Germany
163 m² 6 3 3
Similar properties View all properties similar to this property →
Moderne 3-Zimmerwohnung in Schönefeld in historischem Ambiente
Wohnung for rent € 1 200
Alt Schönefeld 27, 12529 Schönefeld, Germany
80 m² 3 1
€ 582Sanierte Wohnung Altstadt Zossen
Wohnung for rent € 582
Berliner Str. 14 - , 15806 Zossen Zentrum, Germany
55 m² 3 2 1
€ 1 500SCHÖNEFELD: 3 - Zimmer MIETWOHNUNG. Perfekt für Paare oder eine kleine Familie!
Wohnung for rent € 1 500
12529 Schönefeld, Germany
78 m² 3 1
€ 925Tegel-Reinickendorf – Schöne 2-Zimmer-Wohnung mit West-Balkon und Garage zur Miete
Wohnung for rent € 925
13509 Berlin, Deutschland
50 m² 2 1 1
€ 1 200Altbaucharme trifft modernes Wohngefühl – Ihr neues Zuhause in Steglitz
Wohnung for rent € 1 200
12163 Berlin, Germany
37 m² 1
€ 1 255Altbaucharme trifft modernes Wohngefühl – Ihr neues Zuhause in Steglitz
Ground floor apartment for rent € 1 255
12163 Berlin, Germany
38 m² 1
€ 768Große Dreiraumwohnung in Dorflage Nähe Berlin
Bungalow for rent € 768
Dorfpl. 12, 14959 Trebbin, Deutschland
67 m² 3 2 1
€ 1 550Erstbezug Wohnen Am der Dahme in Berlin Grünau 2-Raum-Wohnung mit Garten
Floor apartment for rent € 1 550
An d. Brücke 3, 12527 Berlin, Deutschland
64 m² 2 1 1
€ 1 550Erstbezug Wohnen Direkt am Wasser in Berlin Grünau 2-Raum-Wohnung mit Garten
Floor apartment for rent € 1 550
An d. Brücke 3, 12527 Berlin, Deutschland
64 m² 2 1 1
€ 521TREBBIN: Singlewohnung am Kreisverkehr in Bahnhofsnähe.
Bungalow for rent € 521
Baruther Str. 3, 14959 Trebbin, Deutschland
52 m² 2 1 1
€ 7212 Zimmer Wohnung in Lichterfelde
Attic apartment for rent € 721
Lermooser Weg 34, 12209 Berlin, Deutschland
47 m² 2 1 1
€ 743TOP sanierte Wohnung Altstadt Zossen
Attic apartment for rent € 743
Berliner Str. 14, 15806 Zossen, Deutschland
74 m² 4 3 1
