praktische Bürofläche am Nollendorfplatz
Overview
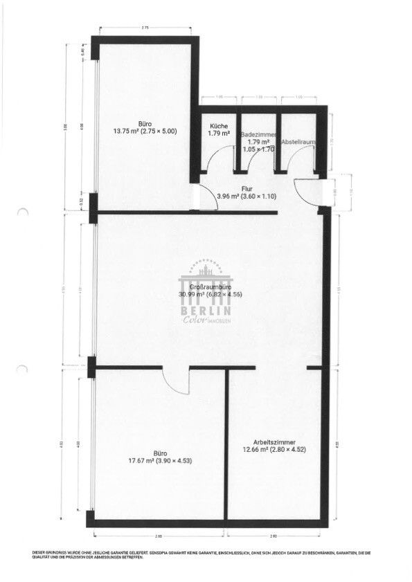
Inside
Limitations & Requirements
Energy
Prices
Property description
Dieses helle und repräsentative Büro befindet sich in bester Lage direkt am Nollendorfplatz in Berlin-Schöneberg.
Auf rund 80 m² bietet die Fläche ideale Voraussetzungen für Agenturen, Kanzleien, Start-ups oder Dienstleistungsunternehmen.
Der großzügige Hauptraum überzeugt durch seine offene Gestaltung und schafft eine helle, freundliche Arbeitsatmosphäre. Direkt angrenzend befindet sich ein weiterer offen geschnittener Raum, der flexibel genutzt werden kann. Zum Bespiel als Besprechungsbereich, zusätzlicher Arbeitsplatz oder praktischer Aktenraum.
Die Räumlichkeiten verfügen über drei gut geschnittene Zimmer, eine Teeküche, ein WC sowie eine separate Serverraum. Besonders hervorzuheben ist die große Fensterfront, die die Räume mit viel Tageslicht durchflutet und eine angenehme Arbeitsatmosphäre schafft.
Die Miete setzt sich wie folgt zusammen:
- Kaltmiete €1.480
- Betriebskosten €150
- Heizkosten €100
= Gesamtmiete (netto) €1730
+ zzgl. z.Z. 19% MwSt. €328,70
= Gesamtmiete (brutto) €2058,70
Equipment
- 1 Stellplatz
-Drei separate, helle Büroräume
-Fensterfront ( durchs Büro)
-Teeküche mit Anschlüssen
-WC
-Serverraum/ Lagerfläche
-Internet- und Telefonanschlüsse vorhanden
Location
Die Bürofläche befindet sich in einer zentralen und sehr gut angebundenen Lage direkt am Nollendorfplatz.
Der U-Bahnhof Nollendorfplatz (U1, U2, U3, U4) liegt direkt vor der Tür. Zudem verkehren hier mehrere Buslinien (M19, 106, 187, N1, N2, N26), was eine hervorragende Erreichbarkeit garantiert.
In unmittelbarer Umgebung befinden sich zahlreiche Einkaufsmöglichkeiten, Restaurants, Cafés und Dienstleister. Der Kurfürstendamm ist in nur etwa 10 Gehminuten erreichbar.
10787 Berlin, Germany
Facebook comments
Last broker properties View all broker properties →
Alte Dorfschmiede in Caminchen – viel Geschichte und Potenzial
One family house for sale € 94 000
15913 Caminchen, Germany
85 m² 3 1
€ 60 000Baugrundstück in toller Lage mit Seltenheitswert!
Wohngrundstück for sale € 60 000
15936 Dahme/Mark, Germany
654 m²
€ 189 000Ein Objekt für alle Fälle zum fairen Preis!
One family house for sale € 189 000
15913 Märkische Heide / Gröditsch, Germany
365 m² 11 4
Einzigartiges Wassergrundstück direkt am Wald
One family house for sale
15754 Prieros, Germany
266 m² 5 2
€ 349 000Einfamilienhaus im perfekten Zustand in toller Lage
One family house for sale € 349 000
03099 Kolkwitz, Germany
150 m² 5 2
€ 159 000Ein Haus für alle Fälle! Großfamilie, 2-Familien, WG, Mehrgenerationen, etc.
Duplex house for sale € 159 000
01990 Kleinkmehlen, Germany
120 m² 6 2
€ 185 000Märchenhaus! saniert, gemütlich, bezahlbar, verkehrsgünstig
One family house for sale € 185 000
15938 Drahnsdorf, Germany
100 m² 3 1
€ 89 000Projekt mit Zukunft - packen wir's an!
Duplex house for sale € 89 000
01994 Schipkau / Meuro, Germany
200 m² 7
€ 395 000Einziehen & wohlfühlen: Sanierter Bauernhof in idyllischer Brandenburg-Lage
Farm house for sale € 395 000
03249 Kleinkrausnik, Germany
250 m² 10 2
€ 185 000Schäfersee, 2-Zimmer mit Loggia zum ruhigen Hof, Altbau, saniert, Einbauküche, gute Lage
Wohnung for sale € 185 000
13407 Berlin, Germany
49 m² 2 1 1
€ 2 600 000Lukratives Gewerbe-Invest, Faktor 10!!!
Office building for sale € 2 600 000
14943 Luckenwalde, Germany
5 474 m²
€ 185 000Schäfersee, 2-Zimmer mit Loggia zum ruhigen Hof, Altbau, saniert, Einbauküche, gute Lage
Housing area for sale € 185 000
13407 Berlin, Germany
49 m² 2 1 1
