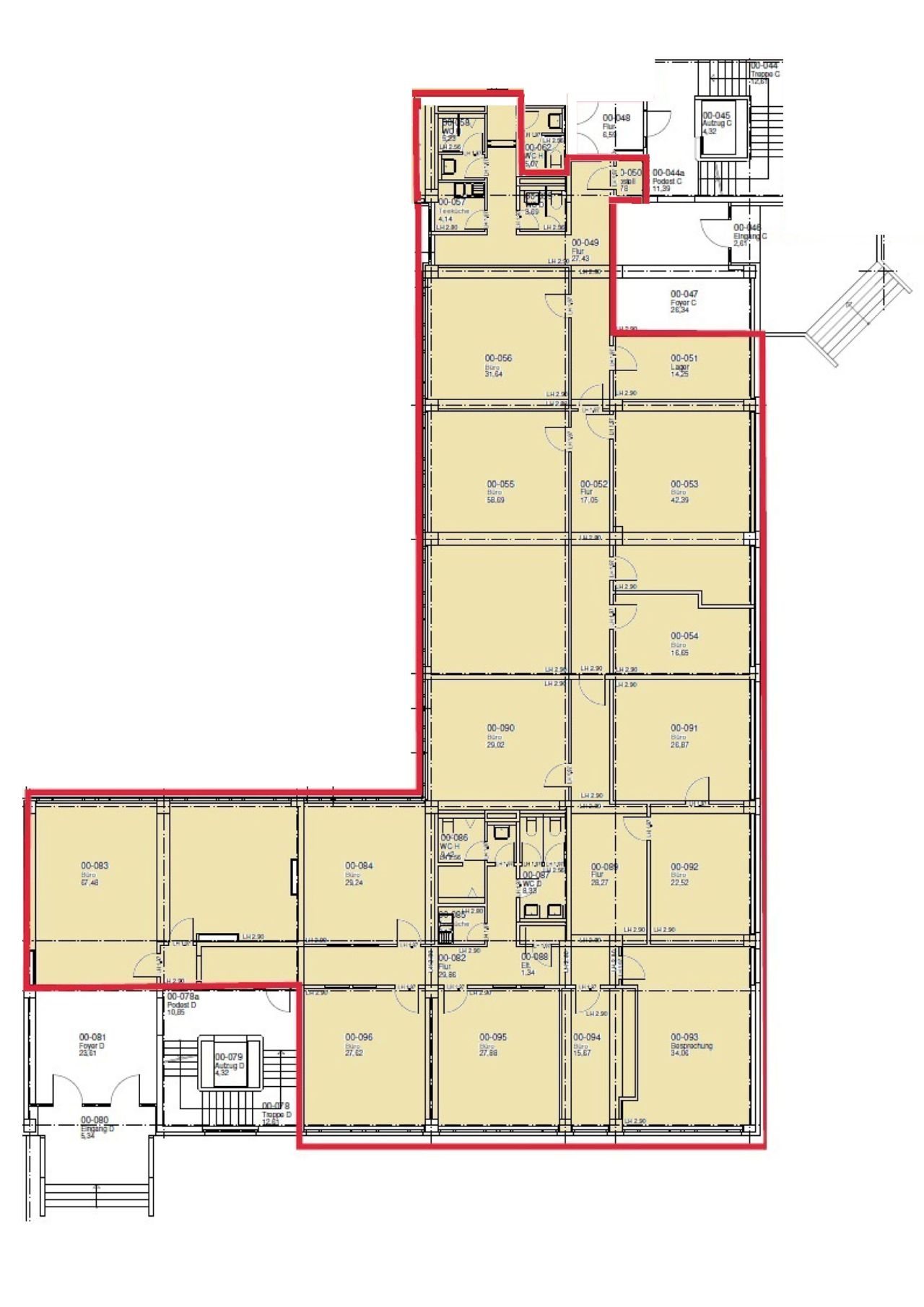
Großräumige und gestaltbare Bürofläche mit 14 Räumen in Leipzig Seehausen
Overview
Inside
Outside
Limitations & Requirements
Energy
Prices
Property description
Große Gewerbe/- Bürofläche in Leipzig Seehausen an der A14 neben dem "Sachsen-Park" und "Neue Messe".
Mögliche Nutzung:
- Versicherungsagentur
- Schulungs-/ Konferenzräume
- Großraumbüro
- Callcenter
- Wohnungsverwaltung / Immobilienbüro
- Kleinproduktion
- IT-Firma
- Vertrieb
- Startup
- Onlinehandel
Equipment
- 2 Zugänge
- Lift bis UG
- 14 Räume
- ca. 2,88 m Raumhöhe
- Boden: Teppich
- Deckenlampen
- Außenjalousien
- Bodentanks
- 6 WCs + 2 Urinale
- 2 Teeküchen-Anschlüsse
- Parkhaus sowie Außenstellplätze verfügbar
- schwellenfreier Zugang über den Innenhof
- Personenaufzug bis 630 kg
- Fernwärme
- 2. Rettungsweg
- der Grundriss und die Ausstattung kann mit dem Vermieter abgesprochen werden.
Location
Seehausen ist ein Ortsteil im Norden von Leipzig. Auf seinem Gebiet liegt das neue Messegelände der Stadt. Der Ortsteil umfasst die ehemaligen Ortschaften und jetzigen Leipziger Stadtteile Seehausen (mit dem Gelände der neuen Messe und dem Gewerbegebiet Sachsenpark), Göbschelwitz, Hohenheida, Gottscheina, und die Gemarkung Mark Neblitz, die sich in dieser Reihenfolge an Seehausen nach Nordosten anschließen.
In unmittelbarer Nähe befinden sich diverse Einkaufsmöglichkeiten, Banken, Ärzte, Schulen, Kindergärten und Restaurants. Die Leipziger Innenstadt ist in ca. 30 Minuten mit den öffentlichen Nahverkehrsmitteln erreichbar.
Ebenfalls sind die Leipziger Messe, der "Sachsen-Park", der Golfplatz Seehausen und die A14 in unmittelbarer Nähe.
Various
Die von uns gemachten Angaben haben wir nach bestem Wissen und Gewissen nach Informationen des Vermieters/Verkäufers und den uns übergebenen Informationen zusammengestellt. Eine Gewähr für diese Angaben können wir nicht übernehmen. Wichtige Zahlen und Informationen sind am Objekt zu überprüfen. Zwischenvermietung/Verkauf bleibt vorbehalten.
04356 Leipzig, Germany
Facebook comments
Last broker properties View all broker properties →
Ca. 35.270 m² gr. Gewerbegrundstück mit Lagerhallen, Gewächshaus, Wohnhäuser, Bürogebäude, Garagen, SP, Freilagerfläche u.v.m. - ca. 60 % vermietet
Industrial plant for sale € 5 980 000
04279 Leipzig, Germany
35 270 m²
€ 331 500Maisonette-DG-Whg. mit EBK, TG und Balkon, Interessant für Eigennutzer oder Kapitalanleger
Maisonette for sale € 331 500
04289 Leipzig, Germany
115 m² 5
€ 3 185Freistehende Produktions- und Warmlagerhalle im eingezäunten Gewerbehof mit Krahnbahn, Rolltor, Büro, WC+Dusche, SP mögl.
Hanger for rent € 3 185
04347 Leipzig, Germany
160 m²
€ 1 970 000Gewerbl. Baugrundstück + modernes, freist. Bestandsgebäude! Eigennutz + Kapitalanlage - mit Lift, Rolltor, 15 SP u.v.m.
Wohngrundstück for sale € 1 970 000
06130 Halle (Saale), Germany
2 497 m²
€ 1 299 800Sanierter Altbau mit Teilungserklärung, 1 GE + 6 WE, Balkone, umzäunter Innenhof, Keller
House - and Commercial building for sale € 1 299 800
04289 Leipzig, Germany
467 m²
€ 1 925Gewerbe-Außenfläche auf eingezäuntem Grundstück - 1,75 €/m² KM, max. 1.100 m²
Wohngrundstück for rent € 1 925
04416 Markkleeberg, Germany
1 100 m²
€ 420Betonierte Freifläche für ca. 16 Stellplätze - ca. 230 m² - eingezäuntes Grundstück
Various for rent € 420
04347 Leipzig, Germany
230 m²
€ 220 000ca. 1.250 m² großes Baugrundstück für Gewerbe im Gewerbegebiet Halle-Süd
Industry plot for sale € 220 000
06130 Halle (Saale), Germany
1 250 m²
€ 4 660Moderne Gewerbefläche mit Büro + Lager, Freifläche + SP möglich
Various for rent € 4 660
04347 Leipzig, Germany
481 m²
€ 1 5294-Raum DG-Wohnung in Lindenau mit Parkett, Dachterrasse, Lift, Fußbodenheizung, Abstellraum, Keller, SP mgl.
Attic apartment for rent € 1 529
Merseburger Str. 84, 04177 Leipzig, Germany
125 m² 4 2
€ 399 000Charmante, unsanierte Altbau-Perle mit viel Potential in Markkleeberg! Kulturdenkmal, 6 WE, Keller, Nebengebäude
Multi-family house for sale € 399 000
04416 Markkleeberg, Germany
420 m² 29
€ 5 000Ca. 2.000 m² eingezäunte Freifläche zu vermieten; 2,50 €/m²
Wohngrundstück for rent € 5 000
06126 Halle (Saale), Germany
2 000 m²
