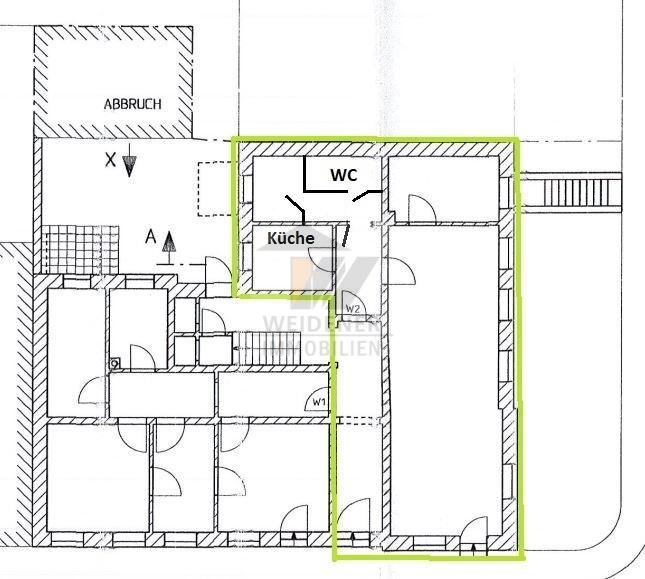
Gewerbefläche mit 3 Räumen, WC und Küche!
Übersicht
Innen
Extras zum Objekt
Energie
Preise
Objektbeschreibung
Weitere Informationen erhalten Sie unter 0365 - 855 236-0 - www.WEIDENER.immo -
Dieses Gewerbe ist mit 3 Räumen, einem WC und einer Küche ausgestattet. Es eignet sich gut als Büro- und Dienstleistungsfläche. Besonders ist das großflächige und mit vielen Fenstern versehene Büro, welches über einen separaten Kundeneingang verfügt.
Die Wärmeversorgung erfolgt über eine Gas-Zentralheizungsanlage.
Energieausweis:
– Verbrauchsausweis
– Energieverbrauch: 112,5 kWh/(m²a)
– Gültig bis: 25. Februar 2025
– Beheizung: Gas-Zentralheizung
– Baujahr: 1905
Kein Exposé kann den persönlichen Eindruck ersetzen. Gerne reservieren wir Ihnen einen persönlichen Besichtigungstermin.
Ausstattung
Merkmale der Ausstattung:
* Dieses Gewerbe umfasst 2 Büroräume mit einem Teppichboden.
* Es gibt zusätzlich ein Archiv mit einem Steinboden.
* Der Flur ist mit Fliesenboden ausgestattet.
* Das Badezimmer verfügt über Bodenfliesen und einen Fliesenspiegel.
* Die Küche bietet ein Fenster, Bodenfliesen und ebenfalls einen Fliesenspiegel.
* Ein separater Eingang sowohl für Büro- als auch für Kundenzugang ist vorhanden.
* Eine Klingelanlage mit Wechselsprechanlage ist installiert.
* Öffentliche Parkmöglichkeiten stehen vor dem Gebäude zur Verfügung.
Lage
Die Gewerbeimmobilie genießt eine äußerst zentrale Lage. Der Hauptbahnhof sowie die Innenstadt sind nur wenige Gehminuten entfernt. Geschäfte für den täglichen Bedarf befinden sich in unmittelbarer Nähe. Die nächste Straßenbahnhaltestelle ist lediglich eine Minute entfernt, was eine hervorragende Anbindung an den öffentlichen Nahverkehr gewährleistet.
Sonstiges
Besichtigung:
Bitte wenden Sie sich an Herrn Schröter von unserem Weidener Immobilien Vermietungsteam unter 0365 - 855 236-0 oder empfang@immobilien-weidener.de
Alle Angaben stammen vom Eigentümer. Die Firma Weidener Immobilien übernimmt daher keine Haftung für die Richtigkeit der Angaben. Insbesondere die Angaben zur Wohnfläche, zur Nutzfläche und zur Aufteilung der Wohn-/Nutzfläche sind von uns nicht durch ein eigenes Aufmaß oder eine eigene Wohnflächenberechnung kontrolliert worden. Die Angaben zum Baujahr sind nicht durch eine Einsicht in die Bauakte überprüft worden.
Um zeitliche Verzögerungen beim Versand Ihres angeforderten Exposés zu vermeiden, bitten wir Sie, bei der Exposé-Anforderung Ihre vollständige Anschrift mit Telefonnummer etc. anzugeben.
Bitte haben Sie Verständnis dafür, dass wir nur Anfragen bearbeiten können, bei denen die Kontaktdaten komplett, inklusive Ihrer E-Mail und Telefonnummer, angegeben sind.
Sie möchten mehr Informationen: Dann rufen Sie uns an!
Für weiterführende Gespräche und Informationen stehen wir Ihnen gern jederzeit zur Verfügung.
Weitere Informationen erhalten Sie unter 0365 - 855 236-0 - www.WEIDENER.immo - Wir freuen uns auf Sie!
Gagarinstraße 49, 07545 Gera, Germany
Meta
Weitere Objekte des Maklers Alle Objekte des Anbieters anzeigen →
Bestlage! Tolle 3-Raum Wohnung mit Balkon, Aufzug & EBK in Untermhaus direkt am Küchengarten!
Wohnung zur Miete € 585
Feuerbachstraße 1b, 07548 Gera, Germany
73 m² 3 1 1
€ 329 000Einfamilienhaus mit Poolhaus, Nebengebäuden und viel Garten!
Einfamilienhaus zu Verkauf € 329 000
07549 Gera, Germany
835 m² 4 2 1
€ 115 0003 Raum-Eigentumswohnung + TG Stellplatz in ansprechender Wohngegend!
Dachgeschosswohnung zu Verkauf € 115 000
Levenstrasse 2, 07545 Gera, Germany
0 m² 3 1 1
€ 365Erstbezug nach Modernisierung mit Tiefgarage im Zentrum von Gera!
Wohnung zur Miete € 365
Schülerstraße 15, 07545 Gera, Germany
56 m² 2 1 1
€ 325Untermhaus! Einbauküche! Modernisierte Singlewohnung mit schicken Bad!
Wohnung zur Miete € 325
Feuerbachstraße 2, 07548 Gera, Germany
50 m² 1 1
€ 510Mit Kamin! Wohnen im historischen Altbau direkt in der City!
Wohnung zur Miete € 510
Große Kirchstraße 15, 07545 Gera, Germany
80 m² 2 1 1
€ 520Gewerbefläche im Souterrain in historischer Villa - Zentrumslage
Bürohaus zur Miete € 520
Berliner Straße 19, 07545 Gera, Germany
104 m² 2 3 2
€ 435Moderne 3-Raum Erdgeschosswohnung Einbauküche, Balkon und modernem Bad!
Erdgeschosswohnung zur Miete € 435
Plauensche Straße 63, 07551 Gera, Germany
67 m² 3 2 1
€ 4 300Große Halle im Gewerbepark Keplerstraße in Gera: 1440 m² für Lager, Werkstatt oder individuelle Nutzung!
Halle zur Miete € 4 300
Gewerbepark Keplerstraße 14-16, 07549 Gera, Germany
1 440 m²
€ 360Balkon und Aufzug in der Innenstadt von Gera nahe dem Süd-Bahnhof!
Wohnung zur Miete € 360
Sachsenplatz 13, 07545 Gera, Germany
60 m² 2 1 1
€ 220Gemütliche Single-1 Raum-Wohnung mit Dusche in Zwötzen!
Wohnung zur Miete € 220
Lange Straße 48, 07551 Gera, Germany
36 m² 1 1
€ 485Mit Weitblick! 2,5 Raum DG Wohnung mit offener Küche im Wohnzimmer. Modernes Bad mit Wanne!
Dachgeschosswohnung zur Miete € 485
Gagarinstraße 52, 07545 Gera, Germany
88 m² 3 2 1
