Flexible Gewerbefläche im Zentrum von Gera – Gestalten Sie nach Ihren Wünschen!
Übersicht
Innen
Extras zum Objekt
Energie
Preise
Objektbeschreibung
Weitere Informationen erhalten Sie unter 0365 - 855 236-0 - www.WEIDENER.immo - Wir freuen uns auf Sie!
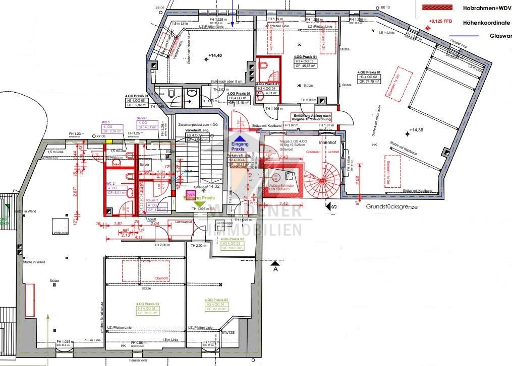
Die modern sanierte Gewerbeeinheit befindet sich im Dachgeschoss. Die meisten Einheiten des Gebäudes werden bereits als Praxisflächen von Ärzten oder als Apotheke genutzt. Allerdings muss es nicht unbedingt eine medizinische Einrichtung sein. Das Gewerbe eignet sich ebenso hervorragend als Office.
Die Wärmeversorgung erfolgt über eine Gas-Zentralheizungsanlage.
**Hinweis zum Energieausweis:** für dieses Gebäude aufgrund Denkmal nicht notwendig
Kein Exposé kann den persönlichen Eindruck ersetzen. Gerne reservieren wir Ihnen einen persönlichen Besichtigungstermin.
Ausstattung
**Ausstattung:**
* Die Gewerbeeinheit befindet sich aktuell im Rohbau
* Mietinteressenten können den individuellen Ausbau mit dem Eigentümer abstimmen
* Aufzug direkt bis zur Gewerbeeinheit
* PKW Stellplätze nach Verfügbarkeit am Objekt
* Es ist ebenso möglich nur die Hälfte der Fläche zu mieten:
- DG hinten (143 m²)
- DG vorne (146 m²)
Der angegebene Mietpreis stellt die Basismiete im aktuellen Zustand dar. Der endgültige Mietpreis wird individuell auf Ihre Wünsche abgestimmt – abhängig von der Vertragslaufzeit sowie den gewünschten Ausstattungs- und Umbauoptionen. So erhalten Sie maximale Flexibilität und eine maßgeschneiderte Lösung, die perfekt zu Ihren Bedürfnissen passt.
Lage
**Lage:**
Das Objekt befindet sich an einem belebten Platz direkt in der Geraer Innenstadt. Der Marktplatz sowie der Hauptbahnhof kann in 5 Gehminuten erreicht werden. Direkt vor der Haustür befindet sich eine Straßenbahnhaltestelle. Somit ist das Gebäude perfekt mittels öffentlichen Personennahverkehr erreichbar.
In innerhalb von 10 Fahrminuten erreicht man die Autobahnanbindung A4. Nach der Landeshauptstadt Erfurt und der Universitätsstadt Jena, ist Gera die drittgrößte Stadt Thüringens mit einer Einwohnerzahl von ca. 95.000.
Sonstiges
**Kontaktaufnahme und Besichtigungstermin**
Sie interessieren sich für diese Immobilie? Das freut uns sehr!
Bitte senden Sie uns Ihre Anfrage **schriftlich über dieses Portal** oder direkt an **Herrn Weidener** aus unserem **kompetenten Vermietungsteam von Weidener Immobilien** unter:
empfang@immobilien-weidener.de
Um Ihnen das Exposé ohne Verzögerung zusenden zu können, bitten wir Sie, bei Ihrer Anfrage **Ihre vollständige Anschrift sowie Ihre Telefonnummer** anzugeben. Bitte haben Sie Verständnis, dass wir **ausschließlich Anfragen mit vollständigen Kontaktdaten** (inklusive E-Mail-Adresse und Telefonnummer) berücksichtigen können.
Gerne können Sie bereits **erste Terminvorschläge für eine Besichtigung** übermitteln. Wir setzen uns im Anschluss **zeitnah telefonisch mit Ihnen in Verbindung**, um Ihren Wunschtermin zu bestätigen und alle weiteren Schritte persönlich mit Ihnen abzustimmen.
**Persönlich. Verlässlich. Weidener Immobilien.**
Mit unserer langjährigen Marktkenntnis und einem engagierten Team bieten wir Ihnen individuelle Betreuung auf Augenhöhe – vom ersten Kontakt bis zur Schlüsselübergabe.
?? **Kontakt:**
Tel.: 0365 - 855 236-0
E-Mail: empfang@immobilien-weidener.de
Web: www.WEIDENER.immo
*Alle Angaben beruhen auf Informationen des Eigentümers. Für deren Richtigkeit übernehmen wir keine Haftung.*
Wir freuen uns auf Ihre Nachricht und darauf, Sie bald persönlich kennenzulernen!
Puschkinplatz 2, 07545 Gera, Germany
Meta
Weitere Objekte des Maklers Alle Objekte des Anbieters anzeigen →
Bestlage! Tolle 3-Raum Wohnung mit Balkon, Aufzug & EBK in Untermhaus direkt am Küchengarten!
Wohnung zur Miete € 585
Feuerbachstraße 1b, 07548 Gera, Germany
73 m² 3 1 1
€ 329 000Einfamilienhaus mit Poolhaus, Nebengebäuden und viel Garten!
Einfamilienhaus zu Verkauf € 329 000
07549 Gera, Germany
835 m² 4 2 1
€ 115 0003 Raum-Eigentumswohnung + TG Stellplatz in ansprechender Wohngegend!
Dachgeschosswohnung zu Verkauf € 115 000
Levenstrasse 2, 07545 Gera, Germany
0 m² 3 1 1
€ 365Erstbezug nach Modernisierung mit Tiefgarage im Zentrum von Gera!
Wohnung zur Miete € 365
Schülerstraße 15, 07545 Gera, Germany
56 m² 2 1 1
€ 325Untermhaus! Einbauküche! Modernisierte Singlewohnung mit schicken Bad!
Wohnung zur Miete € 325
Feuerbachstraße 2, 07548 Gera, Germany
50 m² 1 1
€ 510Mit Kamin! Wohnen im historischen Altbau direkt in der City!
Wohnung zur Miete € 510
Große Kirchstraße 15, 07545 Gera, Germany
80 m² 2 1 1
€ 520Gewerbefläche im Souterrain in historischer Villa - Zentrumslage
Bürohaus zur Miete € 520
Berliner Straße 19, 07545 Gera, Germany
104 m² 2 3 2
€ 435Moderne 3-Raum Erdgeschosswohnung Einbauküche, Balkon und modernem Bad!
Erdgeschosswohnung zur Miete € 435
Plauensche Straße 63, 07551 Gera, Germany
67 m² 3 2 1
€ 4 300Große Halle im Gewerbepark Keplerstraße in Gera: 1440 m² für Lager, Werkstatt oder individuelle Nutzung!
Halle zur Miete € 4 300
Gewerbepark Keplerstraße 14-16, 07549 Gera, Germany
1 440 m²
€ 360Balkon und Aufzug in der Innenstadt von Gera nahe dem Süd-Bahnhof!
Wohnung zur Miete € 360
Sachsenplatz 13, 07545 Gera, Germany
60 m² 2 1 1
€ 220Gemütliche Single-1 Raum-Wohnung mit Dusche in Zwötzen!
Wohnung zur Miete € 220
Lange Straße 48, 07551 Gera, Germany
36 m² 1 1
€ 485Mit Weitblick! 2,5 Raum DG Wohnung mit offener Küche im Wohnzimmer. Modernes Bad mit Wanne!
Dachgeschosswohnung zur Miete € 485
Gagarinstraße 52, 07545 Gera, Germany
88 m² 3 2 1
