Ladengeschäft/Büro mit Schaufenster! - Keine Gastronomie und kein Friseur
Übersicht
Energie
Preise
Objektbeschreibung
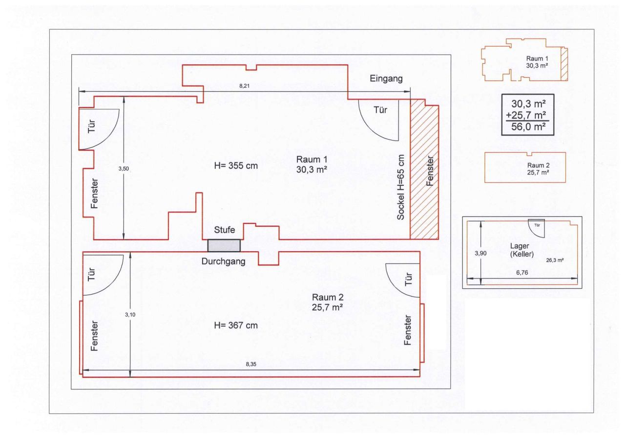
Das gemütliche Ladengeschäft bietet mit seinen beiden Verkaufsräumen genug Platz Ideen umzusetzen. Gastronomie findet hier aufgrund mangelnder Anschlussmöglichkeiten KEINEN Platz!
Zwei Schaufenster bieten die Möglichkeit, Passanten durch gleich zwei Eingänge in den Laden zu locken.
Toiletten und Keller befinden sich im Untergeschoss, während der Laden im Erdgeschoss gut von der Straße aus zu erreichen ist.
In der Miete sind 19 % Mwst. enthalten. Keine Gastronomie und kein Friseur! Anfragen zu Gastronomie sind zwecklos.
Lage
Verwirklichen Sie Ihren Traum vom eigenen Ladenlokal in zentrumsnaher Lage! 100m von Schwarzwaldcity und Siegesdenkmal entfernt, ist das Ladenlokal gut zu Fuß aus der Innenstadt erreichbar. Durch die Lage am Friedrichring ist der Einkauf aber auch mit dem Auto kein Problem. Parkplätze direkt vor der Haustür bieten kurzzeitig eine gute Parkmöglichkeit. Soll der Einkauf länger dauern, ist das Parkhaus der nahe gelegenen Schwarzwaldcity die bessere Wahl.
Die gemischte Nachbarschaft, bestehend aus Büros, Gastronomie, Bildungseinrichtungen und Wohnhäusern beinhaltet sowohl potentielle Kundschaft, als auch die Möglichkeit die Mittagspause angenehm zu gestalten.
Sonstiges
Wir legen großen Wert darauf, Ihnen sorgfältig aufbereitete Informationen bereitzustellen. Alle Angaben in diesem Exposé dienen Ihrer Orientierung und basieren auf den uns vom Eigentümer zur Verfügung gestellten Informationen. Trotz gewissenhafter Prüfung können wir für deren Vollständigkeit und Richtigkeit keine Gewähr übernehmen.
Bitte beachten Sie, dass dieses Angebot freibleibend und unverbindlich ist. Änderungen, Irrtümer sowie ein Zwischenverkauf oder eine Zwischenvermietung bleiben vorbehalten. Flächenangaben können geringfügig abweichen.
Wir freuen uns, Ihnen mit diesen Informationen eine erste Entscheidungsgrundlage zu bieten und stehen Ihnen gerne für weitere Details und Besichtigungen zur Verfügung.
Exklusiv für Verkäufer: Sie möchten wissen, was Ihre Immobilie wert ist? Verkäufern bieten wir bis zum 30.04.2026 eine kostenfreie Immobilienbewertung vom Diplom-Sachverständigen (DIA) im Wert von 500 EUR an. Rufen Sie jetzt unter Tel. 0761 – 70 43 94 94 an.
79104 Freiburg im Breisgau, Germany
Meta
Weitere Objekte des Maklers Alle Objekte des Anbieters anzeigen →
Büro in Innenstadtnähe
Büro- / Praxisfläche zur Miete € 1 675
79104 Freiburg im Breisgau, Germany
90 m² 3
€ 620Kleines Büro in Innenstadtnähe
Büro- / Praxisfläche zur Miete € 620
79104 Freiburg im Breisgau, Germany
34 m² 1
€ 384 000Provisionsfreie Terrassenwohnung mit Gartennutzung in Betzenhausen
Terrassenwohnung zu Verkauf € 384 000
79110 Freiburg im Breisgau, Germany
72 m² 4 2 2
€ 399 900Renditestarke Kapitalanlage
Zweifamilienhaus zu Verkauf € 399 900
79297 Winden im Elztal, Germany
188 m² 7 4 2
€ 434 900Bezugsfreies freistehendes Zweifamilienhaus
Zweifamilienhaus zu Verkauf € 434 900
79297 Winden im Elztal, Germany
188 m² 7 4 2
€ 429 900Bezugsfreie 3-Zimmer-Wohnung! Prov. frei in Littenweiler!
Wohnung zu Verkauf € 429 900
79117 Freiburg im Breisgau, Germany
83 m² 3 1
€ 154 900Praktische 1-Zimmer-Wohnung! Bezugs- und Prov. frei!
Wohnung zu Verkauf € 154 900
79117 Freiburg im Breisgau, Germany
26 m² 1 1
€ 324 9003-Zimmer-Wohnung in Freiburg Stühlinger - Prov. Frei!
Wohnung zu Verkauf € 324 900
79106 Freiburg im Breisgau, Germany
59 m² 3 1
