Grundstück für eine geplante Doppelhaushälfte in Trebbin mit Baugenehmigung
Übersicht
Aussen
Energie
Preise
Objektbeschreibung
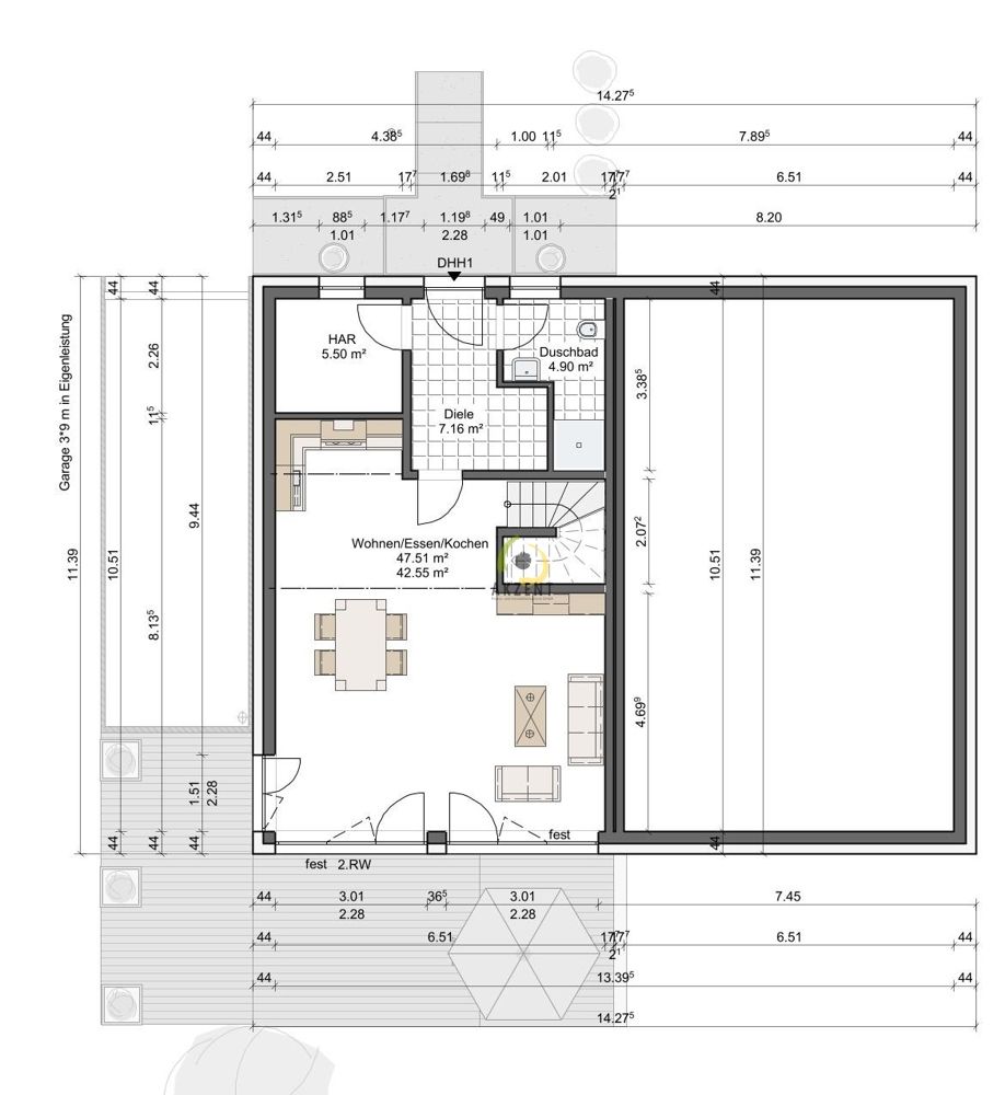
Das hier zum Kauf angebotene ruhig gelegen Grundstück mit ca. 392 m² bestehend aus Bauland, Gartenland und anteiliger Straßenfläche wird mit einer Doppelhaushälfte verkauft.
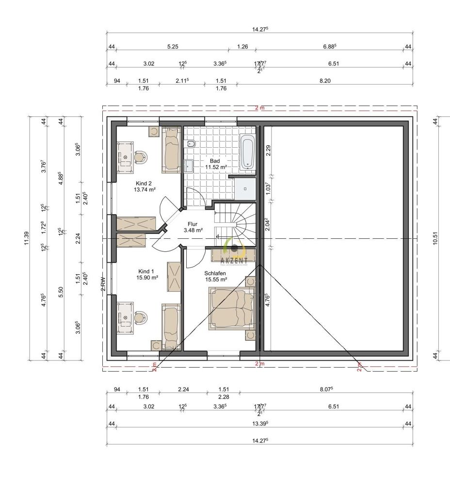
Der Werkvertrag für die Bebauung mit einem Doppelhaus mit zwei Vollgeschossen und ca. 119 m² Wohnfläche wird mit der Firma Fibav abgeschlossen.
Das Grundstück ist von der Straße zurückgesetzt (dritte Reihe) und daher sehr ruhig gelegen.
Durch den Erwerb einer anteiligen Straßenfläche entsteht ein privater Zugang zu den Häusern.
Die Doppelhaushälfte wird zu einem Preis von 350.000,00 € angeboten. Die Baunebenkosten sind im Preis nicht enthalten und belaufen sich auf ca. 38.000,00 €.
Weitere Fragen zum Grundstück und zur Planung Ihrer Doppelhaushälfte beantworte ich Ihnen gern in einem persönlichen Gespräch, entweder in unseren Büroräumen in Berlin oder auch gern am Telefon.
Ausstattung
- Doppelhaushälfte der Firma Fibav mit 119 m² Wohnfläche
- Grundstück mit ca. 392 m²
- massive Bauweise
- Fußbodenheizung
- Rollläden im Ergeschoss
- Terrasse im Erdgeschoss mit Südausrichtung
- Großer Wohnbereich mit Südausrichtung
- offene Küche im Wohnbereich (ohne Einbauküche)
- 1. OG Badezimmer mit Badewanne und Dusche
- EG Duschbad mit WC
- Beheizung über Luft-Wasser-Wärmepumpe
- Carport neben dem Haus
- Keine Unterkellerung
Lage
Die amtsfreie Stast Trebbin liegt im Landkreis Teltow-Fläming. Trebbin liegt zwischen Teltow und dem Fläming am Rande einer Niederung östlich der Nuthe 36 Kilometer südlich von Berlin. Die Stadt liegt an der östlichen Grenze des Naturparks Nuthe-Nieplitz bzw. mit einigen Ortsteilen auch im Naturpark. Der Ortsteil Blankensee befindet sich am gleichnamigen See. Der Ortsteil Glau liegt an den Glauer Bergen.
Die Bundesstraße B 101 ermöglich es sehr schnell Berlin zu erreichen.
Sonstiges
Die Provision in Höhe von 7,14 % inkl. der gesetzlichen Mehrwertsteuer bezogen auf den Grundstückspreis in Höhe von 158.100 € ist bei Vertragsabschluss fällig und zahlbar und vom Käufer an die AKZENT Finanz- und Immobilienservice GmbH zu zahlen. Wir weisen darauf hin, dass je nach Nachfrage der Angebotspreis nach Verhandlung noch steigen oder sinken kann. Es gelten unsere Allgemeinen Geschäftsbedingungen.
14959 Trebbin, Germany
Meta
Weitere Objekte des Maklers Alle Objekte des Anbieters anzeigen →
Ihr Grundstück - Ein Rückzugsort zwischen Feldern und Metropole
Wohngrundstück zu Verkauf € 189 500
15366 Neuenhagen bei Berlin, Germany
561 m²
€ 439 000Familienfreundliches Reihenendhaus in ruhiger Lage - vermietet
Reihenendhaus zu Verkauf € 439 000
14656 Brieselang, Germany
104 m² 4 3 1
€ 379 000Ihr Grundstück - Stadtnah & naturnah – die perfekte Balance
Wohngrundstück zu Verkauf € 379 000
15366 Neuenhagen bei Berlin, Germany
1 121 m²
€ 400 000Familienfreundliche Doppelhaushälfte mit Garten und 5 Zimmern zum Wohlfühlen
Doppelhaushälfte zu Verkauf € 400 000
16727 Oberkrämer, Germany
120 m² 5 4 1
€ 449 000Seltene Gelegenheit - Erstbezug in frisch sanierten Bungalow in besonderer, ruhiger Wohnlage
Einfamilienhaus zu Verkauf € 449 000
13089 Berlin, Germany
108 m² 3 2 1
€ 309 000Sonnige 2,5-Zimmer-Wohnung mit Südost-Balkon und schönem Ausblick in ruhiger Lage im 2. Obergeschoss
Wohnung zu Verkauf € 309 000
13349 Berlin, Germany
73 m² 3 2 1
€ 389 000Historische Fabrikanten-Villa von Richard Kyburg - hier kann man herrschaftlich Wohnen
Villa zu Verkauf € 389 000
14943 Luckenwalde, Germany
318 m² 8 7 4
€ 199 000Absolute ruhige Lage am Wald - 30 Minuten nach Berlin
Wohngrundstück zu Verkauf € 199 000
14547 Beelitz / Fichtenwalde, Germany
1 147 m²
€ 970 000Wohnen nahe Kurfürstendamm: Exklusive 4-Zimmer-Wohnung mit Südbalkon - Einziehen ab 06-2027
Wohnung zu Verkauf € 970 000
10707 Berlin, Germany
110 m² 4 3 2
€ 240 000Ruhige 2 Zimmerwohnung im Herzen von Charlottenburg an der Suarezstrasse und nah des Lietzenseeparks
Wohnung zu Verkauf € 240 000
14057 Berlin, Germany
65 m² 2 1 1
€ 1 999 900Exklusives Westend-Juwel mit zusätzlichem Baugrundstück ca. 450 m²
Einfamilienhaus zu Verkauf € 1 999 900
14050 Berlin, Germany
302 m² 8 6 3
€ 185 000Sanierte 2-Zimmer-Wohnung mit Stellplatz und Balkon - bezugsfrei
Wohnung zu Verkauf € 185 000
12277 Berlin, Germany
50 m² 2 1 1
Ähnliche Objekte Ähnliche Angebote zu dieser Immobilie →
Absolute ruhige Lage am Wald - 30 Minuten nach Berlin
Wohngrundstück zu Verkauf € 199 000
14547 Beelitz / Fichtenwalde, Germany
1 147 m²
€ 158 100Grundstück für eine geplante Doppelhaushälfte in Trebbin mit Baugenehmigung
Wohngrundstück zu Verkauf € 158 100
14959 Trebbin, Germany
396 m²
€ 85 950Wohngrundstück in Groß Kreutz zu verkaufen.
Wohngrundstück zu Verkauf € 85 950
14550 Groß Kreutz, Germany
573 m²
€ 199 000Falkensee: Grundstück mit ca. 550 m²
Wohngrundstück zu Verkauf € 199 000
14612 Falkensee, Germany
550 m²
€ 60 000Baugrundstück in toller Lage mit Seltenheitswert!
Wohngrundstück zu Verkauf € 60 000
15936 Dahme/Mark, Germany
654 m²
€ 187 554Hausbau 2026 am Wasser - TRAUMHAFTE Lage, attraktiv, nicht länger TRÄUMEN..... machen
Various zu Verkauf € 187 554
14929 Treuenbrietzen, Germany
719 m²
€ 100 000Wohngrundstück in Niemegk zu verkaufen. Es ist ein Bauplatz nach § 34 der Bauordnung.
Wohngrundstück zu Verkauf € 100 000
14823 Niemegk, Germany
902 m²
€ 94 000Baugrundstück für EFH oder ZFH in toller Lage
Wohngrundstück zu Verkauf € 94 000
15910 Rietzneuendorf-Staakow, Germany
2 382 m²
