Kompletter Leerstand möglich - Wohn- und Geschäftshaus mit 4 Einheiten, Werkstatt und Stellplätzen
Übersicht
Aussen
Energie
Preise
Objektbeschreibung
Auf dem ca. 1.011 m² großen Grundstück befindet sich ein Wohn- und Geschäftshaus mit insgesamt vier Einheiten. Sowohl die Gewerbeeinheit im Erdgeschoss, die zuletzt als Friseursalon genutzt wurde, als auch die Gewerbefläche im Obergeschoss stehen aktuell leer.
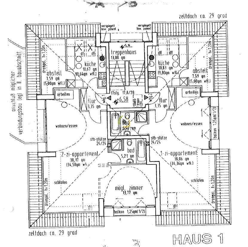
Im Dachgeschoss befinden sich zwei Wohnungen: Die 2-Zimmer-Wohnung ist bereits frei, die 1-Zimmer-Wohnung kann sechs Monate nach Eingang des Kaufpreises geräumt übergeben werden, sodass Ihnen perspektivisch das gesamte Objekt zur individuellen Nutzung zur Verfügung steht.
Ein Kellerraum ist derzeit noch belegt und wird bis spätestens zwölf Monate nach Kaufpreiszahlung frei übergeben. Insgesamt eröffnen sich somit vielfältige Nutzungsmöglichkeiten – sowohl für die vollständige Vermietung als auch für eine Kombination aus Eigennutzung und Vermietung der einzelnen Einheiten.
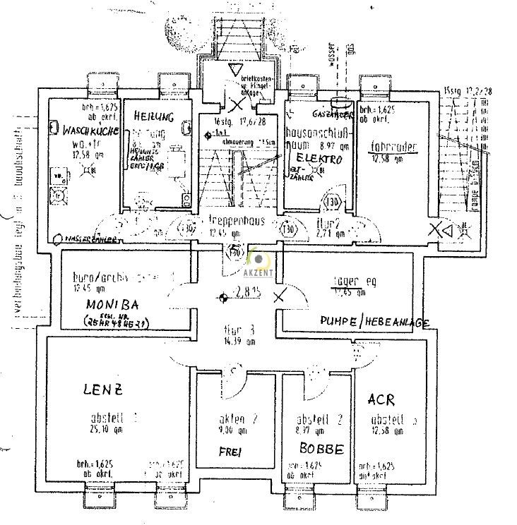
Ergänzt wird das Angebot durch eine ca. 65 m² große, bereits bezugsfreie Garage neben dem Gebäude sowie acht Außenstellplätze. Das Haus ist vollständig unterkellert und bietet neben klassischen Kellerräumen einen Fahrradraum, einen Elektroraum, einen Waschkeller sowie die im Untergeschoss befindliche Gas-Zentralheizung.
Die Flächenaufteilung stellt sich wie folgt dar:
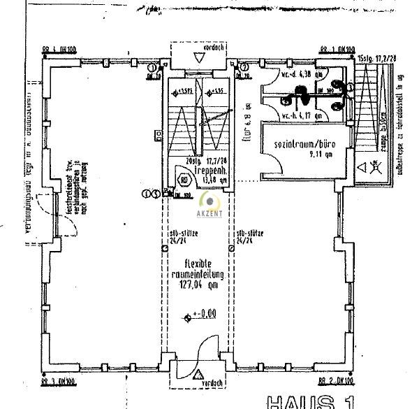
- Erdgeschoss: ca. 150 m²
- Obergeschoss ca. 148 m²
- Dachgeschoss links ca. 65 m²
- Dachgeschoss rechts ca. 75 m²
- Garage / Werkstatt ca. 65 m²
- Keller mit Fahrradkeller, Mieterkellern, Heizungsraum, Elektroraum
Ausstattung
- 1011 m² großes Grundstück zentraler Lage von Stahnsdorf
- Baujahr 1995
- 4 Einheiten zzgl. Garage / Werkstatt
- Leerstand von 100 % zeitnah möglich
- ca. 503 m² Nutzfläche inkl. Garage / Werkstatt (ohne Keller)
- Gaszentralheizung aus dem Jahr 1996
Lage
Stahnsdorf liegt zwischen Kleinmachnow und Potsdam im Landkreis Potsdam-Mittelmark von Brandenburg.
Die Lage bietet eine ausgezeichnete Infrastruktur. In unmittelbarer Nähe finden Sie Supermärkte, Restaurants, Schulen und Kindergärten, die den täglichen Bedarf abdecken.
Die Verkehrsanbindung nach Berlin und Potsdam ist hervorragend, mit einer schnellen Anbindung an die Autobahn A115 und die Bundesstraße B1. Der nächste S-Bahnhof befindet sich in Teltow und ist mit dem Fahrrad in wenigen Minuten zu erreichen. Die S-Bahn bietet eine bequeme Verbindung in die Innenstädte von Berlin und Potsdam.
Zu den nahe gelegenen Sehenswürdigkeiten zählen der Botanische Garten in Potsdam, das Schloss Babelsberg und der Wannsee, die alle leicht zu erreichen sind und zu erholsamen Ausflügen einladen.
Sonstiges
Die Provision in Höhe von 7,14 % inkl. der gesetzlichen Mehrwertsteuer bezogen auf den Kaufpreis ist bei Vertragsabschluss fällig und zahlbar und vom Käufer an die AKZENT Finanz- und Immobilienservice GmbH zu zahlen. Wir weisen darauf hin, dass je nach Nachfrage der Angebotspreis nach Verhandlung noch steigen oder sinken kann. Es gelten unsere Allgemeinen Geschäftsbedingungen.
14532 Stahnsdorf, Germany
Meta
Weitere Objekte des Maklers Alle Objekte des Anbieters anzeigen →
Kompletter Leerstand möglich - Wohn- und Geschäftshaus mit 4 Einheiten, Werkstatt und Stellplätzen
Mehrfamilienhaus zu Verkauf € 1 249 000
14532 Stahnsdorf, Germany
503 m² 10
€ 279 500Bezugsfrei ab JULI 2026 - Fußläufig zum Wrangelkiez - 2-Zimmerwohnung
Wohnung zu Verkauf € 279 500
12059 Berlin, Germany
57 m² 2 1 1
€ 158 0003-Zimmer-Dachgeschosswohnung in ruhiger Lage mit Balkon und Außenstellplatz
Dachgeschosswohnung zu Verkauf € 158 000
16321 Bernau, Germany
60 m² 3 2 1
€ 189 500Ihr Grundstück - Ein Rückzugsort zwischen Feldern und Metropole
Wohngrundstück zu Verkauf € 189 500
15366 Neuenhagen bei Berlin, Germany
561 m²
€ 439 000Familienfreundliches Reihenendhaus in ruhiger Lage - vermietet
Reihenendhaus zu Verkauf € 439 000
14656 Brieselang, Germany
104 m² 4 3 1
€ 379 000Ihr Grundstück - Stadtnah & naturnah – die perfekte Balance
Wohngrundstück zu Verkauf € 379 000
15366 Neuenhagen bei Berlin, Germany
1 121 m²
€ 400 000Familienfreundliche Doppelhaushälfte mit Garten und 5 Zimmern zum Wohlfühlen
Doppelhaushälfte zu Verkauf € 400 000
16727 Oberkrämer, Germany
120 m² 5 4 1
€ 449 000Seltene Gelegenheit - Erstbezug in frisch sanierten Bungalow in besonderer, ruhiger Wohnlage
Einfamilienhaus zu Verkauf € 449 000
13089 Berlin, Germany
108 m² 3 2 1
€ 309 000Sonnige 2,5-Zimmer-Wohnung mit Südost-Balkon und schönem Ausblick in ruhiger Lage im 2. Obergeschoss
Wohnung zu Verkauf € 309 000
13349 Berlin, Germany
73 m² 3 2 1
€ 389 000Historische Fabrikanten-Villa von Richard Kyburg - hier kann man herrschaftlich Wohnen
Villa zu Verkauf € 389 000
14943 Luckenwalde, Germany
318 m² 8 7 4
€ 199 000Absolute ruhige Lage am Wald - 30 Minuten nach Berlin
Wohngrundstück zu Verkauf € 199 000
14547 Beelitz / Fichtenwalde, Germany
1 147 m²
€ 970 000Wohnen nahe Kurfürstendamm: Exklusive 4-Zimmer-Wohnung mit Südbalkon - Einziehen ab 06-2027
Wohnung zu Verkauf € 970 000
10707 Berlin, Germany
110 m² 4 3 2
