Saniertes Rendite Objekt - Mehrfamilienhaus in Groitzsch zu verkaufen
Площ
Inside
Outside
Изисквания и ограничения
Енергия
Цени
Описание на недвижимата собственост
Dieses Mehrfamilienhaus aus dem Jahr 1901 besticht durch seinen historischen Charakter und die umfassenden Modernisierungsmaßnahmen, die es zu einem attraktiven Anlageobjekt machen. Ursprünglich denkmalgeschützt, sind nun alle Denkmalschutzauflagen aufgehoben, was dem zukünftigen Eigentümer mehr Flexibilität bietet. Die Immobilie wurde in den letzten Jahren umfassend saniert und befindet sich heute in einem ansprechenden Zustand.
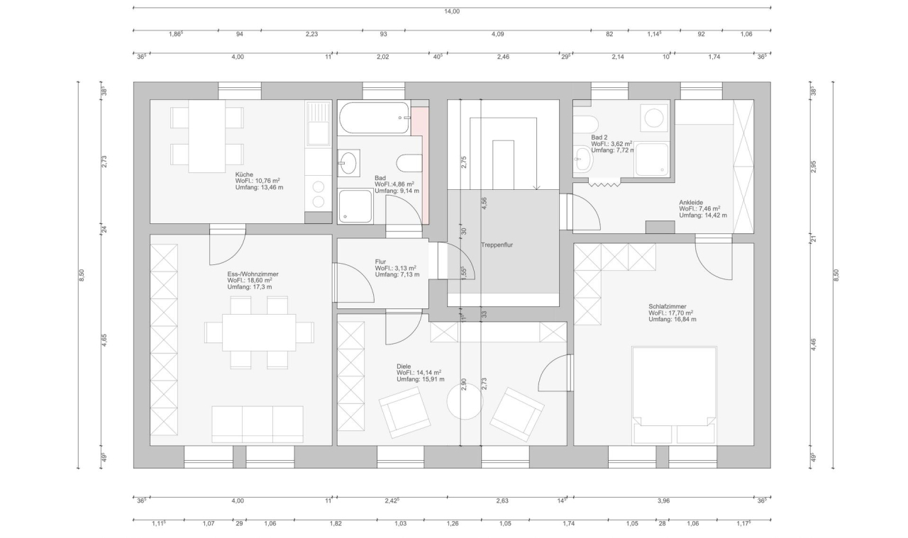
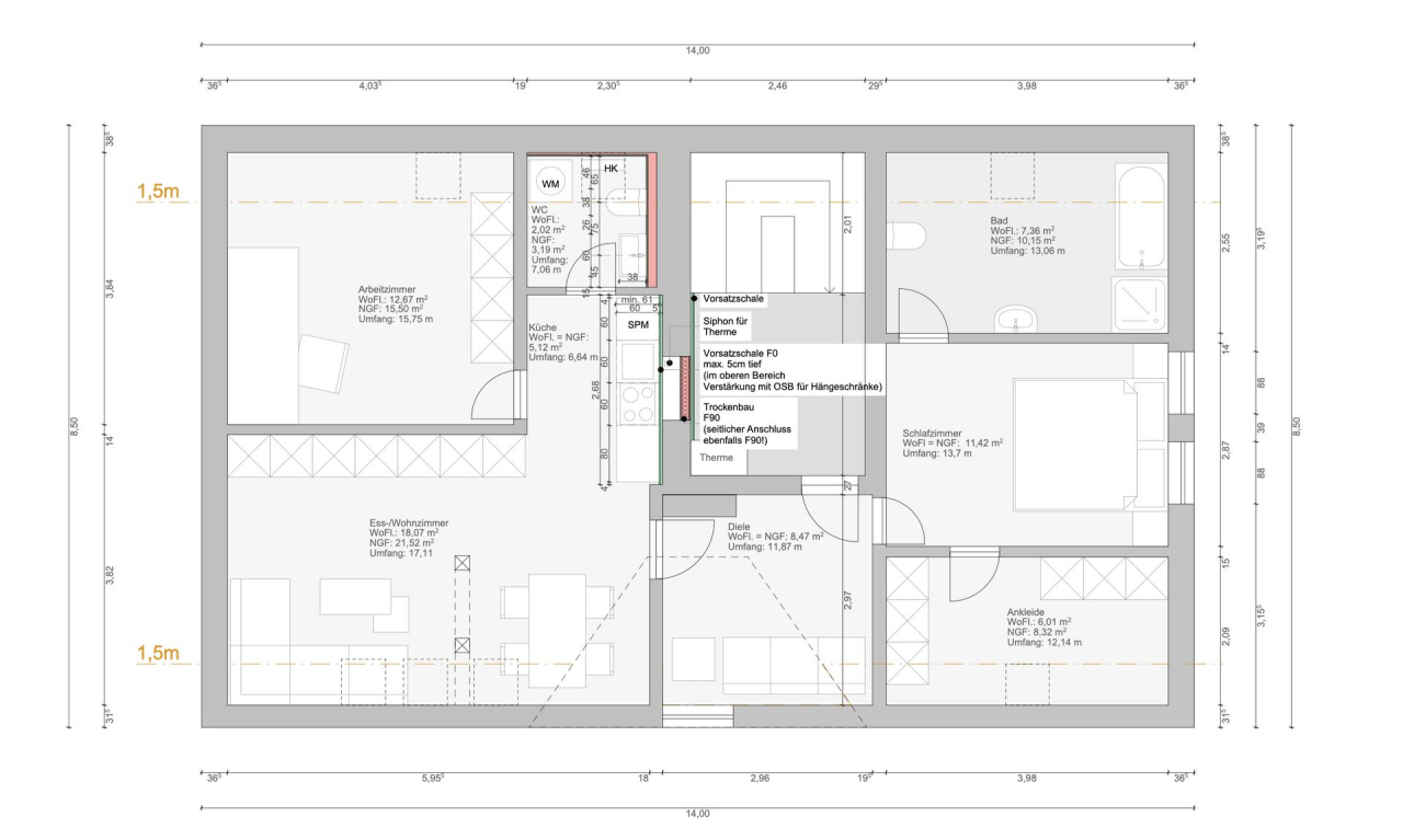
Das Haus steht auf einem ca. 579 m² großen Grundstück mit ausreichend Freifläche und Parkmöglichkeiten. Zur Immobilie gehören ein Hofstellplatz und zwei Doppelgaragen mit direkter Straßenanbindung. Die Wohnung im Erdgeschoss bietet zudem eine kleine, gemütliche Terrasse – ein Highlight für die Bewohner.
Das Mehrfamilienhaus verfügt über drei Wohneinheiten auf insgesamt ca. 237,44 m² Wohnfläche. Es ist komplett unterkellert. Alle Wohnungen befinden sich in gepflegtem Zustand und sind vermietet, was eine sichere Einnahmequelle darstellt.
Die Immobilie generiert derzeit attraktive Mieteinnahmen:
Wohnung EG: 720 € Kaltmiete + 180 € Nebenkosten
Wohnung OG: 645 € Kaltmiete + 185 € Nebenkosten + 105 € für drei Stellplätze
Wohnung DG: 585 € Kaltmiete + 185 € Nebenkosten
Dieses modernisierte Mehrfamilienhaus mit historischem Flair ist die ideale Investition für Kapitalanleger. Die umfassenden Sanierungen und die attraktive Mietsituation machen das Objekt zu einer wertstabilen und zukunftssicheren Investition.
Оборудване
Bäder: Alle Bäder wurden kernsaniert und entsprechen modernem Standard.
Bodenbeläge: Die Böden aller Wohnungen wurden erneuert und bieten einen hochwertigen, pflegeleichten Abschluss.
Zähleranlage und Elektrik: Die gesamte Zähleranlage und die Elektrik wurden überarbeitet und auf den neuesten Stand gebracht.
Heizung: Eine neue Zentralheizung wurde Ende 2023 installiert. Aktuell ist das Einfamilienhaus nebenan mit angeschlossen, eine separate Versorgung beider Häuser ist geplant.
Fenster: Alle Fenster sind aus Kunststoff und verfügen über eine zweifache Verglasung.
Hinweis zum Energieausweis
Derzeit liegt noch kein Energieausweis vor, da die neue Heizanlage erst kürzlich installiert wurde. Ein Energieausweis wird jedoch beantragt; die voraussichtliche Einstufung der Energieeffizienz kann jedoch erst in etwa zwei Jahren, nach vollständiger Datenerhebung, abschließend ermittelt werden.
Местоположение
Das Objekt liegt in der charmanten Stadt Groitzsch, nur wenige Kilometer südlich von Pegau. Groitzsch bietet eine perfekte Balance zwischen ländlicher Idylle und der Nähe zur Stadt – ideal für alle, die naturnah und dennoch gut angebunden wohnen möchten. Die Gemeinde ist eingebettet in eine ruhige, grüne Landschaft mit zahlreichen Rad- und Wanderwegen, die zu Erholung und Freizeitaktivitäten einladen.
Dank der Nähe zur B2 und der Autobahn A38 ist Groitzsch hervorragend angebunden und ermöglicht schnelle Verbindungen in die nahegelegenen Städte Leipzig und Zeitz. Der öffentliche Nahverkehr bietet zudem regelmäßige Busverbindungen, wodurch auch Pendler und Familien flexibel unterwegs sein können. Pegau verfügt über eine Bahnanbindung und ist durch die Bahnstrecke Leipzig-Gera mit Berlin und München verbunden.
Groitzsch punktet mit einem guten Freizeitangebot. In der Umgebung finden sich mehrere Seen, darunter der Groitzscher See und der Hainer See, die für entspannende Stunden am Wasser oder sportliche Aktivitäten wie Schwimmen, Segeln und Radfahren genutzt werden können. Auch das Rosental und verschiedene Naturparks in der Umgebung bieten attraktive Ausflugsziele.
Die Stadt bietet alle wesentlichen Einrichtungen des täglichen Bedarfs – von Supermärkten und kleinen Geschäften über Arztpraxen und Apotheken bis hin zu Schulen und Kindergärten. In Pegau und im nahen Leipzig stehen weitere umfangreiche Einkaufsmöglichkeiten und zahlreiche Restaurants, Cafés und kulturelle Angebote zur Verfügung.
Други
Dieses Objekt wurde durch unseren hauseigenen Baufinanzierungspartner Prometheus Capital GmbH geprüft. Sichern Sie sich günstige Konditionen und eine umfassende Begleitung Ihrer Finanzierung.
Gern unterbreiten wir in einem kostenfreien Gespräch einen individuellen Finanzierungsvorschlag.
Ergänzung: Hohe Zinsen müssen nicht sein ! Aktuell gibt es verschiedene Fördermöglichkeiten über die Kreditanstalt für Wiederaufbau (KfW) oder der Sächsischen Aufbaubank (SAB). Gern können wir Sie dazu beraten.
HAFTUNG:
Die von uns gemachten Angaben haben wir nach bestem Wissen und Gewissen nach Informationen des Verkäufers und den uns übergebenen Unterlagen zusammengestellt. Eine Gewähr für diese Angaben können wir nicht übernehmen. Wichtige Zahlen und Informationen sind am Objekt zu überprüfen. Ein Zwischenverkauf bleibt vorbehalten.
UNSER SERVICE:
Planen Sie den Verkauf Ihrer Immobilie, so ist es wichtig deren Marktwert zu kennen. Lassen Sie kostenfrei und unverbindlich den aktuellen Wert Ihrer Immobilie durch einen unserer Immobilienspezialisten einschätzen. Sprechen Sie uns an und wir stehen Ihnen beratend zur Seite.
04539 Groitzsch, Germany
Facebook comments
Last broker properties View all broker properties →
Erstbezug 3-Raum-Wohnung mit großem Balkon und Stellplatz in Grimma zu vermieten.
Апартамент на последен етаж под наем € 996
04668 Grimma, Germany
83 m² 3 2 1
€ 480Erstbezug 2-Raum-Wohnung mit Balkon und Stellplatz in Grimma zu vermieten
Апартамент на последен етаж под наем € 480
04668 Grimma, Germany
40 m² 2 1 1
€ 83 000Schöne 2-Raum Eigentumswohnung Hochparterre + Stellplatz in Zwenkau Nähe See zu verkaufen.
Various продава се € 83 000
04442 Zwenkau, Germany
45 m² 2 1 1
€ 158 000Schicke große 3-Raum Ferienwohnung mit Balkon möbliert in Zwenkau nähe See zu verkaufen.
Wohnung продава се € 158 000
04442 Zwenkau, Germany
59 m² 3 2 1
€ 122 000Etablierte möblierte Ferienwohnung 2-Raum in Zwenkau nähe See zu verkaufen.
Wohnung продава се € 122 000
04442 Zwenkau, Germany
46 m² 2 1 1
€ 120 000Einfamilienhaus in zentraler ruhiger Lage von Zwenkau mit Doppelgarage zu verkaufen
Еднофамилна къща продава се € 120 000
04442 Zwenkau, Germany
100 m² 6 4 2
€ 395 000Tolles Einfamilienhaus mit Garage, Klima und neuer Heizung in Leipzig - Rückmarsdorf zu verkaufen
Еднофамилна къща продава се € 395 000
04178 Leipzig, Germany
140 m² 6 4 2
€ 199 000Schönes Baugrundstück in Leipzig-Dölzig mit positiver Bauvoranfrage zu verkaufen
Жилищен парцел продава се € 199 000
04435 Schkeuditz, Germany
996 m²
Gewerbegrundstück im Süden von Leipzig direkt vom Eigentümer zu verkaufen
Парцел за търговски цели продава се
Carsdorfer Straße 24, 04523 Pegau, Sachsen, Germany
15 000 m²
€ 280 000Zwei attraktive möblierte Ferienwohnungen mit Genehmigung in Seenähe in Zwenkau zu verkaufen
Wohnung продава се € 280 000
04442 Zwenkau, Germany
105 m² 5 4 2
€ 390 000Einfamilienhaus + Nebenhaus perfekt zum Generationswohnen in Zwenkau in Seenähe zu verkaufen
Еднофамилна къща продава се € 390 000
04442 Zwenkau, Germany
265 m² 6 5 2
Baugrundstück für Wohnungsgeschossbau mit Baurecht in Brandis bei Leipzig direkt vom Eigentümer
Жилищен парцел продава се
04821 Brandis, Germany
12 500 m²
Similar properties View all properties similar to this property →
Unsaniertes MFH in Altenburg mit Denkmal-AfA
Многофамилна къща продава се € 225 000
04600 Altenburg, Germany
1 411 m² 35
€ 249 000Einfamilienhaus mit separatem Haus und großem Nebengelass in Großdalzig / Zwenkau zu verkaufen
Еднофамилна къща продава се € 249 000
04442 Zwenkau, Germany
282 m² 13 2
€ 425 000Teilweise denkmalgeschützter 3-Seitenhof in Zwenkau mit viel Potential zu verkaufen
Фермерска къща продава се € 425 000
04442 Zwenkau, Germany
357 m² 15 2
€ 525 000Denkmalgeschütztes Mehrfamilienhaus mit Baugenehmigung in Groitzsch zu verkaufen
Многофамилна къща продава се € 525 000
04539 Groitzsch, Germany
861 m² 38
€ 295 000Denkmalgeschützter Bauernhof mit großem Grundstück in Frohburg zu verkaufen
Еднофамилна къща продава се € 295 000
04654 Frohburg, Germany
1 060 m² 20
