Pachtvertrag mit gut laufender Gastronomie und Ausstattung OS-Westerberg zu verkaufen
Overview
Inside
Energy
Prices
Property description
Einzigartige Gelegenheit !!!
Sehr gut laufende Gastronomie mit kompletter Ausstattung zu verkaufen. Diese etablierte und seit 2019 laufende Bistro/ Café in attraktiver Lage bietet Ihnen ein enormes Potential zur Weiterführung und kann zum 01.09. diesen Jahres übernommen werden.
Im Jahre 2019 wurden alle Räume grundlegend umgebaut und modernisiert. Die durchdachte Kombination aus Bibliothek, Gastraum und einem Besprechungsraum schafft ideale Voraussetzungen für Ihren unternehmerischen Erfolg. Die Einrichtung ist einmalig geschmackvoll in Osnabrück einschließlich einer Natur-Mooswand.
Eine voll ausgestattete Gastroküche - ist sofort einsatzbereit für Ihre kulinarischen Genüsse. Mit einer Anzahl von 60 gemütlichen Sitzplätzen, sind Sie hier seit langen Jahren ein begehrter und bekannter Treffpunkt. Der Biergarten im Aussenbereich mit 60 weiteren Plätzen rundet Ihr Angebot ab.
Ergreifen Sie diese seltene Gelegenheit und gestalten Sie Ihre erfolgreiche Zukunft in der Gastronomie- und Eventbranche im angesagten Wohnviertel von Osnabrück.
Fordern Sie unter Angabe Ihrer vollständigen Kontaktdaten das interaktive Exposé an und erhalten Sie Zugang zu weiteren Informationen, Fotos sowie virtuellem 3D-Rundgang! Wir freuen uns auf Ihre Anfrage!
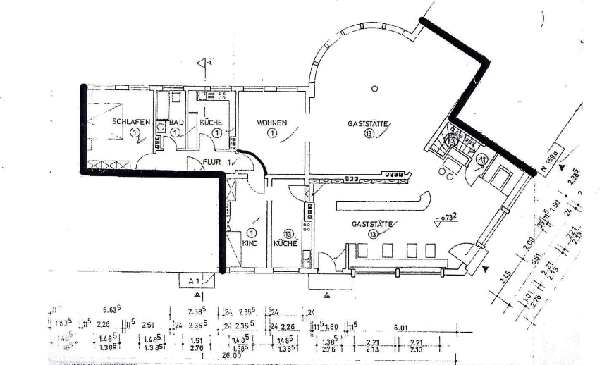
Gaststätte 118,00 m²
Lager, Sozialräume und Büro 63,57 m²
WC Anlage Keller 30,12 m²
sonstige Kellerräume 54,83 m²
Außenfläche
Gesamtfläche: 266,52 m²
bisherige Kaltmiete 1.250,- Euro
Nebenkosten 260,- Euro Strom & Gas werden direkt abgerechnet
Location
Ebenso charmant wie modern ist der Westerberg in Osnabrück und gilt daher – neben seiner Nähe zur Innenstadt – als attraktivstes Wohnviertel Osnabrücks. Die kleinen Straßen des Viertels sind von Mehrfamilienhäusern und Stadtvillen aus der Gründerzeit geprägt und vielfach von Bäumen gesäumt. So entsteht ein vorteilhaftes Klima – mitten in der Stadt. Aber auch die Erholung in der Natur ist von hier aus schnell zu haben: Der Botanische Garten der Universität liegt vor der Haustür, und der Rubbenbruchsee ist ebenfalls nicht weit entfernt.
Gewohnt wird am Westerberg überwiegend repräsentativ. Die Altbauwohnungen locken mit hohen Stuckdecken und tollen Ausblicken, die Stadtvillen – viele von ihnen von erfolgreichen Unternehmerfamilien der Stadt erbaut – bieten große Grundstücke und viel Wohnfläche. Diese Qualität wirkt sich natürlich auf die Immobilienpreise aus. Aber auch Studentenwohnheime sind in diesem Stadtteil zu finden, da Universität, Hochschule und WissenschaftsPark nicht weit entfernt sind.
Die Lotter Straße ist die „Lebensader“ des Stadtteils. An ihr liegen zahlreiche kleine Geschäfte für den täglichen Bedarf, aber auch speziali-
sierte Fachgeschäfte. Die Innenstadt ist nah. Mit dem Rad sind es wenige Minuten, diverse Buslinien sorgen für eine schnelle Anbindung in engem Takt. Kitas und Grundschule, Volkshochschule und Berufsschulzentrum, Hochschule und Universität – sie alle liegen am Westerberg. Ein Viertel, das „schöner wohnen“ wahr werden lässt.
49076 Osnabrück, Germany
Facebook comments
Last broker properties View all broker properties →
gut gepflegte Eigentumswohnung in der Dodesheide mit Balkon zu verkaufen
Wohnung for sale € 135 000
49088 Osnabrück, Germany
74 m² 3 2
€ 150 000TOP Eigentumswohnung in Lotte mit Balkon, Stellplatz, Keller und Einbauküche
Wohnung for sale € 150 000
49504 Lotte, Germany
51 m² 2 1 1
€ 1 432 000Großes Grundstück gefällig? Exklusives Haus mit Pool und Doppelgarage in Haste zu verkaufen !
One family house for sale € 1 432 000
49090 Osnabrück, Germany
197 m² 8 5 2
€ 450 000Lage, Lage, Lage - Doppelhaushälfte am Rubbenbruchsee mit 3 Zimmern und Sauna zu verkaufen
Semi-detached house for sale € 450 000
49090 Osnabrück / Eversburg, Germany
102 m² 3 2 1
€ 168 000!!! schöne Eigentumswohnung im Erdgeschoss zur Kapitalanlage !!!
Ground floor apartment for sale € 168 000
49080 Osnabrück, Germany
72 m² 3
€ 950 000Selbstnutzer aufgepasst !! drei bewohnte Parteien - fast vollständig saniert - in Georgsmarienhütte zu verkaufen
Duplex house for sale € 950 000
49124 Georgsmarienhütte, Germany
222 m² 12 3
€ 485 000Handwerker gesucht 3-Familien-Haus im Schinkel zu verkaufen
Multi-family house for sale € 485 000
49084 Osnbrück, Germany
180 m² 8 3
€ 8Hallenfläche bis 8.648 qm Büroflächen bis 1.237 qm im Gewerbegebiet zu vermieten
Office space for rent € 8
Osnabrück, Germany
9 800 m²
€ 8Hallenfläche bis 8.648 qm Büroflächen bis 1.237 qm im Gewerbegebiet zu vermieten
Hanger for rent € 8
Osnabrück, Germany
9 800 m²
€ 120 0003-Zimmer-Dachgeschosswohnung in ruhiger Wohngegend
Attic apartment for sale € 120 000
49084 Osnabrück, Germany
62 m² 3 2 1
€ 295 000Zweifamilienhaus in Hasbergen mit Potential
Duplex house for sale € 295 000
49205 Hasbergen, Germany
101 m² 7 3
€ 156 000Helle Eigentumswohnung in der 2. Etage am Rand des Westerbergs - direkt am Wald
Wohnung for sale € 156 000
49090 Osnabrück, Germany
60 m² 2 1
