Euernbach: Kompakter Neubau-Bungalow in ruhiger Lage
Overview
Inside
Outside
Limitations & Requirements
Prices
Property description
Willkommen in Euernbach, das mit seiner natürlichen Schönheit und der herzlichen Gemeinschaft ein wahrhaftes Zuhause für Ihre Familie bietet.
Hier, auf einem sonnigen und großzügigen Grundstück von ca. 777 qm², haben Sie die einmalige Gelegenheit, den Grundstein für Ihr ganz persönliches Traumhaus zu legen.
Auf einem ca. 777 m² großen Grundstück entsteht ein modernes Einfamilienhaus im kompakten Bungalow-Stil, das energieeffizientes Bauen mit einem familienfreundlichen Grundriss vereint. Errichtet wird das Haus in bewährter Holzständerbauweise von einem renommierten Fertighaushersteller, der für Qualität „Made in Germany“ steht.
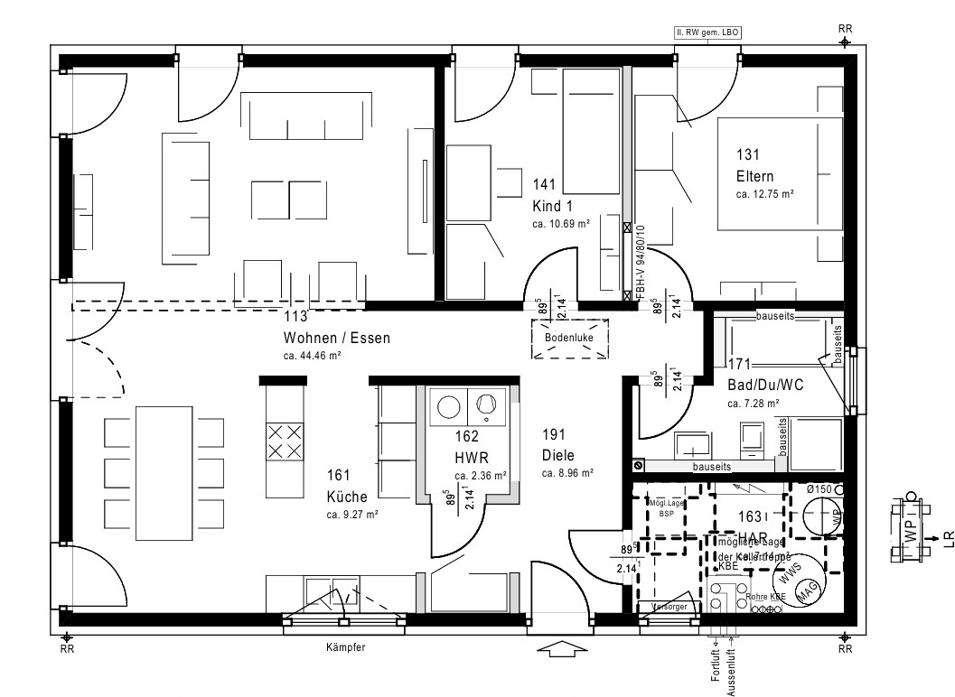
Die Wohnfläche von rund 103 m² verteilt sich ebenerdig auf vier gut geschnittene Zimmer: ein großzügiger Wohn- und Essbereich mit über 44 m² und direktem Gartenzugang, ein Elternschlafzimmer, ein Kinderzimmer sowie Küche, Bad und zwei praktische Nebenräume (Hauswirtschaftsraum und HAR). Damit bietet das Haus ideale Voraussetzungen für junge Familien wie auch für Paare, die Wert auf ein kompaktes, funktionales Raumkonzept legen.
Ergänzt wird das Angebot durch die Möglichkeit ein komplettes Kellergeschoss mit ca. 102 m² Nutzfläche zusätzlich zu erwerben.
Das Gebäude wird im KfW-Effizienzhaus 55 Standard realisiert. Ausgestattet mit einer modernen Luft-Wasser-Wärmepumpe, Fußbodenheizung, dreifach verglasten Fenstern sowie einer kontrollierten Be- und Entlüftung mit Wärmerückgewinnung profitieren zukünftige Bewohner von niedrigen Energiekosten und einem gesunden Wohnklima.
Die Baukosten für das Haus belaufen sich auf rund 304.000 €, hinzu kommen 295.000 € für das Grundstück. Die 3,57 % Maklerprovision gelten nur auf den Grundstücksanteil. Weitere Ausgaben wie Baunebenkosten, Erdarbeiten oder Hausanschlüsse sind separat zu berücksichtigen.
***Sie kaufen den Grundstücksanteil für 295.000 Euro. Außerdem wird ein Werkvertrag mit unserem renommierten Partner „Massa“ geschlossen, der das Haus zum Festpreis in der Ausbaustufe „fast schlüsselfertig plus“ anbietet. Lediglich Parkett, Innentüren und Malerarbeiten sind nicht im Angebot enthalten und können hinzugebucht werden. Übliche Baunebenkosten wie Anschlusskosten und Beiträge für die Gemeinde kommen zum angezeigten Preis noch hinzu. Lassen Sie sich gerne von uns beraten. Es ist außerdem möglich, das Grundstück ohne die Bauleistung von Massa zu erwerben, eine andere Ausbaustufe zu wählen oder alternativ einen anderen Hausbauer zu beauftragen.
Equipment
IHRE AUSSTATTUNG IM ÜBERBLICK:
- Projektiertes Einfamilienhaus in Holzständerbauweise (renommierter Fertighaushersteller)
- KfW-55-Effizienzhaus-Standard
- Luft-Wasser-Wärmepumpe mit Fußbodenheizung im Erdgeschoss
- Kontrollierte Be- und Entlüftung mit Wärmerückgewinnung
- Dreifach verglaste Markenfenster
- Wände mit hoher Wärme- und Schalldämmung
- Bodentiefe Fenster im Wohnbereich für viel Licht und Gartenzugang
- Hochwertige Buchenholztreppe (EG/KG)
- Modernes Bad mit Dusche/WC + separates Gäste-WC
- Separater Hauswirtschaftsraum im Erdgeschoss (ca. 7 m²)
- Serienmäßig erhöhte Wände für großzügiges Raumgefühl
- Flexible Grundrissgestaltung möglich
- TÜV-geprüfte Markenqualität, 5 Jahre Gewährleistung
- Bauzeit mit Festpreisgarantie (ca. 15–21 Monate)
- Persönliche Bauleitung und Kundenbetreuung vor Ort
- uvm.
Location
IHRE LAGE IM ÜBERBLICK:
Euernbach ist ein malerischer Stadtteil der Gemeinde Scheyern, eingebettet in die sanfte Hügellandschaft des oberbayerischen Voralpenlandes. Die ruhige und naturnahe Lage macht Euernbach zu einem idealen Wohnort für Familien, Paare und Naturliebhaber, die Wert auf eine harmonische Verbindung zwischen ländlichem Charme und moderner Infrastruktur legen.
Die Umgebung von Euernbach besticht durch ihre vielfältige Natur, die zu zahlreichen Freizeitaktivitäten einlädt. Ob ausgedehnte Spaziergänge, Radtouren oder Wanderungen – hier finden Sie zahlreiche Möglichkeiten, die frische Luft und die Schönheit der Natur zu genießen. Der nahegelegene Wald und die umliegenden Wiesen bieten nicht nur Erholungsräume, sondern auch einen Lebensraum für zahlreiche Tierarten.
Die gute Anbindung an die Städte Pfaffenhofen und Ingolstadt ermöglicht es den Bewohnern von Euernbach, sowohl die Vorzüge des ländlichen Lebens als auch die Annehmlichkeiten städtischer Infrastruktur zu genießen. In Pfaffenhofen, das nur wenige Kilometer entfernt ist, finden Sie eine Vielzahl von Einkaufsmöglichkeiten, Schulen, Kindergärten und medizinischen Einrichtungen.
Auch die Verkehrsanbindung ist hervorragend: Über die nahegelegene A9 und die B299 sind Sie schnell in den größeren Städten der Region und können die Vorzüge der bayerischen Metropole München in weniger als einer Stunde erreichen.
Euernbach selbst zeichnet sich durch eine freundliche und hilfsbereite Gemeinschaft aus, in der Nachbarschaft und soziale Kontakte großgeschrieben werden. Regelmäßige Veranstaltungen und Feste stärken den Zusammenhalt und bieten die Gelegenheit, sich mit den Nachbarn auszutauschen und die lokale Kultur zu erleben.
Die Lage in Scheyern ist für Familien besonders attraktiv, denn die Kombination aus schöner Landschaft, guter Anbindung und einer lebendigen Gemeinschaft macht Euernbach zu einem besonders begehrten Wohnort.
Insgesamt bietet Euernbach in Scheyern die perfekte Balance zwischen ländlicher Idylle und urbanem Leben, ideal für alle, die ein harmonisches Zuhause in einer freundlichen Umgebung suchen.
Various
Wir freuen uns, Ihnen dieses Objekt bei einem Besichtigungstermin ausführlich vorzustellen. Aus rechtlichen Gründen bitten wir Sie, für Ihre erste Kontaktaufnahme mit uns das Kontaktformular des Portals zu nutzen, auf dem Sie diese Immobilie gefunden haben. Finestep bietet dieses Objekt provisionspflichtig zum Kauf an. Für die vom Eigentümer übernommenen Objektdaten übernimmt Finestep keine Gewähr in Bezug auf die Vollständigkeit, Richtigkeit und Aktualität dieser Informationen. Irrtum und Zwischenverkauf ist vorbehalten. Ist Ihnen das von Finestep nachgewiesene Objekt bereits bekannt, ist dies Finestep schriftlich spätestens innerhalb von fünf Werktagen unter Nennung der Quelle und des Nachweisdatums mitzuteilen. Sämtliche Unterschriften und Mitteilungen haben auch bei Übermittlung per Telefax und E-Mail Ihre Rechtsgültigkeit. Als Gerichtsstand wird München vereinbart sowie die Anwendung Deutschen Rechts. Alle Angaben nach bestem Wissen und nach Angabe des Verkäufers. Irrtum und Zwischenverkauf vorbehalten. Dieses Exposé ist eine Vorabinformation, als Rechtsgrundlage gilt allein der notariell abgeschlossene Kaufvertrag Finestep Immobilien GmbH Humboldtstr. 8 81543 München www.finestep.de
85298 Scheyern / Euernbach, Germany
Facebook comments
Last broker properties View all broker properties →
Modernes Einfamilienhaus mit Stil – im Herzen von Gauting
One family house for sale € 1 490 000
82131 Gauting, Germany
182 m² 7 3 2
€ 1 490 000Lichtdurchflutetes Wohnerlebnis – Einfamilienhaus in Toplage
One family house for sale € 1 490 000
82131 Gauting, Germany
185 m² 7 3 1
€ 249 000Kompakte 2-Zimmer-Wohnung mit zwei Balkonen in gefragter Lage Münchens
Ground floor apartment for sale € 249 000
81543 München Untergiesing, Germany
45 m² 2 1 1
€ 598 000Exklusives Wohnjuwel am Feldrand - Dachgeschosswohnung mit drei Sonnenbalkonen
Attic apartment for sale € 598 000
83026 Rosenheim / Pang, Germany
114 m² 4 2 2
€ 1 290 000Exklusives Einfamilienhaus am Wörthsee – Zuhause im schönsten Teil des Fünfseenlands
One family house for sale € 1 290 000
Waldbrunn 13a, 82237 Wörthsee, Germany
194 m² 5 3
€ 195 000In Bestlage - Ferienwohnung im Winterparadies Sachrang
Wohnung for sale € 195 000
83229 Aschau im Chiemgau / Sachrang, Germany
41 m² 2 1 1
€ 595 000Sanierte 4er WG Wohnung + 2er WG Wohnung mit separatem Eingang in Unterschleißheim - Vermietet
Maisonette for sale € 595 000
85716 Unterschleißheim, Germany
114 m² 6 6 3
€ 495 000Attraktive und sanierte 4 - Zimmerwohnung mit wunderschönem Blick ins grüne - Vermietet
Wohnung for sale € 495 000
80689 München, Germany
73 m² 4 3 1
€ 335 000Helle Wohnung mit Dachterrasse in ruhiger Lage
Wohnung for sale € 335 000
Karl-Rahner-Straße 21, 80999 München / Allach, Germany
71 m² 3 2 1
€ 235 0001-Zimmer-Appartement mit Süd-Balkon im Arabellapark - Vermietet
Wohnung for sale € 235 000
81925 München / Arabellapark, Germany
32 m² 1 1
€ 995 000Eine DHH Hälfte bereits gebaut - bauen Sie jetzt Ihr Nest fußläufig am Ammersee
Semi-detached house for sale € 995 000
82211 Herrsching am Ammersee, Germany
140 m² 5 4 2
€ 1 590 000Wohnen mit Stil – großzügige Doppelhaushälfte in begehrter Lage von Waldperlach
Semi-detached house for sale € 1 590 000
81739 München, Germany
230 m² 5 3 2
Similar properties View all properties similar to this property →
Sanierte 4er WG Wohnung + 2er WG Wohnung mit separatem Eingang in Unterschleißheim - Vermietet
Maisonette for sale € 595 000
85716 Unterschleißheim, Germany
114 m² 6 6 3
€ 798 014FESTPREIS! – Ihr neues Zuhause mit Blick über freie Felder in Karlsfeld
Semi-detached house for sale € 798 014
80995 München / Feldmoching / Karlsfeld, Germany
110 m² 4 3 2
€ 894 995FESTPREIS mit Keller – Ihr neues Zuhause mit Blick über freie Felder
Semi-detached house for sale € 894 995
80995 München / Feldmoching / Karlsfeld, Germany
148 m² 5 3 2
€ 795 000Modernes Einfamilienhaus - in ruhiger Lage - Erstbezug!
One family house for sale € 795 000
85232 Bergkirchen, Germany
157 m² 6 4 2
