Bezugsfreie 2-Zimmer-Wohnung mit EBK und Balkon
Overview
Inside
Outside
Limitations & Requirements
Energy
Prices
Property description
Modernes Wohnen trifft grüne Lage - bezugsfreie 2-Zimmer-Wohnung!
Willkommen in der Gartenstadt Olympisches Dorf (G.O.L.D.) in Elstal – einem besonderen Ort, an dem architektonische Qualität, durchdachte Grundrisse und naturnahes Wohnen miteinander verschmelzen. In genau diesem Umfeld liegt diese liebenswerte 2-Zimmer-Wohnung, die nicht nur mit Stil und Effizienz punktet, sondern auch als vermietete Kapitalanlage eine solide Rendite bietet.
.
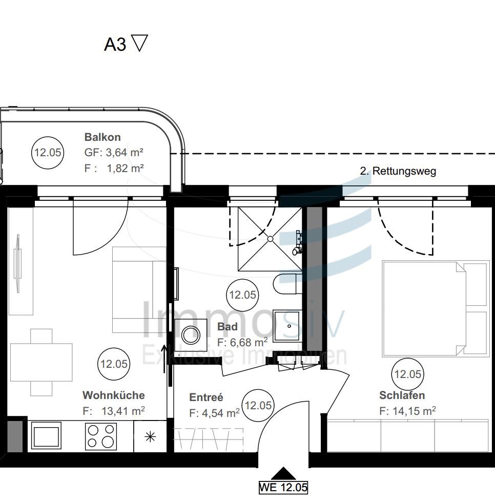
Auf kompakten guten 40,6 m² wurde hier jeder Quadratmeter optimal genutzt: ein sonnendurchflutetes Wohn-/Esszimmer mit offener Küche, ein ruhiges Schlafzimmer, ein modernes Bad, ein praktischer Abstellraum und ein einladender Eingangsbereich – ideal für Singles oder Paare.
.
Das besondere Extra?
Eine große Fensterfront im Wohnbereich mit Zugang zum Balkon, ideal zum Lüften, Entspannen oder um den Blick ins Grüne (momentan weiße) zu genießen – hier wird Wohnqualität neu gedacht.
Auch die bereits eingebaute Einbauküche sowie maßgefertigter Einbauschrank im Schlafzimmer und Garderobenschrank im Flur kommen dem sofortigen Einzug und wohlfühlen entgegen!
Unser Fazit:
Diese Wohnung ist mehr als nur eine Immobilie – sie ist ein cleveres Investment mit attraktiver Ausstattung, langfristiger Vermietbarkeit oder zur Eigennutzung in hervorragender Lage mit bester Anbindung nach Berlin, Nauen oder Potsdam.
Der Stellplatz im Parkhaus (15k Euro) ist bereits im Kaufpreis enthalten.
Für die Küche, Maß-Einbauschrank im Schlafzimmer und Garderobe kommen 14.000,- Euro auf den Kaufpreis hinzu.
Equipment
Die Fakten auf einen Blick:
.
- Baujahr 2022, Erstvermietung ab 15.01.2023, bezugsfrei zum 01.05.26
- Mietpool (Sonderkündigungsrecht)
- Parkgaragen-Stellplatz (70 €/Monat)
- MoveIn-Paket: moderne Einbauküche, Einbauschrank, Garderobe und Badmöbel – alles im Kaufpreis enthalten
- Abstellraum in der Wohnung
- Keller
- Effiziente Fernwärme, Energieeffizienz nach KfW-Standard
Location
Das olympische Dorf Elstal ist ein wahrhaft besonderer Ort! Hier genießen Mieter eine grüne und ruhige Lage im westlichen Berliner Umland, umgeben von ausgedehnten Wäldern und Parks. Die modernen und geräumigen Wohnungen verfügen über Balkone oder Terrassen und sind mit hochwertigen Annehmlichkeiten ausgestattet.
Besonders hervorzuheben ist die erstklassige Verkehrsanbindung: Elstal ist perfekt an den öffentlichen Nahverkehr angebunden und bietet eine schnelle Anbindung an Berlin oder Nauen. So können Mieter die Vorzüge einer idyllischen Umgebung genießen, ohne auf die Annehmlichkeiten der Großstadt zu verzichten. Ein absoluter Traum für alle, die eine hohe Lebensqualität in einer grünen Umgebung suchen!
• in 24 Min. mit dem RE zum Hauptbahnhof Berlin
• in 30 Min. mit dem PKW zum Ku‘Damm
• in 30 Min. mit dem PKW ins Zentrum Potsdams
• in 5 Min. in die Natur, z.B. Döberitzer Heide
Various
Provisionspflichtig für den Käufer. Die Provision beträgt 3,57% inkl. 19 % USt. und ist verdient und fällig mit Kaufvertragsunterzeichnung. Es wurde ein Maklervertrag mit dem Verkäufer in gleicher Höhe abgeschlossen.
Alle gemachten Angaben zu Objekten sind ohne Gewähr und basieren ausschließlich auf Informationen, die Immosiv - Exklusive Immobilien von meinem Auftraggeber oder von Dritten übermittelt wurden. Ich übernehme keine Gewähr für die Richtigkeit, die Vollständigkeit, sowie die Aktualität dieser Angaben, insbesondere die Angaben zur Wohnfläche, zur Nutzfläche und zur Aufteilung der Wohn-/Nutzfläche sind von mir nicht durch ein eigenes Aufmaß oder eine eigene Wohnflächenberechnung kontrolliert und die Angaben zum Baujahr sind nicht durch eine Einsicht in die Bauakte überprüft worden. Maßgeblich für den Vertragsgegenstand ist immer der notarielle Kaufvertrag,
Vermögensschaden-Haftpflichtversicherung abgeschlossen bei Hans John GmbH Versicherungsmakler in Hamburg.
14624 Wustermark, Germany
Facebook comments
Last broker properties View all broker properties →
Sehr gute und gepflegte Kapitalanlage in moderner Wohnanlage
Various for sale € 269 000
12459 Berlin, Germany
50 m² 2 1 1
€ 8704.05 Erdgeschosswohnung im Leuchtgaswerk
Ground floor apartment for rent € 870
Leuchtgaswerk 5, 14641 Nauen, Brandenburg, Germany
65 m² 2
€ 280 000Kapitalanlage im Wohnpark Königsheide
Wohnung for sale € 280 000
12487 Berlin, Germany
69 m² 2 1
€ 1 100Traumwohnung in Nauen
Maisonette for rent € 1 100
14641 Nauen, Germany
98 m² 2
€ 2 045Souterrain-Geschäftsräume in markanter Ecklage Bergmannstraße / Mehringdamm
Shop for rent € 2 045
10961 Berlin, Germany
0 m² 3
€ 317 000Gartenwohnung in der Tabbertstraße - bezugsfrei
Ground floor apartment for sale € 317 000
12459 Berlin, Germany
55 m² 2 1
€ 2 700Gewerbe mit 3 großen und hohen Räumen – offen für (fast) alles!
Various for rent € 2 700
10629 Berlin, Germany
0 m²
€ 199 000Falkensee: Grundstück mit ca. 550 m²
Wohngrundstück for sale € 199 000
14612 Falkensee, Germany
550 m²
€ 1 6502 Zimmer-Apartement in Top Lage!
Wohnung for rent € 1 650
Schöneberger Straße 9, 12163 Berlin, Berlin, Germany
59 m² 2 1
€ 1 650Stilvoll sanierte Altbauwohnung mit zwei Balkonen
Wohnung for rent € 1 650
12163 Berlin, Germany
59 m² 2 1
€ 880 000Haus mit Kamin & Wellnessbereich - Einzug kurzfristig möglich!
One family house for sale € 880 000
14621 Schönwalde-Glien, Germany
163 m² 6 3 3
Similar properties View all properties similar to this property →
Bezugsfertige, moderne 2-Zimmer-Wohnung mit Balkon & Fahrstuhl in Berlin Spandau
Wohnung for sale € 298 000
13581 Berlin, Germany
65 m² 2
€ 253 000Bezugsfrei & mit Stellplatz: 2-Zimmer-Wohnung mit Balkon im 2. OG – Tempelhof
Wohnung for sale € 253 000
12099 Berlin, Germany
56 m² 2 1
€ 269 000Sehr gute und gepflegte Kapitalanlage in moderner Wohnanlage
Various for sale € 269 000
12459 Berlin, Germany
50 m² 2 1 1
€ 280 000Kapitalanlage im Wohnpark Königsheide
Wohnung for sale € 280 000
12487 Berlin, Germany
69 m² 2 1
€ 317 000Gartenwohnung in der Tabbertstraße - bezugsfrei
Ground floor apartment for sale € 317 000
12459 Berlin, Germany
55 m² 2 1
€ 155 0003-Zimmer-Dachgeschosswohnung in ruhiger Lage mit Balkon und Außenstellplatz
Attic apartment for sale € 155 000
16321 Bernau, Germany
60 m² 3 2 1
€ 233 493Im Herzen der Hauptstadt - leere Eigentumswohnung zwischen Englischem Viertel und Volkspark Rehberge
Wohnung for sale € 233 493
13349 Berlin, Germany
60 m² 2
€ 205 000Sonnige 2‑Zimmer‑Wohnung mit Südloggia – gepflegte Anlage, top Lage, solide Vermietung.
Wohnung for sale € 205 000
13407 Berlin, Germany
59 m² 2 1
€ 279 500Bezugsfrei ab Juli 2026 - Fußläufig zum Wrangelkiez - 2-Zimmerwohnung
Wohnung for sale € 279 500
12059 Berlin, Germany
57 m² 2 1 1
€ 309 000Sonnige 2,5-Zimmer-Wohnung mit Südost-Balkon und schönem Ausblick in ruhiger Lage im 2. Obergeschoss
Wohnung for sale € 309 000
13349 Berlin, Germany
73 m² 3 2 1
€ 240 000Ruhige 2 Zimmerwohnung im Herzen von Charlottenburg an der Suarezstrasse und nah des Lietzenseeparks
Wohnung for sale € 240 000
14057 Berlin, Germany
65 m² 2 1 1
€ 185 000Sanierte 2-Zimmer-Wohnung mit Stellplatz und Balkon - bezugsfrei
Wohnung for sale € 185 000
12277 Berlin, Germany
50 m² 2 1 1
