Solide Kapitalanlage – Mehrfamilienhaus in Gera-Zwötzen zu verkaufen
Übersicht
Innen
Extras zum Objekt
Energie
Preise
Objektbeschreibung
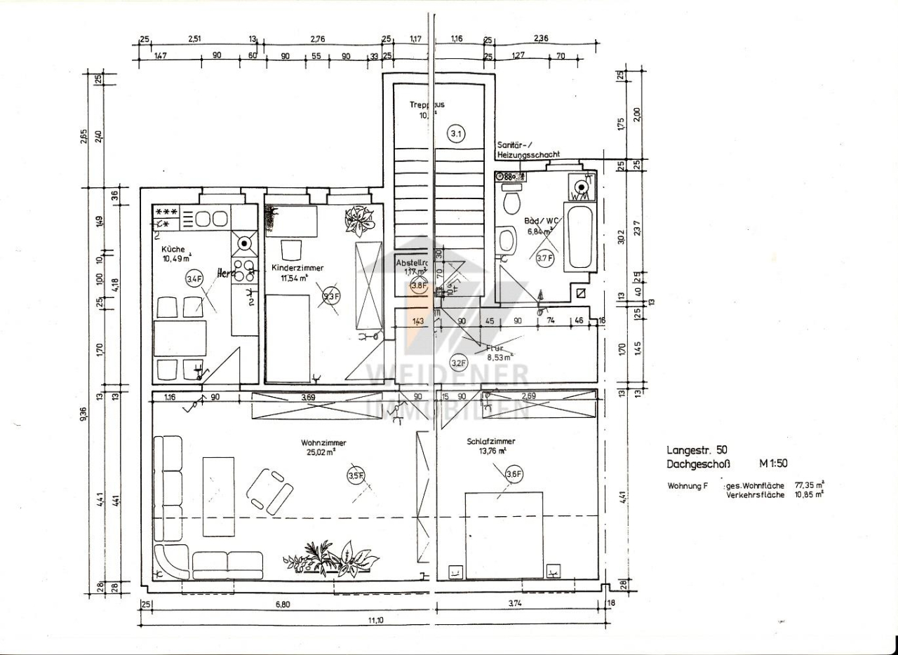
Dieses sanierte Mehrfamilienhauses in der beliebter Wohngegend Gera-Zwötzen sucht Sie als neuen Besitzer. Es verfügt über 6 Wohneinheiten.
Die Wohnhaus mit Erdgeschoß, 2 Etagen und einem Dachgeschoß verfügt über ein Eingangstor mit Durchgang zum Treppenhaus und zum begrünten und und gepflasterten Innenhof. Hier befindet sich auch ein Wäscheplatz. Zur Immobilie gehören ebenso 2 Garagen, welche direkt am Haus angrenzen.
Die Wärmeversorgung erfolgt über eine Gas-Zentralheizungsanlage.
Hinweis zum Energieausweis: Verbrauchsausweis, 154,10 kWh/(m²a) Gültig bis 12.04.2029, Gas-Zentralheizung, Baujahr 1898
Die in der Hausordnung genannten Reinigungsarbeiten im und um das Objekt werden durch ein beauftragtes Dienstleistungsunternehmen ausgeführt.
Kein Exposé kann den persönlichen Eindruck ersetzen. Gerne reservieren wir Ihnen einen persönlichen Besichtigungstermin.
Ausstattung
**Aufteilung**
* EG: 2-Raum-Wohnung mit 60 m²
* 1. + 2. OG: jeweils eine 1-Raum und eine 2-Raum-Wohnung
* DG: 3-Raum Wohnung mit 78 m²
**Ausstattung**
* alle Wohnungen: Wohnräume, Küchen und Flure: Kunstoffböden in Laminat,- oder in Designeroptik
* Küchen mit Tageslicht, Fliesenspiegel
* Bäder mit Tageslicht, gefliest, mit Dusche oder Badewanne ausgestattet
* Abstellraum: zu jeder Wohneinheit im Treppenhaus
* Kellerabteil: zugehörig zu jeder Wohnung
* Keller: hier befindet sich die Gas-Heizungsanlage von Viessmann, 2013 neu installiert
* begrünte Innen- Hoffläche mit Wäscheplatz und Abstellplatz für Müllbehälter
Lage
Natur pur direkt hinter dem Haus durch eine weitläufige gewachsene Klein-Gartenanlage in Gera-Zwötzen. Bis zur Elster sind es nur ein paar Gehminuten.
Die Busanbindung zur Innenstadt befindet sich in direkter Nähe, die Straßenbahnanbindung ist fußläufig in wenigen Minuten erreichbar.
Einkaufsmöglichkeiten, ein Kindergarten, eine Schule und ein Ärztehaus mit Apotheke sind gut zu erreichen.
Sonstiges
**Kontaktaufnahme und Besichtigungstermin**
Sie interessieren sich für diese Immobilie? Das freut uns sehr!
Bitte senden Sie uns Ihre Anfrage **schriftlich über dieses Portal** oder direkt an **Herrn Weidener** oder an **Frau Haseküster** aus unserem **kompetenten Verkaufsteam von Weidener Immobilien** unter:
empfang@immobilien-weidener.de
Um Ihnen das Exposé ohne Verzögerung zusenden zu können, bitten wir Sie, bei Ihrer Anfrage **Ihre vollständige Anschrift sowie Ihre Telefonnummer** anzugeben. Bitte haben Sie Verständnis, dass wir **ausschließlich Anfragen mit vollständigen Kontaktdaten** (inklusive E-Mail-Adresse und Telefonnummer) berücksichtigen können.
Gerne können Sie bereits **erste Terminvorschläge für eine Besichtigung** übermitteln. Wir setzen uns im Anschluss **zeitnah telefonisch mit Ihnen in Verbindung**, um Ihren Wunschtermin zu bestätigen und alle weiteren Schritte persönlich mit Ihnen abzustimmen.
**Wir bitten um Ihr Verständnis, dass die Eigentümer Grundstücksbesichtigungen nur nach Terminvereinbarung wünschen und direkte Ansprachen vermeiden möchten.**
**Persönlich. Verlässlich. Weidener Immobilien.**
Mit unserer langjährigen Marktkenntnis und einem engagierten Team bieten wir Ihnen individuelle Betreuung auf Augenhöhe – vom ersten Kontakt bis zur Schlüsselübergabe.
**Kontakt:**
Tel.: 0365 - 855 236-0
E-Mail: empfang@immobilien-weidener.de
Web: www.WEIDENER.immo
*Alle Angaben beruhen auf Informationen des Eigentümers. Für deren Richtigkeit übernehmen wir keine Haftung.*
Wir freuen uns auf Ihre Nachricht und darauf, Sie bald persönlich kennenzulernen!
Lange Straße 50, 07551 Gera, Germany
Meta
Weitere Objekte des Maklers Alle Objekte des Anbieters anzeigen →
Wohnen am Biermannplatz! Tolle 2 Raum Wohnung mit Wanne!
Dachgeschosswohnung zur Miete € 500
Biermannplatz 12, 07548 Gera, Germany
66 m² 2 1 1
€ 260klein aber fein: Singlewohnung in Gera-Zwötzen!
Wohnung zur Miete € 260
Werdauer Straße 29, 07551 Gera, Germany
40 m² 1 1
€ 688Moderne 3 Raum-Whg. im 3. OG mit Wanne, 2 Balkone und Garage in Pforten!
Wohnung zur Miete € 688
Plauensche Straße 6c, 07551 Gera, Germany
86 m² 3 2 1
€ 475Bestlage! Wohnen in Untermhaus mit Einbauküche! 3 R.-Wohnung in Gera-Untermhaus / Nähe Theater
Wohnung zur Miete € 475
Untermhäuser Straße 3, 07548 Gera, Germany
68 m² 3 2 1
€ 83 000Sanierungsbedürftiges Wohnhaus mit Werkstatt-Nebengebäude in Gera Langeberg zu verkaufen!
Mehrfamilienhaus zu Verkauf € 83 000
Seitenstraße 3, 07552 Gera, Germany
174 m²
€ 685Einbauküche und viel Platz! Großzügige, möblierte 3 Raum-Whg. nahe der Innenstadt!
Wohnung zur Miete € 685
Plauensche Straße 13, 07545 Gera, Germany
86 m² 3 2 1
€ 345Schnäppchen!!! Große und helle 2 Raum Wohnung im Geraer Ostviertel
Dachgeschosswohnung zur Miete € 345
Karl-Liebknecht-Straße 55, 07546 Gera, Germany
69 m² 2 1 1
€ 310Für Junggebliebene: Tolle 2-Zimmer Wohnung mit Balkon im ruhigen Hinterhaus!
Wohnung zur Miete € 310
Karl-Liebknecht-Straße 21, 07546 Gera, Germany
52 m² 2 1 1
€ 239 000Schönes Einfamilienhaus - Ihr neues Zuhause!
Einfamilienhaus zu Verkauf € 239 000
07580 Ronneburg, OT Raitzhain, Germany
119 m² 5 2
€ 170WBS notwendig*! Schöne 2-Raum-Terrassenwohnung in ländlicher Lage! Renoviert!
Erdgeschosswohnung zur Miete € 170
Lindenstraße 11, 07580 Großenstein, Germany
42 m² 2 1 1
€ 360Ländliches Wohnen in Kaimberg! 4 Zimmer Erdgeschosswohnung mit Dusche!
Erdgeschosswohnung zur Miete € 360
Kaimberg 19, 07551 Gera, Germany
72 m² 4 3 1
€ 30 000Eigentumswohnung als Kapitalanlage oder als 2. Wohnsitz geeignet
Dachgeschosswohnung zu Verkauf € 30 000
Lange Straße 48, 07551 Gera, Germany
36 m² 1 1
