Grundstück für eine geplante Doppelhaushälfte in Trebbin mit Baugenehmigung
Übersicht
Aussen
Extras zum Objekt
Energie
Preise
Objektbeschreibung
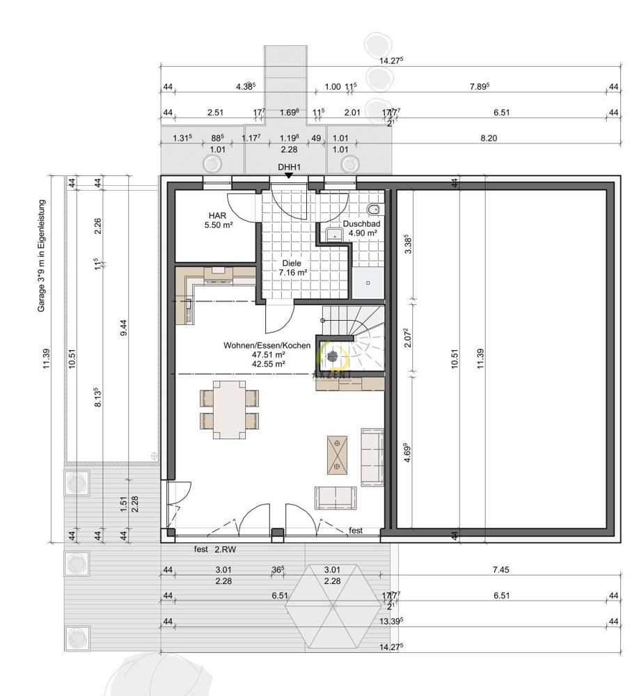
Das hier zum Kauf angebotene ruhig gelegene Grundstück mit ca. 392 m² bestehend aus Bauland, Gartenland und anteiliger Straßenfläche wird mit einer DHH verkauft.
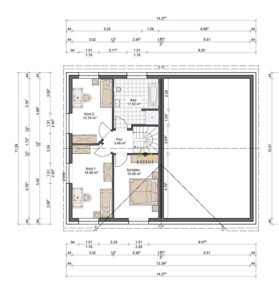
Der Werkvertrag für die Bebauung mit einem Doppelhaus mit zwei Vollgeschossen und ca. 119 m² Wohnfläche wird mit der Firma Fibav abgeschlossen.
Das Grundstück ist von der Straße zurückgesetzt (dritte Reihe) und daher sehr ruhig gelegen.
Durch den Erwerb einer anteiligen Straßenfläche entsteht ein privater Zugang zu den Häusern.
Die Doppelhaushälfte wird zu einem Preis von 350.000,00 € angeboten. Die Baunebenkosten sind im Preis nicht enthalten und belaufen sich auf ca. 38.000,00 €.
Weitere Fragen zum Grundstück und zur Planung Ihrer Doppelhaushälfte beantworte ich Ihnen gern in einem persönlichen Gespräch, entweder in unseren Büroräumen in Berlin oder auch gern am Telefon.
Ausstattung
- Doppelhaushälfte der Firma Fibav mit 119 m² Wohnfläche
- Grundstück mit ca. 392 m²
- massive Bauweise
- Fußbodenheizung
- Rollläden im Ergeschoss
- Terrasse im Erdgeschoss mit Südausrichtung
- Großer Wohnbereich mit Südausrichtung
- offene Küche im Wohnbereich (ohne Einbauküche)
- 1. OG Badezimmer mit Badewanne und Dusche
- EG Duschbad mit WC
- Beheizung über Luft-Wasser-Wärmepumpe
- Carport neben dem Haus
- Keine Unterkellerung
Lage
Die amtsfreie Stast Trebbin liegt im Landkreis Teltow-Fläming. Trebbin liegt zwischen Teltow und dem Fläming am Rande einer Niederung östlich der Nuthe 36 Kilometer südlich von Berlin. Die Stadt liegt an der östlichen Grenze des Naturparks Nuthe-Nieplitz bzw. mit einigen Ortsteilen auch im Naturpark. Der Ortsteil Blankensee befindet sich am gleichnamigen See. Der Ortsteil Glau liegt an den Glauer Bergen.
Die Bundesstraße B 101 ermöglich es sehr schnell Berlin zu erreichen.
Sonstiges
Die Provision in Höhe von 7,14 % inkl. der gesetzlichen Mehrwertsteuer bezogen auf den Grundstückspreis in Höhe von 158.100 € ist bei Vertragsabschluss fällig und zahlbar und vom Käufer an die AKZENT Finanz- und Immobilienservice GmbH zu zahlen. Wir weisen darauf hin, dass je nach Nachfrage der Angebotspreis nach Verhandlung noch steigen oder sinken kann. Es gelten unsere Allgemeinen Geschäftsbedingungen.
14959 Trebbin, Germany
Meta
Weitere Objekte des Maklers Alle Objekte des Anbieters anzeigen →
Idyllisch Wohnen in Kleingartenanlage - Erstbezug in frisch sanierten Bungalow mit Dauerwohnrecht
Einfamilienhaus zu Verkauf € 450 000
13089 Berlin, Germany
108 m² 4 3 1
€ 450 000Sanierter Bungalow - perfekt für Familien - ruhig Wohnen mit guter Verkehrsanbindung in die Stadt
Einfamilienhaus zu Verkauf € 450 000
13089 Berlin, Germany
108 m² 3 2 1
€ 415 000Platz für Ideen: Vielseitig nutzbares Grundstück mit Einfamilienhaus / Mehrgenerationenhaus
Einfamilienhaus zu Verkauf € 415 000
12623 Berlin, Germany
175 m² 6 3
€ 175 000Sonnige, vermietete 2-Zimmer-Wohnung im Hochparterre - Fensteraustausch 2026 ausgeführt
Erdgeschosswohnung zu Verkauf € 175 000
13407 Berlin, Germany
58 m² 2 1 1
€ 299 000Bezugsfreie 2,5-Zimmer-Wohnung mit Dielenboden und Loggia - ruhig gelegen nahe S-Bahnhof Pankow
Erdgeschosswohnung zu Verkauf € 299 000
13189 Berlin, Germany
60 m² 3 2 1
€ 299 000Schöner Ausblick vom Südost-Balkon - 2,5-Zimmer-Wohnung in ruhiger Lage und mit Stellplatz
Wohnung zu Verkauf € 299 000
13349 Berlin, Germany
73 m² 3 2 1
€ 890 000Einziehen ab 06-2027 - Moderne und hochwertig eingerichtete 4-Zimmer-Wohnung nahe Kurfürstendamm
Wohnung zu Verkauf € 890 000
10707 Berlin, Germany
110 m² 4 3 2
€ 699 000Flexibel nutzbare DHH in Panketal – auch als Zweifamilienhaus geeignet - teilgewerblich nutzbar
Doppelhaushälfte zu Verkauf € 699 000
16341 Panketal, Germany
176 m² 6 5 3
€ 358Büroräume / Ladenlokal / Praxis im Erdgeschoss mit Schaufenster ab sofort zu vermieten
Büro- / Praxisfläche zur Miete € 358
14943 Luckenwalde, Germany
60 m²
€ 155 0003-Zimmer-Dachgeschosswohnung in ruhiger Lage mit Balkon und Außenstellplatz
Dachgeschosswohnung zu Verkauf € 155 000
16321 Bernau, Germany
60 m² 3 2 1
€ 279 500Bezugsfrei ab Juli 2026 - Fußläufig zum Wrangelkiez - 2-Zimmerwohnung
Wohnung zu Verkauf € 279 500
12059 Berlin, Germany
57 m² 2 1 1
€ 189 500Ihr Grundstück - Ein Rückzugsort zwischen Feldern und Metropole
Wohngrundstück zu Verkauf € 189 500
15366 Neuenhagen bei Berlin, Germany
561 m²
Ähnliche Objekte Ähnliche Angebote zu dieser Immobilie →
Stilvolle Stadtvilla in Seenähe von Falkensee
Einfamilienhaus zu Verkauf € 749 000
14612 Falkensee, Germany
185 m² 4 3
€ 415 000Platz für Ideen: Vielseitig nutzbares Grundstück mit Einfamilienhaus / Mehrgenerationenhaus
Einfamilienhaus zu Verkauf € 415 000
12623 Berlin, Germany
175 m² 6 3
€ 695 000Lage,Lage,Lage: Wohnungspaket mit drei 2-Zimmer Eigentumswohnungen in bester Charlottenburger Lage! Die 4te Wohnung kann optional dazu erworben werden.
Wohnung zu Verkauf € 695 000
14059 Berlin, Germany
166 m² 6
€ 512 999ZWEI Grundstücke mit Wasserzugang in TRAUMHAFTER Lage, exklusiv, attraktiv, nicht mehr träumen
Einfamilienhaus zu Verkauf € 512 999
14929 Treuenbrietzen, Germany
140 m² 6 3 2
€ 585 000EIN HAUS FÜR ALLE FÄLLE! Mehrgenerationen, Wohnen und Arbeiten oder für die große Familie
Zweifamilienhaus zu Verkauf € 585 000
15806 Zossen, Germany
240 m² 7 4
€ 585 000EIN HAUS FÜR ALLE FÄLLE! Mehrgenerationen, Wohnen und Arbeiten oder für die große Familie
Einfamilienhaus zu Verkauf € 585 000
15806 Zossen, Germany
240 m² 7 4
€ 560 000Modernes Wohnhaus mit Einliegerwohnung und separatem Baugrundstück
Einfamilienhaus zu Verkauf € 560 000
15755 Schwerin, Germany
141 m² 5 4 2
Einzigartiges Wassergrundstück direkt am Wald
Einfamilienhaus zu Verkauf
15754 Prieros, Germany
266 m² 5 2
€ 389 000Historische Fabrikanten-Villa von Richard Kyburg - hier kann man herrschaftlich Wohnen
Villa zu Verkauf € 389 000
14943 Luckenwalde, Germany
318 m² 8 7 4
€ 508 100Grundstück für eine geplante Doppelhaushälfte in Trebbin mit Baugenehmigung
Doppelhaushälfte zu Verkauf € 508 100
14959 Trebbin, Germany
119 m² 4 3 2
€ 695 000Lage,Lage,Lage: Wohnungspaket mit drei 2-Zimmer Eigentumswohnungen in bester Charlottenburger Lage!
Wohn- und Geschäftshaus zu Verkauf € 695 000
14059 Berlin, Germany
166 m² 6
€ 499 000Modernes EFH mit KfW-55 | Individuell gestaltbar | Neue Regio-Anbindung nach Berlin
Einfamilienhaus zu Verkauf € 499 000
15838 Rehagen, Germany
140 m² 4 3 2
