Projektiertes Bauvorhaben in sehr guter Lage in der Schulstr. in Neumünster/Tungendorf zu verkaufen.
Übersicht
Innen
Aussen
Extras zum Objekt
Energie
Preise
Objektbeschreibung
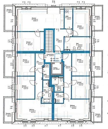
Projektiertes Mehrfamilienhaus in der Schulstr. 95 in Neumünster
11 Wohneinheiten (47-88 m²)
Wohnfläche ca. 750 m²
Grundstück ca. 1084 m²
teilunterkellert
9 Stellplätze
Geplant ist der Energiestandard Kfw 40.
Auf dem Grundstück befindet sich ein Altbestand, für dessen Abriss ein Angebot vorliegt.
Es besteht die Möglichkeit, entweder das Projekt mit seinen Bestandteilen zu erwerben, oder die bestehende GmbH im Rahmen eines Share-Deals zu erwerben.
Ausstattung
Baugenehmigung (wird verlängert)
Planung bis inkl. Ausführungsplanung
Statik (ohne Prüfstatik)
Bodengutachten
Kampfmittelräumgutachten
Im Kaufpreis enthalten:
Brandschutzkonzept
Schallschutzkonzept
Wärmeschutzkonzept
Lüftungskonzept
Abgeschlossenheitsbescheinigung
Lage
Das Projekt befindet sich in der Schulstraße 95 in Neumünster, einer ruhigen und gewachsenen Wohnlage mit guter Anbindung an die städtische Infrastruktur. Das Umfeld ist geprägt von gepflegten Wohnhäusern sowie einer angenehmen Nachbarschaft, die sowohl für Familien als auch für Paare und Singles attraktiv ist.
Einkaufsmöglichkeiten für den täglichen Bedarf, darunter Supermärkte, Bäckereien und Apotheken, sind in wenigen Minuten erreichbar. Auch Schulen, Kindergärten und medizinische Einrichtungen befinden sich in der näheren Umgebung und gewährleisten eine hohe Lebensqualität.
Die Anbindung an den öffentlichen Nahverkehr ist gut ausgebaut, sodass das Stadtzentrum von Neumünster schnell und unkompliziert erreicht werden kann. Zudem besteht eine gute Verkehrsanbindung an die umliegenden Städte sowie an die Autobahn, was insbesondere für Pendler von Vorteil ist.
Erholungs- und Freizeitmöglichkeiten bieten nahegelegene Grünflächen und Parks, die zu Spaziergängen, Sport und Entspannung einladen. Insgesamt überzeugt die Lage durch ihre Kombination aus ruhigem Wohnen und gleichzeitig guter Erreichbarkeit aller wichtigen Einrichtungen des täglichen Lebens.
Sonstiges
Sie haben weitere Fragen zu dieser Immobilie oder suchen noch nach einer Immobilie?
Dann sprechen Sie mich gern und unverbindlich an, damit ich Sie beraten kann.
Ihr Ansprechpartner:
Dien Tohuus Immobilien GbR
Arne Fredenhagen
Mühlenstr. 21
24539 Neumünster
Mobil: +49 152 / 28896706
EMail: af@dien-tohuus-sh.de
Ich freue mich, über Ihren Anruf!
Bitte beachten Sie, dass wir, aufgrund der Vorgaben der neuen Datenschutzgrundverordnung (DSGVO), keine telefonischen Informationen zu dem Objekt erteilen können. Wenn Sie weiteres Interesse an diesem Objekt haben, dann füllen Sie bitte hierfür einfach das Kontaktformular mit Anschrift, Telefonnummer und E-Mail Adresse aus, damit ich Ihnen das vollständige Exposé zukommen lassen kann und ich, entsprechend der DSGVO berechtigt bin, Sie auch telefonisch zu kontaktieren. Wir bitten hierfür um Ihr Verständnis.
Alle Daten in diesem Exposé beruhen auf Angaben des Verkäufers - Die Objektangaben wurden mit großer Sorgfalt zusammengestellt. Für die Richtigkeit der Verkäufer-, Anbieter- und Angebotsangaben können wir keine Haftung übernehmen. Irrtümer bleiben vorbehalten.
Schulstr. 95, 24536 Neumünster, Germany
Meta
Weitere Objekte des Maklers Alle Objekte des Anbieters anzeigen →
Projektiertes Bauvorhaben in sehr guter Lage in der Schulstr. in Neumünster/Tungendorf zu verkaufen.
Wohngrundstück zu Verkauf € 810 000
Schulstr. 95, 24536 Neumünster, Germany
748 m²
€ 750Ferienwohnung zur Dauervermietung in Hohwacht - unweit vom Strand!
Erdgeschosswohnung zur Miete € 750
Im Wiesengrund 5, 24321 Hohwacht, Germany
63 m² 2 1 1
€ 1 045Erstbezug: 3-Zimmer-Wohnung mit 86,82 m² Wohnfläche und Dachterrasse in der Paul-Böhm-Str. zu mieten
Wohnung zur Miete € 1 045
Paul-Böhm-Str. 50, 24539 Neumünster, Germany
87 m² 3 2 1
€ 750Erstbezug: 2-Zimmer-Wohnung mit 62,19 m² Wohnfläche und Balkon in der Paul-Böhm-Str. 50 zu vermieten
Wohnung zur Miete € 750
Paul-Böhm-Str. 50, 24539 Neumünster, Germany
62 m² 2 1 1
€ 1 045Erstbezug: 3-Zimmer-Wohnung mit 82,94 m² Wohnfläche und Balkon in der Paul-Böhm-Str. 50 zu vermieten
Wohnung zur Miete € 1 045
Paul-Böhm-Str. 50, 24539 Neumünster, Germany
87 m² 3 2 1
€ 900Erstbezug: 2-Zimmer-Wohnung mit 74,94 m² Wohnfläche und Balkon in der Paul-Böhm-Str. 50 zu vermieten
Wohnung zur Miete € 900
Paul-Böhm-Str. 50, 24539 Neumünster, Germany
75 m² 2 1 1
€ 514 999Zweifamilienhaus, teilsaniert in der Kieler Str. zu verkaufen! Ca. 130,00 und 49,00 m² Wohnfläche
Zweifamilienhaus zu Verkauf € 514 999
24536 Neumünster, Germany
181 m² 6 4 3
€ 275 000Charmantes Einfamilienhaus in Toplage mit modernisierter Gebäudehülle auf 113 m² Wohnfläche
Einfamilienhaus zu Verkauf € 275 000
Am Neuen Kamp 52, 24537 Neumünster, Germany
113 m² 5 2 1
€ 1 840Einfamilienhaus in der Boostedter Str. mit ca. 150 m² Wohnfläche ab dem 01.06.2026 zu vermieten!
Einfamilienhaus zur Miete € 1 840
Boostedter Str. 389, 24539 Neumünster, Germany
150 m² 6 3 1
€ 575 000Sanierung, Abriss und Hinterlandbebauung -- hier ist im Rahmen eines B-Planes fast alles möglich!
Bauernhaus zu Verkauf € 575 000
Tasdorfer Weg 18, 24536 Neumünster, Germany
200 m² 6 5 2
€ 575 000Sanierung, Abriss und Hinterlandbebauung -- hier ist im Rahmen eines B-Planes fast alles möglich!
Wohngrundstück zu Verkauf € 575 000
Tasdorfer Weg 18, 24536 Neumünster, Germany
12 419 m²
€ 258 000Eigentumswohnung mit 2 Zimmern auf ca. 55 m² Wohnfläche in Strandnähe in Büsum zu verkaufen!
Erdgeschosswohnung zu Verkauf € 258 000
Föhrer Weg 5, 25761 Büsum, Germany
55 m² 2 1 1
Ähnliche Objekte Ähnliche Angebote zu dieser Immobilie →
Projektiertes Bauvorhaben in sehr guter Lage in der Schulstr. in Neumünster/Tungendorf zu verkaufen.
Wohngrundstück zu Verkauf € 810 000
Schulstr. 95, 24536 Neumünster, Germany
748 m²
€ 575 000Sanierung, Abriss und Hinterlandbebauung -- hier ist im Rahmen eines B-Planes fast alles möglich!
Wohngrundstück zu Verkauf € 575 000
Tasdorfer Weg 18, 24536 Neumünster, Germany
12 419 m²
