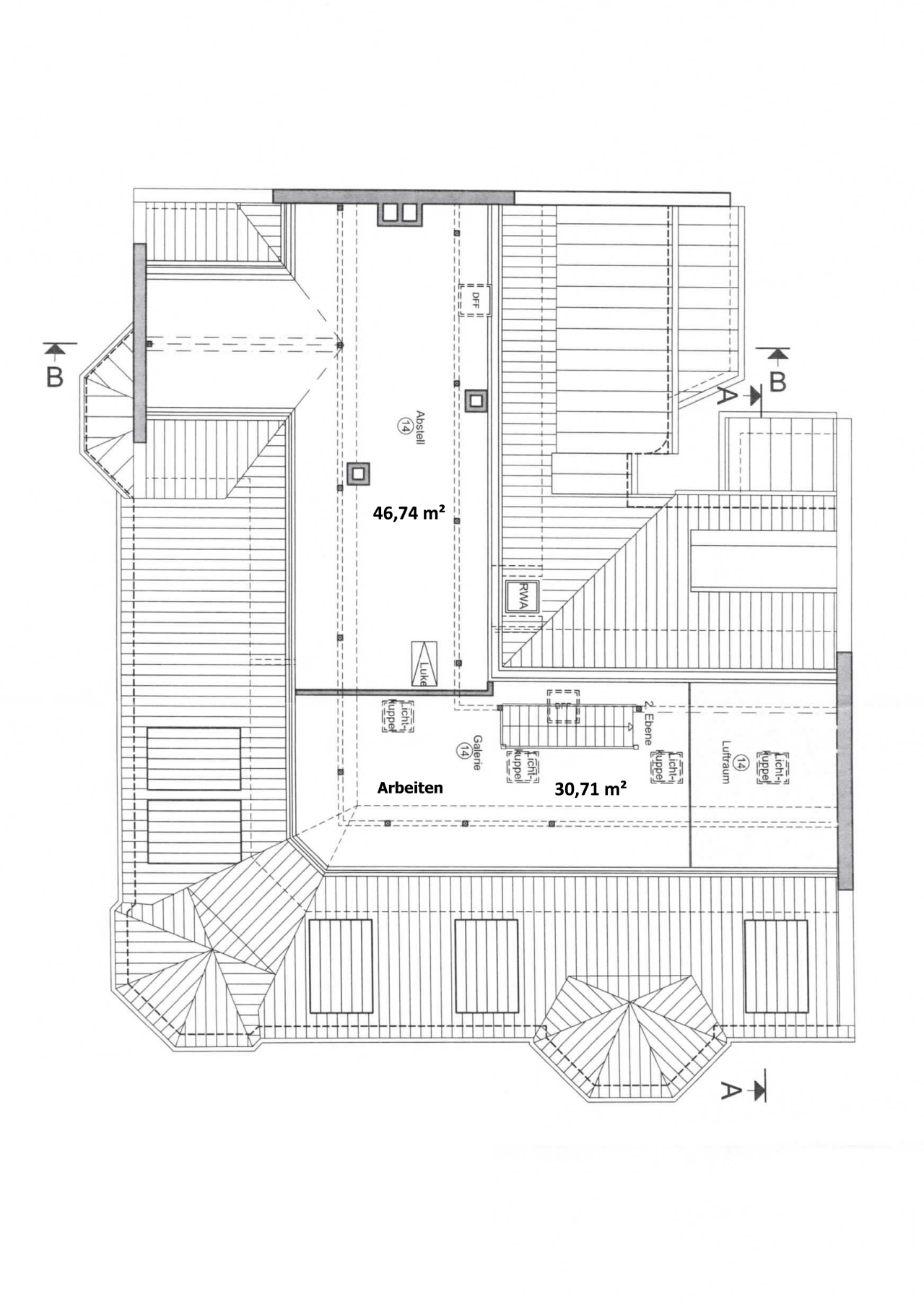
Unausgebautes DG mit Baugenehmigung; 5 Räume, ca. 192,02 m² Gesamtfläche; Medien liegen in der Fläche an
Площ
Енергия
Цени
Описание на недвижимата собственост
Bei diesem Angebot handelt es sich um einen unsanierten Dachboden in einem denkmalgeschützten und sanierten Mehrfamilienhaus in Leipzig-Reudnitz.
Mit der vorliegenden Baugenehmigung und einer entsprechenden Umnutzung, kann das derzeitige Teileigentum zu einer Maisonette-Eigentumswohnung mit 5 Räumen (inkl. ca. 46,74 m² großen Abstellraum in der oberen Ebene) umgebaut werden.
Alle Medien liegen an (Strom, Klingel, Wasser, Abwasser, Heizung, Telekom).
In den Kosten enthalten sind:
- Baugenehmigung
- Brandschutz
- Abgeschlossenheit
- Umwandlung von Teil - auf Wohnungseigentum
- ca. 192,02 m² Gesamtfläche
- ca. 145,28 m² Wohnfläche
- ca. 46,74 m² Abstellraum
Оборудване
- kernsanierter Altbau
- Erdgas liegt am Haus an
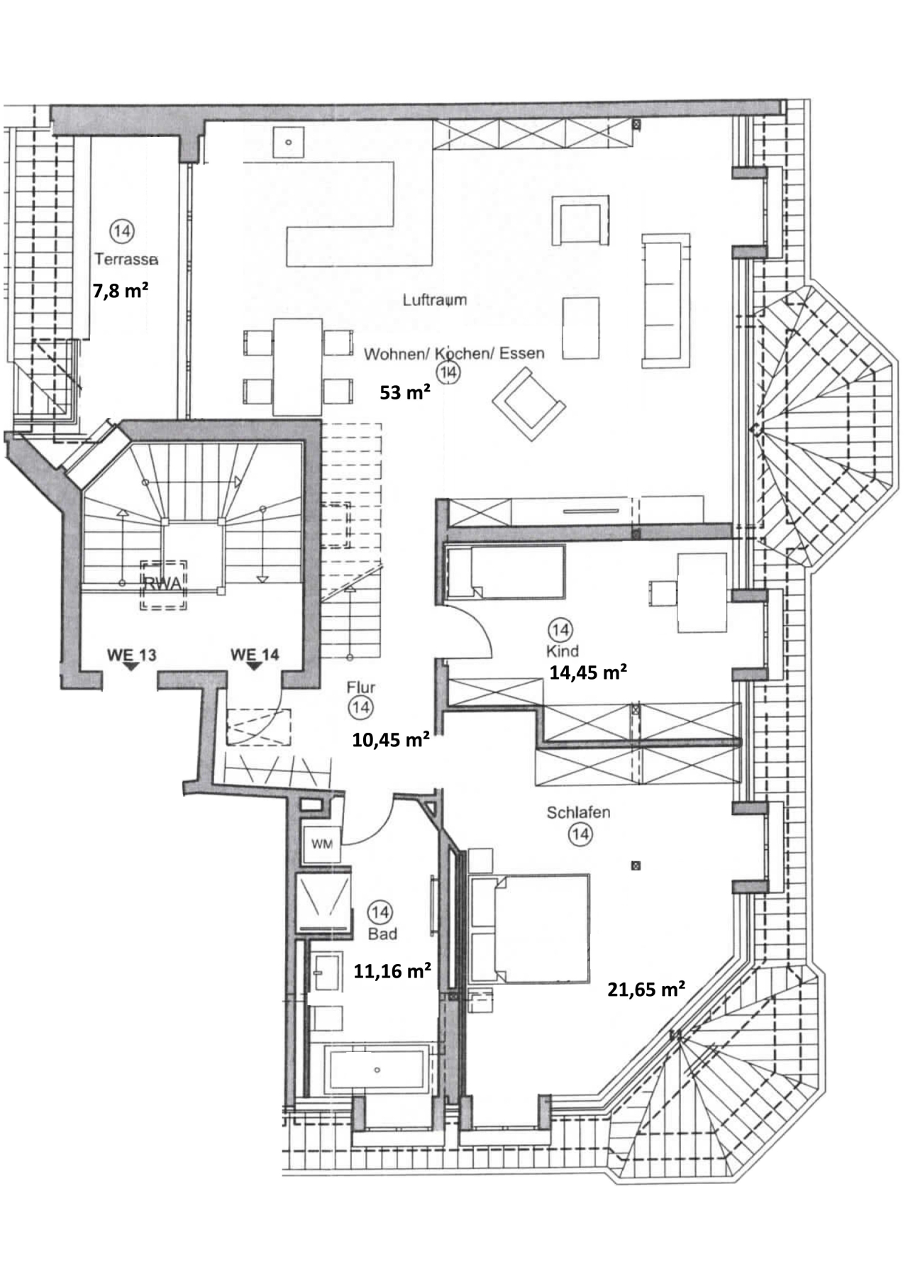
untere Ebene
- 3-Zimmer
- derzeit ca. 2,89 m Raumhöhe
- ca. 53 m² offener Wohn-/Essbereich mit Zugang zur Loggia
- Tageslichtbad mit Badewanne und Dusche
- großes Schlafzimmer und Kinderzimmer
- mehrere Dachgauben erlaubt
obere Ebene:
- Galerie/Arbeiten mit ca. 30,71 m²
- Abstellraum mit ca. 46,74 m²
- kein Lift
- Kellerabteil vorhanden
- separater Wirtschaftseingang von Straße aus zum Keller
- 2 sep. Fahrradkeller
Местоположение
Die angebotene Immobilie befindet sich im Leipziger Stadtteil Reudnitz-Thonberg in einem gepflegten und sanierten Wohnhaus.
In unmittelbarer Nähe befinden sich Lebensmittelläden, zahlreiche Einkaufsmöglichkeiten für den täglichen Bedarf, gastronomische Einrichtungen, Einkaufszentrum, Schulen, Ärzte, Apotheken und Banken.
In ca. 300 m liegt der beliebte Lene-Voigt-Park.
Eine Straßenbahn- und Bushaltestelle befinden sich in ca. 200 m Entfernung.
Die Innenstadt liegt in ca. 1,5 km Entfernung.
In wenigen Fahrminuten rreichen Sie die B6, neue Messe und A14.
Други
Die von uns gemachten Angaben haben wir nach bestem Wissen und Gewissen nach Informationen des Vermieters/Verkäufers und den uns übergebenen Informationen zusammengestellt. Eine Gewähr für diese Angaben können wir nicht übernehmen. Wichtige Zahlen und Informationen sind am Objekt zu überprüfen. Zwischenvermietung/Verkauf bleibt vorbehalten.
04317 Leipzig, Germany
Facebook comments
Last broker properties View all broker properties →
6.473 m² Grundstück mit teilsan. Bestandsgebäuden - gewerbl. Wohnen, Büro, gr. Einzel-Garagen, 60 SP
Парцел за търговски цели продава се € 299 000
04838 Laußig, Germany
6 473 m²
€ 570 000Charmantes, renovierungsbedürftiges Reihenmittelhaus in ruhiger Lage - 3 Etagen, "Einliegerwohnung", Terrasse, Balkon, Garten, Keller, Garage
Градска къща - средна продава се € 570 000
90455 Nürnberg, Germany
149 m² 5 2
€ 1 280Geräumiger Eckladen in Leipzig Gohlis-Mitte - große Schaufensterfront, Büro, Lager, WC mit Dusche und Fenster
Магазин под наем € 1 280
04155 Leipzig, Germany
131 m² 4
€ 350 000Laden-/Gastronomiefläche in Leipzig Gohlis-Mitte
Магазин продава се € 350 000
04155 Leipzig, Germany
68 m² 3
€ 499 500Helle 3-Raum-ETW mit EBK, Balkon, schwellenfreier Lift, Keller u.v.m.
Wohnung продава се € 499 500
90425 Nürnberg, Germany
81 m² 3 1 1
€ 1 750 000Eigennutz + Kapitalanlage! Sehr gepflegte, freist. Gewerbeimmobilie! ca. 5,72 % Soll-Rendite
Многофамилна къща продава се € 1 750 000
06130 Halle (Saale), Germany
1 039 m²
€ 2 4991,50 €/m² - eingezäunte Gewerbe-Freifläche bis ca. 1.666 m² in Leipzig-Knautnaundorf
Жилищен парцел под наем € 2 499
04249 Leipzig, Germany
1 666 m²
€ 5 980 000Ca. 35.270 m² gr. Gewerbegrundstück mit Lagerhallen, Gewächshaus, Wohnhäuser, Bürogebäude, Garagen, SP, Freilagerfläche u.v.m. - ca. 60 % vermietet
Индустриално съоръжение продава се € 5 980 000
04279 Leipzig, Germany
35 270 m²
€ 331 500Maisonette-DG-Whg. mit EBK, TG und Balkon, Interessant für Eigennutzer oder Kapitalanleger
Мезонет продава се € 331 500
04289 Leipzig, Germany
115 m² 5
€ 1 299 800Sanierter Altbau mit Teilungserklärung, 1 GE + 6 WE, Balkone, umzäunter Innenhof, Keller
Жилищна и търговска сграда продава се € 1 299 800
04289 Leipzig, Germany
467 m²
€ 1 925Gewerbe-Außenfläche auf eingezäuntem Grundstück - 1,75 €/m² KM, max. 1.100 m²
Жилищен парцел под наем € 1 925
04416 Markkleeberg, Germany
1 100 m²
€ 420Betonierte Freifläche für ca. 16 Stellplätze - ca. 230 m² - eingezäuntes Grundstück
Various под наем € 420
04347 Leipzig, Germany
230 m²
Similar properties View all properties similar to this property →
6.473 m² Grundstück mit teilsan. Bestandsgebäuden - gewerbl. Wohnen, Büro, gr. Einzel-Garagen, 60 SP
Парцел за търговски цели продава се € 299 000
04838 Laußig, Germany
6 473 m²
Gewerbegrundstück im Süden von Leipzig direkt vom Eigentümer zu verkaufen
Парцел за търговски цели продава се
Carsdorfer Straße 24, 04523 Pegau, Sachsen, Germany
10 500 m²
€ 302 112Saniertes Altbau-MFH mit 4 Mieteinheiten, Einzelgarage & Keller, Nähe Goitzschesee
Многофамилна къща продава се € 302 112
06749 Muldestausee, Germany
208 m²
€ 95 000Unsaniertes MFH Denkmal in Altenburg
Многофамилна къща продава се € 95 000
04600 Altenburg, Germany
480 m²
€ 50 000Großes Grundstück in Wohnsiedlung, Grundstück für Gewerbe
Жилищен парцел продава се € 50 000
04523 Pegau, Germany
1 500 m²
