Naturnah: Traumhaus in Aussichtslage von Mosbach
Overview
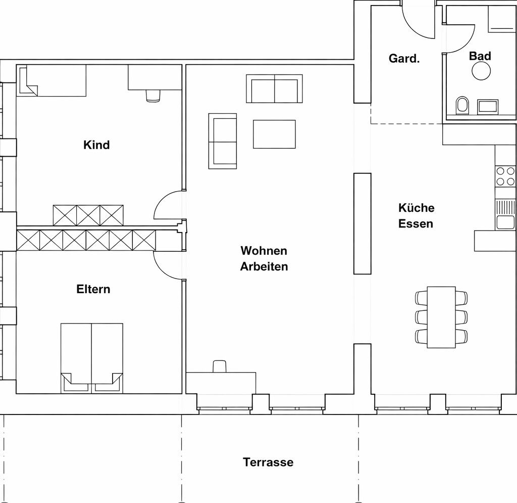
Inside
Outside
Limitations & Requirements
Energy
Prices
Property description
Aussichtslage: Das außergewöhnliche 1-2 Familienhaus mit herrlicher Aussicht liegt direkt in der Natur. Die Immobilie besticht durch einen verspielten Grundriss und solide Bausubstanz. Mit Wohn- und Schlafräumen im Erdgeschoss sowie Untergeschoss, welches vom Garten bodeneben erreichbar ist, ergänzt durch das Turmzimmer, bieten sich viele Gestaltungsmöglichkeiten. Erbaut 1974 und 1996 durch einen Anbau ergänzt, ist das Haus das perfekte Zuhause für die Familie in traumhafter Umgebung.
Equipment
- Garage
- Aussichtslage
- Balkon
- Terrasse
- Tageslichtbadezimmer
- Einliegerwohnung
- Kamin
Location
Mosbach liegt malerisch zwischen Neckar und Odenwald, direkt an der Mündung der Elz in den Neckar und ist umgeben von bewaldeten Hügeln sowie dem Naturpark Neckartal-Odenwald.
Mosbach ist nicht nur geschichtsträchtig, sondern auch kulturell lebendig. Regelmäßig finden Märkte, Konzerte und das Mosbach Summer Festival statt, bei dem Altstadt und Stadtpark zur Veranstaltungsbühne werden
Als Kreisstadt bietet Mosbach eine gute Infrastruktur mit Verwaltungsbehörden, Schulen, einer Hochschule und einem Bahnhof. Die Verbindung von Natur, Geschichte, Kultur und Lebensqualität macht Mosbach zu einem attraktiven Ort zum Leben.
Various
Wir freuen uns auf Ihre Kontaktaufnahme und stehen Ihnen für weitere Informationen gerne zur Verfügung.
Die vorstehenden Angaben sind nach zur Verfügung gestellten Kenntnissen veröffentlicht. Wir können nicht für die Richtigkeit und Vollständigkeit der Angaben garantieren, da diese auf Unterlagen sowie Aussagen Dritter basieren.
Weitere Informationen sowie Immobilienangebote zum Kauf und zur Miete finden Sie unter: https://www.bemmann-immobilien.de
74821 Mosbach, Germany
Facebook comments
Last broker properties View all broker properties →
Appartement mit Ausblick: 1-Zimmerwohnung mit Balkon, Küche und Stellplatz
Penthouse for rent € 500
76448 Durmersheim, Germany
39 m² 1 1 1
€ 650Gemütlich: Helles Appartement mit Stellplatz und Küche
Ground floor apartment for rent € 650
76461 Muggensturm, Germany
47 m² 2 1 1
€ 870Stadtnah: Schöne 2,5-Zimmer Wohnung mit Einbauküche und Balkon
Wohnung for rent € 870
76571 Gaggenau, Germany
81 m² 3 1 1
€ 502 Stellplätze in der Ludwigsvorstadt
Various for rent € 50
76437 Rastatt, Germany
0 m²
€ 495 000Renditestarkes Mehrfamilienhaus
Multi-family house for sale € 495 000
76437 Rastatt, Germany
205 m²
€ 1 400Frisch saniert: Stilvolle Wohnung mit Terrasse und Stellplatz
Wohnung for rent € 1 400
76461 Muggensturm, Germany
141 m² 4 2 1
€ 292 000Wohnen oder Kapitalanlage: Moderne Wohnung mit Balkon und TG in zentraler Lage
Wohnung for sale € 292 000
76461 Muggensturm, Germany
85 m² 4 2 1
Similar properties View all properties similar to this property →
Verkaufsangebot-Mischgenutztes Grundstück mit Entwicklungspotenzial im schönen Eppingen-Mühlbach
Multi-family house for sale € 625 000
Pfarrgasse 15 + 15/1, 75031 Eppingen / Mühlbach, Germany
250 m² 14 11 6
€ 529 000GLOBAL INVEST SINSHEIM | 2-3-Familienhaus in toller Lage von Ziegelhausen mit unverbaubarem Blick
Multi-family house for sale € 529 000
69118 Heidelberg / Ziegelhausen, Germany
205 m² 10 6 4
€ 299 000GLOBAL INVEST SINSHEIM | Ein-, Zwei- oder Dreifamilienhaus mit Lagerhalle in Waldwimmersbach
One family house for sale € 299 000
74931 Lobbach / Waldwimmersbach, Germany
200 m² 9 6 2
€ 599 900Saniertes und modernisiertes 6-Familienhaus in Adelsheim - Balkon - Terrasse - 6,2% -Renditeobjekt
Multi-family house for sale € 599 900
74219 Möckmühl, Germany
380 m² 15 9 6
