Moderne und offen gestaltete Bürofläche in Zentrum-Süd in TOP-Lage
Übersicht
Innen
Extras zum Objekt
Energie
Preise
Objektbeschreibung
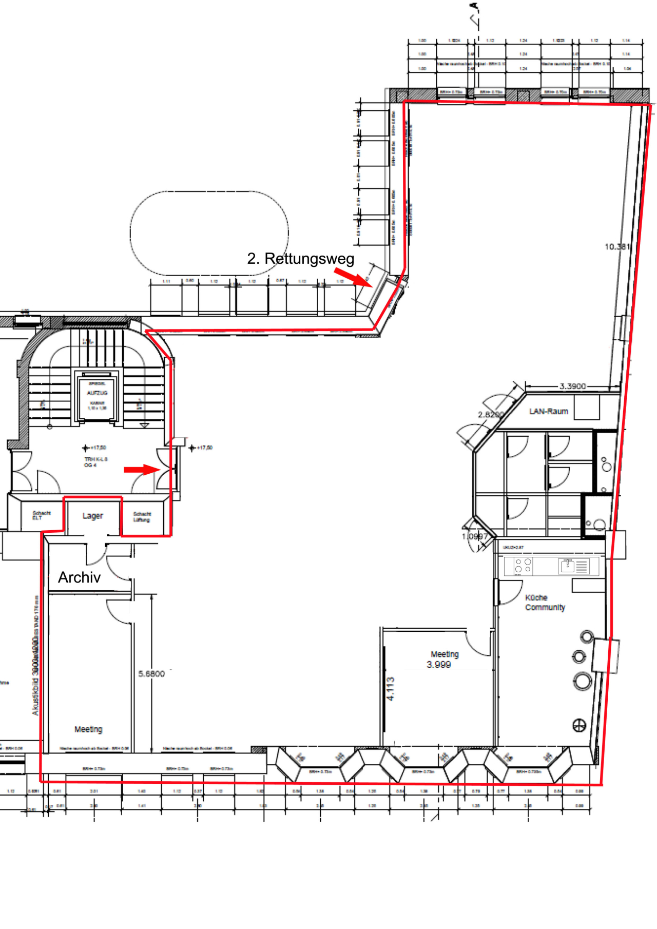
Bei der angebotenen Immobilie handelt es sich um eine Büro-/Praxisfläche mit insgesamt 7 Räumen auf ca. 330 m².
Das gesamte Objekt steht unter Denkmalschutz und wurde hochwertig saniert.
Die Bürofläche wurde in 2021 komplett renoviert.
Zusätzlich können PKW-Stellplätze im Innenhof und in der Tiefgarage angemietet werden.
Ausstattung
- 3 Räume
- barrierefreier Zugang
- Videosprechanlage
- Zentralheizung
- ca. 2,85 m Raumhöhe
- Glastrennwände und -türen bei 1 Raum
- Schallakustikelemente in Besprechungsräumen vorhanden
- abgehangene Decken mit integrierten LED-Lampen
- Teppichboden
- Außenjalousien
- gr. Archivraum
- gr. Technik- und Abstellraum
- gr. offene EBK mit Sozial-/ Meetingraum mit Fenster
- 4 WCs + 2 Urinale
- 2. Rettungsweg
- Lift bis zur TG
- SP im Innenhof + SUV-TG möglich
Lage
Diese Immobilie befindet sich auf der beliebten Hauptgeschäftsstraße des Leipziger Südens, der Karl-Liebknecht-Straße.
Die Leipziger Südvorstadt ist ein unmittelbar südlich an das Zentrum angrenzender Stadtteil Leipzigs.
Er erstreckt sich südlich von der Riemannstraße bis zur Richard-Lehmann-Straße (Bundesstraße 2) sowie zwischen südlichem Auewald und Bayerischem Bahnhof in Ost-West-Richtung. Die Straßenzüge sind größtenteils durch gründerzeitliche, inzwischen sanierte, Altbauten geprägt. Wichtigste Verkehrsachsen sind die Karl-Liebknecht-Straße sowie die Wundtstraße.
Die Innenstadt ist nach wenigen Minuten zu Fuß erreicht. Anschluss an den ÖPNV besteht durch die Buslinie mit Haltestelle in unmittelbarer Nähe des Objektes und mehreren Linien der Straßenbahn in der Karl-Liebknecht-Straße. Über die B2 hat man eine zügige Anbindung nach Markkleeberg und zur A38.
Sonstiges
Die von uns genannten Angaben haben wir nach bestem Wissen und Gewissen anhand
von Informationen des Vermieters/Verkäufers zusammengestellt. Eine Gewähr für diese
Angaben können wir nicht übernehmen. Wichtige Zahlen und Informationen sind am
Objekt zu überprüfen. Zwischenvermietung/Verkauf bleibt vorbehalten.
04107 Leipzig, Germany
Meta
Weitere Objekte des Maklers Alle Objekte des Anbieters anzeigen →
Charmante, unsanierte Altbau-Perle mit viel Potential in Markkleeberg! Kulturdenkmal, 6 WE, Keller, Nebengebäude
Mehrfamilienhaus zu Verkauf € 399 000
04416 Markkleeberg, Germany
420 m²
€ 2 500 000192,31 €/m² - Bestand u.a. aus Hallen, Garagen, Büros, Sozialräumen u.v.m. (ca. 13.000 m² NF) auf ca. 3,3 ha GS, ca. 89 SP
Various zu Verkauf € 2 500 000
04688 Grimma, Germany
32 900 m²
€ 1 478Helle DG-Wohnung mit Galerie, ca. 64 m² WZ, Kamin, EBK, Gäste-WC, gr. Balkon, Lift, SP mgl.
Dachgeschosswohnung zur Miete € 1 478
04103 Leipzig, Germany
185 m² 4 2
Teilanmietung ab 500 m² für Bestandsgebäude (ca. 13.000 m² NF) von Halle, Lager, Büro, gew. Wohnen, Werkstatt
Various zur Miete
04688 Grimma, Germany
0 m²
€ 4 250Warmlagerhalle im Gewerbegebiet Wachau für Lager, Produktion u.a., gr. Rolltor, ca. 12 SP mgl.
Various zur Miete € 4 250
04416 Markkleeberg, Germany
760 m²
€ 225 000ETW im 5.OG in der Südvorstadt, Lift, Badewanne, SUV-TG
Wohnung zu Verkauf € 225 000
04275 Leipzig, Germany
81 m² 3
€ 1 750Teilanmietung ab 500 m² für Bestandsgebäude (ca. 13.000 m² NF) von Halle, Lager, Büro, gew. Wohnen, Werkstatt
Various zur Miete € 1 750
04688 Grimma, Germany
0 m²
€ 32 900GLOBAL-PÄCHTER ab 1,00 €/m² gesucht! GS mit ca. 13.000 m² NF + Bestand - Untervermietung möglich!
Wohngrundstück zur Miete € 32 900
04688 Grimma, Germany
32 900 m²
€ 2 500 000Gr. GS mit Bestand aus Hallen, Garagen, Büros, Sozialräumen u.v.m. (ca. 13.000 m² NF), 89 SP
Wohngrundstück zu Verkauf € 2 500 000
04688 Grimma, Germany
32 900 m²
€ 1 175Große Büroetage in einem sanierten Geschäftshaus - 10 Räume, Teeküche, Lift, Keller, Innenhof u.v.m.
Büro- / Praxisfläche zur Miete € 1 175
06110 Halle (Saale), Germany
210 m² 10
€ 1 350 000Großes Geschäftshaus mit 5 Büroeinheiten + 1 WE im DG, Lift, Keller, Innenhof, kl. Garage u.v.m.
Wohn- und Geschäftshaus zu Verkauf € 1 350 000
06110 Halle (Saale), Germany
472 m²
€ 7602-Raum-Whg. im Herzen von Leipzig! Lift, EBK, Fahrrad-SP vorhanden, SUV-TG mgl.
Wohnung zur Miete € 760
04109 Leipzig, Germany
58 m² 2 1
Ähnliche Objekte Ähnliche Angebote zu dieser Immobilie →
Große und helle Gewerbefläche direkt im Herzen von Leipzig!
Büro- / Praxisfläche zur Miete € 5 808
04109 Leipzig, Germany
363 m² 6
€ 5 427Großräumige und gestaltbare Bürofläche mit 14 Räumen in Leipzig Seehausen
Büro- / Praxisfläche zur Miete € 5 427
04356 Leipzig, Germany
619 m² 14
€ 5 610Moderne und offen gestaltete Bürofläche in Zentrum-Süd in TOP-Lage
Büro- / Praxisfläche zur Miete € 5 610
04107 Leipzig, Germany
330 m² 7
€ 5 570Repräsentatives, saniertes & freistehendes Bürogebäude im Graphischem Viertel von Leipzig!
Büro- / Praxisfläche zur Miete € 5 570
04103 Leipzig, Germany
413 m² 12
€ 3 350Große, helle Büro-, Schulungs-, Ausstellungs- & Lagerfläche in Wiedemar, TG mgl.
Büro- / Praxisfläche zur Miete € 3 350
04509 Wiedemar, Germany
613 m² 6
€ 4 776Große Bürofläche in der Südvorstadt, Parkett, 4 Balkone, gr. Küche, Lift, SP mgl.
Büro- / Praxisfläche zur Miete € 4 776
04275 Leipzig, Germany
367 m² 10
€ 5 088Repräsentative, 2022 renovierte, helle Maisonette-Gewerbefläche mit 2 Dachterrassen, Lift, SP mgl.
Büro- / Praxisfläche zur Miete € 5 088
04509 Wiedemar, Germany
598 m² 10
€ 5 870Helle ca.510 m² große Bürofläche, 19 Zimmer, ruhige Lage, Lift, Teeküche, Stellplätze vorhanden
Büro- / Praxisfläche zur Miete € 5 870
04347 Leipzig, Germany
510 m² 19
