Tolle Lage - Gewerbefläche im Souterrain im beliebten Musikviertel - 2 Räume, inkl. EBK, Bad mit Dusche, Kellerabteil
Innen
Extras zum Objekt
Energie
Preise
Objektbeschreibung
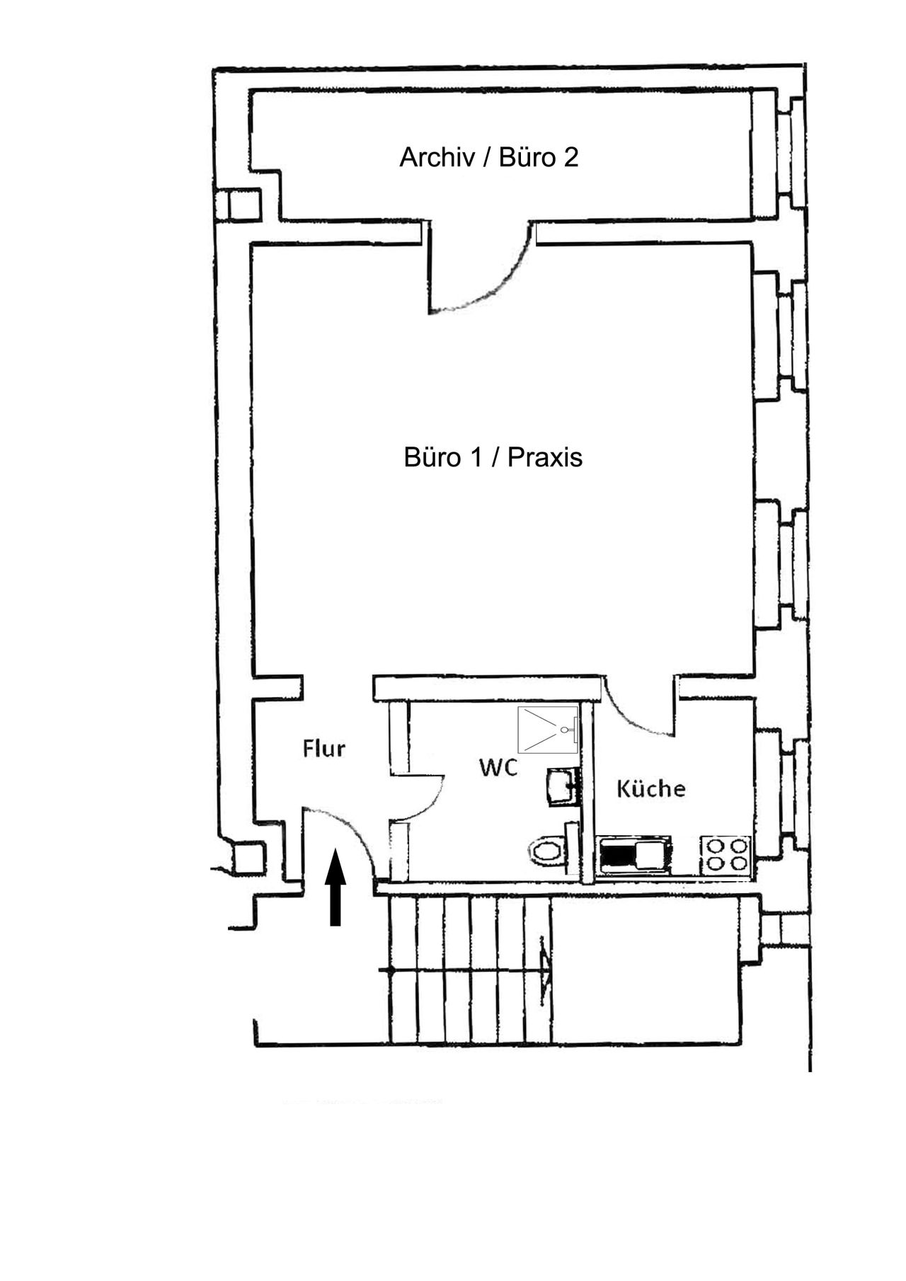
Die zur Vermietung stehende Souterrain-Gewerbefläche befindet sich im schönen Musikviertel.
Die Immobilie verfügt insgesamt über 2 Räume, die flexibel als Büro-/Praxis- oder Besprechungsräume genutzt werden können.
Die Räumlichkeiten überzeugen durch ihre helle und freundliche Atmosphäre.
Die modernen Fenster sorgen für ausreichend Tageslicht und somit für eine angenehme Arbeitsumgebung.
Die Beheizung erfolgt über Fernwärme.
Zur Ausstattung der Immobilie gehören außerdem eine Einbauküche sowie ein WC mit Rainshowerdusche.
Die zentrale Lage des Gebäudes ermöglicht eine hervorragende Anbindung an öffentliche Verkehrsmittel (Bushaltestelle in 70 m) und Einkaufsmöglichkeiten und ist für potentielle Kunden gut erreichbar.
Ausstattung
- 2 Räume
- Zentralheizung
- Videosprechanlage
- EDV Verkabelung
- schmiedeeiserne Fenstergitter zur zusätzlichen Sicherheit
- Fliesenboden
- ca. 2,60 m Raumhöhe
- inkl. EBK
- WC mit Rainshower-Dusche
- Kellerabteil
Lage
Das Objekt befindet sich in Leipziger Top-Lage - im beliebten Musikviertel - direkt am Zentrum und doch im Grünen.
Dieser Stadtteil ist eines der bekanntesten und liegt südlich der Innenstadt. Er zeichnet sich durch eine lebendige Atmosphäre mit zahlreichen Geschäften, Einkaufsmöglichkeiten, Bäcker, Imbissen, Restaurants und kulturellen Einrichtungen aus.
Die direkte Nähe zum Johanna- und Clara-Zetkin-Park sorgen für eine gute Anbindung an Grünflächen und Erholungsmöglichkeiten. Auch das Elsterufer erreichen Sie in 5 Gehminuten sowie eine Sportanlage.
Sie erreichen die Leipziger City in 5-10 Minuten zu Fuß.
Sonstiges
Die von uns gemachten Angaben haben wir nach bestem Wissen und Gewissen nach Informationen des Vermieters/Verkäufers und den uns übergebenen Informationen zusammengestellt. Eine Gewähr für diese Angaben können wir nicht übernehmen.
Wichtige Zahlen und Informationen sind am Objekt zu überprüfen.
Zwischenvermietung/Verkauf bleibt vorbehalten.
04107 Leipzig, Germany
Meta
Weitere Objekte des Maklers Alle Objekte des Anbieters anzeigen →
1996 saniertes MFH mit 8 Wohneinheiten in Falkenstein, 1 WE leer - aktuell 7,49 % Rendite
Mehrfamilienhaus zu Verkauf € 225 000
08223 Falkenstein, Germany
438 m²
€ 2 268#Super Lage - Ladenfläche im Waldstraßenviertel - ca. 4 m gr. Schaufensterfront, über 2 Etagen, 2 Lager, Teeküche, WC
Ladenlokal zur Miete € 2 268
04105 Leipzig, Germany
108 m² 4
€ 295 0001996 san. EFH mit gr. Grundstück und grüner, ruhiger Lage! Garage, Terrasse, Balkon, Kamin, Keller, DG-Reserve u.v.m.
Einfamilienhaus zu Verkauf € 295 000
04746 Hartha, Germany
157 m² 5
€ 250Kleine Ladenfläche in toller Marktlage in Groitzsch - 2 Räume, AR, WC, großes Schaufenster mit Rollladen
Ladenlokal zur Miete € 250
04539 Groitzsch, Germany
40 m² 2
€ 520 00090iger Jahre saniertes Wohn-und Geschäftshaus (VH + HH), u.a. Balkon, Dachterrasse, aktuell 6,69 % Rendite
Wohn- und Geschäftshaus zu Verkauf € 520 000
04539 Groitzsch, Germany
453 m²
€ 470 0001996 saniertes, freistehendes MFH mit Nebenhaus, gr. Grundstück; Ausbaupotential im EG, Pkw-SP, derzeit 6,84% Rendite
Mehrfamilienhaus zu Verkauf € 470 000
04565 Regis-Breitingen, Germany
621 m²
€ 4402022 renovierte 3-Raum-WE im 2.OG in freistehendem MFH in grüner + ruhiger Lage, Bad m. F., Einzelgarage mgl.
Wohnung zur Miete € 440
04838 Jesewitz, Germany
60 m² 3 1
€ 4 500vielseitig nutzbare, ebenerdige Gewerbeeinheit, ca. 180 m², mit großer Fensterfront, SUV-TG mgl.
Ladenlokal zur Miete € 4 500
04107 Leipzig, Germany
180 m² 1
€ 1 994 620ca. 2,1 ha gr. Gewerbegrundstück in Jesewitz, gewalzter Boden, Industriegebiet
Gewerbegrundstück zu Verkauf € 1 994 620
04838 Jesewitz, Germany
20 996 m²
€ 1 8152026 frisch renovierte Bürofläche im Gewerbegebiet - 6 Räume, WCs, Küchenanschluss, 2. Fluchtweg, SP mgl. u.v.m.
Büro- / Praxisfläche zur Miete € 1 815
04319 Leipzig, Germany
202 m² 6
€ 4 4202026 frisch renovierte Büro-Etage mit 15 Räumen, WCs, Küchenanschluss, 2. Außenzugang, SP mgl. u.v.m.
Büro- / Praxisfläche zur Miete € 4 420
04319 Leipzig, Germany
491 m² 15
€ 360Lagerfläche/Archivraum mit Heizung und Aktenregalsystem
Various zur Miete € 360
04319 Leipzig, Germany
60 m²
