Ca. 8.708 m² gr. Gewerbegrundstück mit 4 Bestandsgebäuden + ca. 1.500 m² Freifläche + 18 SP
Übersicht
Aussen
Extras zum Objekt
Preise
Objektbeschreibung
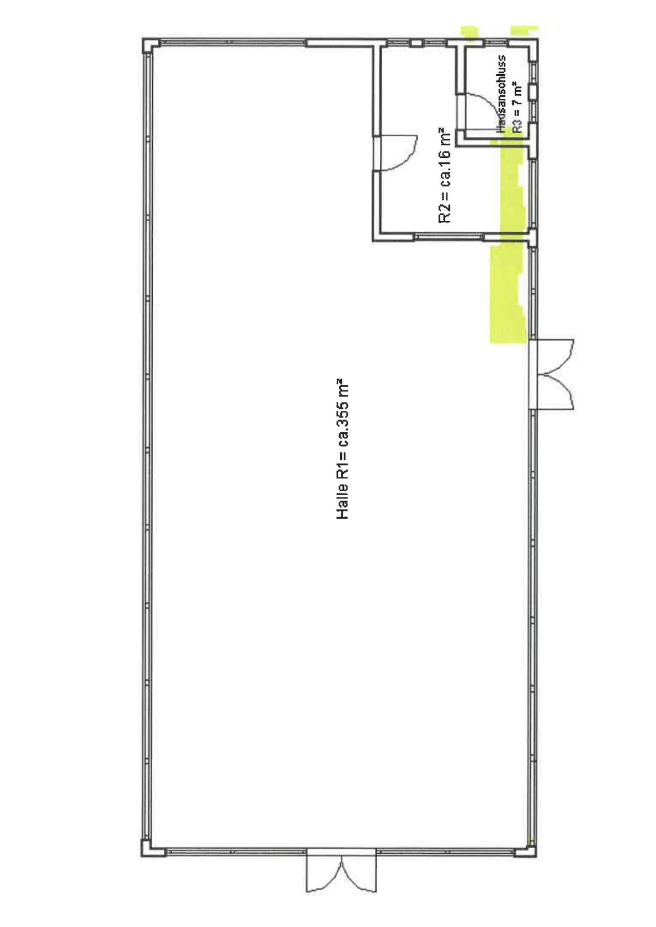
Dieses Investmentangebot bietet eine Gewerbefläche mit 4 Bestandsgebäuden unterschiedlicher Nutzungsart mit einer vermietbaren Gesamtnutzfläche von ca. 3.612 m², einer ca. 1.500 m² großen Freilagerfläche und ca. 18 Stellplätzen auf einer Grundstücksfläche von insges. ca. 8.708 m².
Zusätzlich zu den Bestandsgebäuden verfügt die Immobilie über eine großzügige Freilfläche, die sich ideal für Lager-, Produktions- oder Sportanlagen-Zwecke eignen.
Die Lage der Immobilie ist optimal, da sie gut erreichbar ist und über eine gute Anbindung an das öffentliche Verkehrsnetz verfügt.
Das Gewerbeanwesen ist zu ca. 50 % vermietet und die derzeitigen Einnahmen belaufen sich aktuell auf ca. 130.338,00 € JNKM (Stand 01/2026).
Im Durchschnitt finden ca. 2 Anmietungen/Monat für Events statt - dies ergibt eine zusätzliche JNKM von ca. 30.000,00 €.
Es besteht ein Mietentwicklungs-Potenzial mit den Bestandsmietern.
Aufzählung der Bestandsgebäude (siehe Legende-Flurkarte):
Q - Glas-Halle 2 (teil-vermietet)
R - Büro-/Wohngebäude (vermietet)
S - Halle 3
T - Halle 4
Ausstattung
- eingezäuntes Grundstück
- Grundstück ges. ca. 8.708 m²
- Bestandsgebäude-Gesamtfläche: ca. 3.612 m²
- ca. 2.500 m² Freilagerfläche
- große Einfahrtstore
- Einbau von elektrischen Rolltor mgl.
- freistehende Gebäude
- zum Teil renovierungsbedürftig
- deaktivierte Heizkörper in Halle 3 & 4 vorhanden
- ca. 7,50 m - 9 m Hallenhöhe
- teilweise in den Hallen jeweils eine 2. Ebene vorhanden
- Sozial-Büro-Lager-Sanitärtrakt jeweils im EG vorhanden
- ca. 31 m² Einzelgarage an Halle 4
- idyllische Freiflächen
- ca. 18 PKW-SP
Lage
Die freistehenden Hallen befinden sich in Leipzig, im Stadtteil Dölitz.
Dölitz ist ein Stadtteil von Leipzig, der 1910 durch die Eingemeindung des Dorfes Dölitz entstand. Seit der kommunalen Neugliederung von Leipzig im Jahre 1992 bildet Dölitz mit Dösen den Ortsteil Dölitz-Dösen und liegt knapp 6 km südlich des Leipziger Stadtzentrums am östlichen Rand der Pleißenaue.
Die Anbindung an öffentliche Nahverkehrsmittel (Straßenbahn + Bus) befindet sich in ca. 500 m.
In ca. 350 m befindet sich fußläufig der nä. Einkaufsmarkt.
In ca. 2 km Entfernung liegt das Agra-Gelände und in ca.150 m der Erholungspark Lößnig-Dölitz mit dem beliebten kleinen und großen Silbersee.
Die B2 und A38 liegen ca. 5 Autominuten entfernt.
Sonstiges
Die von uns gemachten Angaben haben wir nach bestem Wissen und Gewissen nach Informationen des Vermieters/Verkäufers und den uns übergebenen Informationen zusammengestellt. Eine Gewähr für diese Angaben können wir nicht übernehmen. Wichtige Zahlen und Informationen sind am Objekt zu überprüfen. Zwischenvermietung/Verkauf bleibt vorbehalten.
04279 Leipzig, Germany
Meta
Weitere Objekte des Maklers Alle Objekte des Anbieters anzeigen →
Freistehendes Haus-Ensemble aus 2 EFH in Markkleeberger Seenähe! 3 EBK
Zweifamilienhaus zu Verkauf € 1 980 000
04416 Markkleeberg, Germany
295 m² 11 4
€ 4 300ca. 278 m² großer Laden auf zwei Ebenen, TG mgl., Laufkundschaftslage
Ladenlokal zur Miete € 4 300
04229 Leipzig, Germany
278 m²
€ 27 994Gewerbefläche in exquisiter Leipziger City-Lage! 3 Etagen, Rolltreppe, WC, Lift u.v.m.
Various zur Miete € 27 994
04109 Leipzig, Germany
2 240 m² 5
€ 16 537Individualisierbare Gewerbefläche in exquisiter Leipziger City-Lage! EG + UG, Preis im IST-Zustand
Various zur Miete € 16 537
04109 Leipzig, Germany
1 341 m² 4
€ 11 000Individualisierbare Gewerbefläche in exquisiter Leipziger City-Lage! Preis im IST-Zustand
Various zur Miete € 11 000
04109 Leipzig, Germany
550 m² 2
€ 10 816Gewerbefläche inkl. 2 Atrien in exquisiter Leipziger City-Lage! Preis im IST-Zustand
Various zur Miete € 10 816
04109 Leipzig, Germany
773 m² 3
€ 10 482Individualisierbare Gewerbefläche in exquisiter Leipziger City-Lage! Preis im IST-Zustand
Various zur Miete € 10 482
04109 Leipzig, Germany
839 m² 1
€ 5 327Individualisierbare Gewerbefläche in exquisiter Leipziger City-Lage! Preis im IST-Zustand
Various zur Miete € 5 327
04109 Leipzig, Germany
761 m² 2
€ 1 478Repräsentative Büro-/Praxisfläche im DG mit Galerie, Kamin, 2 sep. WCs, gr. Balkon, Lift, SP mgl.
Büro- / Praxisfläche zur Miete € 1 478
04103 Leipzig, Germany
185 m² 4
€ 2 5002026 frisch renovierte Bürofläche im Gewerbegebiet - 9 Räume
Büro- / Praxisfläche zur Miete € 2 500
04319 Leipzig, Germany
289 m² 9
€ 6 795Lichtdurchflutete und imposante Gewerbefläche im Gewerbegebiet, veredelter Rohbau, SP mgl.
Büro- / Praxisfläche zur Miete € 6 795
04347 Leipzig, Germany
799 m² 14
€ 1 900 000GS mit Bestand aus Hallen, Garagen, Büros, Sozialräumen u.v.m. auf ca. 3,3 ha GS, ca. 89 SP
Various zu Verkauf € 1 900 000
04688 Grimma, Germany
32 900 m²
Ähnliche Objekte Ähnliche Angebote zu dieser Immobilie →
GS mit Bestand aus Hallen, Garagen, Büros, Sozialräumen u.v.m. auf ca. 3,3 ha GS, ca. 89 SP
Various zu Verkauf € 1 900 000
04688 Grimma, Germany
32 900 m²
€ 2 500 000Industrie- und Gewerbeareal mit vielen Bestandsgebäuden
Various zu Verkauf € 2 500 000
04509 Wiedemar, Germany
28 547 m²
€ 1 994 620ca. 2,1 ha gr. Gewerbegrundstück in Jesewitz, gewalzter Boden, Industriegebiet
Gewerbegrundstück zu Verkauf € 1 994 620
04838 Jesewitz, Germany
20 996 m²
Gewerbegrundstück im Süden von Leipzig direkt vom Eigentümer zu verkaufen
Gewerbegrundstück zu Verkauf
Carsdorfer Straße 24, 04523 Pegau, Sachsen, Germany
10 500 m²
€ 3 980 000Ca. 10.384 m² großes Gewerbe Baugrundstück in Wiederitzsch, nahe der "Neuen Messe" und A14
Gewerbegrundstück zu Verkauf € 3 980 000
04158 Leipzig, Germany
10 384 m²
€ 2 999 000SHAREDEAL - ca. 4,5 ha großes Grundstück mit Bestandsgebäuden
Gewerbegrundstück zu Verkauf € 2 999 000
04838 Eilenburg, Germany
45 000 m²
