Fachwerk-Romantik zum Selbstausbauen: Fachwerkhaus mit Scheune im Ortskern von Tellig (Hunsrück)
Übersicht
Innen
Aussen
Energie
Preise
Objektbeschreibung
Dieses Einfamilienhaus in Tellig bietet Dir die seltene Gelegenheit, ein Zuhause ganz nach Deinen eigenen Vorstellungen zu gestalten. Auf einem großzügigen Grundstück mit 699 m² erwartet Dich ein Haus in Teilmassiv-/Fachwerkbauweise mit viel Potenzial für kreative Ideen und individuelle Wohnkonzepte, sowie 2 geräumige Scheunen.
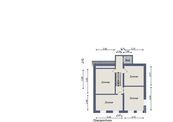
Die Wohnfläche von ca. 126 m² verteilt sich auf insgesamt 6 Zimmer, darunter 5 Schlafzimmer, sodass Du hier viel Platz für Familie, Gäste, Homeoffice oder Hobbyräume hast. Zusätzlich stehen Dir 2 Badezimmer zur Verfügung.
Wem dies nicht ausreicht: auch den Speicher könnte man noch zusätzlich aubauen.
Das Objekt befindet sich in einem komplett renovierungsbedürftigen Zustand und ist damit ideal für alle, die nicht nach Kompromissen suchen, sondern ein echtes Projekt mit Entwicklungsmöglichkeiten. Mit handwerklichem Geschick und einem klaren Blick für Gestaltung kannst Du hier ein charmantes Eigenheim mit Charakter schaffen.
Wenn Du ein Haus mit viel Platz, Entwicklungspotenzial und der Möglichkeit suchst, Deine eigenen Wohnideen zu verwirklichen, dann solltest Du Dir dieses Angebot in Tellig genauer ansehen.
Ausstattung
Zentrale Ölheizung derzeit Pumpe defekt
Zusätzlicher Scheidholzvergaser: funktionsfähig, jedoch nicht angeschlossen
Solarthermie: derzeit nicht funktionsfähig
Kachelofen Wohnzimmer: funktionsfähig
2-fach verglaste Fenster: BJ 1989
Unterer Teil des Gebäudes: von Außen gedämmt
Oberer Teil des Gebäudes: von Innen gedämmt
Dacheindeckung: Kunstschiefer (wahrscheinlich asbesthaltig)
Fassadenverkleidung: Naturschiefer und Holz
Lage
Dieses charmante Einfamilienhaus liegt in ruhiger, naturnaher Umgebung im idyllischen Hunsrück und bietet Dir ein entspanntes Wohnen abseits vom Trubel. Der Ort überzeugt durch seinen dörflichen Charakter, viel Grün und ein angenehmes, familiäres Umfeld – ideal für alle, die Ruhe und Lebensqualität schätzen.
Gleichzeitig profitierst Du von einer guten Anbindung an die umliegenden Ortschaften und die Region, sodass Einkäufe, Schulen, Ärzte und weitere Einrichtungen des täglichen Bedarfs gut erreichbar sind. Die Umgebung lädt zu Spaziergängen, Fahrradtouren und Erholung im Grünen ein und macht das Wohnen hier besonders attraktiv für Familien, Paare und Naturliebhaber.
Sonstiges
Die Flächen- und Maßangaben sind Circa-Werte und beruhen auf den Angaben der Verkäufer.
Die Maklerprovision beträgt für beide Parteien (Käufer und Verkäufer) jeweils 3,57 % inkl. MwSt. des beurkundeten Kaufpreises. Sie ist verdient und fällig mit Abschluss des notariellen Kaufvertrages. Es wurde ein provisionspflichtiger Maklervertrag mit dem Verkäufer in gleicher Höhe abgeschlossen.
56858 Tellig, Germany
Meta
Weitere Objekte des Maklers Alle Objekte des Anbieters anzeigen →
Neu bauen? Nicht nötig! Ihr Einfamilienhaus steht bereits einzugsbereit in Mesenich bei Cochem - Provisionsfrei-
Einfamilienhaus zu Verkauf € 449 000
56820 Mesenich, Germany
163 m² 5 4 2
€ 189 000"Altbauliebe": Gut erhaltenes Haus mit Grünem-Daumen-Potential in Mastershausen
Einfamilienhaus zu Verkauf € 189 000
56869 Mastershausen, Germany
123 m² 6 3 2
€ 135 000Altbau-Liebhaber gesucht: Renovierungsbedürftiges Einfamilienhaus in Zell / Kaimt
Einfamilienhaus zu Verkauf € 135 000
56856 Zell - Kaimt, Germany
100 m² 7 3 2
€ 119 000DHH mit Doppelgarage und kleinem Garten am Bach in ruhiger Lage von Enkirch
Doppelhaushälfte zu Verkauf € 119 000
56850 Enkirch, Germany
115 m² 5 3 1
€ 298 000Einfamilienhaus mit Einliegerwohnung oder Mehrgenerationenhaus? Sie haben die Wahl in Lutzerath
Zweifamilienhaus zu Verkauf € 298 000
56826 Lutzerath, Germany
298 m² 12 5 3
€ 285 000EFH in erhöhter Privatsphäre, umgeben von Grün
Einfamilienhaus zu Verkauf € 285 000
56858 Altlay, Germany
125 m² 5 3 2
€ 199 900Geschichte sucht Zukunft in Neef - 2 Häuser stehen bereit fürs nächste Kapitel
Einfamilienhaus zu Verkauf € 199 900
56858 Neef, Germany
195 m² 10 5 2
€ 295 000Leben mit Aussicht in Kövenig! Renoviertes EFH, direkt bezugsfähig
Reihenhaus zu Verkauf € 295 000
54536 Kröv / Kövenig, Germany
144 m² 6 5 2
€ 259 000Gepflegtes ZFH mit zwei Ferienwohnungen in hochwasserfreien sowie ruhiger Lage in Zell
Andere zu Verkauf € 259 000
56856 Zell, Germany
165 m² 7 4 2
€ 680 000Architektenhaus für Freiberufler: Naturpool, Ruhe & schöne Aussicht in idyllischer Lage von Ernst
Einfamilienhaus zu Verkauf € 680 000
56814 Ernst, Germany
192 m² 6 3 1
€ 229 000Vielseitig nutzbares, großes Wohnhaus mit Scheune und Ställen in Peterswald - Naturnähe inklusive!
Einfamilienhaus zu Verkauf € 229 000
56858 Peterswald-Löffelscheid, Germany
181 m² 7 5 2
€ 135 000Charmantes Wohnhaus mit Leibrente in ruhiger und sonniger Lage in Traben-Trarbach, Stadtteil Traben
Doppelhaushälfte zu Verkauf € 135 000
56841 Traben-Trarbach, Germany
185 m² 11 5 3
Ähnliche Objekte Ähnliche Angebote zu dieser Immobilie →
Geschichte sucht Zukunft in Neef - 2 Häuser stehen bereit fürs nächste Kapitel
Einfamilienhaus zu Verkauf € 199 900
56858 Neef, Germany
195 m² 10 5 2
€ 135 000Charmantes Wohnhaus mit Leibrente in ruhiger und sonniger Lage in Traben-Trarbach, Stadtteil Traben
Doppelhaushälfte zu Verkauf € 135 000
56841 Traben-Trarbach, Germany
185 m² 11 5 3
