Top Mietrendite und Steuervorteil für Kapitalanleger oder Eigennutzer mit Denkmal-Afa in Grimma
Inside
Outside
Изисквания и ограничения
Енергия
Цени
Описание на недвижимата собственост
In der geschichtsträchtigen Großmühle Grimma entsteht derzeit im Zuge einer Komplettsanierung ein einzigartiges Wohnensemble, das historischen Charme mit modernem Wohnkomfort verbindet.
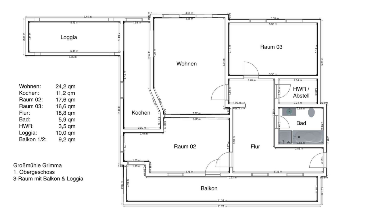
Zum Verkauf steht eine großzügige 3-Raum-Eigentumswohnung mit ca. 117 m² Wohnfläche und einer lichtdurchfluteten Loggia und einem großen Balkon (dieser wird noch angebaut), die ein hohes Maß an Lebensqualität bietet.
Die Wohnung befindet sich in einem denkmalgeschützten Gebäude aus dem 19. Jahrhundert, das einst als bedeutende Getreide- und Mehlmühle diente. Im Zuge der umfassenden Sanierung wird die historische Bausubstanz sorgfältig erhalten und mit zeitgemäßer Architektur kombiniert – so entsteht ein harmonisches Zusammenspiel aus Geschichte und Moderne.
Für Kapitalanleger bietet das Projekt zusätzlich attraktive steuerliche Vorteile durch die Denkmal-AfA (Absetzung für Abnutzung nach § 7i EStG).
Die Wohnung befindet sich aktuell im Rohbau und wird im Zuge der laufenden Sanierung hochwertig fertiggestellt. Einige Wohneinheiten im Haus sind bereits bezugsfertig und können als Referenzwohnungen besichtigt werden (siehe Beispielbilder).
- Großzügiger, offener Wohn- und Essbereich mit direktem Zugang zur Loggia
- großer Balkon
- Moderne, helle Küche – offen integrierbar in den Wohnbereich
- Schlafzimmer mit viel Platz und angenehmer Raumtiefe
- Weiteres Zimmer – ideal als Kinder-, Arbeits- oder Gästezimmer
- Hochwertiges Badezimmer mit Badewanne und Dusche
- Hauswirtschaftsraum (HWR) mit Anschlussmöglichkeiten für Waschmaschine und Trockner
- Großzügiger Flur mit Stellflächen für Garderobe oder Schranklösungen
Zur Wohnung gehören außerdem:
- 1 PKW-Stellplatz (zusätzlich 10.000 € zum Kaufpreis der Wohnung)
- Kellerabteil
- Aufzug im Gebäude
- Neu gestaltete Außenanlage mit ansprechender Wegeführung und Stellplätzen wird noch fertiggestellt
Die Ausstattung umfasst unter anderem:
- Edler Parkettboden in allen Wohnräumen
- Hochwertige Sanitärobjekte und stilvolles Badezimmerdesign
- Denkmalschutzgerechte Fenster mit moderner Verglasung
- Effiziente Heiztechnik nach aktuellem Stand der Sanierung
Die Wohnungen in der Großmühle Grimma bieten eine seltene Gelegenheit, in einem Stück Geschichte zu wohnen – mit modernem Komfort, zeitgemäßer Ausstattung und hohem Wertentwicklungspotenzial.
Ob als stilvolles Eigenheim oder renditestarke Kapitalanlage: Hier entsteht ein Wohnprojekt mit besonderem Charakter und nachhaltiger Qualität.
Nutzen Sie diese Chance und werden Sie Teil eines außergewöhnlichen Projekts – Wohnen in der Großmühle Grimma bedeutet Leben mit Geschichte, Stil und Zukunft.
Bitte unbedingt eine Telefonnummer im vorgegebenen Feld oder im Bemerkungstext angeben, ansonsten keine Kontaktaufnahme.
Оборудване
- Wohnen in einem denkmalgeschützten Gebäude mit einzigartigem Charakter
- Denkmal-AfA für Kapitalanleger nutzbar
- Großzügige Loggia mit Blick auf das historische Ensemble
- Hochwertige Sanierung und moderne Ausstattung
- Lift, Kellerabteil und PKW-Stellplatz inklusive
- Attraktive Wohnlage in einer ruhigen und historisch geprägten Umgebung
- Perfekt für Eigennutzer oder Kapitalanleger, die Wert auf Stil, Geschichte und Qualität legen
Местоположение
Die Großmühle Grimma befindet sich in einer hervorragenden Lage, nur wenige Gehminuten vom charmanten Stadtzentrum entfernt. Grimma, eine idyllische Stadt im Herzen Sachsens, liegt malerisch an den Ufern der Mulde und bietet eine perfekte Mischung aus historischem Charme und modernem Lebensstil.
Grimma verfügt über eine ausgezeichnete Verkehrsanbindung mit direkter Nähe zur Autobahn A14, die schnelle Verbindungen nach Leipzig und Dresden ermöglicht. Der Bahnhof Grimma bietet regelmäßige Zugverbindungen, und gut ausgebaute Buslinien sorgen für eine einfache Fortbewegung innerhalb der Stadt und in die Region. Einkaufsmöglichkeiten, Restaurants, Schulen, Kindergärten und medizinische Einrichtungen sind bequem erreichbar und bieten höchsten Wohnkomfort.
Die Lage an der Mulde und die umliegenden Grünflächen laden zu Spaziergängen, Radtouren und verschiedenen Freizeitaktivitäten ein. Grimma bietet zudem ein reichhaltiges kulturelles Angebot mit Museen, Theatern und regelmäßigen Veranstaltungen, die für eine hohe Lebensqualität sorgen.
Die Eigentumswohnungen in der Großmühle Grimma profitieren von einer zentralen und zugleich naturnahen Lage, die eine hohe Lebensqualität und exzellente Infrastruktur vereint. Hier finden Sie die perfekte Kombination aus städtischem Komfort und idyllischer Umgebung.
Други
Dieses Objekt wurde durch unseren hauseigenen Baufinanzierungspartner Prometheus Capital GmbH geprüft. Sichern Sie sich günstige Konditionen und eine umfassende Begleitung Ihrer Finanzierung.
Gern unterbreiten wir in einem kostenfreien Gespräch einen individuellen Finanzierungsvorschlag.
Ergänzung: Hohe Zinsen müssen nicht sein ! Aktuell gibt es verschiedene Fördermöglichkeiten über die Kreditanstalt für Wiederaufbau (KfW) oder der Sächsischen Aufbaubank (SAB). Gern können wir Sie dazu beraten.
HAFTUNG:
Die von uns gemachten Angaben haben wir nach bestem Wissen und Gewissen nach Informationen des Verkäufers und den uns übergebenen Unterlagen zusammengestellt. Eine Gewähr für diese Angaben können wir nicht übernehmen. Wichtige Zahlen und Informationen sind am Objekt zu überprüfen. Ein Zwischenverkauf bleibt vorbehalten.
UNSER SERVICE:
Planen Sie den Verkauf Ihrer Immobilie, so ist es wichtig deren Marktwert zu kennen. Lassen Sie kostenfrei und unverbindlich den aktuellen Wert Ihrer Immobilie durch einen unserer Immobilienspezialisten einschätzen. Sprechen Sie uns an und wir stehen Ihnen beratend zur Seite.
04668 Grimma, Germany
Facebook comments
Last broker properties View all broker properties →
Tolle 3-Raum Eigentumswohnung mit Balkon & Stellplatz in Zwenkau zu verkaufen.
Wohnung продава се € 140 000
04442 Zwenkau, Germany
59 m² 3 2 1
€ 110 000Eigentumswohnung mit 2 Zimmern in Seenähe von Zwenkau zu verkaufen.
Wohnung продава се € 110 000
04442 Zwenkau, Germany
46 m² 2 1 1
€ 70 000Schöne 3-Raum Eigentumswohnung im 1.Obergeschoss in ruhiger Wohnlage von Pegau zu verkaufen
Wohnung продава се € 70 000
04523 Pegau, Germany
60 m² 3 2 1
€ 700Einfamilienhaus zu vermieten mit ca. 120qm und Garage in Löbnitz-Bennewitz bei Groitzsch
Еднофамилна къща под наем € 700
04539 Groitzsch, Germany
120 m² 4 3 1
€ 77 400Bauträgerfreie Grundstücke in Lichtenstein/Sa. direkt vom Eigentümer
Жилищен парцел продава се € 77 400
An der Jugendherberge Array, 09350 Lichtenstein/Sachsen, Sachsen, Germany
516 m²
Gewerbegrundstück im Süden von Leipzig direkt vom Eigentümer zu verkaufen
Парцел за търговски цели продава се
Carsdorfer Straße 24, 04523 Pegau, Sachsen, Germany
10 500 m²
€ 156 510Top Mietrendite und Steuervorteil für Kapitalanleger Eigentumswohnung mit Denkmal-Afa in Grimma
Wohnung продава се € 156 510
04668 Grimma, Germany
49 m² 2 1 1
€ 143 264Top Rendite Eigentumswohnung 2-Raum / Kapitalanlage Denkmalschutz AFA in Grimma zu verkaufen
Wohnung продава се € 143 264
04668 Grimma, Germany
45 m² 2 1 1
€ 211 735Top Mietrendite Eigentumswohnung Maisonette 2-Raum mit Balkon / Kapitalanlage in Grimma zu verkaufen
Мезонет продава се € 211 735
04668 Grimma, Germany
67 m² 2 1 1
€ 127 882Top sanierte Terrassen-Eigentumswohnung oder Kapitalanlage mit super Rendite in Grimma zu verkaufen
Апартамент с тераса продава се € 127 882
04668 Grimma, Germany
42 m² 2 1 1
€ 227 672Top sanierte Eigentumswohnung 2-Raum mit Steuervorteil Denkmal AFA in Grimma zu verkaufen.
Апартамент на последен етаж продава се € 227 672
04668 Grimma, Germany
73 m² 2 1 1
€ 176 543Erstbezug Eigentumswohnung 2-Raum oder Kapitalanlage mit Top Rendite in Grimma zu verkaufen
Апартамент на последен етаж продава се € 176 543
04668 Grimma, Germany
56 m² 2 1 1
Similar properties View all properties similar to this property →
Charmante, unsanierte Altbau-Perle mit viel Potential in Markkleeberg! Kulturdenkmal, 6 WE, Keller, Nebengebäude
Многофамилна къща продава се € 399 000
04416 Markkleeberg, Germany
420 m² 29
€ 320 000Charmante Wohnung für gewerbliche Nutzung/ Ferienwohnung/ Monteurswohnung, mit Gewerbegrundbuch
Various продава се € 320 000
04357 Leipzig, Germany
120 m² 4 3 2
€ 160 000Ihr neues Zuhause im idyllischen Ortsteil von Großweitzschen erwartet Sie!
Еднофамилна къща продава се € 160 000
04720 Großweitzschen / Westewitz, Germany
120 m² 4 3 1
€ 395 000Tolles Einfamilienhaus mit Garage, Klima und neuer Heizung in Leipzig - Rückmarsdorf zu verkaufen
Еднофамилна къща продава се € 395 000
04178 Leipzig, Germany
140 m² 6 4 2
€ 390 000Einfamilienhaus + Nebenhaus perfekt zum Generationswohnen in Zwenkau in Seenähe zu verkaufen
Еднофамилна къща продава се € 390 000
04442 Zwenkau, Germany
265 m² 6 5 2
€ 199 9003-Seiten-Bauernhof: großes Grundstück, Scheune, Wohnhaus, Stall- und Wirtschaftsgebäude; Mietkauf mgl.
Фермерска къща продава се € 199 900
04769 Naundorf, Germany
4 127 m² 50
€ 225 000Unsaniertes MFH in Altenburg mit Denkmal-AfA
Многофамилна къща продава се € 225 000
04600 Altenburg, Germany
1 411 m² 35
€ 249 000Einfamilienhaus mit separatem Haus und großem Nebengelass in Großdalzig / Zwenkau zu verkaufen
Еднофамилна къща продава се € 249 000
04442 Zwenkau, Germany
282 m² 13 2
€ 155 000Reihenmittelhaus mit Potential direkt am Park in Mutzschen
Градска къща - средна продава се € 155 000
04688 Grimma, Germany
180 m² 9 3
€ 150 000Tolles Stadthaus mit Garage und Zufahrt - auch Generationswohnen möglich - in Groitzsch zu verkaufen
Градска къща - средна продава се € 150 000
04539 Groitzsch, Germany
182 m² 9 8 4
€ 299 000Schönes Einfamilienhaus mit Sauna und Kaminzimmer + Garage in Groitzsch zu verkaufen
Еднофамилна къща продава се € 299 000
04539 Groitzsch, Germany
184 m² 7 2
€ 285 000Denkmalgeschütztes Stadtvilla | Generationwohnen mit Baugenehmigung in Groitzsch zu verkaufen.
Еднофамилна къща продава се € 285 000
04539 Groitzsch, Germany
261 m² 11 3
