Bezugsfrei! 2–3 Zimmer in Toplage nahe Potsdamer Platz
Площ
Inside
Изисквания и ограничения
Енергия
Цени
Описание на недвижимата собственост
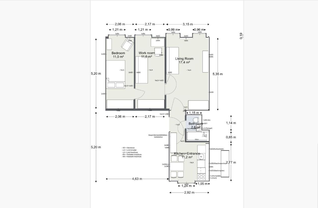
In der Bernburger Straße erwartet Sie diese attraktive Wohnung mit flexibler Raumaufteilung und großem Potenzial. Die ca. 52 m² große Wohnung ist laut Unterlagen als 2-Zimmer-Wohnung ausgewiesen, wird jedoch aktuell durch eine bereits eingebaute Trennwand als 2,5–3 Zimmer genutzt – ideal für Homeoffice, WG oder individuelle Wohnkonzepte.
Die Räume sind hell und gut geschnitten, der schöne Dielenboden sorgt für eine angenehme Wohnatmosphäre. Das Badezimmer wurde kürzlich erneuert und präsentiert sich in modernem Zustand. Die Wohnung ist bezugsfrei und kann sofort genutzt oder vermietet werden.
Dank der Kombination aus zentraler Lage und flexibler Nutzung bietet die Wohnung vielfältige Möglichkeiten – sowohl zur Eigennutzung als auch zur Vermietung.
Immobilien in dieser Lage sind sehr gefragt – überzeugen Sie sich selbst bei einer Besichtigung.
Die Wohnung liegt im 3. Obergeschoss eines vollständig sanierten Altbaus aus dem Jahr 1910 ohne Aufzug.
WICHTIG: Die gezeigten, möblierten Bilder dienen der Veranschaulichung (virtuelles Staging). Die Wohnung wird unmöbliert verkauft.
Местоположение
Die Bernburger Straße 29 zählt zu den gefragtesten Adressen Berlins und liegt in unmittelbarer Nähe zum Potsdamer Platz – eine der zentralsten und dynamischsten Lagen der Stadt. Hier treffen Urbanität, Kultur und Lebensqualität aufeinander.
In wenigen Gehminuten erreichen Sie zahlreiche Restaurants, Cafés, Einkaufsmöglichkeiten sowie kulturelle Highlights wie Museen, Galerien und Theater. Auch der beliebte Park am Gleisdreieck sowie die Spreeufer sind schnell erreichbar und bieten einen perfekten Ausgleich zum Stadtleben.
Die Anbindung an den öffentlichen Nahverkehr ist hervorragend: S-Bahn (Anhalter Bahnhof), U-Bahn sowie mehrere Buslinien befinden sich in direkter Umgebung und ermöglichen eine schnelle Verbindung in alle Teile Berlins.
Други
Dieses Angebot ist für Sie als Käufer provisionspflichtig. Die Käufercourtage in Höhe von 3,57% des Kaufpreises inklusive 19% Mehrwertsteuer ist bei notariellem Vertragsabschluss verdient und fällig. In gleicher Höhe werden wir auch vom Verkäufer vergütet. Zahlbar nach notarieller Beurkundung an Olga Martin Immobilien. Die Grunderwerbsteuer, Notar- und Grundbuchkosten sind vom Käufer zu tragen.
10963 Berlin, Germany
Facebook comments
Last broker properties View all broker properties →
SOFORT EINZIEHEN – Erstbezug mit Balkon und Top-Anbindung in Berlin
Wohnung под наем € 1 100
Pankstraße 91, 13357 Berlin, Berlin, Germany
37 m² 1 1
€ 169 000Attraktive Kapitalanlage in Dresden – vermietete 3-Zimmer-Wohnung mit Tiefgarage
Апартамент на последен етаж продава се € 169 000
01309 Dresden, Germany
86 m² 3 1
€ 149 000Attraktive Kapitalanlage in Dresden – Vermietete Maisonette mit Stellplatz
Апартамент на последен етаж продава се € 149 000
01217 Dresden, Germany
81 m² 2 1
€ 253 000Bezugsfreie 2-Zimmer-Wohnung mit Balkon & Stellplatz in Berlin-Tempelhof
Wohnung продава се € 253 000
Komturstraße 75, 12099 Berlin, Berlin, Germany
57 m² 2 1
€ 299 000Wohnung mit Stellplatz / Bezugsfrei!
Wohnung продава се € 299 000
12207 Berlin, Deutschland
55 m² 2 1
€ 591 000Traumhaus am See in ruhiger Lage in Stettin
Къща-близнак продава се € 591 000
Pogodna, 71-376 Szczecin, Polen
187 m² 7
€ 225 000Sanierungsbedürftiges Mehrfamilienhaus in Detmold
Многофамилна къща продава се € 225 000
Wiesenstraße 1, 32756 Detmold, Deutschland
120 m² 6
€ 270 000Wohnung mit Stellplatz / Bezugsfrei!
Wohnung продава се € 270 000
12207 Berlin, Deutschland
55 m² 2 1
€ 825 000BERLIN: Großzügiges Einfamilienhaus 188 m2 im Karolinenhof mit 885 m² Grundstück.
Еднофамилна къща продава се € 825 000
Radduscher Weg 24, 12527 Berlin, Deutschland
188 m² 7 4 2
€ 355 000BERLIN: Bezugsfreie 2-Zimmer-Wohnung in Top-Lage – nur 4 Minuten vom Boxhagener Platz
Wohnung продава се € 355 000
10245 Berlin, Deutschland
59 m² 2 1 1
€ 179 900BERLIN: Kapitalanlage - 2 Zi. Wohnung
Wohnung продава се € 179 900
10713 Berlin, Deutschland
52 m² 2 1 1
€ 1 500 000DÜSSELDORF: Mehrfamilienhaus mit 570 m2 in zentraler Lage von Düsseldorf-Oberbilk
Многофамилна къща продава се € 1 500 000
40227 Düsseldorf, Deutschland
570 m² 19
Similar properties View all properties similar to this property →
Helle 3-Zimmer Wohnung mit Südwest-Loggia nahe Olympiastadion
Wohnung продава се € 315 000
14052 Berlin, Germany
68 m² 3 1 1
€ 280 000Kapitalanlage im Wohnpark Königsheide
Wohnung продава се € 280 000
12487 Berlin, Germany
69 m² 2 1
€ 250 000Sanierungsobjekt in zentraler Lage von Bestensee - Preisreduziert
Къща-близнак продава се € 250 000
15741 Bestensee, Germany
80 m² 3 2 1
€ 317 000Gartenwohnung in der Tabbertstraße - bezugsfrei
Апартамент на партерен етаж продава се € 317 000
12459 Berlin, Germany
55 m² 2 1
€ 158 0003-Zimmer-Dachgeschosswohnung in ruhiger Lage mit Balkon und Außenstellplatz
Апартамент на последен етаж продава се € 158 000
16321 Bernau, Germany
60 m² 3 2 1
€ 298 000Provisionsfrei: Bezugsfertige, moderne 2-Zimmer-Wohnung mit Balkon & Fahrstuhl in Berlin Spandau
Wohnung продава се € 298 000
13581 Berlin, Germany
65 m² 2
€ 375 000Charmanter Bungalow, ruhig gelegen mit praktischer Anbindung!
Bungalow продава се € 375 000
16562 Hohen Neuendorf, Deutschland
110 m² 3 2 1
€ 233 493Im Herzen der Hauptstadt - leere Eigentumswohnung zwischen Englischem Viertel und Volkspark Rehberge
Wohnung продава се € 233 493
13349 Berlin, Germany
60 m² 2
€ 205 000Sonnige 2‑Zimmer‑Wohnung mit Südloggia – gepflegte Anlage, top Lage, solide Vermietung.
Wohnung продава се € 205 000
13407 Berlin, Germany
59 m² 2 1
€ 279 500Bezugsfrei ab Juli 2026 - Fußläufig zum Wrangelkiez - 2-Zimmerwohnung
Wohnung продава се € 279 500
12059 Berlin, Germany
57 m² 2 1 1
Einzigartiges Wassergrundstück direkt am Wald
Еднофамилна къща продава се
15754 Prieros, Germany
266 m² 5 2
€ 480 000Einfamilienhaus in ruhiger Lage - Berlin Rudow
Еднофамилна къща продава се € 480 000
Minorkaweg 8A, 12355 Berlin, Deutschland
111 m² 4 3 2
