Sonnige, vermietete 2-Zimmer-Wohnung im Hochparterre - Fensteraustausch 2026 ausgeführt
Overview
Outside
Energy
Prices
Property description
Die angebotene Wohnung befindet sich in einem Mehrfamilienhaus mit 28 Wohnungen, welches zu einem Wohnpark mit mehreren Mehrfamilienhäusern und insgesamt 319 Wohnungen und einer Gewerbeeinheit gehört. Das Haus wurde 1960 erbaut und im Jahr 1984 in Wohnungseigentum aufgeteilt. Das Haus ist unterkellert, jeder Wohnung ist ein Kellerraum zugeordnet.
Wohngeld lt. Wirtschaftsplan 2025: 249,00 €
Mietkonditionen:
578,70 € Nettokaltmiete
145,00 € Betriebskostenvorauszahlung
0,00 € Heizkostenvorauszahlung (Mieter zahlt selbst, Gasetagenheizung)
723,70 € Gesamtmiete
Das Mietverhältnis besteht seit 01.02.2023.
Die Erhaltungsrücklage betrug zum 13.08.2024: 570.241,59 € gesamt.
Equipment
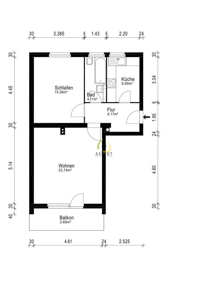
Die optimal geschnittene 2-Zimmer-Wohnung im Hochparterre überzeugt durch eine durchdachte Raumaufteilung und einen nach Süden ausgerichteten Balkon, der direkt vom Wohnzimmer aus zugänglich ist und für helle, freundliche Wohnverhältnisse sorgt. Neben dem großzügigen Wohnzimmer stehen ein Schlafzimmer, eine separate Küche, ein Badezimmer mit Dusche, WC und Handwaschbecken sowie ein praktischer Flur zur Verfügung. Die Böden sind mit Laminat und Fliesen ausgestattet, zusätzlich gehört ein Kellerraum zur Wohnung. Beheizt wird die Einheit über eine Gasetagenheizung aus dem Jahr 2003.
Die Wohnung wurde 2026 umfassend instand gesetzt: Im Zuge der Sanierung wurden Maßnahmen zur Beseitigung von Feuchtigkeitsbildung umgesetzt, die zuvor auf ältere, nicht mehr ausreichend dichte Fenster zurückzuführen war. In diesem Zusammenhang wurden sämtliche Fenster inklusive der Fensterbänke erneuert und entsprechen nun zeitgemäßen energetischen Standards.
Location
Die Wohnung befindet sich im ruhigen Bezirk Reinickendorf, wo man moderne Wohnsiedlungen und kleine historische Dörfer wie Wittenau findet. Der Tegeler Forst ist ein großes Landschaftsschutzgebiet mit Wanderwegen und dem Schloss Tegel. Der große Tegeler See ist bei Seglern beliebt und am kleineren Flughafensee gibt es einen abgelegenen Badestrand.
Mit dem Auto ist man in weniger als 15 Minuten in dem großen Einkaufzentrum Hallen am Borsigturm. Sämtliche Versorgungseinrichtungen des täglichen Bedarfs sowie Kitas und Schulen sind in der Nähe.
Die Anbindung an den öffentlichen Nahverkehr ist sehr gut, es gibt mehrere Buslinien (322, 122, N8,) und die U-Bahn-Linie (U8). Über die B96 erreichen Sie schnell das Zentrum mit dem PKW.
Various
Die Provision in Höhe von 3,57 % inkl. der gesetzlichen Mehrwertsteuer bezogen auf den Kaufpreis ist bei Vertragsabschluss fällig und zahlbar und vom Käufer an die AKZENT Finanz- und Immobilienservice GmbH zu zahlen. Wir weisen darauf hin, dass je nach Nachfrage der Angebotspreis nach Verhandlung noch steigen oder sinken kann. Es gelten unsere Allgemeinen Geschäftsbedingungen.
13407 Berlin, Germany
Facebook comments
Last broker properties View all broker properties →
Platz für Ideen: Vielseitig nutzbares Grundstück mit Einfamilienhaus / Mehrgenerationenhaus
One family house for sale € 415 000
12623 Berlin, Germany
175 m² 6 3
€ 299 000Bezugsfreie 2,5-Zimmer-Wohnung mit Dielenboden und Loggia - ruhig gelegen nahe S-Bahnhof Pankow
Ground floor apartment for sale € 299 000
13189 Berlin, Germany
60 m² 3 2 1
€ 299 000Schöner Ausblick vom Südost-Balkon - 2,5-Zimmer-Wohnung in ruhiger Lage und mit Stellplatz
Wohnung for sale € 299 000
13349 Berlin, Germany
73 m² 3 2 1
€ 890 000Einziehen ab 06-2027 - Moderne und hochwertig eingerichtete 4-Zimmer-Wohnung nahe Kurfürstendamm
Wohnung for sale € 890 000
10707 Berlin, Germany
110 m² 4 3 2
€ 699 000Flexibel nutzbare DHH in Panketal – auch als Zweifamilienhaus geeignet - teilgewerblich nutzbar
Semi-detached house for sale € 699 000
16341 Panketal, Germany
176 m² 6 5 3
€ 358Büroräume / Ladenlokal / Praxis im Erdgeschoss mit Schaufenster ab sofort zu vermieten
Retail shop for rent € 358
14943 Luckenwalde, Germany
60 m²
€ 358Büroräume / Ladenlokal / Praxis im Erdgeschoss mit Schaufenster ab sofort zu vermieten
Office space for rent € 358
14943 Luckenwalde, Germany
60 m²
€ 155 0003-Zimmer-Dachgeschosswohnung in ruhiger Lage mit Balkon und Außenstellplatz
Attic apartment for sale € 155 000
16321 Bernau, Germany
60 m² 3 2 1
€ 279 500Bezugsfrei ab Juli 2026 - Fußläufig zum Wrangelkiez - 2-Zimmerwohnung
Wohnung for sale € 279 500
12059 Berlin, Germany
57 m² 2 1 1
€ 189 500Ihr Grundstück - Ein Rückzugsort zwischen Feldern und Metropole
Wohngrundstück for sale € 189 500
15366 Neuenhagen bei Berlin, Germany
561 m²
€ 439 000Familienfreundliches Reihenendhaus in ruhiger Lage - vermietet
End unit house for sale € 439 000
14656 Brieselang, Germany
104 m² 4 3 1
€ 379 000Ihr Grundstück - Stadtnah & naturnah – die perfekte Balance
Wohngrundstück for sale € 379 000
15366 Neuenhagen bei Berlin, Germany
1 121 m²
Similar properties View all properties similar to this property →
Sanierungsobjekt in zentraler Lage von Bestensee - Preisreduziert
Semi-detached house for sale € 250 000
15741 Bestensee, Germany
80 m² 3 2 1
€ 155 0003-Zimmer-Dachgeschosswohnung in ruhiger Lage mit Balkon und Außenstellplatz
Attic apartment for sale € 155 000
16321 Bernau, Germany
60 m² 3 2 1
€ 98 000Reihenmittelhaus zwischen Ostsee und Großstadt, und den Kleingarten gleich hinter dem Haus!
Row middle house for sale € 98 000
16 Eberswalde, Deutschland
80 m² 3 2 1
€ 233 493Im Herzen der Hauptstadt - leere Eigentumswohnung zwischen Englischem Viertel und Volkspark Rehberge
Wohnung for sale € 233 493
13349 Berlin, Germany
60 m² 2
€ 205 000Sonnige 2‑Zimmer‑Wohnung mit Südloggia – gepflegte Anlage, top Lage, solide Vermietung.
Wohnung for sale € 205 000
13407 Berlin, Germany
59 m² 2 1
€ 240 000Ruhige 2 Zimmerwohnung im Herzen von Charlottenburg an der Suarezstrasse und nah des Lietzenseeparks
Wohnung for sale € 240 000
14057 Berlin, Germany
65 m² 2 1 1
€ 164 000Sanierte und ruhige 2-Zimmer-Altbau-Wohnung - vermietet
Wohnung for sale € 164 000
13585 Berlin, Germany
59 m² 2 1 1
€ 191 424Helle 2 Zimmer ETW mit Balkon im 2. OG! Als Kapitalanlage. Zwischen Engl. Viertel und Volkspark Rehberge
Wohnung for sale € 191 424
13349 Berlin, Germany
60 m² 2 1 1
€ 203 6861 Zi. ETW mit Ladenfläche zu verkaufen zwischen Englischem Viertel und Volkspark Rehberge.
Ground floor apartment for sale € 203 686
13349 Berlin, Germany
64 m² 2
