Warmlagerhalle im Gewerbegebiet Wachau, Rolltor, Sp mgl.
Übersicht
Innen
Aussen
Extras zum Objekt
Energie
Preise
Objektbeschreibung
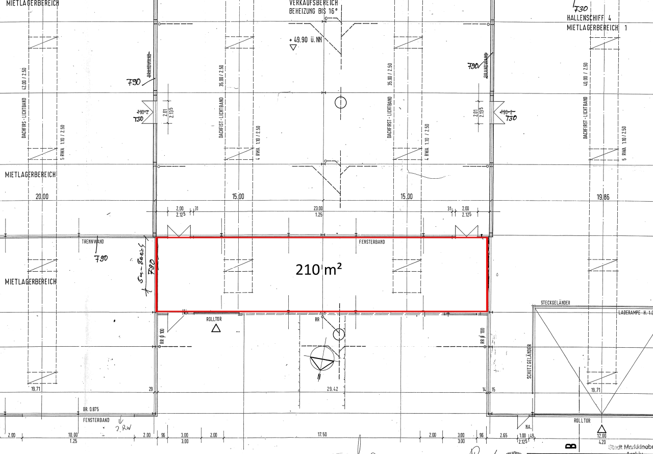
Warmlager- und Produktionshalle mit Rolltor.
Eine Freilagerfläche für 1,50 €/m² ist ebenfalls möglich.
Ideal für:
- Lagerhalle
- Produktion
- Onlinehandel
- Funsport
- Einzelhandel
- In- und Export
Ausstattung
- Warmlagerhalle
- ca. 210 m² Gesamtfläche
- elektrisches Rolltor (3 x 3 m) vorhanden
- ohne WC (bei gewünschter WC-Nutzung können 3 Möglichkeiten besprochen werden)
- Strom vorhanden
- ca. 6 Meter Raumhöhe
- Betonsteinboden
- Fernwärmeheizung vorhanden
- Außenstellplätze á 25,00 €/Monat mögl.
Lage
Dieses Objekt befindet sich im Gewerbegebiet Wachau-Nord in Markleeberg.
Markkleeberg ist eine, durch die signifikante Gründerzeitbebauung und die Nähe zur Leipziger Neuseenlandschaft geprägte, große Kreisstadt die unmittelbar und praktisch ineinanderfließend an Leipzigs Süden grenzt.
Sowohl der Markkleeberger als auch der Cospudener See sind nur ein Katzensprung entfernt.
Die Region verfügt über gute Verkehrsanbindungen (B2 und A38 + A72) und ein weitestgehend grünes und ruhiges Umland. Die Entfernung zur Innenstadt beträgt ca. 15 Fahrminuten und auch eine Busverbindung (106 und 108) ist vorhanden.
Das Gewerbegebiet Wachau bietet eine Vielzahl an Einkaufsmöglichkeiten (großem Globus, Bäckerei), Produktion, Einzelhandel, Tankstelle u.v.a.m.
Sonstiges
Die von uns gemachten Angaben haben wir nach bestem Wissen und Gewissen nach Informationen des Vermieters/Verkäufers und den uns übergebenen Informationen zusammengestellt. Eine Gewähr für diese Angaben können wir nicht übernehmen. Wichtige Zahlen und Informationen sind am Objekt zu überprüfen. Zwischenvermietung/Verkauf bleibt vorbehalten.
04416 Markkleeberg, Germany
Meta
Weitere Objekte des Maklers Alle Objekte des Anbieters anzeigen →
Ca. 67.800 m² unerschlossenes Baugrundstück für Wohnen, B-Plan vorhanden
Wohngrundstück zu Verkauf € 5 200 000
06132 Halle (Saale), Germany
67 800 m²
€ 9 000Große Ladenfläche direkt auf der beliebten "Karli" + Büro & Sozialräume, inkl. 41 m² Lager, TG-SP mgl.
Ladenlokal zur Miete € 9 000
04107 Leipzig, Germany
532 m² 5
€ 2 590 000Saniertes & gepflegtes Wohn- und Geschäftshaus in Möckern mit 11 WE, 5 GE, Balkone u.v.m.
Wohn- und Geschäftshaus zu Verkauf € 2 590 000
04159 Leipzig, Germany
1 327 m²
€ 5 000Profi-Gastronom gesucht! Renovierte Kantine/Catering im ca. 54.000 m² Gewerbe-Ensemble neben "Sachsen-Park"
Sonstige Beherbergungsbetriebe zur Miete € 5 000
04356 Leipzig, Germany
556 m²
€ 5 115Moderne und offen gestaltete Bürofläche in Zentrum-Süd in TOP-Lage
Büro- / Praxisfläche zur Miete € 5 115
04107 Leipzig, Germany
330 m² 4
€ 5 610Moderne und offen gestaltete Bürofläche in Zentrum-Süd in TOP-Lage
Büro- / Praxisfläche zur Miete € 5 610
04107 Leipzig, Germany
330 m² 7
€ 2 300Pfeilerfreie Halle mit Rolltor, Lager, Büro, Teeküche, Umkleide, WC, Dusche & Freifläche, Nähe A38
Various zur Miete € 2 300
04683 Belgershain, Germany
390 m²
€ 3 980 000Ca. 10.384 m² großes Gewerbe Baugrundstück in Wiederitzsch, nahe der "Neuen Messe" und A14
Gewerbegrundstück zu Verkauf € 3 980 000
04158 Leipzig, Germany
10 384 m²
€ 2 738Büro-/ Produktions-/ Lagerfläche im Gewerbepark Wiedemar, Dachterrasse, Lastenaufzug mögl.
Büro- / Praxisfläche zur Miete € 2 738
04509 Wiedemar, Germany
622 m²
€ 5 570Repräsentatives, saniertes & freistehendes Bürogebäude im Graphischem Viertel von Leipzig!
Büro- / Praxisfläche zur Miete € 5 570
04103 Leipzig, Germany
413 m² 12
€ 3 350Große, helle Büro-, Schulungs-, Ausstellungs- & Lagerfläche in Wiedemar, TG mgl.
Büro- / Praxisfläche zur Miete € 3 350
04509 Wiedemar, Germany
613 m² 6
€ 230 000Unausgebautes DG mit Baugenehmigung; 5 Räume, ca. 192,02 m² Gesamtfläche; Medien liegen in der Fläche an
Wohnanlage zu Verkauf € 230 000
04317 Leipzig, Germany
145 m²
