Profi-Gastronom gesucht! Renovierte Kantine/Catering im ca. 54.000 m² Gewerbe-Ensemble neben "Sachsen-Park"
Übersicht
Innen
Extras zum Objekt
Energie
Preise
Objektbeschreibung
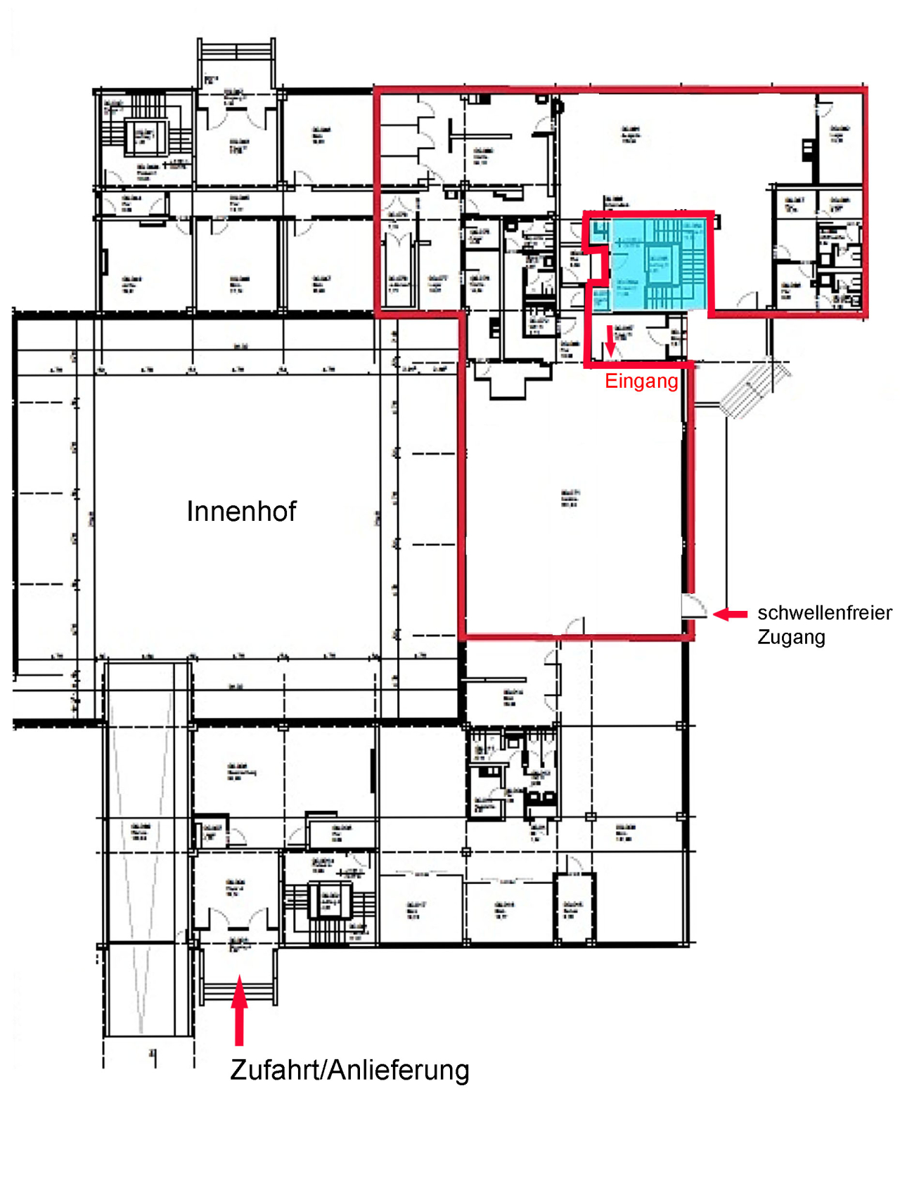
Angeboten wird eine große Gastronomiefläche (z.B. Kantine, Catering, Veranstaltung etc.) in Leipzig-Seehausen, nahe der Leipziger Messe und dem "Sachsen-Park" und dem Golfplatz "Seehausen".
Die Gastrofläche gehört zu einem ca. 54.000 m² großen Gewerbe-Ensemble von Bürohäusern mit ca. 1.500 Mitarbeitern.
Ebenso wäre bei einer entsprechenden Werbung und Bekanntheitsgrad ein Zulauf von anderen Gästen möglich und denkbar.
Optional zu der Gastronomiefläche ist noch eine gr. Lager-/Technikfläche im UG von ca. 275,01 m² zusätzl. anmietbar, welche schwellenfrei vom Innenhof und mit dem Lift erreichbar ist.
Eine seperate Laderampe mit eigenem Lastenaufzug ist ebenfalls vorhanden.
Die vorhandene Kantinenküche (von Hase & Co geplant und aufgebaut) kann für 1,- € symbolisch gekauft werden, womit dann sämtliche Rechte und Pflichten an den neuen Mieter übergehen und dieser dann für die Wartung und Inbetriebnahme etc. selbst verantwortlich ist.
Eine Grundriss- als auch Ausstattungsänderung ist hier möglich und kann mit dem Vermieter abgestimmt werden. Anfallende Mehrkosten oder Mietaufschlag sind dadurch möglich und abhängig von der Mietlaufzeit und den Kosten.
Zum Ensemble gehört u.a. auch ein eigenes, für alle Ensemble-Mieter nutzbares Fitness-Studio, welches auch von Familiemitgliedern genutzt werden kann.
Ebenfalls ist auch eine Nextbike-Station im Ensemble vorhanden.
Ausstattung
- 2018 saniert
- 4 Eingänge
- schwellenfreier Zugang über den Innenhof mgl.
- vorhandene Kantinenküche kann für 1,- € symbolisch gekauft werden, womit dann sämtliche Rechte und Pflichten an den neuen Mieter übergehen und dieser dann für die Wartung und Inbetriebnahme etc. selbst verantwortlich ist
- Boden: Vinyl, Küchenbereich gefliest
- alle Fenster haben Außenjalousien
- Zu- und Abluft vorhanden
- große Ablufthauben
- 3 Tiefkühlräume
- große Essensausgabe
- alle Geräte sind NEU und unbenutzt (ca. 2018)
- Wok Herd
- Bodenabläufe und Bodentanks vorhanden
- kleines Büro
- Umkleide mit 2 WCs & Duschen für das Personal
- 2 Gäste-WCs + 1 Behinderten-WC + 1 Pissoir
- Abstellraum
- Technikraum
- Brandschutztür vorh.
- Fahrradabstellmöglichkeit draußen
- PKW-SP im Parkhaus oder auch Außenstellplätze mögl.
- barrierefreier Personenaufzug bis ins UG
- Laderampe mit Lastenaufzug
- ca. 123 KV Stromleistung liegen an, mit sep. Stromleitung - neuer Hausanaschluss (120-140 kv) müsste vom Vermieter beantragt werden
- bauliche Veränderung (z.B. Vergrößerung der Küche) ist in Absprache mit dem Vermieter mögl.
- optional ist noch eine gr. Lager-/Technikfläche im UG von ca. 275,01 m² zusätzl. anmietbar
Lage
Seehausen ist ein Ortsteil im Norden von Leipzig. Auf seinem Gebiet liegt das Neue Messegelände der Stadt Leipzig, der "Sachsen-Park" u.a.
Der Ortsteil umfasst die ehemaligen Ortschaften und jetzigen Leipziger Stadtteile Seehausen, Göbschelwitz, Hohenheida, Gottscheina, und die Gemarkung Mark Neblitz, die sich in dieser Reihenfolge an Seehausen nach Nordosten anschließen.
Die Leipziger Innenstadt ist in nur wenigen Minuten mit den öffentlichen Nahverkehrsmitteln (Bus) erreichbar.
Der "Sachsenpark" ist nur ca. 150 m weit entfernt.
Der beliebte Golfplatz "Seehausen" ist in wenigen Minuten zu erreichen.
Sonstiges
Die von uns gemachten Angaben haben wir nach bestem Wissen und Gewissen nach Informationen des Vermieters/Verkäufers und den uns übergebenen Informationen zusammengestellt. Eine Gewähr für diese Angaben können wir nicht übernehmen. Wichtige Zahlen und Informationen sind am Objekt zu überprüfen. Zwischenvermietung/Verkauf bleibt vorbehalten.
04356 Leipzig, Germany
Meta
Weitere Objekte des Maklers Alle Objekte des Anbieters anzeigen →
Charmante, unsanierte Altbau-Perle mit viel Potential in Markkleeberg! Kulturdenkmal, 6 WE, Keller, Nebengebäude
Mehrfamilienhaus zu Verkauf € 399 000
04416 Markkleeberg, Germany
420 m²
€ 2 500 000192,31 €/m² - Bestand u.a. aus Hallen, Garagen, Büros, Sozialräumen u.v.m. (ca. 13.000 m² NF) auf ca. 3,3 ha GS, ca. 89 SP
Various zu Verkauf € 2 500 000
04688 Grimma, Germany
32 900 m²
€ 1 478Helle DG-Wohnung mit Galerie, ca. 64 m² WZ, Kamin, EBK, Gäste-WC, gr. Balkon, Lift, SP mgl.
Dachgeschosswohnung zur Miete € 1 478
04103 Leipzig, Germany
185 m² 4 2
Teilanmietung ab 500 m² für Bestandsgebäude (ca. 13.000 m² NF) von Halle, Lager, Büro, gew. Wohnen, Werkstatt
Various zur Miete
04688 Grimma, Germany
0 m²
€ 4 250Warmlagerhalle im Gewerbegebiet Wachau für Lager, Produktion u.a., gr. Rolltor, ca. 12 SP mgl.
Various zur Miete € 4 250
04416 Markkleeberg, Germany
760 m²
€ 225 000ETW im 5.OG in der Südvorstadt, Lift, Badewanne, SUV-TG
Wohnung zu Verkauf € 225 000
04275 Leipzig, Germany
81 m² 3
€ 1 750Teilanmietung ab 500 m² für Bestandsgebäude (ca. 13.000 m² NF) von Halle, Lager, Büro, gew. Wohnen, Werkstatt
Various zur Miete € 1 750
04688 Grimma, Germany
0 m²
€ 32 900GLOBAL-PÄCHTER ab 1,00 €/m² gesucht! GS mit ca. 13.000 m² NF + Bestand - Untervermietung möglich!
Wohngrundstück zur Miete € 32 900
04688 Grimma, Germany
32 900 m²
€ 2 500 000Gr. GS mit Bestand aus Hallen, Garagen, Büros, Sozialräumen u.v.m. (ca. 13.000 m² NF), 89 SP
Wohngrundstück zu Verkauf € 2 500 000
04688 Grimma, Germany
32 900 m²
€ 1 175Große Büroetage in einem sanierten Geschäftshaus - 10 Räume, Teeküche, Lift, Keller, Innenhof u.v.m.
Büro- / Praxisfläche zur Miete € 1 175
06110 Halle (Saale), Germany
210 m² 10
€ 1 350 000Großes Geschäftshaus mit 5 Büroeinheiten + 1 WE im DG, Lift, Keller, Innenhof, kl. Garage u.v.m.
Wohn- und Geschäftshaus zu Verkauf € 1 350 000
06110 Halle (Saale), Germany
472 m²
€ 7602-Raum-Whg. im Herzen von Leipzig! Lift, EBK, Fahrrad-SP vorhanden, SUV-TG mgl.
Wohnung zur Miete € 760
04109 Leipzig, Germany
58 m² 2 1
Ähnliche Objekte Ähnliche Angebote zu dieser Immobilie →
Warmlagerhalle im Gewerbegebiet Wachau für Lager, Produktion u.a., gr. Rolltor, ca. 12 SP mgl.
Various zur Miete € 4 250
04416 Markkleeberg, Germany
760 m²
€ 4 450Teilsan. Bestandsgebäude mit ca. 6.473 m² GS - gewerbl. Wohnen, Büro, gr. Einzel-Garagen
Andere zur Miete € 4 450
04838 Laußig, Germany
6 473 m²
€ 4 950Freie Produktions-/Lagerhalle mit Bürofl., 2 Rolltore, gr. Laderampe m. Scherbühne
Various zur Miete € 4 950
04509 Wiedemar, Germany
1 014 m²
€ 4 808Produktions-/Lager- & Bürofläche im Gewerbepark Wiedemar, Balkon, Lastenaufzug mögl..
Various zur Miete € 4 808
04509 Wiedemar, Germany
1 095 m²
€ 3 133Produktions-/Lager- & Bürofläche im Gewerbepark Wiedemar, Balkon, Lastenaufzug mögl.
Various zur Miete € 3 133
04509 Wiedemar, Germany
696 m²
€ 4 686Produktions-/ Lager- & Bürofläche im Gewerbepark Wiedemar, Dachterrasse, Lastenaufzug mögl.
Various zur Miete € 4 686
04509 Wiedemar, Germany
1 086 m²
€ 3 556Produktions-/Lager- & Bürofläche im Gewerbepark Wiedemar
Various zur Miete € 3 556
04509 Wiedemar, Germany
847 m²
Sie haben die AUSWAHL! Freie Produktions-/ Lagerhallen & Büros im Gewerbepark Wiedemar
Various zur Miete
04509 Wiedemar, Germany
3 772 m²
€ 5 427Großräumige und gestaltbare Bürofläche mit 14 Räumen in Leipzig Seehausen
Büro- / Praxisfläche zur Miete € 5 427
04356 Leipzig, Germany
619 m² 14
€ 2 738Büro-/ Produktions-/ Lagerfläche im Gewerbepark Wiedemar, Dachterrasse, Lastenaufzug mögl.
Büro- / Praxisfläche zur Miete € 2 738
04509 Wiedemar, Germany
622 m²
€ 3 350Große, helle Büro-, Schulungs-, Ausstellungs- & Lagerfläche in Wiedemar, TG mgl.
Büro- / Praxisfläche zur Miete € 3 350
04509 Wiedemar, Germany
613 m² 6
€ 5 088Repräsentative, 2022 renovierte, helle Maisonette-Gewerbefläche mit 2 Dachterrassen, Lift, SP mgl.
Büro- / Praxisfläche zur Miete € 5 088
04509 Wiedemar, Germany
598 m² 10
