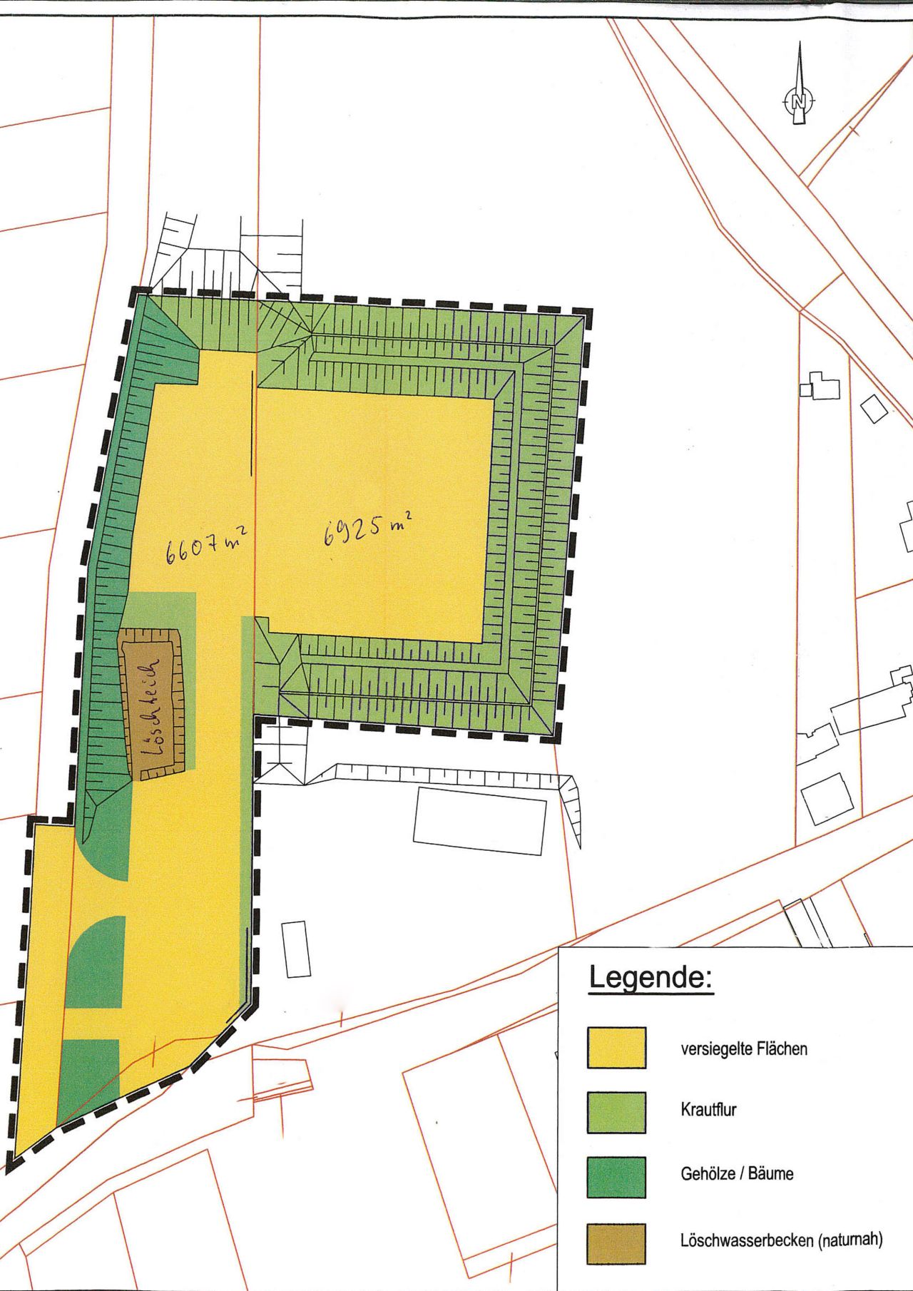
ca. 13.532 m² großes, versiegeltes Gewerbegrundstück nähe Schkeuditz
Übersicht
Preise
Objektbeschreibung
Versiegeltes Grundstück zur gewerblichen Nutzung.
- das Grundstück ist eingezäunt
- alle Medien liegen an
- Löschteich vorhanden
- großer Lagerbunker vorhanden
Mögliche Nutzung:
- Außenlager
- Transportunternehmen/Logistik
- Containerlagerung (auch Bürocontainer/Wohncontainer),
- Platz für ca. 300 Parkplätze
- PV-Anlage
Lage
Schkeuditz OT Ermlitz ist eine Große Kreisstadt im Landkreis Nordsachsen im Nordwesten von Sachsen. Sie liegt auf halbem Wege zwischen Leipzig im Südosten und Halle im Nordwesten und ist die drittgrößte Stadt des Landkreises.
Sehr gute Autobahnanbindung zur A9 und A14. In unmittelbarer Nähe liegt das Schkeuditzer Kreuz, DHL und der Flughafen.
Sonstiges
Die von uns gemachten Angaben haben wir nach bestem Wissen und Gewissen nach Informationen des Vermieters/Verkäufers und den uns übergebenen Informationen zusammengestellt. Eine Gewähr für diese Angaben können wir nicht übernehmen. Wichtige Zahlen und Informationen sind am Objekt zu überprüfen.
Zwischenvermietung/Verkauf bleibt vorbehalten.
06258 Schkopau, Germany
Meta
Weitere Objekte des Maklers Alle Objekte des Anbieters anzeigen →
Verkaufs-/Ladenfläche im san. Altbau mit gr. Schaufensterfront, EBK, Außenjalousien, WC, Keller
Ladenlokal zu Verkauf € 124 500
04347 Leipzig, Germany
83 m² 2
€ 124 500Gewerbefläche im san. Altbau mit EBK, gr. Schaufensterfront, Außenjalousien, WC, Keller
Various zu Verkauf € 124 500
04347 Leipzig, Germany
0 m²
€ 1 350 000Großes Geschäftshaus mit 5 Büroeinheiten + 1 WE im DG + Lift, Keller, Innenhof, kl. Garage u.v.m.
Wohn- und Geschäftshaus zu Verkauf € 1 350 000
06110 Halle (Saale), Germany
1 100 m²
€ 1 175Große Büroetage in einem sanierten Geschäftshaus - 8 Räume, Teeküche, Lift, Keller, Innenhof u.v.m.
Bürohaus zur Miete € 1 175
06110 Halle (Saale), Germany
210 m² 10
€ 45 000GLOBAL-PÄCHTER gesucht! Ca. 32.900 m² GS mit Bestand (ca. 13.000 m² NF) - Untervermietung möglich!
Wohngrundstück zur Miete € 45 000
04688 Grimma, Germany
32 900 m²
€ 2 500 000Gr. GS mit Bestand aus Hallen, Garagen, Büros, Sozialräumen (ca. 13.000 m² NF), 89 SP
Wohngrundstück zu Verkauf € 2 500 000
04688 Grimma, Germany
32 900 m²
€ 220 000ca. 1.460m² großes Baugrundstück für Gewerbe im Gewerbegebiet Halle-Süd
Gewerbegrundstück zu Verkauf € 220 000
06130 Halle (Saale), Germany
1 460 m²
€ 1 750 000Eigennutz + Kapitalanlage - sehr gepflegte, freist. Gewerbeimmobilie! Lift,15 SP
Bürohaus zu Verkauf € 1 750 000
06130 Halle (Saale), Germany
547 m² 11
€ 45 000Möblierte Pension-/Wohnanlage mit 5 Häusern; Monatspacht; 49 WE, ca. 250 m² Lager, SP
Pension zur Miete € 45 000
04289 Leipzig, Germany
250 m²
€ 2 860Lichtdurchflutete und imposante Rondellfläche, ruhige Lage, Lift bis UG, SP mgl, Spielhalle/Bistro mgl.
Büro- / Praxisfläche zur Miete € 2 860
04347 Leipzig, Germany
158 m²
€ 350 000ca. 4.140 m² großes Gewerbegrundstück mit großem Entwicklungspotential; Flächennutzungsplan vorhanden
Gewerbegrundstück zu Verkauf € 350 000
06774 Muldestausee, Germany
4 140 m²
€ 499 800EFH mit gr. GS und rundum grünen Blick! Garage, Terrasse, Balkon, Keller, DG-Reserve u.v.m.
Einfamilienhaus zu Verkauf € 499 800
04746 Hartha, Germany
140 m² 5
