Zweifamilienhaus, teilsaniert in der Kieler Str. zu verkaufen! Ca. 130,00 und 49,00 m² Wohnfläche
Übersicht
Innen
Aussen
Extras zum Objekt
Energie
Preise
Objektbeschreibung
Sie suchen eine Immobilie mit vielen Möglichkeiten? Hier ist Sie: Selbst bewohnen, vollständig vermieten, teilweise vermieten, Mehrgenerationenwohnen, oder, oder? Schauen Sie sich diese tolle Immobilie an!
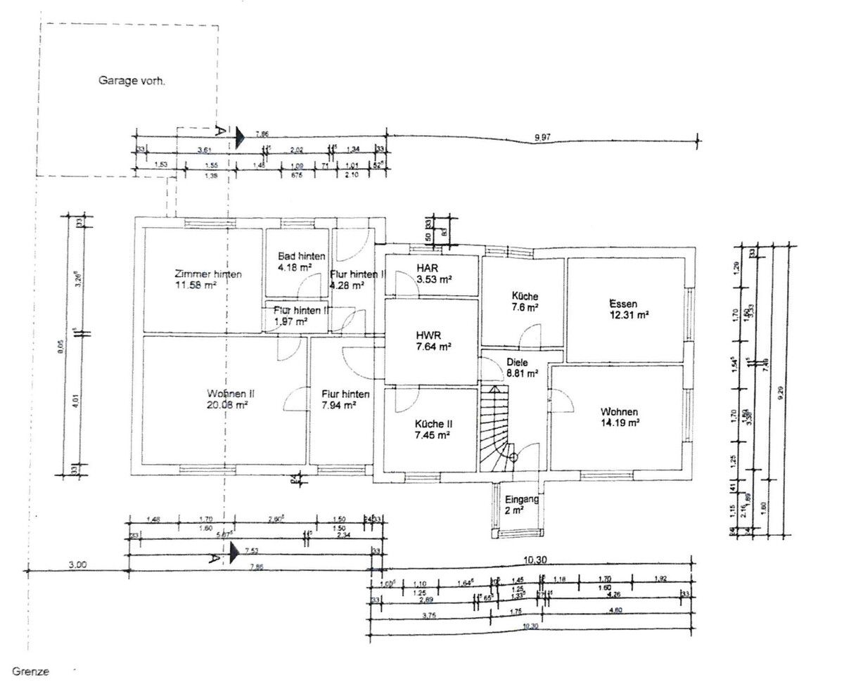
Dieses schicke 2-Familienhaus befindet sich in Einfeld in eine Einliegerstraße. Sie besteht aus dem Haupthaus mit ca. 131 m² und 4 Zimmern und dem Hinterhaus mit 2 Zimmern auf ca. 49,4 m². Das sonnige, pflegeleichte Grundstück besitzt eine Fläche von ca. 842 m².
Die Fenster in der Immobilien wurden umfassend ausgetauscht (2-fach-verglast), das Dach wurde gedämmt. Dazu wurden unterschiedliche Smart-Home-Komponenten im Haupthaus installiert.
Im Außenbereich befinden sich ein Doppelcarport mit großem Abstellraum, eine Garage, eine überdachte Terrasse und ein Stall/Voliere.
Durch die rückwärtige Schallschutzwand und die zunehmende Elektrifizierung der Züge, ist die Bahnstrecke Neumünster/Kiel kaum zu bemerken.
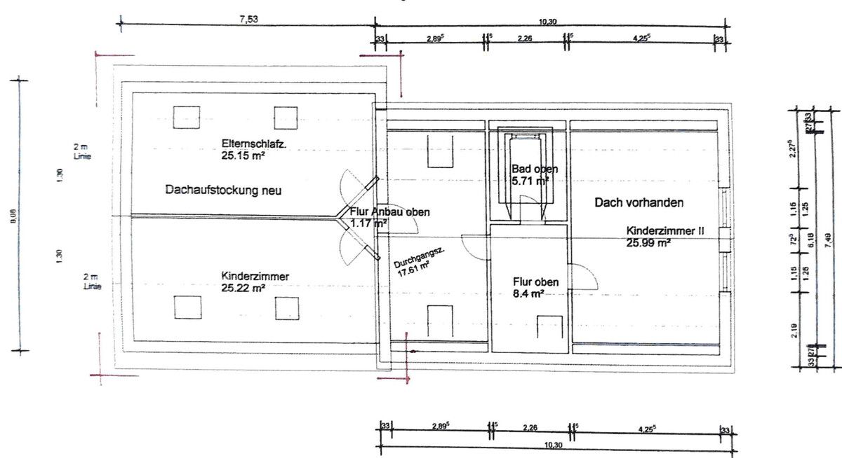
Das Haupthaus wurde ca. 1956 erbaut, um dann ca. 1976 um einen Flachdachanbau und eine Garage ergänzt zu werden. Der Anbau wurde 2019 mit einem Satteldach überdacht.
Ausstattung
Wohnung 1 (131,63 m²):
Wohn-/Esszimmer (EG)
Küche mit Einbauküche (EG)
Flur (EG+OG)
Badezimmer (EG+OG)
3 Schlafzimmer (OG)
Keller
Wohnung 2 (49,40 m²):
Wohnzimmer
Küche/Flur
Schlafzimmer
Außen:
Überdachte Terrasse
Doppelcarport mit großem Abstellraum
Garage
Stall/Voliere
Stahlwandpool
Sonstige Ausstattung:
Teilweise Smart-Home-Steuerungen
Indirekte LED-Beleuchtung in Wohnzimmer + Esszimmer
Außenrollläden (2019)
Alkoven (über den Kinderzimmern)
Sanierungen:
Dachdämmung (2019)
Anbau Hinterhaus (1976/2019)
Fenster (2019)
Heizung (2004)
PV-Anlage (4 Module)
Lage
Die Immobilie befindet sich in der Kieler Straße im beliebten Stadtteil Einfeld im Norden von Neumünster. Einfeld zeichnet sich durch seine gewachsene, familienfreundliche Struktur sowie die gelungene Kombination aus ruhigem Wohnen und guter infrastruktureller Anbindung aus.
Besonders hervorzuheben ist die Nähe zum Einfelder See, der nur wenige Minuten entfernt liegt und vielfältige Freizeit- und Erholungsmöglichkeiten wie Spaziergänge, Wassersport oder einfach entspannte Stunden in der Natur bietet.
Familien profitieren von einem sehr guten Bildungs- und Betreuungsangebot im direkten Umfeld: Mehrere Kindertagesstätten sowie Grund- und weiterführende Schulen befinden sich in kurzer Entfernung und sind teilweise bequem zu Fuß oder mit dem Fahrrad erreichbar. Dies macht die Lage besonders attraktiv für Haushalte mit Kindern.
Einkaufsmöglichkeiten für den täglichen Bedarf, Bäckereien, Ärzte und Apotheken sind im Stadtteil Einfeld sowie in der näheren Umgebung vorhanden und sorgen für eine komfortable Nahversorgung. Ergänzt wird das Angebot durch das nahegelegene Designer Outlet Neumünster, das überregional bekannt ist und eine Vielzahl an Einkaufsmöglichkeiten sowie gastronomischen Angeboten bietet.
Die Verkehrsanbindung ist ebenfalls hervorragend: Über die nahegelegene A7 Autobahn sind die Städte Hamburg und Kiel schnell erreichbar. Zudem besteht eine gute Anbindung an den öffentlichen Nahverkehr, sodass auch ohne Auto eine hohe Mobilität gewährleistet ist.
Insgesamt bietet die Lage eine ideale Kombination aus naturnahem Wohnen, familienfreundlicher Infrastruktur und guter Erreichbarkeit – ein attraktiver Wohnstandort für Jung und Alt.
Sonstiges
Sie haben weitere Fragen zu dieser Immobilie oder suchen noch nach einer Immobilie?
Dann sprechen Sie mich gern und unverbindlich an, damit ich Sie beraten kann.
Ihr Ansprechpartner:
Dien Tohuus Immobilien GbR
Arne Fredenhagen
Mühlenstr. 21
24539 Neumünster
Mobil: +49 152 / 28896706
EMail: af@dien-tohuus-sh.de
Ich freue mich, über Ihren Anruf!
Bitte beachten Sie, dass wir, aufgrund der Vorgaben der neuen Datenschutzgrundverordnung (DSGVO), keine telefonischen Informationen zu dem Objekt erteilen können. Wenn Sie weiteres Interesse an diesem Objekt haben, dann füllen Sie bitte hierfür einfach das Kontaktformular mit Anschrift, Telefonnummer und E-Mail Adresse aus, damit ich Ihnen das vollständige Exposé zukommen lassen kann und ich, entsprechend der DSGVO berechtigt bin, Sie auch telefonisch zu kontaktieren. Wir bitten hierfür um Ihr Verständnis.
Alle Daten in diesem Exposé beruhen auf Angaben des Verkäufers - Die Objektangaben wurden mit großer Sorgfalt zusammengestellt. Für die Richtigkeit der Verkäufer-, Anbieter- und Angebotsangaben können wir keine Haftung übernehmen. Irrtümer bleiben vorbehalten.
Unsere Angebote sind freibleibend und unverbindlich. Die Einrichtung und Ausstattung auf den Grundriss-Zeichnungen ist beispielhaft dargestellt.
24536 Neumünster, Germany
Meta
Weitere Objekte des Maklers Alle Objekte des Anbieters anzeigen →
Projektiertes Bauvorhaben in sehr guter Lage in der Schulstr. in Neumünster/Tungendorf zu verkaufen.
Wohngrundstück zu Verkauf € 810 000
Schulstr. 95, 24536 Neumünster, Germany
748 m²
€ 750Ferienwohnung zur Dauervermietung in Hohwacht - unweit vom Strand!
Erdgeschosswohnung zur Miete € 750
Im Wiesengrund 5, 24321 Hohwacht, Germany
63 m² 2 1 1
€ 1 045Erstbezug: 3-Zimmer-Wohnung mit 86,82 m² Wohnfläche und Dachterrasse in der Paul-Böhm-Str. zu mieten
Wohnung zur Miete € 1 045
Paul-Böhm-Str. 50, 24539 Neumünster, Germany
87 m² 3 2 1
€ 750Erstbezug: 2-Zimmer-Wohnung mit 62,19 m² Wohnfläche und Balkon in der Paul-Böhm-Str. 50 zu vermieten
Wohnung zur Miete € 750
Paul-Böhm-Str. 50, 24539 Neumünster, Germany
62 m² 2 1 1
€ 1 045Erstbezug: 3-Zimmer-Wohnung mit 82,94 m² Wohnfläche und Balkon in der Paul-Böhm-Str. 50 zu vermieten
Wohnung zur Miete € 1 045
Paul-Böhm-Str. 50, 24539 Neumünster, Germany
87 m² 3 2 1
€ 900Erstbezug: 2-Zimmer-Wohnung mit 74,94 m² Wohnfläche und Balkon in der Paul-Böhm-Str. 50 zu vermieten
Wohnung zur Miete € 900
Paul-Böhm-Str. 50, 24539 Neumünster, Germany
75 m² 2 1 1
€ 810 000Projektiertes Bauvorhaben in sehr guter Lage in der Schulstr. in Neumünster/Tungendorf zu verkaufen.
Mehrfamilienhaus zu Verkauf € 810 000
Schulstr. 95, 24536 Neumünster, Germany
748 m²
€ 275 000Charmantes Einfamilienhaus in Toplage mit modernisierter Gebäudehülle auf 113 m² Wohnfläche
Einfamilienhaus zu Verkauf € 275 000
Am Neuen Kamp 52, 24537 Neumünster, Germany
113 m² 5 2 1
€ 1 840Einfamilienhaus in der Boostedter Str. mit ca. 150 m² Wohnfläche ab dem 01.06.2026 zu vermieten!
Einfamilienhaus zur Miete € 1 840
Boostedter Str. 389, 24539 Neumünster, Germany
150 m² 6 3 1
€ 575 000Sanierung, Abriss und Hinterlandbebauung -- hier ist im Rahmen eines B-Planes fast alles möglich!
Bauernhaus zu Verkauf € 575 000
Tasdorfer Weg 18, 24536 Neumünster, Germany
200 m² 6 5 2
€ 575 000Sanierung, Abriss und Hinterlandbebauung -- hier ist im Rahmen eines B-Planes fast alles möglich!
Wohngrundstück zu Verkauf € 575 000
Tasdorfer Weg 18, 24536 Neumünster, Germany
12 419 m²
€ 258 000Eigentumswohnung mit 2 Zimmern auf ca. 55 m² Wohnfläche in Strandnähe in Büsum zu verkaufen!
Erdgeschosswohnung zu Verkauf € 258 000
Föhrer Weg 5, 25761 Büsum, Germany
55 m² 2 1 1
Ähnliche Objekte Ähnliche Angebote zu dieser Immobilie →
Sanierung, Abriss und Hinterlandbebauung -- hier ist im Rahmen eines B-Planes fast alles möglich!
Bauernhaus zu Verkauf € 575 000
Tasdorfer Weg 18, 24536 Neumünster, Germany
200 m² 6 5 2
€ 599 000Seltene Chance: Denkmalgeschütztes Architektenhaus mit parkähnlichem Grundstück und unverbaubarem Feldrandblick
Villa zu Verkauf € 599 000
24536 Neumünster / Brachenfeld, Germany
210 m² 9 5 3
